Last minute design help!
hI guys, we are at a critical stage in moving forward with the house plans and wanted to get some last minute second opinions to ensure there are no huge errors with regards to layout, spacing, things forgotten ect..
our views are towards the north and east and we are a family of 6.
this house is going to be build on a small hobby farm in a rural area.


Thanks so much!
Comments (40)
Related Professionals
Carney Architects & Building Designers · South Pasadena Architects & Building Designers · Eau Claire Home Builders · Fruit Heights Home Builders · Westwood Home Builders · Lomita Home Builders · Browns Mills General Contractors · Chowchilla General Contractors · Mount Laurel General Contractors · Nampa General Contractors · Statesboro General Contractors · Universal City General Contractors · Walnut Park General Contractors · Wheaton General Contractors · Baileys Crossroads General Contractors- 9 years ago
Beginning with the garage: that's a long hallway before you can even kick off the boots. Nice space for the garbage cans, though, lots of garages seem to not have room for them.
Then, the bedrooms right there at the mudroom. Not a pretty sight for that child first thing in the morning. Next, the children in that utility end of the house have a wonky bathroom, and they practically have to go into the LR to get there.
The LR, I love a big sectional, but sometimes you just want a chair, no?
The Kitchen, by the time you get there...the cleanup sink is in the pantry? By all the food? Just doesn't seem like a pleasant spot to wash dishes. What is the space to the right of the kitchen? There seems to be plenty of room in the classroom, so it doesn't look like storage for that; the pantry is pretty big, so it's not for that; and it's wide open the the whole house, so it's not for seasonal storage.
To get to the other bedroom wing, you have to squeeze past the kitchen island and walk past the storage area, not very welcoming for heading to bed or start gin the day. The master bath seems crowded, the toilet door shouldn't swing in, and the closet seems cramped, too. The child in the first bedroom has a nice view of...a wall.
- 9 years ago
I do not like the roof - and I also love modern/contemporary.
The shape of the house is incongruous and arbitrary.
Usually an "U" shape embraces the visitor but this is not the vibe I get.
- 9 years agolast modified: 9 years ago
Add to that you are not taking any advantage to passive solar heating.
Was this designed by an architect or a designer/draftsman?
- 9 years ago
I know nothing about J Smith, except for this post, but I am going to guess she/he is not in the USA. NZ maybe? Which might explain some of the design choices.
J Smith, the feedback is probably not what you expected or wanted to hear, but the members here really go out of their way to help people get the most out of their future homes.
- 9 years ago
True, chispa, and some here are professionals, and some just share our own experiences living with layouts.
i just want to add that it is nice to have circulation in a home, not just of air, but of people. More than one way to move about, as opposed to one path from " here to there". The more people living in a home, the more important this becomes.
J Smith
Original Author9 years agolast modified: 9 years agoHi guys and thanks for your feedback - we appreciate it. We are indeed building this house in NZ and while I am not familiar with how house designs are in other countries some of the design choices are quite common here - both internally and externally. For example, we are thinking to use a corrugated iron w/timber look and feel for the exterior - something that is more rustic for the farm-life if that makes sense.
That being said however, we are
always looking for ways to improve and would love to hear if there are ways to optimize or create a better floor plan.
Another example - we originally had the bathroom on the west side of the house look like this:

and we thought maybe it would allow more flexibility to have access to that bathroom from the laundry room (since we frequently come in off the farm dirty) so we created another door there. Maybe this makes things too confusing? How would you optimize that bathroom with the space given?
Regarding the passive solar comment, we are north facing and in the southern hemisphere so it is correct from that point of view. This will be designed as a passive haus so very well insulated meeting all heating/cooling requirements.
- 9 years ago
as a family of 6 - are you parents and 4 kids? or parents, 3 kids and a MIL / Grandma? The reason that I ask is that if everyone gets their own room - someone is pretty isolated.
And with several folks sharing a bathroom, I would think some extra / double sinks might be in order.
I think your rooflines could DEFINITELY be improved - perhaps it's the renderings, but right now, you are dangerously close to looking like several mobile homes and low budget steel buildings daisy chained together. I more cohesive / less choppy roof plan would really help here. To my eye - the garage is the most attractive element of the plan and that's not good.
For the shared bath in the main house - I would not separate the toilet from the sink here - it kinda gross me out to handle all those doors after using the toilet. You can easily use the laundry sink to scrub up coming in from outside. J Smith
Original Author9 years agoYes there is 2 adults and 4 children. In each toilet there is a small sink to wash up as with kids thinking of them using the toilet and then exiting the door sounds gross!
What at exactly would you do to improve the roof lines, I can kind of see what you mean but do you have any suggestions as to what I would ask my architect to do? Thanks!!- 9 years ago
Can you simplify the roof in each volume to be a single slope? The overlaps and low pitch look "off" - as does the front porch roof. With a single slope - and your low pitch - I'd like to think it was possible without creating a ceiling height that wasn't manageable.
- 9 years agolast modified: 9 years ago
I can't even phrase this nicely: I like nothing here.
- I find the exterior cold and unappealing. The two wings poking out towards the front appear haphazard. Admittedly, I'm not a fan of modern, but this doesn't strike me as modern.
- The flow of the house is odd. Typically when you enter a house, you want to be near the kitchen /food storage area (so you don't have to carry groceries as far and so you don't have to carry garbage a long way when taking it out); instead, you're near two kids' rooms.
- I (mostly) like the kitchen and the dining room, though their location could use improvement. Do consider that you want your food storage to be "together". Your pantry and refrigerator are as far apart as can be.
- It'd make sense to have the kids' rooms all in that separate wing and the parents' room separate ... or to have them all together. But to separate the two kids while keeping the others close is a strange choice. Perhaps two are older and two are younger, but even if that's true -- do you really want to place the others so far away that when they're driving and staying out late, you won't hear them /know they're home safely?
- The bathrooms are divided strangely. Trust me, no woman wants a toilet without a sink right next to it -- and I mean the real vanity, not a tiny blocking-the-way-to-the-toilet undersized sink. And I don't think they're going to be attractive either. You have a bathroom for every two people; two people aren't going to have a problem sharing -- just go with a simple design and don't try to divide them up as if they're dorm bathrooms shared by a whole hall of kids.
- The laundry is convenient for two people -- inconvenient for the other four.
- Rooms with windows on two sides are always nicer than rooms with windows on only one side ... and your only public room with windows on two sides is the classroom. I'm not saying you shouldn't make the classroom nice, but I'd have given that prime space to the living room, the spot where the family'll gather for fun, and the place where you'll entertain guests. Furthermore, the classroom will probably benefit from having a big chalkboard and bulletin boards, so its corner position will probably be a negative.
- With a large classroom, do you really need an office too? With a large classroom, do the kids really need desks in their rooms?
- What is the big empty space between the classroom and the 4-bedroom wing?
- The plumbing is strung across the whole house, making it as inefficient and expensive as possible -- and increasing the possibilities of leaks in the future.
- The master shower is the same width as a tub. We have a shower that size, and it's very comfortable -- but not big enough to support two shower heads. I'm not sure you have enough vanity space to support two sinks.
- You have an incredibly long walk from the garage to the master bedroom. This, of course, is always a problem with ranch houses, but this one is stretched to the extreme.
- Why the large storage room in the garage? It'd be more space-efficient to place the shelves all around the edges of the garage.
J Smith
Original Author9 years agoThis is how the roof lines looked in a previous version of the house - with a single sloped roof. Are you saying this is preferable?

J Smith
Original Author9 years agoHi Mrs Pete - perhaps it will help illustrate why some things were done this way by providing a top down view of the surroundings. We are designing this to take into account the designated building area (in red), as well as where we will locate other infrastructure (the shed), the views we want to capture (pond, orchards, east and north), the views we want to eliminate (the road to the south and west), as well as where our driveway is.
Maybe this doesn't change your view on it, but it may help put some context into things.
- 9 years ago
J Smith,
Do you have a few inspiration pictures that we can see?
I just took a look at residential architect web sites in New Zealand. A lot of modern and contemporary but they kind of have a little bit of everything. I only saw about 10% of roofs like yours.
- 9 years ago
It's preferable to me!!!! (with the exception of the terrible front door overhang)
And why not put the classroom and a bath on the "annex" and keep the bedrooms in the main space so after the need for the classroom has ended - how about changing it to a music room / craft space / woodworking shop, etc? And then you could not heat / cool it if you were not using it, or, rent it out (if that is something that appeals to you) as an income suite, or turn it into an inlaw suite, etc.
I love modern, and am building a single story home with some unique features, but I worry that this isn't going to serve your needs long term. It's very busy / complicated and views from above a little like a maze.
J Smith
Original Author9 years agoTo answer some of your questions:
- With a large classroom, do you really need an office too? With a large classroom, do the kids really need desks in their rooms?>> The husband works from home so the office is for him. The classroom is for the kids when they are young, with the desks in their rooms future proofing when they are older. When the kids are too small to school in one place, that classroom will probably be something else like a media room or rumpus room
- What is the big empty space between the classroom and the 4-bedroom wing?
>> That will be a library with bean bag chairs on the floor, etc. Can also double as a play area for kids on the ground while they are young (our oldest is 7)
- The plumbing is strung across the whole house, making it as inefficient and expensive as possible -- and increasing the possibilities of leaks in the future.
>> Not sure what to say here except that you are right.
- The master shower is the same width as a tub. We have a shower that size, and it's very comfortable -- but not big enough to support two shower heads. I'm not sure you have enough vanity space to support two sinks.
>> Thanks for that, it is very helpful to know.
- You have an incredibly long walk from the garage to the master bedroom. This, of course, is always a problem with ranch houses, but this one is stretched to the extreme.
>> We originally were going to have a detached garage but the architect said always better to have attached. Consequently, this will probably be used more as a rumpus room/play room for the kids and all their toys (expanding on the driveway etc) rather than a real garage. Likely most of the groceries and stuff would come in the front door - but certainly would be a pain through the garage we agree.
- Why the large storage room in the garage? It'd be more space-efficient to place the shelves all around the edges of the garage.
>> We have a lack of storage in the house and it is cheaper to build into the garage (on a m2 basis) than in the house. This will be used for a lot of things like preserves, deep freezer, etc.
- 9 years ago
I can understand the need to stay within the red lines for building, but, no, that doesn't change my opinions at all. You can have a much better design within those confines.
Are you set on a one-story? Moving the kids upstairs would lessen your footprint and fix some of the circulation (of people) problems.
Can the whole house be moved forward a bit so you could avoid those forward-thrusting wings?
Must the garage be attached?
Could the house plan be deeper instead of wider?
J Smith
Original Author9 years agoJannicone - could you please clarify what you meant when you said: "And why not put the classroom and a bath on the "annex" and keep the bedrooms in the main space so after the need for the classroom has ended - how about changing it to a music room / craft space / woodworking shop, etc?"
We are having trouble understanding what you mean. Thanks!!
J Smith
Original Author9 years agoMrsPete - It can be double story for sure, but we tried to go for single because we really didn't like stairs. That being said however we are always open to a better way of doing things. We can move the house anywhere so long as it is within the red lines, and no, the garage can be anywhere - attached or detached. House can be as deep as we want but we need to be aware of light being able to penetrate.
- 9 years ago
I am saying keep the bedrooms in the main house and move the classroom to the angled section where the bedrooms are now. You've got huge separation to those other 2 bedrooms - which child is getting a far away bedroom?
Why not use the right side volume to house the classroom (for separation during classes and again after the need for a classroom is over) and keep the bedrooms in the main volume?
- 9 years ago
And why not put the classroom and a bath on the "annex" and keep the bedrooms in the main space so after the need for the classroom has ended - how about changing it to a music room / craft space / woodworking shop, etc? And then you could not heat / cool it if you were not using it, or, rent it out (if that is something that appeals to you) as an income suite, or turn it into an inlaw suite, etc.
This is all very logical. Definitely provides for "future proofing".
>> That will be a library with bean bag chairs on the floor, etc. Can also double as a play area for kids on the ground while they are young (our oldest is 7)
It's awfully narrow for a library area and lacks acoustical privacy. The concept is good, but the execution could stand improvement.
We originally were going to have a detached garage but the architect said always better to have attached.
I agree that attached is better as a general rule of thumb, but when your landscape dictates that it's this or detached ... I'd go for detached. Also, detached allows more freedom in window placement.
>> We have a lack of storage in the house and it is cheaper to build into the garage (on a m2 basis) than in the house. This will be used for a lot of things like preserves, deep freezer, etc.
No, no, I'm not questioning whether you need storage. I'm questioning why you're building a closet for storage, which requires more square footage, instead of just placing the storage around the edge of the garage. Here's a quick graphic -- assume the blue spaces are storage shelves and look how much more garage you need to provide the same amount of storage, if that storage is placed in a separate room:
What are your overall dimensions?
- 9 years ago
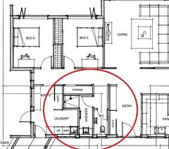
Could the left-hand bathroom/utility area be reconfigured something like this? Here in the US it's pretty common for a kids' bath to have all the fixtures in one room. (I'm with you on the ickiness of opening the toilet room door before washing up) I also have the utility room opening to the foyer, so it's a straighter shot to the rest of the house, and if you enter through the front door you can easily drop boots in the mudroom.

J Smith
Original Author9 years agoMrsPete: overall dimensions so far are 308m2 - we are trying to keep it as close to 300 as possible.
bpathome - thank you for the idea. What we were trying to accomplish was to allow multi person access to bathroom and toilet without having to create too many toilets. For example, we wanted to have a toilet that would be accessible to guests without having to create a separate one for that purpose. At the same time, this toilet would be used quite heavily because it is the closest to the outside (via laundry), closest to the living room, used by the kids on that side, and we would not want guests to have to venture into the "living wing" on the right hand side to use a toilet so it would serve that purpose as well.
Here is another prior design (older version) our architect suggested to us. It doesn't have the toilet in there but includes a bath and is probably better placed (less maze like). Thoughts?

J Smith
Original Author9 years agolast modified: 9 years agoOf course, we could just put a toilet in the bathroom but there are 2 reasons we were trying to avoid it.
1. It means only one person could use it at a time which may pose a problem given how frequently it would be used as described above.
2. We didn't like having a toilet in the same room where we put our toothbrushes etc. Just not as sanitary. (Note: Each toilet has it's own sink in it)
- 9 years ago
I see your point. How about this? And the opening between the bathroom hall and the utility room is a pocket door.

- 9 years ago
Fascinating architecture. Just googled NZ farm houses and found a pic that reminds me a little of yours. Who knew?
i hope you stick around long enough for us to watch you build it!
So your north is our south. Now it makes sense.
welcome to the board.

- 9 years ago
I apologize because I couldn't read your dimensions. If I could have, I probably would have deduced you are in the southern hemisphere, so yes, your passive solar heating is correct for your area. :)
- 9 years ago
I don't think that if someone is building a home on a hobby farm it has to look like an updated colonial. I think a modern style home in a rural area works very well. The modern style embraces a more connected lifestyle to the outdoors. To me that equals a better style of home for the location.
To be fair, I'm remodeling/building a more modern style home in a rural area in New England, so consider the source.
Seeing the land does help understand why you have things on an angle. But something could def be improved with that. I'm not sure what, and I will love to come back later and look more in depth at the previous suggestions.
Good luck, and all this thinking ahead and questions from some of these great people will totally help you get what you want out of your home.
- 9 years agolast modified: 9 years ago
Of course, we could just put a toilet in the bathroom but there are 2 reasons we were trying to avoid it.
1. It means only one person could use it at a time which may pose a
problem given how frequently it would be used as described above.2. We didn't like having a toilet in the same room where we put our
toothbrushes etc. Just not as sanitary. (Note: Each toilet has it's own
sink in it)If you were planning one bathroom to be shared amongst your four children, yes, I'd agree that it would be appropriate to separate the bathroom into compartments for ease of multiple users ... but when you're talking about two people sharing, it becomes unnecessary.
Toothbrushes aren't really unsanitary just because they're in a room that contains a toilet. I mean, we are talking about a modern flush toilet, not a pit toilet that'll draw flies. And even if that were true, why not just store the toothbrush in a medicine cabinet?
Remember that compartmentalized bathrooms require more square footage, doors cost money, and doors get in the way. It's a lot of fuss for no real benefit.
And if you're going to divide the bathrooms, they need to be divided well -- these aren't divided well. Consider these layouts -- this first one is overly fussy -- it requires five doors! And think about how often those doors'll be in the way and how foolish the items will look ... each in their own rooms:

Though this one isn't ideal, note that it only has three doors and is more usable:
And this one is better yet -- a small but complete bathroom ... and a bonus sink:
With bathrooms, simple is almost always best. It's cheaper to build, makes the items easier to clean, and is more functional.
In looking at your bathrooms, I see overly complicated items and things that won't function well. For example, a sketch a few posts up shows a shower and a tub on one wall, a sink on the opposite wall. This will result in two problems: You must run water through two walls, which is more expensive, and it creates a pinch point through which people must squeeze to walk past the sink.
J Smith
Original Author9 years agoHi all, just a quick update on things. Based on your feedback we have decided to go back to the architect and see what could be done by turning this into a 2 story house rather than rancher. This would (in our thinking) be done by moving all 4 kids bedrooms + bathroom upstairs and relocating the master bed/bath/wic to the top left of the house where bed 5 and 6 currently are. The office would likely go to the south of the house near where bed 3 is at. Perhaps a toilet would be located near here as well.
We will of course share the draft they come back with, but if you have any thoughts or other suggestions as to the best way to proceed with this exercise we would love to hear them. At the end of the day, your advice (while hard to hear sometimes) is what we want and need to hear.
For example, if we move all kids bedrooms to the top with stairs located near the main entrance, that will bring many things closer together (laundry being one of them). Are there other issues with the way we are thinking of proceeding that you can see? With our view primary to the north and east, we have wondered whether having the kitchen sandwiched in like that may be the best idea - thoughts?
J Smith
Original Author9 years agoFew other questions we have for the Houzz expertise:
1. Would you put the master bed/bath on the top left (north facing where bed 5 and 6 are) or on bottom right east of house with the rising sun (where bed 3 currently is). The benefit of going on the east also is the ability to walk onto the wrap around porch.
2. If all kids bedrooms are put upstairs, would you also locate the master upstairs or keep on the ground floor? Which is preferable?
3. If you want to future proof the home to make sure it is appealing to all families, do you locate the office near to the showering facilities so that it could double as a guest bedroom?
- 9 years ago
By putting your kids' bedrooms upstairs, they might gain nicer views. If you are concerned about flexibility for resale, I'd probably keep the master downstairs but give one of the upstairs bedrooms an ensuite bath.
Have you considered an open rather than the enclosed breezeway to the garage?
Your porch looks fantastic.
- 9 years ago
1. While I'm not a morning person and hate east light in my window, I still would probably prefer the ability to walk out onto the porch.
2. That is personal as to how you feel about being close to the children when they are young. As young children I preferred being next to my kids. However once they hit the teens I wished they were further from our bedroom. LOL
3. It's a good idea in a 3/4 bedroom house but you already have 6 bedrooms so I wouldn't worry about it.
J Smith
Original Author9 years agoWith regards to the garage, many of you guys didn't like the way it was done and I agree it is probably unnecessarily too large and can be optimized better. Would you think detached makes more sense here?
J Smith
Original Author9 years agolast modified: 9 years agoRegarding "up" versus "down" with the master bedroom - the pros and cons we could think of are:
Pros being down
- More privacy and quiet from the kids
- Ability to walk onto porch (either to the north or east)
- When older, no stairs to have to worry about
- When kids leave, you can not worry about ever having to go upstairs
Pros of being up
- Better views
- Easier to look after younger kids
- I guess the convenience of having all "sleeping" being in one place? Although I am not sure this is a big "pro" or a big deal.
There really isn't much else we could think about :-)? Are we missing something here?
- 9 years ago
No, you got the pros and cons.
What is your winter climate like? If it's mild then I'd go with a detached garage.
J Smith
Original Author9 years agoWe live in a rather mild climate, so it certainly remains an option. Is there a particular reason why it is frowned upon to have it attached the way it has been? Is it just bad practice? Ugly?
- 9 years ago
Re enclosed/open breezeway: I personally just like having circulation options so I can imagine for example wanting to go from the front courtyard down to the pond without going through the house or around the whole garage wing. (Although the same effect could be achieved by having opposing doors on the breezeway.) If the secondary bedrooms are going upstairs would you want to have the option for the porch to wrap the entire back of the house?
- 9 years ago
Just for the record, my sister married a man from NZ. When they built their house, he wanted to have the baths set up like you (toilet/small sink in one room and shower/sink in another). He explained to my sister that that bath arrangement was very common in NZ. I would not like their set up (I like to use the toilet just before I head into the shower). However, my sister says it works great for them (they don't have any kids).
Looking forward to seeing your two story house design).
Carol











User