Software
Houzz Logo Print
klynneg

Layout help for enclosed kitchen

6 years ago

Hello All!

We are in the planning stages of a kitchen remodel and I would appreciate some help with the layout. I have attached 2D floor plans and layouts below. I have also tried to give a good amount of information about us and what we hope to accomplish, but if it's too much, just scroll on down to my pictures.


We remodeled our kitchen in a previous house in about 2007 and I learned so much on GardenWeb back then. But I was too busy to ever post, and most of what I wanted to know had already been asked and answered. There are some things I would do differently this time, though, so I am hoping you all can help me nail things down. We used Ikea cabinets last time and loved them, and we will be using them again.


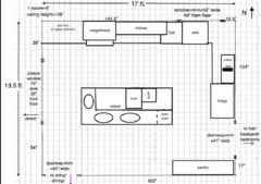
Our home was built in 1910 (it's a bungalow minus a front porch) and has a full basement. The kitchen space is 13.5x17 ft., but is currently separated into kitchen and eating space by a wall that will be removed in the remodel.


Here is the overview of the kitchen space. I have not shown current appliances, etc. because we are open to moving everything inside the kitchen. We do not plan to move or change the windows or door openings:



And here is the overall house plan:



Our goals for this remodel are to go from a small one-person kitchen to a kitchen that functions well for two people to work at the same time or for one person to be working while another can come in and easily access things like dishes, fridge, a sink. We would like seating just for 1 or 2 to have coffee or read cookbooks, preferably in front of the west window that looks out to the street. We would like to increase storage so we can move our pantry out of the hall closet. We plan to move the range to the north (outside) wall and put in a proper vent hood. We will most likely keep our current counter-depth S by S refrigerator and 30" slide-in range, and get a new DW.


Ours is a two-person household with no foreseeable changes. One of us is quite tall and one of us is left-handed. We both cook most of our meals from scratch. Sometimes we cook together, though often separately. Once our kitchen is more functional we hope to cook together more, but we definitely each need our space! My husband likes to BBQ and make cocktails, I bake and use the oven much more than he does. He/she who cooks, cleans up (usually). We informally entertain larger groups maybe a couple of times a year, and smaller dinners 1-2 times a month.


Must haves:

2 sinks

At least 3 linear feet of reach-in, shallow pantry space

2 work areas, at least one with 4 or more feet of counter space with no overhead cabinets


Wants:

MW on counter or (preferably) above

Dishes in upper cabinets and/or plate rack

bar/coffee area with a sink

storage for cookbooks in kitchen

We have talked about having a cooktop with separate elevated wall oven, but so far I have not been able to make it work well enough in my plans to justify the expense of ditching our very nice range.

We have a 3 ft. wide wall-hung pot rack where we hang our frying pans. It works very well for us and we (particularly my husband) would like to keep it. I am not sure I want to design an entire kitchen around keeping it, though!


Don't care or don't need:

sink under window

an island (the kitchen space could technically fit one, but I have never really wanted an island for seating. I probably could be convinced otherwise if it makes sense for function and storage. We may have a small freestanding worktop, though)


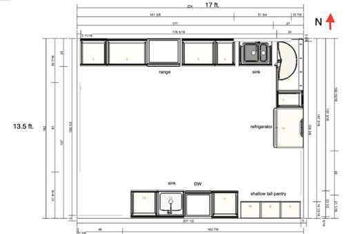
Here are the two layouts I am considering so far. I am trying to just pin down appliance location and pantry space first, so I have not shown upper cabinets yet


Layout #1




Layout #2




So, please tell me what you think of each layout. I forgot to put the possible worktop in Layout #1, but it could be there, too. Or, maybe, people can suggest something completely different I have not thought of! For me, the hardest question is where to put the refrigerator, DW and dishes. And note in the southeast corner, we cannot run full depth cabinets all the way to the east wall. Also, if we want a small table and chair(s) by the west wall window, that may crowd the northwest corner, so I do not want to move the range too far down along that wall.


Thanks in advance everyone!


Comments (5)

  • 6 years ago

    Of the two layouts, I like the first one better. The prep area is between the sink and the range, with a separate clean-up zone near the DR entry.


    But if you're going to put a cart in the middle of the space, maybe you could fit an island (with the minimum recommended aisles). It would keep the work spaces and through traffic separated. Keep backless stools tucked under the counter when not in use, but convenient for visitors in the kitchen.

    klynneg thanked mama goose_gw zn6OH
  • 6 years ago

    (As usual!) I like what mama_goose has posted.

    Based off of her plan, you could even think about having a cooktop with drawers underneath (for pots & pans) and then putting in a wall oven + microwave drawer (this way both items are easily reachable) in the area left of the cooktop. The area adjacent to the fridge could be the bar/coffee area (it's adjacent to a sink while being out of the way for someone working at the island/cooktop)

  • 6 years ago

    Really nice plan from mama-goose. The island gives you a great prep space. If you don't want seating for 4, you could eliminate one or two seats on the right and add more storage (about 12 or 15 inches deep) on the back side of the island.

    Of course, you have a lot on the back wall.

  • 6 years ago

    Thank you, mama-goose! I was hoping you might chime in as your suggestions always make so much sense to me. I have been trying to figure out if we could fit storage along the south wall if we have an island with seating. It might be pretty tight; as you said, minimum clearances. With both work areas behind the island, we would probably like closer to 46-48 inches between the island and the north wall cabinets. That leaves only 36-40 inches to walk behind seats at the island. Do you all think that is enough?

    Another option is to just run the pantry 4 feet or so from the east (right hand) wall and maybe have a bookshelf or cabinet at the right side end of the island rather than seating there, as Karenseb suggested. So no storage behind the island seating. I also like that this gives us the option of doing a cooktop/wall oven combo. if we decide it makes sense.

    Good food for thought! I still am not sure an island with seating is what we want in this kitchen, but that may be because we have never had one. I also do not find the seating as comfortable as regular table- height seating. Have others found comfortable counter-height stools?

    OK, I am off to stand in my kitchen and look at layouts again.

  • 6 years ago

    So, with a few tweaks, I like the island layout as I drew it below. I showed my husband my layout #1 above and the new one with the island, and he-who-often-has-no-peference also chose the layout with the island. I think the clearances work better with no cabinets behind the seating, even though we lose some storage that way. I would appreciate any thoughts on more details. On the island, would you leave the space to the right (east) of the sink 18 inches or make it 24 inches and have drawers facing the fridge wall?