kitchen layout help - preliminary layout for discussion
Good evening everyone, it's my first time posting for kitchen layout advice! I've been perusing the forums and appreciating all that you do here! I found your "how to ask for layout help" guide and have filled it out below.
A little background on us - my husband and I have lived in our small 1935 bungalow for 12 years now. We love our home but our existing kitchen is very tiny. I cook a lot and although our kitchen has been incredibly efficient and workable for the size that it is, I'm beyond ready to have a kitchen that reflects my personal style and has more room to cook and entertain. We are looking at an additional/remodel to achieve these goals.
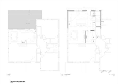
More background - I work as a commercial healthcare designer with access to drafting software so I have been playing around with lots of different plan reiterations. While I can sketch away to my heart's content, I don't know much at all about residential and/or kitchen design - I just have my own experience in my tiny kitchen to go off of. So I feel like my knowledge base is very limited in regards to the design possibilities of what we can do here! After exploring a lot of different layouts (including having a laundry room on the back west wall), I've narrowed down to this layout so far. My sketches include the original kitchen design and the proposed area of the addition just so you can have some context of where we're coming from and where we're wanting to go. We don't want to go out any further than 6' due to backyard restraints.


Floor plan notes:
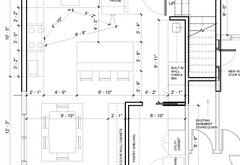
- Option 1: I really like the general kitchen layout, aisle widths, and countertop lengths in this design. The only thing I'm concerned about is the distance between the cooktop and refrigerator. It's a bit long at 14'.
- Option 2: This gets the refrigerator in the accepted kitchen triangle distance range. But everything feels so much tighter in this layout to me, especially the countertops (prep and cleaning zones) around the sink.
Introduction...
- My goals: update our kitchen style to my tastes, more countertop space, more storage, island seating, glass wall cabinets to display nice things including my collection of Staub/LC cookware, main level laundry, more room to entertain.
- Family composition: myself and my husband. No kids. 2 cats and a very senior dog.
- Number of cooks: I'm the primary cook. My husband assists at times. I cook almost every day excluding the occasional meal out so this kitchen needs to be very functional.
- How will our kitchen be used? Daily for cooking/cleaning. Occasionally on weekends for entertaining small parties of 4-6 close friends. Rarely for a bigger party. Our style is informal (at least currently - do you see our tiny original space?! ha!) I definitely see the new kitchen being a "hang out" space as that's where everyone currently gravitates to now when we host, even with it being tiny.
- How will dining room be used? We use our Dining Room infrequently (and sit on the sofa too often). I would like to start using our DR more often for nightly meals. Unsure if that's more of a design issue or a lifestyle issue.
- Would you like to open up the kitchen to adjacent areas? I prefer to keep our existing opening between the kitchen/dining and living areas. I like having some separation between spaces and the existing wall space is important as we use it and have nowhere else to put it as our house is small.
- What's under the kitchen? There is a basement under the existing kitchen/dining. The addition will be built over a crawlspace.
Where am I flexible?
-- The exterior door location is flexible pending final layout. The new stairs going to a future attic bedroom/bathroom behind this door cannot be relocated.
-- I am showing new windows on the west wall. I located the windows here because they look out into our backyard. The south wall has a view to our neighbor's house which should not be prioritized. Windows can be located anywhere in the new walls but the west wall is the logical place to put them. Note: I love sunlight coming through windows so natural daylight is important to me.
-- The sink does not have to be centered under the window. But I would like a view of the exterior on the west wall.
-- Honestly, the entire kitchen/laundry area is a blank slate except for the location of the new stairs.
If one can be fit...
- Baking center: I do not bake sweets a lot. I do roast a lot of veggies and bake casseroles, pizzas, and such. We have a countertop Breville toaster oven that I use almost daily. I'll use our full-size oven if something doesn't fit in the Breville.
- Beverage center: I am thinking we could have our coffee maker and tea kettle on the countertop next to where I'm showing a wall oven and prep sink. I wouldn't mind fitting in a wine refrigerator somewhere (perhaps in the run of cabinets across from the dining table?)
- Snack center: we do not need a snack center.
- Other stuff: I wouldn't mind having a little open shelving somewhere for knick-knacks/recipe books/cute stuff. I'd like to minimize the amount of this though as I see it as a cleaning issue and haven't bought off on the open shelves everywhere that I'm seeing on Instagram and such. I'm also contemplating some kind of wall-mounted enclume rack on the east side of the cooktop to hang my enameled cast iron skillets.
Appliances...
- Cooktop: We currently have a 30" slide-in Samsung induction range. I love it. I spend a lot of time cooking on this stove. I think I would like to upgrade to a 36" induction - one that I can place my pots and pans anywhere and not be limited to the traditional "circle" configuration. I am very open in regards to how this unit is configured (with or without oven).
- Oven: My oven is currently built into my range. I'm open to suggestions in regards to wall oven or range. We do not need a double oven.
- Warming Drawer: Again, I'm open. I currently have such limited storage that I use mine that's built into my range as a storage drawer right now. A warming drawer might be nice but not an absolute need?
- MW: Again, I'm open. Ours is currently located above the range which I don't mind in the existing kitchen but in my new kitchen I'd prefer to have a regular hood. I was thinking it might be logical to have it adjacent to the fridge in an oven/micro tall cabinet combo but am open to suggestions.
- DW: We have a standard Bosch with three slide-outs that I absolutely love and would like to move with us.
- Refrigerator: We currently have a standard-depth French Door which I really like. I like the idea of the counter-depth ones but I don't think they will give us enough storage. For example, ours is completely full at the moment with holiday cooking storage needs.
- True ventilation hood: a lot of recipes that I cook involve searing meat; my current hood is junk so I end up with grime building up on top of my fridge and anything else sitting out within proximity to the range. I need a good hood but not exactly sure what you mean by "true ventilation".
- Other? I have a professional size Kitchenaid mixer that I need to fit in somewhere. It currently sits out on the corner countertop in my existing kitchen.
- Sizes of desired appliances: I think I could really use the increased size of a 36" cooktop. A 36" refrigerator should suit our needs ok; I'm afraid of increased costs for going any wider and we don't really need the extra space except for on rare occasions like holiday cooking.
Pantry...
- I tend to purchase groceries as I need them so only keep a small stock of items on hand. I would be open to a tall pantry cabinet but unsure where it would be logical to locate it with our constrained footprint. I am thinking I could have shelving in the new laundry room for pantry items. Spices and other constant-use items could be stored out in cabinets in the main kitchen.
.
***** Very Important *****
Is there anything you:
- Cannot live without #1? I really love the idea of the island with seating as a central gathering point of our kitchen. I have contemplated a peninsula design but it feels so constrained to me. I like the openness of an island and being able to circulate around the kitchen space.
- Cannot live without #2? I really want custom-color painted cabinets. I've just started looking around and would appreciate recommendations. Crestwood is local to me and I plan to inquire with them.
- Definitely do not want? Unsure.
- Would like if you can find a way? I wouldn't mind having the dining table located more out of the circulation path but with our tight space I'm not sure if we can achieve this. We currently live with a lot tighter footprint than this so it's not a dealbreaker by any means - it'll still be a major improvement on status quo!
- Exterior Door Note: I plugged in a 36" exterior door because our existing door is 32". When we moved in, this opening was too small to bring our french door refrigerator in through and we had to remove the fridge doors to do so. We don't want to have to do that again. The new back door exits out onto a concrete walkway that links to our detached garage with patio seating in between.
Answering all these questions makes it a novel! :) If you've made it this far, I really appreciate your time. Looking forward to hearing your ideas! Thank you!
Comments (14)
Julie (KS - Zone 6B)
Original Author4 years ago
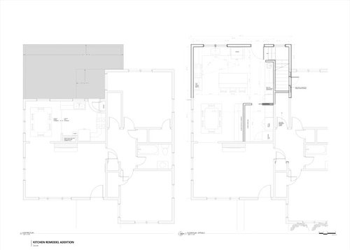
I realized the original plans weren't coming in legibly, here's another shot at it. Option 1.Related Professionals
Jonesboro Home Remodeling · Mount Vernon Home Remodeling · Tupelo Home Remodeling · Las Cruces Home Remodeling · Clarksville Kitchen Remodelers · San Francisco Kitchen Remodelers · Jacksonville Bathroom Remodelers · Amarillo Bathroom Remodelers · Juneau Kitchen & Bathroom Designers · Columbia Kitchen & Bathroom Designers · Plainfield Kitchen & Bathroom Designers · Leominster Kitchen & Bathroom Designers · Winona Kitchen & Bathroom Designers · Janesville Kitchen & Bathroom Designers · Olympia Kitchen & Bathroom Designers- 4 years ago
How exciting! I can't wait to see the gurus' suggestions! Is the small sink you show meant to be strictly for beverages or would you use it for prep?
Julie (KS - Zone 6B)
Original Author4 years agolast modified: 4 years agoHi blueskysunnyday! The small sink is totally optional. I am thinking it would be very convenient for filling the coffee maker and tea kettle, as well as emptying excess liquids. It could double as a second prep area in crunch times. And it’s a good spot for my husband to wash his hands coming in from his shop (he has hobbies that get his hands really dirty). I’m looking forward to hearing from everyone, too! :)
- 4 years ago
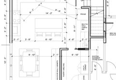
If you move the cooktop to the west wall, between windows, and move the small sink to the island, you can have separate clean-up and prep zones. You could prep facing the dining area, with a shorter prep path, and the small sink could still serve the fridge/MW/snacks area. DW and dish storage would be convenient to the table, and helpers could load or unload the DW without interfering in prep and cooking tasks. If you're using a full-depth fridge, I'd suggest pulling the cabinets on that run out to match the depth of the fridge box, for extra counter space and storage options.

New to Kitchens? Read me first.
Discussions--Extra-deep counters
Julie (KS - Zone 6B)
Original Author4 years agoMama goose - I really like your layout! These are some fantastic ideas - having the secondary prep/clean up area with the dish storage adjacency to the table is fantastic. What were you showing with the box and the arrow in the island across from the secondary prep/clean up sink? Thank you!
- 4 years ago
What if you had the small east countertop between the fridge and the wall oven? That would give you a landing spot when removing stuff from either appliance. I realize it does put the oven door in more conflict with the pantry door though--maybe experts like Mama goose can weigh in on how much of a problem that is.
Julie (KS - Zone 6B)
Original Author4 years ago@mcarroll16, I thought about that too and definitely like the idea of countertop access to both appliances. I just am not sure for the same reasons you listed. But is it really a problem in a two person household with a lot of single person (me) traffic in the area? I'm not sure...
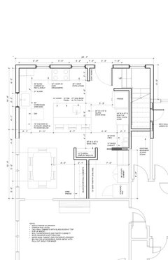
@mama goose_gw zn6OH, I've updated the layout to reflect your suggestions. I think it looks really good. I'm digging the prep zone/dishwasher area with convenient dish/cutlery storage in that area with the adjacency to the dining table. I am unsure what you were showing at the end of the island. I am thinking that a drawer cabinet would be good there for storing knives and other prep utensils? I am thinking a glass door base at the other end would be nice for storing things like recipe books and such. Just not sure if a glass door lower is a bad idea in a main traffic way (wouldn't want it to get broken). I just like the idea of being able to see in it but also keep dirt and dust off the items stored there.
I added a little storage display nook across from the island. I like the idea of open shelves there to give me an opportunity to put some cute knick-knack kind of items out and seasonal decor. If we add a countertop with outlets it also provides another location for random countertop appliances if needed.
I need to go appliance shopping to see what's available. I don't mind having an induction range with built-in oven in lieu of a built-in wall oven but there doesn't seem to be a lot of 36" wide induction ranges available.
Julie (KS - Zone 6B)
Original Author4 years ago@mama goose_gw zn6OH, there must have been some kind of lag on my browser because I didn’t see your response today until after I just posted my updated plan. I’m running errands now but will check out all your new input soon. Thank you!
- 4 years ago
Selection is definitely lower, but there are a several good 36" induction ranges available. Wolf, Bertazzoni, AGA, Fisher Paykel, Fulgor Milano. When I was shopping, one of the sales guys at a local retailer went out of his way to show me the Fulgor Milano "Sofia" range. He thought it was the best one they had in the store. And it wasn't their most expensive, just something he seemed to really believe in. So you might want to check it out, along with some others.
Julie (KS - Zone 6B) thanked mcarroll16 - 4 years ago
Laying out a kitchen is fun. It's exciting for homeowners. There's a lot of detail to it (and you've covered every base). But have you started design at the macro level, rather than going straight to the micro level? The big picture will affect what you will even have to start with in the Kitchen - adjacencies, circulation, structure, etc. Part of that will involve appliance and island location, but you are nowhere near brand selection.
- For instance, how do you propose the new stair take a chunk out of the corner of the house - what happens to the bedroom roof? How do you get the ceiling height for the stair going up to the attic? Why isn't the stair fully stacked on top of the stair to the basement? How does this whole addition's roof tie in to the existing roof within the existing 'L' footprint?
- Have you realized you need a beam, and quite a large one for this proposed span? You have an existing roof, and unless you are completely removing it, you will need to support it. This beam will define the spaces below it as well.
- Can you open up some circulation? The Kitchen, which sounds like the most-used function in your lifestyle, has a circuitous route to get there and it and it's outdoor living connection is kind of disassociated with the rest of the house.
- It looks like a 2 bedroom, "cozy" house (capturing the attic is a whole 'nother thread). The most successful remodel projects are ones where the changes are appropriate to the house and what the house can offer. It's acceptable to want a huge, great kitchen, however, this kitchen seems to dominate the house in function and size. It seems a more proportionately sized kitchen, maybe giving up some space to allow better circulation and utility functions might serve well.

Julie (KS - Zone 6B)
Original Author4 years ago@mama goose_gw zn6OH, thank you very much for the additional information! Thankfully my husband works for an HVAC (and plumbing/electrical) company so he will be in charge of the hood. We haven't gotten that far in the planning process but it'll be good to know to plan for it to overhang by 6". On the oven note, I'm really unsure how that will play out. I like the idea of having a range where everything is all together in my work zone. It just depends on what we can find that suits our needs and budget. If it ends up as a range, we can still plan on the microwave being there in some kind of cabinet configuration.
@3onthetree, you've raised some excellent questions. The start of the new stairs will be inside the new addition. The middle section will go over what is currently just an open niche in our bedroom (which we will enclose as a small storage closet). A few of the stairs will locate in what is currently some built-in storage over the basement stairs, accessed from the storage niche in our bedroom. The location of the starting point of the stairs will be a balancing act between keeping enough head height where the support beam will run across the stairs and the distance the stairs extend out into the usable attic floor space. We need to maintain head clearance under the beam but we also want to maintain as much usable attic floor space as possible so we have as much floor space to work with as possible. We do plan to eventually put in a bedroom and a bathroom in the attic; we have consulted the IRC 2018 (which is what our local jurisdiction requires) to ensure that we're meeting the required minimum room areas and ceiling heights.
As for the roof - I need to preface this with the fact that I'm not an architect - but this is the roof design that I've come up with so far. I'm going to pick my boss's brain (she's a licensed architect) to see if she thinks there are any better ways to design this. But it's what I've got so far as a starting point. Exterior modeling is not my forte so again, this is rudimentary. I would like to design some kind of "eyebrow" over the exterior door that will shelter from rain, even if slightly. Just haven't gotten that far yet.
And yes, we're expecting we will need a laminated beam to run across where the exterior wall will be removed. We will be hiring a structural engineer to assist with analyzing everything and also to help determine what we need to do for our attic floor joists. We know that we will need to sister in bigger boards to beef everything up to support the finished space - just need to find out what will actually be required. To your earlier point (the stair design), once we've got an engineer on board and determine the size, height, and location of the structural beam, I can nail down exactly where the stairs should start.
In regards to circulation, what is really funny is that you sketched in an opening exactly where one used to be in the original design of our home! Before we purchased our home, it was remodeled by a contractor who walled in an existing doorway into that hallway in order to make the kitchen more functional. I can't imagine just how tiny that original kitchen must have been with another doorway there! But, back to your point, with the size of our house, I really don't want to sacrifice usable space for additional circulation. I go on walks daily with the purpose to get extra steps in my life. A few in my house isn't going to hurt anything and those with far larger homes walk many more steps than we will. Not an issue for us but I really appreciate you steering me to think about the design from different perspectives!
In regards to sizing things proportionately to the home, we have had LOTS of these kinds of discussions over the years. "Cozy" is a nice way to describe our house :) When first putting pen to paper, I was actually looking at a smaller addition. And then the contractor we spoke with said we might as well go a little bit bigger because there are so many costs associated with just getting people on the job that a few more feet in this size of addition/remodel won't make a huge cost difference, beyond just paying for the normal SF costs. Also, while I don't feel the need to deep dive into all of the personal aspects of our decision-making on here, we did spend a few years of our lives mulling over whether we wanted to stay in our home or get into a bigger, more expensive house. We "shopped" a lot during that timeframe. And, we ultimately decided to stay in our smaller home for a variety of reasons. Our personal attitude is a bit of a "YOLO" approach to our home; we have decided to make it the way we want it as we're planning to stay here for years. We feel like it's the right decision for us. So unless the bids come in astronomically high and just don't make sense, we're going to proceed with the project. A bonus for us is the fact that my husband is very experienced in MEP (and licensed on the HVAC side of it) so he can take care of a chunk of some of the expensive components of this kind of project himself, which will help bring down our project costs. What he can't complete, we will hire out through his employer, which will be at a discounted rate. So, that's how we ended up where we're at, in a nutshell. I really appreciate you asking questions that help us think through different aspects of our project. Thank you very much!- 4 years ago
Ok, a little more to the point:
- Your stair as shown does not work. It won't work without a huge undertaking of a partial 2nd story and some structure that may involve new footings in the basement. You do not have the height to get under the back wall, and you do not have the ceiling height in the attic. In YELLOW are the areas, according to your 3D rendering, of where the stair can be located.
- The beam determines spaces, the beam size determines whether you have adequate footings and whether it is easy to install, and the depth controls how your space feels. If you were cognizant of this, you would have at least extended out the laundry wall, shown in BLUE, to shorten the length of the beam.

- According to your 3D rendering, the new roof is not optimal. Having valleys adjacent to one another is a disastrous risk taking. You can install cripples, low-slope roofing, etc but it is always better to start from a scheme that doesn't require complex detailing and construction to try and make it work.- With regards to a "more appropriately" sized Kitchen, it is not about the size of the addition's footprint. It is the space inside, how it's allocated and how it presents itself. So let's say you are going to spend $200K on this addition, and that is half the current value of your house. Does your scheme make good use of that money? Wouldn't it be nice, after spending that much and going through that trouble for a year or two, to have an addition that maybe opens up to the backyard? That promotes outdoor living? Or is winding through the house, even if you never entertain guests, peering over the sink to the backyard, acceptable without even trying for other schemes?
So from what I see so far, it is time to hire an architect. It is not a bad thing to not know what you don't know. An architect, while coming up with schemes representing your programming, will inherently know about the stair, beam, and roof situations. They will immediately dismiss those schemes that can not work, and not waste time on those. And they may bring some other things to the design that you didn't even think of, or thought you couldn't get so resigned or settled without them.











mama goose_gw zn6OH