Software
Houzz Logo Print
kjessica13

Kitchen Layout Help - please! :-)

last year

Hi everyone!


I’m hoping someone on here might be able to help us think creatively about a floor plan for our kitchen renovation!


We’ve hated our kitchen for the 12 years we’ve lived in this house, and we’re finally ready to renovate. My current biggest problems with the kitchen are the lack of counter space and storage space. It’s not a large space, but I feel like we could make better use of it.


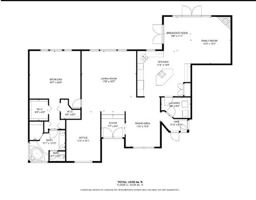
I’m attaching a floor plan of my house (it doesn’t include the kids bedrooms which are behind the laundry room, but the relevant parts of the house are included).


Our kitchen table is in a separate room -- it’s technically in the family room, which is open to the kitchen. We use the kitchen table multiple times a day. We would like to bring the kitchen cabinets around the corner (and possibly down the wall beside the kitchen table) to make the area feel more cohesive, as well as to add additional storage space.


There are 4 of us at home. Mom and dad (mid-40’s), 15 year old and 11 year old girls. Two large dogs as well. I’m usually the only one cooking, although the kids like to sit at the breakfast bar to do homework or chat with me while I work. When we host the extended family (several times a year), there are 12-14 people, and people do tend to congregate in the kitchen. I love to bake (as does my youngest), and I do a lot of cooking.


We are in Florida, so we are on a slab. We don’t really have any way to move walls around the kitchen, and the window has recently been replaced, so I wouldn’t be interested in moving it.


One thing I really want is to move my sink out of the corner. I absolutely hate it there -- I get completely boxed in, especially if I have the dishwasher open and someone needs to use the trash pullout. I thought moving the sink down a few feet to be under the window would be a relatively easy change. I wondered about having the sink and dishwasher in the island, but I don’t know if it’s possible to run water there.


So far we’ve gotten 2 plans from different kitchen designers, but neither is exactly what we’re looking for yet. I went ahead and drew out what we’re thinking of on a free kitchen planner online to get an idea. It’s not ideal, but it was free and gives me something to help visualize the space. That’s what I’ve attached here. The heights of the cabinets are not consistent because I was having trouble with that part of the program, but the base cabinets are accurate to what I’m currently thinking.


I’d like to get as much counter space and storage as possible.

  • Appliances - I want double ovens and a separate cooktop with a full venting hood above it. Standard dishwasher. Counter depth fridge with french doors and freezer below. A counter height beverage fridge, and a free standing ice machine
  • I'd like creative storage for all the small appliances that don't sit out -- Air fryer, Rice cooker, instant pot, kitchen aid mixer. Would an appliance garage in the corner to the left of the sink be a good idea?
  • Pantry - I worry about having enough space for pantry items.
  • The only place I could find for the trash pull out cabinet is in the island, and I had it facing the sink. It would then be placed at a different direction from all the other cabinets that make up the island. I'm not sure if that's a mistake.

Other thoughts

  • With the current design, the dishwasher is pretty far from where I’ll store dishes. I’m used to it being right underneath the dish storage cabinets. Will I regret that? Is there a way to fix that?
  • Similarly, I don’t love having the trash in the island, but I couldn’t figure out any other way to put it close to the sink.

Must Haves

  • Deep, wide sink
  • Large hood vented outside
  • Sink not in the corner
  • Bring the cabinet around corner to the dining nook
  • Island with seating
  • Beverage fridge
  • Ice maker


I'm open to any suggestions or ideas - and I'm so grateful for anyone who comments. Thank you!



Floor plan of the house (minus the kids' bedrooms)



Proposed floor plan of kitchen (I can't get it to be oriented the same way as the house floor plan - the kitchen window is well marked on both). I'm planning for a 12 inch overhang over where I have the barstools on this floor plan, but I wasn't able to do that on the program I used.


I also took some elevation/face view pictures from the design site I used.


Wall with refrigerator



Wall with window (and sink)




Wall with pull out pantries (and location of current pantry).


Wall around the corner into the eating nook (island also visible). I have here a built in ice maker, an undercounter beverage/wine fridge, and then a small pull out to serve as the liquor cabinet.



Side view of island from the eating nook (overhang on island would be where the barstools are).



Thank you for any advice!! I'll try to answer any questions.

Comments (5)

  • last year
    last modified: last year

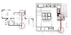
    I superimposed them to help a little.

    "Turning the corner" with a cabinet does not connect the Family Room with the Kitchen more than it was before. It is still the same circulation and visual compartmentalization, only with a tighter clearance point with the breakfast table and patio door. This appears to be a basic refresh, meaning pretty much sticking with the current layout as was originally conceived and getting new cabinets and appliances.



    kjessica13 thanked 3onthetree
  • last year

    Thank you for responding!


    The superimposed image is really helpful to see.


    You're right - it is essentially a refresh, although we're open to moving things around. The plan above moves the sink slightly, the cooktop out of the island, and the oven to a different wall, but the essentials of the kitchen are the same.


    We've had a 24 inch deep toy chest sitting on that wall between the breakfast table and patio door for the past 10+ years, so as far as usable space, I'm not worried about any issue with clearance if we extend the cabinets around the corner. I do want to make sure that having upper cabinets there won't look odd. My main reason for wanting to extend the cabinets is to try to get a little bit more space in the kitchen. I liked the idea of having a little bar area there.


    I'm also debating whether the sink would be better if we moved it (along with the dishwasher) to the island instead of having it under the window.


    Also, seeing the superimposed image above, I'm wondering if I don't have enough clearance to the right of the island. (I currently have 48 inches.)

  • last year

    Is there a reason you need 2 entries to the laundry room? Could you close off the one in the kitchen and use that wall for cabinets?

    kjessica13 thanked Chris T
  • last year
    last modified: last year

    Sink...I think it would be much easier and may not require hammering into the slab if you kept it where you show it now (under the window). You can usually move plumbing a bit above the slab. I would check with someone who would know for certain in your situation.

    Could you please clarify where the "bottom" wall ends (on the right):



    Are you changing the wall or is one not correct? It also looks like there's a door there, but not in the left pic.

    I assume the Laundry Room is staying, correct? If so, I also suggest closing up the door to the Kitchen. It would be better not to have traffic to/from the Laundry Room in the Kitchen. The other door is very close.

  • last year

    Thanks to both of you!


    We definitely don't need 2 doors into the laundry room. I've kept the one into the hallway closed for years and just use the one into the kitchen. Removing one of the doors is an option we've been talking about. From the standpoint of making the laundry room most functional, removing the door into the kitchen would make more sense (mostly because the hallway door is on an angled wall that makes it still in the way when fully opened). But we did talk about possibly removing the door between the kitchen and the laundry room and putting cabinets on that wall. We wondered, though, if doing that would require us to make the island smaller than we want.


    I've attached a picture trying to answer your question. We are not moving a wall. The picture on the left is correct. When I drew the floorplan for the picture on the left I was trying to indicate that that space is just open. I'm attaching a picture that might help, as well as a floorplan where I drew in two measurements that might help.


    Thanks!


    This picture is of the area where I wrote "136" on the above picture - it's a desk and wine storage next to the built in pantry.



    If more photos of the existing kitchen might help, I'm happy to take some.

Sponsored
WellCraft Kitchen and Bath
Average rating: 5 out of 5 stars69 Reviews
Virginia’s Full Service Design-Build Remodeling Company