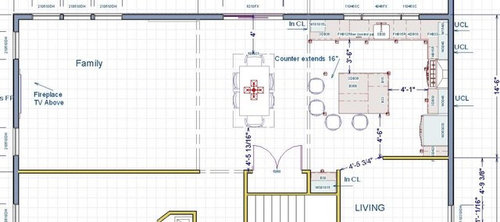
1st attempt - recessed Kitchen plan- help!
12 years ago
Related Stories

KITCHEN DESIGNKey Measurements for Your Kitchen Design
Get the ideal kitchen setup by understanding spatial relationships, dimensions and work zones
Full Story
BATHROOM WORKBOOKStandard Dimensions and Measurements for a Primary Bath
Create a luxe bathroom that functions well with these key fixture dimensions and layout tips
Full Story
STANDARD MEASUREMENTSThe Right Dimensions for Your Porch
Depth, width, proportion and detailing all contribute to the comfort and functionality of this transitional space
Full Story
COLORPaint-Picking Help and Secrets From a Color Expert
Advice for wall and trim colors, what to always do before committing and the one paint feature you should completely ignore
Full Story
KITCHEN DESIGNHere's Help for Your Next Appliance Shopping Trip
It may be time to think about your appliances in a new way. These guides can help you set up your kitchen for how you like to cook
Full Story
REMODELING GUIDESWisdom to Help Your Relationship Survive a Remodel
Spend less time patching up partnerships and more time spackling and sanding with this insight from a Houzz remodeling survey
Full Story
KITCHEN DESIGN9 Questions to Ask When Planning a Kitchen Pantry
Avoid blunders and get the storage space and layout you need by asking these questions before you begin
Full Story
ORGANIZINGHelp for Whittling Down the Photo Pile
Consider these 6 points your personal pare-down assistant, making organizing your photo collection easier
Full Story
BATHROOM DESIGNKey Measurements to Help You Design a Powder Room
Clearances, codes and coordination are critical in small spaces such as a powder room. Here’s what you should know
Full Story
SMALL SPACESDownsizing Help: Storage Solutions for Small Spaces
Look under, over and inside to find places for everything you need to keep
Full Story

David
jeff_4
Related Professionals
Charlotte Furniture & Accessories · Fort Carson Furniture & Accessories · Pinehurst Furniture & Accessories · New Hope Furniture & Accessories · Aspen Hill Interior Designers & Decorators · Clinton Township Interior Designers & Decorators · East Hanover Interior Designers & Decorators · Burlingame Electricians · Carlisle Decks, Patios & Outdoor Enclosures · Crystal Lake Decks, Patios & Outdoor Enclosures · Green Bay Decks, Patios & Outdoor Enclosures · Larkspur Decks, Patios & Outdoor Enclosures · Lenoir Decks, Patios & Outdoor Enclosures · St John's Kirk Decks, Patios & Outdoor Enclosures · West Hills Decks, Patios & Outdoor EnclosuresmirucaOriginal Author