Software
Houzz Logo Print
anenemity

Is this an efficient, acceptable kitchen layout?

Sorry in advance about the length of this post. I am trying to include all the info that is recommended in Beuhl’s FAQ.


We need to replace several of our appliances, and we have decided to rework our layout instead of a simple 1:1 swap. The appliances are undersized without room in the current layout to simply replace with bigger versions.


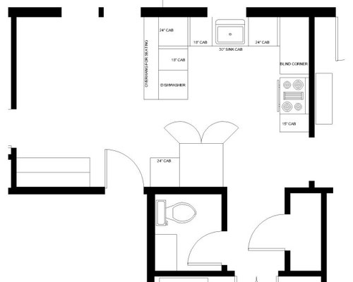
Here’s the empty layout. Written measurements include window and door trim even though the drawing itself does not. I forgot to label it, but the cased opening on the right-hand wall above the pantry leads to the family room.




Here’s the current layout.


Things we don’t like about current layout:


- Oven. It is only 27” and doesn’t work very well.

- Cooktop. I hate having it on the peninsula, and the cabinet underneath is mostly taken up with the downdraft ductwork. For whatever reason, I end up doing most of my prep in that little sliver of counter between the fridge and cooktop. Not ideal.

- Refrigerator. Undersized for our family of 6, and the single door blocks the passageway when open because of its position relative to the peninsula. Mostly an issue when we’re trying to put groceries away and have the door open for longer than usual.


Things that I like, or at least don’t mind, about the current layout:


- Size. I cook from-scratch meals daily, but I am a solo cook. There are other people coming and going, of course, but usually just to retrieve a cup or some such, not to help substantially with the meal.

- Pantry. It’s a bit out of the way, but it’s fine. I usually pull out the ingredients I need before I start cooking and am not going back and forth all the time. People can also get their own snacks without interfering with the work zone (why they’re getting snacks when I am clearly almost done with dinner is a different issue). It’s a good size, too.

- Dishwasher. Most of my bigger items are stored in the blind cabinet immediately adjacent to the dishwasher. As a result, I have to unload those items onto the counter first, then close the dishwasher to put them in the cabinet. On the other hand, most of my bulky stuff gets hand-washed anyway. My flatware is stored in the drawers of that same cabinet, which is very easy to unload without even having to pivot.

- Cabinet on breakfast room side. I store the kids’ board games and coloring stuff in this cabinet for easy access.

- Eat-in. We eat exclusively in the kitchen (and the dining room a few times a year), so seating is a must.

- Closed concept. No desire to open it up to the adjacent family room. I really don’t want to know what they’re doing out there.


About us and our house:


- Family of six – four kids ages 4-11, plus my husband and myself. I cook from scratch daily, but I am the only cook. Everyone helps with cleaning up afterward.

- Modest middle-class neighborhood in the suburbs. 1980s neighborhood, well-kept but not extensively renovated. A huge kitchen would be an aberration here. I could be swayed into combining the kitchen and breakfast room, but it would have to be a really compelling argument with lots of added benefits.

- We don’t entertain or have parties, and we are past the point of deluding ourselves that we might someday become that type of people.

- Crawl-space foundation, so relatively easy access to plumbing and electrical.

- I am open to changing/moving windows, but it would probably need to be completed in a future phase. Planning around that future change is fine, though. I don’t care if the sink is off-center or even under the window at all. It faces north-ish (and is under a porch overhang besides) so it doesn’t get direct sunlight.

- We want standard size appliances – 30” range, 24” dishwasher (keeping existing), 36” French-door fridge (counter-depth if absolutely necessary, but we could use the full capacity of a standard depth). We don’t need wall ovens. We have a microwave but don’t use it much.

- Single basin sink

- We are going to be working with Ikea cabinets, so no 21”, 27”, or 33” sizes. Technically they have a 21” but not with drawers. And of course, drawers are preferred wherever possible.

- We park in the garage and bring groceries in through the garage door. Kids don’t really use that door much. The laundry room is a dead end.

-We don't want to renovate the entire first floor, we just want a functional kitchen. Yeah, I know the half bath would be better placed elsewhere, but it's not going to happen any time soon.


Here’s a first stab at what I could do. I have left off upper cabinets for clarity. 2” filler pieces at corners and edges.



One of the 18” cabinets between the sink and the DW would be a trash pullout so you could stand at the sink and have the cabinet and the dishwasher open at the same time. Flatware and dishes would then go in the other 18” cabinet, which could also be open at the same time as the DW for easy unloading.


I still have a bit of a traffic jam with the fridge, but swapping the fridge and cabinet and using a French door model helps somewhat. Counter depth would add an additional 5” of circulation space.


I know some would consider the counter overhang redundant with the kitchen table there, but I really think we would use both in equal measure. If I eliminated the overhang I could shift the peninsula even further into the breakfast room and free up even more space in front of the fridge.


Any other creative solutions I can try?

Comments (40)

  • 4 years ago

    I'd go counter depth frig. I'd skip the overhang and move the peninsula over. More cabinet width to the left of the sink base. All drawers for lowers. 21" interior sink in a 24" sink base. Wider 3 drawer cabinet to the right. 30" induction range. Either a Bosch or Frgidaire. I would not choose downdraft ventilation. I'd run the duct through the top of the uppers to the outside wall.

    SYinUSA, GA zone 8 thanked dan1888
  • 4 years ago

    Seriously look at RTA cabinets sites online. Many styles are the same or less than IKEA.- White Shaker Door 10' X 10' start at $1500 The IKEA cabinet boxes are pressed material not plywood.

    RTA cabinets give you more size options. You can get pre-assembled RTA cabinets for maybe $100-500 more than the RTA flat shipped cabinets. Most have extended warranty options too.

    RTA cabinets have 33" lazy susan corner cabinet options, which fit even dutch oven pots. They also offer more pantry cabinet options. All the RTA sites/ stores offer free kitchen design.


    I agree w/ Dan1888 just get a freestanding range or slide-in and get an exhaust that fits under the cabinets. If you get an electric or induction range then you can get range hood for less than $200 that provides the required 300CFM. The under cabinet range hood should be 6 inches or less in height, which allows cabinets with storage above the range.


    Also the 36" wide counter depth french door refrigerators will give you about 23 cu ft at most. Is that enough space with 6 people?

    SYinUSA, GA zone 8 thanked acdclosgatos
  • 4 years ago

    Not normally a fan of islands, but in your case it could be a good solution. This layout would get the traffic out of your work area, put your stove on an outside wall and eliminate a corner. See if the measurements work..




    SYinUSA, GA zone 8 thanked latifolia
  • 4 years ago
    last modified: 4 years ago

    Do you bake much? I think latifolia's design would be good. Where you show the fridge and 24" cabinet might be a good spot for a baking center and you'd have access to the island top for a work space too. Or you could put an induction cooptop where she shows the range, and add and oven and micro where you show the fridge.


    SYinUSA, GA zone 8 thanked decoenthusiaste
  • 4 years ago

    Here's Dan1888's idea drawn up:


    I admit I had not considered the 24" sink base. I think 24" is the smallest basin I want to use, but based on other threads here I think I can manage that in a 24" base.


    acdclosgatos - I don't know what RTA companies you have found that are comparable in price to IKEA in an apples to apples comparison. "Starting at $1500" sales pitch does not include drawer bases everywhere. I am happy to be wrong if you can direct me to a specific company, though.


    Latifolia and decoenthusiaste - Here's your suggestions drawn out.



    I left 40" for the aisles in this rendering, which makes a 3' deep island. Even without an overhang on the island there's no room for a baking center on the bottom wall. I have never had a problem baking on my regular counters and don't need a dedicated station for it. I really think it is too tight and ultimately causes more problems than it solves. If I shorten the breakfast room windows I could extend the kitchen into the breakfast room, but does stretching it out help much?


    Jan Moyer - I know this is the builder-basic kitchen from the mid-80s, but it is hard to find pictures of anybody renovating within these parameters! Most Houzz pictures show people who have blown out walls and/or added on to their house to make a much bigger kitchen. I know such kitchens exist, I guess they're just not impressive enough to get photographed for Houzz! I have taken to scouring real estate listings to see if I can figure out how other kitchens of the same era are laid out. Annnyway...here are your suggested changes:



    With the shelving on the breakfast room side, I would also lose the cabinet that faces that direction, so I changed it to a blind corner. I could potentially do a lazy susan cabinet there instead - I don't think I need two of the big pullout racks. For the breakfast room side, I picture one of the all-time greats - Circus Peanut's wonderful old kitchen:



    The mess that would end up there might drive me batty, but it's something to think about. I am not trying to be negative, I am just trying to be practical about our lifestyle and the limits of my patience with my kids' messes. It's something I have been considering, which is the reason I had Circus Peanut's picture handy. (And if you're reading this, CP, those countertops are still so beautiful I want to cry). On the plus side, the corner cabinet on the peninsula shortens the entire thing, so that a full-size fridge would probably be fine.


    I am not sure about the tall pantry beside the fridge. There is a bank of 4 light switches just inside the garage door that would need to be moved to....where? The side of the cabinet box? They fall into what would be the backsplash area with a traditional upper/base cabinet setup.


    Believe it or not, I have empty cabinet space already as it is (the small 12" cabinet beside the sink, under the cooktop, two and a half shelves of the cabinet over the DW, as well as the base cabinets in the 5' bank beside the garage door - all empty), so more cabinet space is not necessarily a priority, especially with all-drawer base cabinets where accessibility is improved.

  • 4 years ago

    If you put the back of the refrigerator against the wall of the powder room, you can build pantry cabinets with shallow that open on each side, (or a pair vertical drawers that pull open to the front) that are sized to fit beside the refrigerator and then add an overhead cabinet to top both pantry units and the refrigerator great place for seldom used and/or seasonal items -- or for daily use items that are lightweight such as those plastic storage containers that can be reached and moved with curve end BBQ tongs or one of the reaching tools intended for light weight objects.

    Doing that leaves you two walls -- exterior wall for sink and the wall right angled to it for the stove and hood. A range with both oven and stove top will take up a lot LESS space than wall ovens.

    If you can put your dishwasher left of your sink, you will be able to create more easy access to the corner cabinets.

    https://www.pinterest.com/pin/586171707731861285/

    SYinUSA, GA zone 8 thanked suezbell
  • 4 years ago

    The dishwasher must be NEXT TO the sink: if you rinse things before putting them into the dishwasher, you don’t want to be dripping on the floor between the sink and an out-of-the-way dishwasher.

    SYinUSA, GA zone 8 thanked felizlady
  • 4 years ago

    Never ever put the dishwasher behind you u could also trip into the door. Next to the sink plenty of room there

    SYinUSA, GA zone 8 thanked Lisa Dipiro
  • 4 years ago

    Dishwasher next to the sink using same plumbing supply and drain lines -- saves you money, too.

    SYinUSA, GA zone 8 thanked suezbell
  • 4 years ago

    Always ask the grocer bagging help to separate your refrigerated items from your the rest of your groceries. If possible, bring along an insulated bag to put them in. You might even consider a small rolling cart / table to hold your refrigerated groceries immediately beside/in front of your refrigerator to expedite putting them in -- something you could roll outside for a BBQ and park in against the dining room wall out of the way when not in use. (You might not need to add any towel bar that comes with it or you could attach "S" hooks on it to hold your plastic grocery bags.)


    https://www.homedepot.com/b/Furniture-Kitchen-Dining-Room-Furniture-Carts-Utility-Tables-Kitchen-Carts/N-5yc1vZcf2c 

    https://www.containerstore.com/s/kitchen/carts/origami-kitchen-cart/12d?productId=11001568

    https://www.wayfair.com/Williston-Forge--Elystan-Kitchen-Cart-X113628294-L56-K~W002517183.html?refid=GX528897189808-W002517183&device=c&ptid=954449356077&network=g&targetid=pla-954449356077&channel=GooglePLA&ireid=97896906&fdid=1817&gclid=EAIaIQobChMI__fA64P_8QIVkLWzCh3mtAg8EAQYCCABEgIO_vD_BwE


    https://www.kitchensource.com/kitchen-islands/cs-ki310.htm?p=CS-KI310

    SYinUSA, GA zone 8 thanked suezbell
  • 4 years ago

    Lisa and felizlady - I never considered tripping over my dishwasher door! I grew up in a house with the DW on the perpendicular cabinet run and I don't ever remember it being a problem, even with 6 kids in the house. One of my kids is a next-level klutz, though, so it could be an issue for us. Swapping the DW and 18" cab in the peninsula would actually put the DW closer to the sink than if it is next to the sink, and might eliminate the tripping hazard since it would be pivoting rather than stepping. It is something to consider, thank you.

  • 4 years ago
    last modified: 4 years ago

    Why not take the island concept and improve it. place range and fridge on window wall on opposite ends . place sink on island and make it longer. wouldnt it be nicer to have that tighter work triangle and straight runs for drawer base cabs? go ahead and do some counter and pantry area over in corner to fam room . i think id leave the bathroom wall free as it is a walkway

    SYinUSA, GA zone 8 thanked herbflavor
  • 4 years ago

    herbflavor, here's a quick drawing of your suggestion.



    I am intrigued by this idea. To get a good size on the island and not intrude too much in the breakfast room, I left out the counter/pantry you mentioned. I only have 11'8" between the top and bottom wall, so clearances are tight all around. The aisle between the fridge and cabinet box is only 3'3" as drawn, which is far too narrow for standards. The sink and DW should probably be flipped for uninterrupted counter space. I like that this keeps traffic out of the work triangle. No room for upper cabinets anywhere, though.

  • 4 years ago

    Herbflavor, I like your idea: it effectively makes it a galley kitchen, which is very efficient. And cheaper without special corner cabinets.


    Were that done, there would be two options: a deeper island or a less deep one with 12" cabinets against the back wall.


    SYinUSA, GA zone 8 thanked latifolia
  • 4 years ago
    last modified: 4 years ago

    reverse the range and fridge as a hypothetical. the fridge can go to about within 3 inches of the far corner wall...depends on model a bit. But if you want to leave the fridge between all those windows you could connect the island to the right wall skipping the double walk around and make a closed galley.... and fridge doors have clearance. Whether the island with aisles around or two straight runs forming a galley I think I prefer this to the U shapes shown. You have enough at nearly 12 feet across to consider a few ways. Lucky you.

    SYinUSA, GA zone 8 thanked herbflavor
  • 4 years ago

    Here's the same galley with the fridge and range swapped:

    I like this better than the previous version. The bulkier fridge in the corner makes more sense visually (even though I typically don't like them against a perpendicular wall) than between the windows. I also like the idea of having my prep space at the window since I spend far more time chopping and mixing and such than I do at the sink. However, the proportion of space devoted to circulation is high. Is this enough cabinet space, especially given that there's not much room for uppers?


    Here's the closed galley concept:


    I definitely would not want to swap the fridge and range in this layout. This version reduces the amount of floor space devoted to circulation by quite a bit but now the space in front of the fridge is tight again. I had to scale back the peninsula depth to just the 24" cabinet box to avoid the door trim and give a little bit of extra room in front of the fridge. Even so, there's still just 39" from fridge to counter. These rough drawings also do not include the 1.5" countertop overhang, so we're looking at 37.5" of real space. Our current fridge has 36" to the edge of the peninsula in front of it. Is switching to a French door version and adding 1.5" enough to make that more comfortable? If I shorten the length of the peninsula, we're back to the question of sufficient cabinet space.

  • 4 years ago
    last modified: 4 years ago

    Don 't put your refrigerator in a corner where the adjacent wall impedes opening and closing of the doors/drawers all the way to remove drawers and shelving for rearranging and/or cleaning. If you must put your refrigerator against that outside wall, put it beside the dining area and consider building a shallow wall/cabinet beside it facing the dining area that hides the coils behind the refrigerator but doesn't impeded opening the doors all the way.

    SYinUSA, GA zone 8 thanked suezbell
  • 4 years ago

    Thanks to everyone who commented for your help. You have given me a lot to think about!

  • 4 years ago

    I have the same kitchen with the dishwasher in the peninsula. If you put it to the right of the sink you will need more than 18” to open the door and you will hit your stove. If you put it to the left of the sink the only cupboards where you can put your dishes are between the sink and stove. Something to double check, if it works for you great!

    Can you shift your garage door over to the left? This would give you cupboard space beside the fridge, which is where I put all of my dishes.

    SYinUSA, GA zone 8 thanked Andrea
  • 4 years ago

    Andrea - good points about the DW left and right of the sink. I would have to leave at least 3" of filler between the base cabinet and the stove to open the DW fully if put to the right of the sink. Other users have mentioned the peninsula DW being a tripping hazard, or causing water dripping between sink and DW. Have you found that to be the case in your home? Is your DW on the end of the peninsula or at the corner of the U?


    I will check on moving the door. There are brick steps from the garage into the house (about 27" total rise), and I don't know if I can move those and still have adequate parking space for both vehicles. Clearances are tight already! As is, I can put a 24" base and uppers between the fridge and garage door. We keep all our everyday plates, bowls, and cups in a 27" upper cabinet and it seems to be adequate. Switching to the deeper IKEA uppers should give us about the same space there.

  • 4 years ago

    My dishwasher is at the end of the peninsula. I rinse my dishes in the sink and turn to put them in the dishwasher, the door of the washer covers 90% of the floor, so no issues with water. As for tripping, not sure how that would be possible, where would one be going that you would trip over the open door?

    I can’t say I love my kitchen and I have been on houzz for years trying to find a solution but most are knocking down the dining room wall or making it wider, I don’t need a 20 ft kitchen, or have any desire to pay for all of those cabinets and my garage is on the other side of my kitchen, like yours.

    SYinUSA, GA zone 8 thanked Andrea
  • 4 years ago

    Andrea - thank you for the DW info. It is helpful! How is the rest of your kitchen laid out? I don't think I have to be enraptured with my kitchen every time I cook; I am just trying to make the best of it without a full first-floor remodel!

  • 4 years ago

    here is the view from the bottom corner

    SYinUSA, GA zone 8 thanked Andrea
  • 4 years ago

    here it is from the bay window

    SYinUSA, GA zone 8 thanked Andrea
  • 4 years ago

    haha as you can see I am in dire need of a reno!

    SYinUSA, GA zone 8 thanked Andrea
  • 4 years ago

    Is this any better? I feel like I lose quite a bit of cabinet space, though there's more opportunity for upper cabinets than in the galley layouts I tried.


  • 4 years ago

    If you run the cabinets up to the ceiling, you will have more storage space in the same linear footage. Also the space above your current fridge is wasted. One advantage of a tall, counter-depth (25") fridge is better use of the space above.


    From experience, I can attest how much of an improvement getting traffic out of the kitchen makes.

    SYinUSA, GA zone 8 thanked latifolia
  • 4 years ago

    You will need room between the sink cabinet and the dishwasher for a place to stand

    SYinUSA, GA zone 8 thanked Andrea
  • PRO
    4 years ago

    I would go with Jans plan, I know it doesn't feel like a giant change from what you have currently but it tweaks it just enough to work better The only change I would make would be for table height table in the dining area- I like my feet on the ground!

    SYinUSA, GA zone 8 thanked HALLETT & Co.
  • 4 years ago

    Latifolia - I left upper cabinets off of the drawings just for clarity. I know where I would put them in each plan, including over the refrigerator.

  • 4 years ago

    ugh..corner sink? thats usually if you have a smaller kitchen and its the only way and typically a one person setup. If you want the L configuration make the corner a 90 degree and place sink and dishwasher on right hand wall. The L is a lot of floor space given over to no use. Put the fridge and adjacent cabinet in reverse spots and maybe a work cart could fit in the space.

    SYinUSA, GA zone 8 thanked herbflavor
  • 4 years ago

    Ok, so that's one emphatic NO vote on the corner sink!

  • 4 years ago

    Here's herblavor's suggested L layout:



    You're right about all the wasted floor space in the middle. For the work cart, I wonder if I could rig up something like these, easy to tuck away within the kitchen when not needed:




    Or even just a drop-down counter like this:


  • 4 years ago

    Those give you good examples of the flex style pull out or pull up counter. might be worth pursuing that . i cant say ive known anyone who put it in their space. youd want real life feedback.

    SYinUSA, GA zone 8 thanked herbflavor
  • 4 years ago

    You could also put the sink under the window and the stove on the right wall with the dishwasher and a 24’ base cabinet to the left of the sink. As in your 1st idea but without the peninsula

    SYinUSA, GA zone 8 thanked Andrea
  • 4 years ago

    Just a comment about fridge placement. We recently purchased a french door fridge. Our first ever. And I noticed that it's much more awkward taking things out of the fridge because whatever you are holding has to be "carried" around the door. Make sure you have a place right near the fridge to put down what's in your hands. Typically you are taking multiple things out of the fridge. You want to put them down quickly so you aren't leaving the doors hanging open. So a counter right next to the fridge or a quick pivot behind you is important.


    Also a comment about the sink. Do you use a drainboard? Or allow things to dry on the counter? If so, don't put the sink where it's the first thing you'll be seeing. It's ugly. Keep in mind how you and your family use your kitchen. Do you always put things away and keep a clear counter? Do you care if the counters are cluttered with appliances, dishes, today's mail etc? Draw yourself a picture of what's going to live on top of your counters. Having a big prep space doesn't help you if it's always covered with stuff.

    SYinUSA, GA zone 8 thanked Debbie
  • 4 years ago
    last modified: 4 years ago

    @SYinUSA, GA zone 8

    FYI - we moved last summer and our modest-sized former home had a "U" shaped kitchen with a similar layout to the one you first proposed. I'll include a link to the real estate listing with pics. We are a family of 5 and raised our 3 ACTIVE (2 w/ ADHD lol) daughters there (who are a total of 4 years apart oldest to youngest) I am a stay-at-home mom and cooked daily. Closing the dishwasher to get into the oven is no big deal. Biggest issue with the dishwasher location was unloading the glassware into the cabinet to the left of the range. Counter depth fridge was key to keeping the traffic area clear. I *loved* the peninsula as a prep space! And having the sink in front of the window. I would not have changed anything about this layout given the space we had, and we remodeled it over 12-ish years before we sold the house.

    DW is to the immediate right of the sink in the kitchen photo.

    pull out garbage is in the penisula

    house has a full basement and we kept an extra fridge (for extra milk and beer!!) and shelving for Sam's club purchases.

    Hope this perspective helps!! :) Good luck!


    Here is the basic floorplan - pics can be seen in the real estate link below





    kitchen in Rockville, MD sold summer 2020

    SYinUSA, GA zone 8 thanked Pauline G
  • 4 years ago

    Thank you, Pauline! That really gives me some perspective on the situation! I was hoping that moving the dishwasher to the peninsula would make unloading into an adjacent drawer base very easy and avoid the awkward reach you describe. Though I have never heard of it happening in real life, death by open dishwasher door is apparently endemic to the kitchen forum.


    I think the counter depth fridge will be a must for us, too. Hopefully we can stash an extra fridge or freezer in the garage. Fortunately(?) appliances are all backordered for months so I have some time to think about it.

  • 4 years ago

    You have a lot to think about. I think all ideas have been covered--I just wanted to say hello, and it's good to 'see' you again on GW/Houzz.

    SYinUSA, GA zone 8 thanked mama goose_gw zn6OH