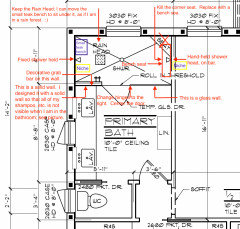
Walk-in shower too large???
Hi, We are having a new house built, with groundbreaking next week. I spent 6+ months on the design of our house. As I am looking at our plans, I am realizing how LARGE our master bathroom walk-in shower will be. Does anyone have suggestions for this shower so that it will not be "cavernous"? Our architect included a rain shower head, which I have never used and don't know if I need. Thank you!

Comments (65)
kitchenremodelhelp
Original Author9 months agoThank you, Suero. I agree that I need a hand-held. I am going to see what the longest hose is available, so that it could reach the other end of the shower.
Thank you!- 9 months ago
I would move the shower door and change it to hinge on the right side -then if someone is at the sink, they won’t have to move to let someone in/out of the shower. I personally don’t like rain shower heads. I’ve had ski injuries/surgeries that required a walker, so the no threshold is great. A sturdy built in bench, although cold, is safer than a freestanding one - and that corner bench is too small - build one all the way across the short wall. A handheld shower by the bench is a good idea. Grab bars are essential in the shower and the w/c. I wouldn’t be so concerned about wheelchair access - that’s a whole other design requirement.
Related Professionals
Wauconda Architects & Building Designers · East Islip Kitchen & Bathroom Designers · South Sioux City Kitchen & Bathroom Designers · Hilton Head Island Furniture & Accessories · The Crossings General Contractors · Universal City General Contractors · Waianae General Contractors · Saint Peters Kitchen & Bathroom Designers · University City Bathroom Remodelers · Bloomingdale Bathroom Remodelers · Cleveland Bathroom Remodelers · Southampton Bathroom Remodelers · Pinole Glass & Shower Door Dealers · Longmont Glass & Shower Door Dealers · University Park Cabinets & Cabinetry- 9 months ago
I do use the seat as a handy shelf for bath and hair products that don’t fit in the niches. It’s also difficult to clean under.
Thing is, no one wants to walk back and forth to fetch the shampoo ... then the conditioner ... then the body wash. It'd be better to have the in-shower storage over by the shower head.
I am going to see what the longest hose is available, so that it could reach the other end of the shower.
I don't think you'll find a hose that long.
I would move the shower door and change it to hinge on the right side -then if someone is at the sink, they won’t have to move to let someone in/out of the shower.
If you do that, you'll block access to towels hanging on the wall. A sliding door or a curtain would fix this problem.
Better yet, drop to a single sink (flanked by two nice wide stacks of drawers, one for each spouse) so no one ever has to cozy up to the shower while using the sink. Duplicate sinks "cost" storage and aren't really useful.
I personally don’t like rain shower heads.
I'll say again: Rain shower heads are no good as an ONLY, as the pressure isn't enough to adequately wash away soap /shampoo. But they're great as a SECOND shower head for a different shower experience.
and that corner bench is too small
Good point.
- 9 months ago
This looks like an aging-in-place shower design. We have a new one - designed for the eventual possibility of one of us being in a wheelchair, although we are fine just now. I actually love it, even without currently needing the aging-in-place features because I can stand back while the shower is heating up and not get hit by cold droplets! We have grab bars on three of the four walls, and I can also hang a towel on the rack farthest from the showerhead and it doesn't get wet. (We also got a heated floor, which is fabulous - I'm spending way too much time in the shower!) And curbless (no threshold) is great - but do you have the requisite door opening width for a wheelchair? If you are young and don't have any reason for your shower to be ADA I agree that it's probably too big.
kitchenremodelhelp
Original Author9 months agoHI Joycedjay, I will definately move the shower door hinges to the right, add grab bars, and reposition the built-in bench. Thank you for your input! This community is great. :)
kitchenremodelhelp
Original Author9 months agoThank you, Mrs. Pete. You bring up a great point about having access to shampoo, etc. I will make sure I have niches on both ends of the shower. I think I'll be okay with the door hinges on the right, since the "wall" to the right of the door is glass. I don't plan on having a towel bar there. I will have towel bars on the wall across from the vanity. Thank you!
- 9 months ago
We have a Kohler shower barre in our shower. It serves as a ledge for shampoo, etc., as well as a grab bar. Need to have blocking installed when framing. That would be a lot more useful than the semicircular bench.
kitchenremodelhelp
Original Author9 months agoThank you! I like the grab bar idea and like the look of your grab bar. I will add it.
I might be overly cautious about the future. We are in good health and very active. Perhaps, I think too much about the future! Thanks again, and thanks for sending that link.
- 9 months ago
A plus of a large shower is that a care giver can be in the shower and not be in the direct stream of water. This is where a moveable bench can come in handy.
kitchenremodelhelp
Original Author9 months agoThank you, RN. That is a good point!
I think I might be thinking about the future a little too much. My husband and I are both very active healthy. He plays pickleball every day and I teach Tai Chi. :)
Based on some of the other comments, it appears that this shower size might not be so unusual, after all. Thanks again!kitchenremodelhelp
Original Author9 months agoHi,
Based on your input, I have been thinking about the placement of a grab bar(s). Thank you!- 9 months ago
Place blocking between studs at 36" height all the way around the shower ... you can add grab bars later.
- 9 months ago
It is wise to think about aging in place even if you are fit and active. Accidents, surgeries, and modifications for arthritis are many reasons to make your bathroom more adaptable for different needs.
The chances of needing a wheelchair are less than 7%. If you know you have a degenerative disease then you might want to consider it, but otherwise, make your bathroom adaptable for aging instead but not wheelchair and certainly not ADA accessible. Ignore ADA advice on how high to place things like grab bars - base them on your height and comfort instead, not on the average American's. This is your home, not a public space.
- No to the shrimpy corner bench. (And, how wed are you to this designer? Doesn't seem like a smart recommendation for anyone.)
- No to a curved bench. You want a bench - wether built in or something you bring in to have enough room on either side of you that you can use your hands to securly push to standing. The advantage of a wide built-in rectangular bench is you can place everything you need right on the seat next to you. As you age it can be helpful to use long handled scrubbers. Nice to have that and soaps and shampoos on the seat next to you. (A shampoo niche you make now will be too high for you if eventually need to sit when showering.)
- You want a hand held to be within arms reach of where you sit. It doesn't have to be on a bar. It can be on a hook specially made for handhelds.
- Grab bars - huge no to that Kholer bar. You want a rounded bar that is easy for your hand to grasp and wrap around. You also don't want a bar to double as a shelf or a towel bar. (This per an occupational therapist who is a design consultant we hired when making a new bathroom for my parents.)
More on bar placement later. Gotta run! - 9 months ago
So many good comments. Regarding the wheelchair issue--is this bathroom on the second floor? If so, then unless you have an elevator in the house, it's not ever going to be one where someone in a wheelchair will use it. I agree with Mrs. Pete and Kendrah that planning for wheelchair use is not really necessary. Personally speaking, by the time my mom needed a wheelchair, she moved to an assisted living facility.
Regarding the shower, I think it could be made narrower and shorter. This would allow you to have a larger area for your sinks and vanities. Ours is 10' long, and perfect for two sinks and space in between. And as someone suggested, you could make a closet in the area that is now the end of the shower. No to either that corner seat or the curved one. Just buy a teak bench.
- 9 months ago
I have a shower like this that we put in 2 years ago… it’s 4 feet wide by 9 feet long. I do love it and it is beautiful, although it is big! Each end has its own fixed showerhead along with a sliding handheld. I liked the idea of keeping the back wall clean with no niches, so those are tucked in the front pony walls with the Kohler grab bars above. Each side of the shower has its own water controls, also on the inside of the pony wall. I also vote for the bench being along one width of a wall and not the corner. One thing to keep in mind is you need a powerful vent if you have multiple showerheads. We had the contractor come back afterwards to upgrade. I also keep a tall mop like squeegee in my shower for cleaning. We also made sure the doors were wide enough for potential wheelchair usage – – the bath is on the first floor and the bedroom door is wide enough for a wheelchair. I think we went 30 inches on the shower door, when you get into that size glass, there are special requirements.
kitchenremodelhelp
Original Author9 months agolast modified: 9 months agoGood morning,
I think I am getting there, with all of your input! I think with all of your suggestions, the shower will not look as "cavernous".
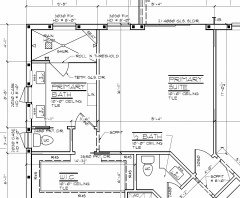
Also, my designer/architect let me know that the measurements include exterior walls and do not take into consideration tile. He said the 4' 11" wall will actually be 3' 9", with tile. The 9' 5" wall therefore, will be shorter, too.
Thank you!
kitchenremodelhelp
Original Author9 months agoThank you so much, Rene!
I am glad to hear that you have a similar size shower and like it. That is a good point about ventilation. I will speak with my contractor about it.
I would like to keep my back wall "clean" as well, and have the window be the focal point. Thanks again!
- 9 months ago
Be sure you put bracing in the toilet room walls also. I have had leg injuries a few times and even with a ADA toilet getting up off of it can be a challenge in a weaken, non weight bearing state. Depending on how long the room is I would put it on the end wall and the wall to the right of the toilet.
kitchenremodelhelp
Original Author9 months agoThank you, Diana.
I agree with you. By the time I need to be using a walker or a wheelchair, I will want an easier lifestyle than living in this house.
Yes, we live on the coast in Florida, so this house will be elevated, with an elevator.
I think the consensus is no to the corner seat, and no to a curved bench. I agree. I will look at the teak benches.
Thanks so much for your input!
kitchenremodelhelp
Original Author9 months agoHi RNmomof2, I hadn't thought about grab bars near the toilet. Good point.
- 9 months ago
I think you are getting outstanding recommendations and love the revised blueprints. As everyone else has commented regarding the potential need for a wheelchair, the need for "disability" access is well worth the effort you are putting in. Consider the possibility of surgeries in the future such as knee and hip, and the temporary need for a walker or other mobility assisted device to access your shower. The movable bench is also a great idea, with a long wall bench. Personally I don't like permanent benches as they tend to collect water and then mold, even when angled properly for drainage, but that is just me. We are looking into aging in place and never thought we would need anything like that, being fit and athletic our whole lives, but an accident changed our perspective and needs. I am with you in regards to having that clean wall and hiding all of your toiletries. Good luck with everything. I'm sure you will enjoy this new home.
- 9 months ago
The image you shared does not match the revised blueprints as it has the shower door on the right hinge. That’s what ours is and it’s great. Yes if I swing it super wide it hits the towel bar but mre than enough space to get in.
- 9 months ago
Pay attention to the swing and hinge side of your shower door. You want to be able to put on the shower wall (not glass wall) a grab bar to steady yourself when you are using one hand to turn on the water and adjust the temperature. This grab bar should be placed where the open side of the door is, so you can open with one hand, hold the bar with the other, then use the first hand to adjust the water. You currently have the hinge near where the grab bar should go. In this set up you'd enter and have to take a few step without holding on to anything in order to get to the grab bar and then lean in to adjust the water. I have the correct set up in our guest shower for my parents. I'm a totally fit early 50s woman, and I am shocked that now the bars in place, when I use the guest shower, I actually naturally use the bars, and I love it!
Create a toilet room that is much larger. If you are recovering from hip surgery and have a walker, you need room to park it in there. At some point you might need a caregiver to help you on and off the toilet (for instance if you are recovering from surgery). You want some room between the toilet and the wall so that another person has extra room to help you maneuver. My mom was a very fit 79 year old who has needed a ton of my help recently due to cancer/hysterectomy. She is no where near ready for a facility. And will probably always live in her apartment. But we have learned where various areas of the bathroom need extra room!
You do not need to install toilet grab bars now - sounds like it is premature. Have your contractor put in the blocking for them though and then make a drawing with measurements of exactly where they are. Then in the future if you need them you can just drill them into the blocking. kitchenremodelhelp
Original Author9 months agoThank you, PRO. I appreciate hearing about your experience and validating the group's ideas!
kitchenremodelhelp
Original Author9 months agolast modified: 9 months agoGood morning, WestCoast. I shared the photograph with our architect to show that the wall on the left, against the vanity, would be solid, not glass. I appreciate your thoughts!
kitchenremodelhelp
Original Author9 months agoHi Kendra,
I appreciate your additional input. I like your idea about installing blocking in the water closet, and holding off installing grab bars until needed. That is a great idea.
I think I have the shower grab bar in the right place. My primary shower head will be the fixed shower head on the left. I will open the shower door (hinges on the right), reach in to turn the water on, and have a grab bar right there by the faucets.
- 9 months ago
I wonder if the shower is a little wide? My shower is 4’x10’ and seems big. It is a similar design. I put a bench across the back. But I have never used it. It is wasted space and I wonder if I should have incorporated that space into the closet behind the wall.
I used a regular shower head and I also have a hand held shower head. I opted not to use a rain shower head. I used one at an air bnb and the pressure was too low for me. I didnt like it.
Be sure to put the shower controls on the short stub wall so that you can reach in and turn the shower on without getting sprayed.
I think the water closet door should be wider.
Here’s some photos of my bathrpom, which is similar.

Looking toward shower:
water closet:
- 9 months ago
Wow, beautiful bathroom, rockybird! What sort of shower door do you have?
kitchenremodelhelp
Original Author9 months agoI agree! Your bathroom is beautiful, Rockybird! I love your tile; I may copy it. Good point about the shower controls. I think I have them on the correct wall. Thank you!
- 9 months ago
@Diana Bier Interiors, LLC thanks! There is no shower door. I specifially did not want one because of water spots. We have hard water here and it is awful. Since the master was done, I had the newer shower glass put in the new guest baths, and the newer shower glass doesnt seem to spot! I think it I asked for them to be treated with something. I may add a door at some point to the master.
@kitchenremodelhelp Thanks! I just saw the second shower head so never mind my comment about the bench. It obviously wouldnt fit. I think for two shower heads, this is a good size. Do you think you could bump the wall towards the bedroom 6” so you could get a 30” pocket door to the wc? - 9 months ago
Here’s a couple pics in case you’re interested…both sides have the niches with their own separate controls just inside so we don’t get wet when turning on the faucets. Only one side has the bench. The door pushes in and also swings out, not sure if that is standard. We opted for a built-in towel bar on the door as part of the handle.



- 9 months ago
I think I'll be okay with the door hinges on the right, since the "wall" to the right of the door is glass. I don't plan on having a towel bar there. I will have towel bars on the wall across from the vanity.
I always thought you were having the towel bar across from the vanity -- but there was some discussion of reversing the door hinge. Oh, I'm confused now, but you get the point: If you go with a hinged door, be SURE your opening points towards your towels.
This is where a moveable bench can come in handy.
And you can change out a bench for a hospital shower chair.
Based on your input, I have been thinking about the placement of a grab bar(s).
Most useful:
- A vertical grab bar inside the shower entrance door
- A vertical grab bar outside the shower entrance door
- A long horizontal bar across the back wall
- If you're going all-out, a vertical bar next to he hand-held
you can add grab bars later.
You CAN, but it's safer to go ahead and add them while the shower's being built. That guarantees you that your builder knows what's going in /will not penetrate the waterproofing at a later date.
We bought my grandmother's house, and we had to replace a whole shower (thousands of dollars) because of a grab bar that was added later.
You do not need to install toilet grab bars now - sounds like it is premature.
What's the downside to doing it now? Why not COMPLETE the project now?
It's not expensive, and you'll already have workers in the house. If you wait, you run the risk of not remembering correctly where the backing is, and you could have to choose /install quickly in an emergency situation.
Be sure to put the shower controls on the short stub wall so that you can reach in and turn the shower on without getting sprayed.
Those shorty walls are called "pony walls".
I will open the shower door (hinges on the right), reach in to turn the water on, and have a grab bar right there by the faucets.
Back to the towels -- if your door hinges on the right, it'll block access to the towels on the right-side wall.
You want a grab bar inside and outside the door -- and they'll be on the pony wall, right?
kitchenremodelhelp
Original Author9 months agoHi Rockybird,
That is an interesting idea about moving the bathroom wall out 6" to allow for a larger WC. I believe the primary suite could handle being 6" shorter. I would just need to consider the bedroom window.

kitchenremodelhelp
Original Author9 months agoHi Rene,
Your shower is beautiful. I hope mine turns out as nice. Thank you for taking the time to post your pictures. It is helpful for me to see your showerheads and bench.
kitchenremodelhelp
Original Author9 months agolast modified: 9 months agoHi Mrs. Pete,
Yes, I will put a grab bar on the inside of the pony wall. I had not thought about mounting it vertically, but that is an idea.
I am now following you on access to towels. I guess I shouldn't tell you that I usually just throw my towel over the shower door while I am showering!
I will look at the placement of the towel bars so that they make sense. Thanks for all of your ideas.
- 9 months ago
For the toilet grab bar, I put in a Moen TP holder that doubles as a grab bar. Really needed it when I hurt my back.
Moen LR2352DCH Bathroom Safety 8-Inch Grab Bar with Integrated Toilet Paper Holder, Chrome
kitchenremodelhelp
Original Author9 months agoHi Ker, I just looked up that Moen model and it looks nice. It seems that might be the way to go: a tp holder, without a separate bar. Thank you the idea!
- 9 months ago
Delta has lots of very nice looking grab bars and toilet paper holders with grab bars. Here is the TP holder we have in our house:
https://www.deltafaucet.com/bathroom/product/41350.html
Also, the toilet room and the little hallway from the bedroom to the bathroom are not handicap friendly at all. If you are serious about wheelchair accessibility you need 5' turning radius - which you do not have in the little hallway or in the toilet room. The toilet room pocket door is 2'4" wide, the closet door is 2'6" wide, and wheelchair friendly doors are 3' wide. - 9 months ago
A small toilet paper grab bar can be helpful isn't really sufficient. I would put in blocking for much larger grab bars in the toilet room.
Now or later? Yes, add the shower grab bars now as someone mentioned because of waterproofing issues. No, I would not add the toilet grab bars now. Why? It is truly not hard work to have these installed -- we've done them for family in an emergency. As active and fit as you are now, it can be a bit of a downer to live with all of these assists if you don't need them yet. Purchase the items now and store them in your home along with detailed pictures and notes as to where the blocking is located.
Yes, Kohler, Delta, Moen make all kinds of grab bars. The majority of them are truly not designed well for physical function. There are lots of companies that make bars that are much more ergonomically correct, occupational therapist approved, and have a higher end finish and look less nursing home like. Mine are Kartners. I can't recall some of the other brands ... maybe I really am aging!
A few other issues to consider for aging in place:
Larger pulls and knobs - easier to grasp with arthritis
Great lighting - prevents falls, easier to see as eye site becomes challenged, and include in this good night lighting too to light your way from the bed to the toilet.
Storage and counters that are at least 36" high so you don't have to bend down
And I'm with you on placing your towel in a ready position prior to showering, whether that means taking it off of the towel bar and putting it on the sink by the shower entry, or slinging it over the door as you do now. - 9 months ago
I am not sure what the plan is for the shower bench way back there. Almost ALL your showering will take place between the showerhead on the wall and the center drain. Behind the drain is a virtual no man's land. This is a size for 2 occupants not a single (and the configuration makes 2 occupants unlikely). Sitting on the back bench will be way outside the spray and cold.
Measure how far back you stand today when you are in the shower. Making a shower larger doesn't change the dynamics of gravity and how the water will fall. (it also cools as you get further away, so....) . My current shower is about 4'x6.5' without a door and it fits 2 comfortably. It has a corner bench that I NEVER use save for setting my shampoo / conditioner bottles on if after use, and slapping my foot on it to shave my legs - and would be much better without it.
I'd rather see this as 2 showerheads on either end and a rain either in the middle or where it is now. At least that way it would look purposeful and you COULD use it with 2 people. I've also seen a small footrest built into the wall tile for leg shaving that seems like something you SHOULD see more often, but don't.
Agree with the bench. I just bought one from Aqua-Teak that has a storage shelf and some raised "handles" . Teak wood is warmer than tile / solid surface bench and infinitely more flexible. - 9 months ago
Word to the wise - Delta makes only a few standard grab bars that "match" their other designs. We got all our towel racks and faucets in the Stryke pattern. If you google "Stryke grab bar" you'll get a style that isn't exactly the Stryke design, although it's similar. And that's what we got - it's ok, although I'd have preferred an exact match. Our designer told us that most of the companies do something similar.
By the way, all our Delta oil rubbed bronze fixtures are beautiful and really sturdy. Those grab bars will do their job if/when needed. kitchenremodelhelp
Original Author9 months agoHi gdionelli,
Thank you for your input. I just looked at the Stryke collection and like the style. They look similar to the Moen Voss items I have been using. I appreciate your help!
kitchenremodelhelp
Original Author9 months agolast modified: 9 months agoHi just_janni,
Your thoughts on the shower size echo mine. The size was my original concern. My husband and I do not shower together so this will be a one-person shower.
I agree that my showering will be done on the left-side, "behind" the solid wall. I don't know under what circumstance I would shower on the right side, by the proposed solid bench. However, other than shortening the shower by moving in the right wall, as others have suggested, I think I will have a large shower.
I am not keen on moving the right wall in because then the window would no longer be centered, and I am big on symmetry.
Perhaps, I could put a potted plant in the back right corner....... :)
kitchenremodelhelp
Original Author9 months agoHi Kendrah,
Thanks again for your valuable input. I had thought about access to the shower and counter height, but I had not thought about door widths. I also appreciate your input on drawer pulls.
- 8 months ago
I am planning a large shower also, although not as large as yours. 100" x 41". I am putting the valves by the entrance instead of under the shower head so that one doesn't have to turn on the water and get splashed by cold water. If you have room, I recommend no doors. Doors are tough to keep clean.
Now I have to figure out whether to move the niche to under the shower head, since there is nothing underneath it.

kitchenremodelhelp
Original Author8 months agoHi Beeg,
I like your shower design! If it were me, I would consider putting a niche under/near the shower head, perhaps, in addition to the niche by the valves. I am big on symmetry and that might balance it out. Just an idea....
- 8 months agolast modified: 8 months ago
I'd either make it a double head shower with one one each end (maybe that is what those small triangle are), or shrink it and add a tall skinny cabinet to the end of it..
kitchenremodelhelp
Original Author8 months agoThank you, Nova. I think I will go with a double head shower.












Suki Mom