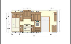
Functional Beautiful kitchen design help!
Hubby and I have saved 20 years to build our forever house. Please help me squeeze the function and beauty out of this kitchen plan. Would like to have two ovens whether that is cooktop/double, range/one oven or one 48" (I was told would overwhelm the space). I'm short, so I really thought cabs to the counter would be handy. I don't want a built in microwave so it's either hole in the island or pantry. (These are not the colors I'm using - going for the off white/brown, herringbone backsplash. Also, builder drew in THREE ovens, I want two). Any help appreciated!



Comments (47)
- last monthlast modified: last month
you always need at least one stretch of 48 in counter in a kitchen. You have obviously the island ...with seated people is a factor...then secondly is the stretch to the right of sink. I would forget about centering the sink w the window .....skooch sink to the right and get some more counter to left of sink.....it wont be 48 inches but that looks a demanding spot . Because of the longest counter area being the island , would you consider a small sink there ? .......grab from fridge/ pivot to island sink w the most generous counter as opposed to travelling along the island aisle constantly to the only sink. In fact I think there is a case to make the island longer.....go ahead / I dont think youd regret it.
longer island w sink.... better scale due to your wall areas laden w appliances
A Bountiful Beauty · More Info
House at Geddes Ravine · More Infolexigs thanked herbflavor - last month
I see three ovens: one in the range, two on the wall. Is that what you want?
Up/down cabinets are not much in fashion these days. Consider using an over-range cabinet whose top is flush with the other cabinets, a more classic design. Related Professionals
Woodland Design-Build Firms · Jacksonville General Contractors · McPherson General Contractors · Owosso General Contractors · West Jordan Architects & Building Designers · Fort Wayne Furniture & Accessories · Eureka Furniture & Accessories · Fair Lawn Furniture & Accessories · Natchitoches General Contractors · Redding General Contractors · Saint Augustine Kitchen & Bathroom Remodelers · Spokane Kitchen & Bathroom Remodelers · Holt Cabinets & Cabinetry · Warr Acres Cabinets & Cabinetry · North Bay Shore Cabinets & Cabinetry- last month
For the over-sink window: make sure you order a window that you can easily reach to open and close. The lock should be accessible, too, without standing on a stool.
lexigs thanked apple_pie_order - last month
I think one oven might be a microwave. I would lake Tue cabinets go to the ceiling or at least make it look like they do. It’s so dated to have open space at the top. We have a range with oven and a wall oven and love both. Well worth it.
lexigs thanked WestCoast Hopeful - last month
Wide 36" drawers on either side of the range are more useful for pot/pan storage with utensils in the top drawer. You can make part dry spices. The sink can be smaller and moved to the right. The work zone between the ovens in your layout and the sink is a prime space. I'd move the dw to the right to add counter space there with wide drawers below. In the same functional prioritizing, I'd move the range over 12" to the right to allow a 48" work zone between the frig and range. Function trumps symmetry in real use.
You'll also want good task lighting with two offset 4" cans 3-6" in from the counter edge over work zones. 450 lumens/70 footcandles at the counter with 3500k led bulbs. Undercab led strips can help.
lexigs thanked dan1888 - last month
A few questions - What is the ceiling height? where does the doorway go? does the kitchen only have 2 walls and is open on 2 sides? is the window existing? If so, what is the actual dimension from wall to window trim? how many seats do you need at the island? pictures of the existing space? can the wall on the right of the sink run be removed? what is to the left of the ref?
The hood, as shown is not wide enough - hood should be 6" wider than cooking surface. Don't do the staggered look - get the extra storage going to the ceiling. Depending on where that door goes, I would not want a wall oven there. Not a fan of where the ref is at all - would be nice if it could be to the right of the sink, then put the wall ovens where the ref is. Make the island larger - it looks like you could easily add some dimension BUT it all depends on what is adjacent to the open sides of the kitchen.
Need some more context to best help.
lexigs
Original Authorlast monthCeiling is 9ft- doorway goes to hallway with back door from garage to the right and pantry to the left. Yes kitchen has two walls open on two sides. This is a new build and has been framed- but maybe not too late for big changes. Wall to window trim is 38.5 inches. I’m not a fan of wall oven there either but cabinet Guy advised I won’t have counter space on side of cooktop if I put it on that wall (which is about 12 ft from dining room begin to doorway). I’m ok compromising to one 36 inch range if it’s just not feasible for the space- but thinking forward to family gatherings I thought a second oven would be helpful.



- last month
"Hubby and I have saved 20 years to build our forever house."
Save for a couple more days and engage a local professional kitchen designer. No sense in dropping the ball at the two yard line.
lexigs
Original Authorlast monthIs it that bad? Geez Louise! I'll see if we have any around these parts.
- last month
It appears you are not building a custom home, is that correct? If this is a canned plan, what changes are you allowed to make?
lexigs
Original Authorlast monthWe are building AD 56478SM but can make changes with the builder as necessary. We've already made changes to the floorplan but I was focusing on the kitchen. I met with the cabinet guy last week and he gave me this design to include a wall oven. I didn't know if there was a better way to modify the plan.
- last month
How often do you have family gatherings that require 2 ovens? I would hate to give up a ton of counter space for an oven I use twice a year. There are a lot of ways to cook a large meal without a second oven (we cook and carve turkey the day before, for example, and reheat it in the microwave just prior to serving). A toaster oven could work for you too, but live in the pantry when not needed.
I agree with running the cabinets to the ceiling, with just one cabinet box (not stacked cabs). Yes, you'll need a stool to get to the top shelves, but it gives you a lot of storage for less-used things, or bulky, lightweight items (paper towels, etc). I group items in upper cabinets by height, so I can move the shelves as low as possible, minimizing wasted space between shelves, and allowing me to reach more shelves (I'm short too).
The most important thing you can do right now, on paper, is develop a storage plan. Place things near their point of use: knives, cutting boards, colanders in the prep area; dishes and flatware near the DW; pots and pans, potholders, cooking utensils, spices and oils near the range; leftover containers, bags and wraps near the fridge. Consider where you will put baking sheets and pans, small appliances, cookbooks. Often the storage plan drives the cabinet choice, and even the appliance location - but you end up with a kitchen that is easy to work in.
It's pretty cool when a friend visits, goes to the kitchen to look for something, and it's in the first place they look, because that's where it makes the most sense.
I agree with the fridge location - though I would like to see where the dining room is, relative to the kitchen. If the fridge stays put, a prep sink in the island would help a lot.
- last month
There are definitely kitchen designers near or close to you. Builders are happy to just plow forward as is. But it is worth it to get real help and make your kitchen awesome.
That said, not to piggyback on Mark’s point but was it a consideration to get a home custom designed for your lot and your needs? Do you own the lot?
- last month
The plan is fine except the wall oven would be better on the opposite side of the window wall so that it does not open in the doorway. I do think you have plenty of space for a second oven and it is worth it to fit one in versus one large range, even without guests second ovens can be very useful. Also, you say that you do not want a built in microwave and I would have always agreed with you until our current home had a double oven with combination microwave/convection oven. I have used several countertop style microwave/convection ovens and they do not work great or don't last but so far this built in combination works really well and has more interior space than any of our previous units. The convection aspect of the microwave is the most used cooking appliance that I have in my current kitchen and really the best thing that the last owners put in the space.
lexigs thanked s m lexigs
Original Authorlast monthWe do own the lot. We had a custom designed plan finished right before Covid hit and now it’s too expensive to build it so we had to start over. We had a good builder say they could start right away and it’s hard to get on the list around here so I had to pick an affordable pretty plan and go with it. We, and our kids aren’t getting any younger 😅
- last month
This is the original plan from AD, for reference.

Would you consider moving your bedroom door such that it doesn’t feel like the servants’ wing, coming out in the morning to the mudroom, and entering the kitchen, seeing first thing any dishes drying on the counter from the night before, or the late-night snack remnants? and anyway, so much traffic in and out of the house goes through the working kitchen. I think I’d rearrange the left side of the house along with the kitchen.
How do you plan to use Bedroom #4?
lexigs
Original Authorlast monthBedroom 4 is a bedroom for a kid. Too late to do that much rearranging! :)
- last monthlast modified: last month
"Too late to do that much rearranging!"
Then any of my input regarding the rest of the house would be worthless. I do not know the site or all the OP's needs, but there are features in this design that I would advise against.
- last monthlast modified: last month
Just the fact that the master gets zero view out the back, and that the kitchen will be dark because of the big attached covered porch, would give me a big pause on this whole plan. Can the garage not be separated from the home via that covered porch/breezeway that you want, with the master and kids beds swapped?
- last month
And there is not one coat closet. Hope you don't live where you have seasons or need coats.
- last monthlast modified: last month
That plan is precisely why fat deep plans are just depressingly void of light. Skinny it up and stretch it out. Then you can get daylight into it.
- last monthlast modified: last month
I like your kitchen design mostly:
-I would consider a prep sink in the island. You have to cross a doorway with blind traffic to get to your sink (with a heavy pan of hot water if you are doing pasta, boiled potatoes, etc.) That's a safety hazard. Your oven also opens up into this traffic area. There is going to be a LOT of traffic through that door - and nobody entering the kitchen here can see what's going before they bump into you - and vice versa.
I'd beat senseless the man (and you know it was a guy!) who decided to funnel all of the family traffic entering and leaving the house, going to the pantry, the laundry and the powder room - past the kitchen sink where I'm trying to work. That's just so disappointing. You can't fix that now, but a prep sink in the island would help. You might consider swapping the wall ovens to the other end of that so it doesn't open into the doorway.-I would ditch the pot filler. I don't want to cook with water that's been sitting stagnate in the pipes for several weeks.
-Add a separate faucet for carbon filtered water to cook with. Alternatively you can plumb the cold water in the prep/main sink with filtered water. Carbon filters get rid of chlorine and tastes and odors - along with a lot of nasty chemicals.
-The microwave isn't great in the island. You can't see the buttons, etc.-I would run the cabinets to the ceiling. Use the top storage for seasonal stuff you don't use often.
I'd also beat him senseless for no entry closet at the front door. lexigs
Original Authorlast monthRedesigned to move oven out of traffic. Thank you for the info about the pot filler. We do have a closet at the carport entry that isn’t seen on the original plan- but no closet at front (in south GA, coats stay put up most of the season and guests often use the back door.) I think the microwave will be relocated to the pantry as I was concerned about low buttons. I would love to run the cabinets to the ceiling, but budget has to stop somewhere. Thank y’all for the feedback.


- last month
17" work zones on either side of the range and next to the frig. The next time you prep from your existing frig mark off 17" to give you an idea of what your looking forward to.
Since you have a pantry for the micro, delete the wall oven. You will enjoy the added counter space. Our alternative in your pantry is an airfryer/toaster oven. Ninja DT501 is in use every day. Easy wipe clean stainless interior. Range oven gets used- zero.

- last monthlast modified: last month
Agree - you need more than 17 inches next to the stove.
You will use the stove every day - you will use the wall oven when you have large gatherings.
I don't have a good solution, but I suggest you don't put the wall oven near the stove.
Oven space is always a premium during big gatherings - so I completely understand wanting the wall oven. Like I say, I don't really have a good solution at this point. Perhaps the original location is the best compromise.
Is it too late for a prep sink in the island?
- last monthlast modified: last month
If a prep sink can go in the island it will mitigate to some extent the lack of counterspace on either side of the range in your latest layout.
Your Prep Zone will be in the island along with sufficient work and landing space on either side of the sink. It will make a HUGE difference in functionality!
I can't tell the aisle widths b/c of the lack of good measurements, but they should be at least 42" if a one-person Kitchen and 48" if more than one person will be working in the Kitchen at the same time. In addition, with a busy aisle from the Mudroom to the rest of the house passing in front of the sink & DW, the wider the aisle the better. No less than 48", regardless of how many are working in the Kitchen (51" to 54" would be better).
If you need to reduce the island width to get wider aisles (again, I don't know if you need to), this would give another 6" to play with. Standing in front of the island with the range at your back, left-to-right:
1.5" Counter overhang on end
+ 18" two-bin trash pullout (much more useful in Prep Zone than in Clean Up Zone)
+ 21" sink base
+ 48" of drawer bases
+ 1.5" counter overhang
============
90" (7'6")
I recommend the trash & recycle be in the island with the Prep Zone b/c more trash & recyclables are generated while prepping than cleaning up. At most, I would put in a one-bin trash pullout next to the cleanup sink for food scraped off plates. However, by putting the island trash pullout on the left end of the island (closest to the cleanup sink), it can easily be used from both the Prep and Cleanup Zones (as well as the Cooking Zone), so you could eliminate the trash pullout from the sink run and gain another 18" of base cabinet (drawers) space on that wall. It will also keep all trash in one place so it gets emptied more frequently than if trash was split b/w two trash bins.
If you generate enough trash that you empty the trash bin at least once a day, you may be able to "support"/use two trash bins. If that's the case, then I recommend reversing the items on the island (i.e., trash/recycle pullout on the refrigerator end.)
If your aisles are wide enough as-is, then extend the workspace size from 48" of cabs to 54" to give you even more workspace.
- last month
The oven in the aisle is not the end of the world if it's the second oven. So get a 30" range and leave the 2nd oven on the sink wall. ALSO consider getting a pocket door to close off the mudroom/garage (would also be nice to do when you have company). Looking at the photo of the finished kitchen, a door there would make it look so much nicer. I wouldn't move the oven to the range wall, personally - I don't think 17" is enough space adjacent, especially for the way I cook (mise en place - so lots of prep bowls sitting on the counter next to the range).
So, IF you actually cook....
Absolutely put a prep sink in the island. You will have a wonderful prep & cooking zone, with no one crossing your aisles, and everything within a few steps. I'm seriously jealous of your potential awesome kitchen. If you do add a prep sink, you do not need a pot filler, and the prep sink will be so much more useful than a pot filler. Also if you add a prep sink, consider putting trash in the island - maybe on the end near the other sink so you can use it for both prep & cleanup. I would do 18" trash 24" sink-36" 3 drawer prep stack, and then 18" for whatever else you want to add (possibly a sheet pan/cutting board cabinet). Micro can go in the pantry unless you microwave a lot, then leave it in the island and change the size of the prep drawer stack. Although 36" for that is SO NICE. I have 4 sets of prep bowls and mixing bowls in my middle drawer.
One more consideration: think about indenting the back of the fridge into the laundry room a bit so your fridge can be flush with the cabinet faces (alternatively, fur out your range wall and indent the fridge box). They did that in our house and it's so nice to have a full size fridge that fits with the adjacent cabinets.
Oh, and one more thing just so you are aware, with end walls like your island shows, you will really only be able to fit 3 stools comfortably. 4 will be a tight squeeze so if you need 4, get small stools without backs (our island is 10' and we have support walls - 4 stools are all we get). Or get rid of the support walls but make sure they build a steel frame to support your counter. (FYI our home was built by a fairly respectable builder. I insisted that they weren't doing the counter support correctly. They insisted they were. FF I finally got in touch with the installer who emailed the manufacturer (quartz) and they told me that my counter was not supported correctly. So even good builders and installers can make mistakes).
- last monthlast modified: last month
If you have seating at the island, please stick with at least the minimum recommended seating overhang for counter-height seating, which is 15" of clear leg/knee space. Your island, therefore, should be 41.5" to 42" deep. A great depth that will give you plenty of workspace, space to stage food during parties, and keep people a decent distance from the faucet for the prep sink:
1.5" Counter overhang on front of island (where you stand to work)
+ 24"D cabinets (mostly drawers!)
+ 1" decorative doors or finished end panel on back of island cabs
+ 15" of seating overhang
============
Depth = 41.5" (3'5.5")
Don't let a cabinet salesperson, contractor, or other talk you out of the minimums. Usually, none of them understand about good Kitchen design. (There may be some exceptions, but they're few.) In addition:- The goal of a cabinet salesperson is to sell you as many cabinets as possible and the more expensive the better! Ditto cabinet makers if working directly with a cabinet maker!
- The goal of a contractor/builder is make the job as easy as possible, which means doing what they've always done in the past and getting out of there as quickly as possible.
- Neither will ever have to work and live in your Kitchen so they usually don't care - they'll be gone and never see it again!. (Sorry, but that's a hard truth.)
- last month
Just a thought, have you experienced living in a kitchen where you prep at the island and pivot to put things on the stove behind you? Not everyone loves it (even though many do). It's a deal breaker for me - I am a chop and drop, prep as you go type of cook, and I MUST have 3+ feet to one side of the stove for that to work. When I lived in a house with prep on the island/little space next to the range, I was forever dropping bits of veg off the cutting board as I pivoted across the aisle to get them into the pot, and I wasn't able to keep an eye on what was mid-cooking since I had to have my back to the stove.
So for me, I would absolutely stick with the original stove layout with clear wide counters and lovely covetable 3-drawer banks either side of the range, leaving the secondary oven over on the origingal tower by the doorway (and maybe doing a pocket door on that doorway so I could close it for extra safety/no collisions on Thanksgiving etc).
- last month
@Julie S makes a good point - that it really depends on how you like to cook.
Regardless, unless your sink is on the same run of counter with your range, you will be carrying something across an aisle. In your case, you will be carrying dripping produce from the sink to wherever you want to prep (unless you add a prep sink in the island, in which case you wouldn't be dripping produce, but then you might have the cutting board problem that Julie has). Personally, I hate the drips on the floor from that (we don't wear shoes in the house, so inevitably that means I have wet socks). So I prep on my island adjacent to the sink. I also do mise en place cooking, so most things get put into prep bowls so I'm not carrying cutting boards across an aisle. All depends on how you cook.But something else important to note - how you cook may change when you cook in a kitchen that functions differently from what you have now - and you might be surprised at how nice it is to cook in a truly functional kitchen.
- last monthlast modified: last month
In all my kitchens, the most important arrangement for me is to have sink under window, to the left of it, the dishwasher. Then to the left of the dishwasher, a full pantry cabinet, with all pull out shelving for dishes, glasses, silverware and any other pieces I use daily.
Easy to unload dishwasher; I barely have to take two steps.
If you have the space...even as small as a closet, consider a wet bar, or if a bit larger, a butler's kitchen.
This was what I did for a wet bar. Lighted cabinets for finer glassware, vessel sink (wall mount faucet), and under counter beverage 'fridge.

Too bad the wallpaper doesn't show. It is a Candace Olson that is beaded. The fellow who wallpapered was NOT happy.
- last month
Have you considered a double-oven range? because that would add some degrees of freedom to your planning, for sure. We love ours -- upper is one rack, and lower is double with a convection option. Allows energy efficiency and lots of cooking flexibility!
New Kitchen 2016 -- wall 3 after · More Info - 27 days ago
@acm. I am guessing you are not tall. My kids had one like this and they sat on the floor to put things in the bottom oven. We have one that has a removeable divider and it is not much better.
- 27 days ago
When I look at the double oven range I think of quail for Thanksgiving Day dinner.
- 27 days ago
RNmomof2 echoes my thoughts. If anyone in your family is even slightly tall, the lower oven in this setup, like wall ovens mounted under the counter, will be too low. They're much lower than a single oven in a standard range.
- 27 days ago
I have a range/oven and wall oven with built in microwave above. Love it.
- 26 days ago
Like all kitchens, whether a separate wall oven works is highly dependent on how and what you cook, and where the oven is with respect to everything else in your kitchen. So while some people may love their wall oven, it's not a one-size fits all solution.
I cook all the time and the double oven range that acm posted, 95% of the time I would use the top oven and only the top oven. So the 2 days of the year that I might need to use the bottom oven as well is maybe a little less convenient but not a deal breaker.
I have a double wall oven now with a rangetop (2 full size ovens). I'm not a fan of this set up. First of all, in my kitchen the ovens are too far from my range. I do a lot of range to oven cooking, so I LOVE having a range. But I don't, so I'm trekking hot pans/pots (usually HEAVY ones like a cast iron or dutch oven) across my kitchen to put it in the oven. The logistics of that are not fun (open the door first? Or move the pot, set it on the counter, then open the door?).
Also, the top oven is too high (I am 5'-5" so pretty much average height). I feel like I'm going to burn my arms trying to pull out the rack. So I almost always use the lower oven in that set up. If I ever have to replace it I will be getting a French door top oven, which at least would be more useful (and that replacement might happen sooner than later - I just used my top oven for the first time in probably a year and the fan sounded pretty bad).
Anyway, all this to say, it really depends. In the OP's situation, the range with an additional wall oven would be fine (and probably ideal) for me, since that second oven would be used only a handful of times each year.
- 25 days ago
I prefer no upper cabinets when designing kitchens so maybe get a designer who understands storage . I like awall with fridge and true oullout pantry cabinets on thta same wall . That handles a ton of storage in one space . All base drawers handle all the stuff you would have put in the upper like glassware, dishes coffee stuff. Waht you need is a good KD independant not some cabinet sales person. I spend hours with my clients to design a kitchen that works for them then I get down to cabinets . The pretty choices come much laer so no backsplash or wall colot right now at all. Not even counters actaully until that space is perfectly designed for you. BUilders are NOT kitchen designers ever This is your forever home do it right a 2K designer can save you many K of redo












Debbi Washburn