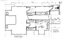
Master Bath Layout Help Needed - Converting from Office
last month
last modified: last month
Featured Answer
Sort by:Oldest
Comments (16)
- last month
Related Professionals
Saint Louis Park Architects & Building Designers · Montebello Kitchen & Bathroom Designers · Encinitas Furniture & Accessories · Wakefield Furniture & Accessories · Aberdeen General Contractors · Tabernacle General Contractors · Oceanside Bathroom Remodelers · Fort Myers Glass & Shower Door Dealers · Spring Glass & Shower Door Dealers · Windsor Glass & Shower Door Dealers · 77505 Glass & Shower Door Dealers · San Tan Valley Glass & Shower Door Dealers · Harrison Cabinets & Cabinetry · Watauga Cabinets & Cabinetry · Fremont Window Treatments- last month
- last monthlast modified: last month
- last month
- last month
- last month
- last month
- last monthlast modified: last month
- last month
- last monthlast modified: last month
- last month
- last month
Related Stories

BATHROOM MAKEOVERSA Master Bath With a Checkered Past Is Now Bathed in Elegance
The overhaul of a Chicago-area bathroom ditches the room’s 1980s look to reclaim its Victorian roots
Full Story
BATHROOM DESIGNBathroom of the Week: Light, Airy and Elegant Master Bath Update
A designer and homeowner rethink an awkward layout and create a spa-like retreat with stylish tile and a curbless shower
Full Story
HOUZZ TOURSMy Houzz: A Midcentury Remodel and New Master Bath in Dallas
A family of 4 enlist a professional designer to help them tackle multiple long-term projects
Full Story
BATHROOM OF THE WEEKElegant High-Tech Master Bath Designed for a Wheelchair User
Wide-open spaces, durable porcelain tile and integrated gadgetry help a disabled woman feel independent again
Full Story
BATHROOM MAKEOVERSRoom of the Day: A Master Bath Replaces an Awkward, Unused Space
See before-and-after pictures of a Nebraska bathroom built from scratch
Full Story
BATHROOM OF THE WEEKBathroom of the Week: A New Master Bath in Black and White
In Pennsylvania, a bedroom is converted into a bright, airy and budget-friendly bathroom
Full Story
HOUZZ TOURSMy Houzz: Industrial Style in a Converted Doctor’s Office
An elegant art collection and an open layout mark this couple’s Uptown New Orleans apartment
Full Story
BATHROOM DESIGNRoom of the Day: A Closet Helps a Master Bathroom Grow
Dividing a master bath between two rooms conquers morning congestion and lack of storage in a century-old Minneapolis home
Full Story
BATHROOM DESIGNBath of the Week: Converting a 19th-Century Bedroom in Texas
Bygone details merge with modern-day amenities and materials for beautiful contrast in a master bathroom
Full Story
BATHROOM DESIGNBathroom of the Week: A Serene Master Bath for Aging in Place
A designer helps a St. Louis couple stay in their longtime home with a remodel that creates an accessible master suite
Full StorySponsored
Virginia's Award Winning One Stop Kitchen & Bath Remodeling Resource







3onthetree