Furniture layout help – game plan
I’m trying to figure out the best arrangement for our
main LR/family room. I’m willing to
replace everything (won’t happen at once), but need a game plan. Trying to be open minded
Here are some layouts.
The room, openings, window, and all my current furniture except end
tables are to scale. My couch and
loveseat are large, but figured I needed to start somewhere with measurements.
Notes:
Room is 15x18 and not wide enough to really float
furniture. Entrances and windows pose issues. This is our room for tv
viewing and hanging out so seating is a plus as we’re an expanding family. Also need storage for books and dvds. Flooring will be changed to hardwood.
Here's what the room currently looks like. Again, everything is to scale except end tables. Toy box is kept in the upper left corner.

1.
*Add a fireplace and white built ins. TV would sit on the top of a shelf.
Pros – There would be a focal point when walking in.
Note: I had later added rugs to some of these just trying out sizes.
Tv on top of a cabinet top 'shelf'.

2

3

4 A sectional would
probably fit the space, but I don’t know
if I’d like NOT having an end table in that corner. Should the long part stretch the whole length
of the window?

5

6

7 I was picturing a tv on a higher chest/stand OR on the
wall above it; possibly with floating shelves around. I’m not sure that will work right with the
chair in front. Looks naked without a
chair there.

Cons – THE BIG 15’ BLANK WALL is now a focal point of the last 3. There’s room for a sofa table behind the
couch but if I can’t get that whole area looking nice, I honestly feel like it
would be worse than what I have now (8' armoire). I
like the idea of a large tobacco basket and floor or sofa table lamps flanking, but that
isn’t going to be enough to make that wall look finished.
You’re also facing the hall and that seems backwards to me.
Here’s a blank one.
Help please.

Comments (87)
User
Original Author10 years agolast modified: 10 years agoSo I'd only do a sectional if it floated in front of the TV on the long wall.
Meaning the tv would not be in corner A and would be somewhere else like where you mentioned the bookcase going?
Here's a mock up of two sofas (scaled to my sofa). I'm guessing you would put the actual tv stand on that longer wall in corner A? I was thinking I didn't need one, but I will for the dvd player. I thought about a corner stand, but that short wall is only about 34" from corner to the trim and it would also be in front of the vent.
The tv stand in the drawing is too big. My e.stand is the same length as my sofa (which is in front of the window) so I can kind of visualize. That's my ottoman dimensions which I think will be too small. Heck, I thought it was a pretty big ottoman at 30"x40", but no so.

You didn't mention a chair. Don't you think that area (shown in the dwg below) would look like it was missing something without one?
*forgot to add lamp to end table. I like that there's a bookcase in the room. Two areas does seem like overkill. Thinking more about traffic pattern, a lot of times we'll come in from the kitchen area (looking at dwg below it's the upper entrance). If someone came from the hall it wouldn't 'have' to mess up tv viewing.
When it's all said and done they'll be four people who mainly use the room. We like to be comfy and loungey. I'm usually upright, but always prop my feet on the ottoman.
Sketch 9-2
Here's the same layout with a 12x10 rug and a 70" wide bookcase.

Does it seem weird when going into a room and to be facing the hall/foyer? I guess that's basically kind of what the room dictates, but it seems so bass akwards to me. (Says Shee who is analytical and sensitive to change.)
Also something to note, with the sketch above, when you come in the foyer you'd see the tv/stand first as you start to turn to go into the room.
Not finding many pics of swivel wall mounts with stands below for reference. Here's one of the few...
Not digging that particular cubby shelf.
When I eliminate the e.stand I was thinking a taller stand that looks more like furniture. Something like this maybe.

- 10 years ago
Does it seem weird when going into a room and to be facing the hall/foyer? I guess that's basically kind of what the room dictates, but it seems so bass akwards to me. (Says Shee who is analytical and sensitive to change.)
Actually, this seems more comfortable to me. Walking in and seeing 2 wide open couches looks inviting. It says to me, "Come in and relax." Walking in toward the back of a couch feels more awkward. Most people like to sit where they can see people coming and going without being startled, so being able to see the foyer from the couch would actually make many people feel more secure. : )
I like the idea of a furniture piece under the tv, but I'd probably look for something shorter, about 30" tall, so that no neck craning would be needed to watch t.v. I realize the wall mounts will tilt the t.v., but tilting it still seems more awkward than having it at the right viewing height to begin with.
Related Professionals
Jacinto City Interior Designers & Decorators · Camarillo Furniture & Accessories · Chambersburg Furniture & Accessories · Denver Furniture & Accessories · Kearny Furniture & Accessories · Culver City Furniture & Accessories · North Hollywood Furniture & Accessories · Temple Terrace Furniture & Accessories · Carpinteria Furniture & Accessories · Ashburn Custom Artists · Palm Springs Lighting · South Bend Lighting · University Lighting · Placerville Window Treatments · Rancho Santa Margarita Window TreatmentsUser
Original Author10 years agoLaughable -I guess it did feel inviting when I moved furniture around for a real life mock up and you saw it waiting for you. I was thinking at night looking into the big, dark, hole. I just won't sit in that spot! :)
So you would sit the tv on a stand? Still in the spot from your drawing? I like that one and the latest one above for different reasons. Low stands make me nervous, especially with a toddler. We have the no throwing in the house thing down pretty good, but I'm still on alert when we're at homes with low tv's. Silly to worry about the height because the kid can throw so it could technically still hit even our tv. Ramblings............ basically just another visual thing I'll have to adjust to.
- 10 years ago
While the chair looks fine in a drawing, the thing missing is people, and you'll have kids using that space. I wouldn't crowd that wall if you have enough seating with two sofas. When you have teens, they'll want to stretch out on sofas to watch TV, so I'd prefer a sofa over a loveseat. You'll probably want two end tables. I like a round one in the corner between two upholstered pieces.
I like the looks of the TV mounted over the storage cabinet. It wouldn't bother me to adjust the TV, but you could leave it in viewing position and only put it in non-viewing position when you have company. But I think you're going to need the arm if you use either corner for the TV. Otherwise you're back to the TV on your long wall and trying to fit seating around it.
Do you use corner A for your Christmas tree? That would eliminate it for the TV. But with either corner, you get a nice big bookcase. Nice that those walls are long enough.
- 10 years ago
re: direction of sofas-- I personally dislike facing a hallway. it doesn't feel cozy.
User
Original Author10 years agolast modified: 10 years agoMay - You'll probably want two end tables.
That would be functional as well as balance that wall out better.
No it wouldn't fit there. I actually use the corner to the left of the e.stand that holds the palm tree. I move the palm, the table, and slide the wing chair down. It's a 7.5 fake, W-I-D-E, but nice looking tree. I'd like a small one, even tabletop would be fine with me. DH likes the big one. Part of me feels like a real tree this year.
I honestly like a few of the ideas above. My fav. originally with the fp and built ins create room for a lot of stuff that could be problematic. Will that look date eventually? Is that a current 'thing'? And those walls that would look good with a bookcase...even if I didn't use a bookcase and used a sofa table it would still equal more visual stuff. Leaving corner A totally bare I think looks like you forgot something.
Then these other arrangements with the furniture against the main wall, the big wall and looking into the hallway... seating would be optimal though which is important.
Also, with the last arrangement in order for the couches to form that corner angle and not look to spaced apart while staying centered with wall and window, I'm guessing I would need to find couches as large as my existing couch?
I'll have to show some drawings to DH and see what he thinks. Ha, he actually thinks the room is 'fine'. It's fine he says! It's exactly that honey and that's what's wrong with it. ;)
- 10 years ago
Built-ins with a fireplace are timeless. Or, at least, they have been around a long, long time.
- 10 years agolast modified: 10 years ago
In your FP layouts, your TV is in the corner, so it still seems you'd have to angle the TV on an arm toward the sofa at the window. But doesn't it make more sense to just put the TV on the wing chair wall directly facing the sofa? You wouldn't want a chair there with the TV imo. Try a layout with a FP and the TV on the short wall.
- 10 years ago
I'd still use the wall mount so that the t.v. could swivel, but put a 30" tall cabinet with doors below it for storage. Your toddler will outgrow his throwing phase eventually. : )
Maybe you could put a little table with a lamp on it in the foyer, or at least a nightlight, so that there is a warm, soft glow out there in the evenings and then it won't feel so dark and scary. That, and/or a French door to separate the living room from the foyer so that it doesn't feel like you're staring out into the hall.
User
Original Author10 years agolast modified: 10 years agoAnele - You have a wall of built ins you did, right? I think I'm picturing your LR.
Mayflowers - But doesn't it make more sense to just put the TV on the wing chair wall directly facing the sofa? You wouldn't want a chair there with the TV imo.
There probably would be more glare. I see a lot of photos where there's a chair off to the side near the tv with a fp built in/shelves set up. Maybe it's not coming across well in photos, but I think there would be enough room to provide extra seating when company is over and not obstruct the tv.
Here's a drawing. I don't know what I think. I didn't like it at first and now I'm not sure. I'm so visual it helps when I can find images. Slim pickins though because most rooms online don't seem to be 8' drywall boxes though. I also think it looks weird to have a bookcase or something in corner A. If I did built ins I don't need another bookcase.But I think you're going to need the arm if you use either corner for the TV.Otherwise you're back to the TV on your long wall and trying to fit seating around it.
I'd be fine with using an arm, but the current tv viewing issue is because the sides of the armoire are forward and cut the edges of the tv when off too if at the far end of the couch or on the wing chair. If a tv were actually sitting something like this I think you could just angle the tv and it wouldn't be an issue. Though I've seen photos of the tv above a shelf and attached to the wall in a built in set up.

Laughable - I have a substantial (surprise!) buffet in the foyer with a lamp that we turn on occasionally. I should turn it on more often because I do really like the glow. There's a night light in the hall....but it's ugly. Ha ha. It's a very blue LED light. DH picked it years ago and for some reason have never bothered to change it. Adding that to my store list.
Thinking/typing out loud.
Fireplace option
I really want a fireplace and built ins. I think it's so pretty. However, I don't know that it's the best thing for the room. If it's pretty enough maybe it would take away from the other issues it will create, ha. Like what to do with the other walls since I won't need more bookcases or open storage. Couch with chair or a sectional, I'm not sure that's enough lounge seating. Sure, we could sit upright. A sectional would probably fit that area better. Not sure there would be enough room to possibly add a sofa table behind the short end that was suggested at one point above. And this wall is still awkward. You can't really anchor art behind the chair right. I should also note that there's a thermostat and three light switch on that wall toward the entrance.

Couch on long wall with another couch and possibly a chair makes for the most seating. I could still have a bookcase and it could be a focal point. If I put the bookcase in corner A, people could view that instead of the tv when coming in from foyer (though nobody really every comes in that way!)
I still like the idea of adding bookcases or closing in the couch like laughable suggested above, but then there's that other bookcase or stand issue again. A lot going on.
I wish we were sitting at a table drinking... a beverage of choice (coffee seems fitting for this statement, but I don't get the appeal!) talking and pointing at these drawings. Thanks for listening and helping.
- 10 years agolast modified: 10 years ago
You're doing good, Shee. You know there's going to be trade-offs with a room with two doorways, a large window, and short walls. You just have to pick the one that hurts the least!
I'd find it hard to view the TV in the photo you posted. In all the rooms I've seen posted, by those who watch more than just 15 minutes of the morning news, the TV goes over the FP or on a different wall. So maybe a thread asking about viewability of the TV over a FP vs. on an adjacent shelf would be helpful. I wouldn't go by what you see on Houzz because we KNOW that's not real life!
Edited my post because I measured my sofa and ottoman and see that a second sofa would block your kitchen door. I don't know why they don't let us delete photos.
Could you label the lengths of the short walls?

- 10 years ago
No more wall of pseudo built-ins (they were Billy bookcases) for me. We moved 3 years ago. We don't have a TV in our new living room because there really is nowhere to put it! Now it's in the basement. . .New living room has new challenges.
I think most of the problems of photos we see of arrangements on Houzz is that the rooms are just bigger. I have the same problem with my house (my room is even narrower, remember!)- your room is NOT small, but to recreate the ones we see--well, it isn't always possible.
However, the scale of the furniture can change everything! Arms especially make a difference. Slipper chairs can be your friend when you need more seating. But, if you depend on scale to the nth degree, then you will have to balance comfort and design.
I agree with Mayflowers that designer rooms do not always show the best way to watch TV. My husband would say that the over the FP position is way too high for any extended period of time. He will notice things like THAT but won't care if the walls have spackle from the previous owners and need to be painted. (True story!)
I wish we could be in your room. That helps me a lot!
Anyway, let's say you only had TV and seating in the room, period. Where would you put things for optimal viewing?
- 10 years agolast modified: 10 years ago
If you are adding a fireplace, isn't it more likely to be a sleek gas type than a traditional fire box? If you try to do a traditional fire box, you would be losing at least 2 feet on the room and having to do foundation work to support it. If you are doing a more contemporary fireplace, it can be more horizontal and lower, and that makes for easier TV viewing above it. Something more like this - (sorry, having issues linking it)
[https://www.houzz.com/photos/contemporary-basement-transitional-basement-calgary-phvw-vp~2184888[(https://www.houzz.com/photos/contemporary-basement-transitional-basement-calgary-phvw-vp~2184888)
User
Original Author10 years agolast modified: 10 years agoMayflowers – Really looking back at that photos I posted
I guess the tv does look like it would be hard to view from the couch.I’m not opposed to the tv over a fireplace. I should start a thread asking. The center of our current tv is 56” from
floor. Looking at the space above the tv
seems to be only a minor eye shift.I love the look of a cozy furniture arrangement and sofas
facing each other, but you’re right it will block the one entrance. You can edit and delete photos for up to a
week. If you start the thread, the
original post has only an hour to be edited.
I deleted some from the thread because it was getting so clogged up. If you go to edit you should be able to
delete them.Random, my sister has a huge ship like in that above
photo, but even better, that my BIL’s grandfather built. They’re moving and I was asked if I wanted
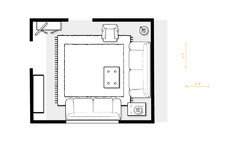
it, but sadly, have no place for it.Here’s dimensions plugged in a plan. Should have done that from the
beginning. I was incorrect in quoting a few dimensions above. The actual lines may not line up, but the numbers are correct except the note I made. I don't see an 'undo' option for that planner and it was the last wall I plugged in.
Another question – If I went with a couch and chair like
shown above what about foot stool or ottoman?
I’m thinking a recliner (one of the pretty ones) would be in order, no? That or constantly slide the ottoman back and
forth when in use.As I sat at my island eating breakfast this morning I peered over to the table side (the side with the same size backdrop as my LR) and thought to myself how I might actually move the table out and the couch in for a wall visual.
Anele – I actually wish my room were smaller sometimes
with a specific seating arrangement that was idiot proof and worked.However, the scale of the furniture can change
everything!Ain’t
that the truth. Back when we bought our
current couch and loveseat we didn’t measure anything and we ALMOST bought the
matching chair and a ½ with ottoman too.
Yikes!If only
tv and seating? I like to see a focal
point when walking into a room. It doesn’t
mean I couldn’t adjust though. I tend to
spend about 10-14 days cringing at some changes the transition period ends for
me.Lascatx
– See this is something that’s important and I didn’t spend a lot of time
thinking or researching. No, I think would
want a traditional firebox type. As for
losing the 2’ in the room, I’ve been trying to visualize that because the center of the e.stand comes out from the wall about where I think all that would stop. I think I’d be ok for space from the length
of the room. I’ll have to look for more
photos similar to what you’re showing.You
mentioned having to do foundation work for the fp, I would install an electric
fp – I know! The horror! – I’m uncomfortable
with gas like some people are uncomfortable with guns. (also have electric
stove) and it sounded like a lot more involved.
I would research the heck out of the inserts and buy the nicest one I
could find. How much of a difference
does that make for install?- 10 years ago
With this last layout, you're keeping everything the way it is now except using a chair instead of a loveseat, so I think you know how that will work. Is this going to be enough seating for the next 15 or so years?
- 10 years ago
I've never dealt with an electric FP and know nothing about them.
You asked above about having all the furniture facing the hallway. You don't want to walk into a room and see nothing but the back of furniture and obstacles, but a couple of the drawings above have a waiting room feel to me -- ring of seating with a TV in a corner. Make sure you don't create a doctors' office feeling to the room.
If you are like most families, the opening to the main entry may not be used that often, but the opening to other living areas is probably the one you want to feel more open.
User
Original Author10 years agolast modified: 10 years agoMayflowers - Yes, if the tv came out of the armoire so that it could be viewed from all the seats.
I don't know that a sectional would really provide more seating that the chair.
Lascatx - I get what you're saying about the waiting room feel. That was something that popped into my head too. I'm not sure how much I can get away from that since the room isn't wide enough to float the furniture.
Are you mainly talking about the ones with the sofa against the largest wall?
- 10 years ago
What about a fireplace in the corner and the TV on the big wall with shelving all around the TV. Do a sectional and use the sofa table for lighting and decor. Use a swivel chair next to the fireplace. Here is an electric fireplace link for dimensions. I've drawn it slightly bigger.

- 10 years ago
There were a couple of layouts that seemed especially "waiting room" -- one with the sofa against the window and the single chair to the side and the other with the sofa on what I think you are calling the long wall, but it is actually a shorter wall, just uninterupted with windows or doors (where your TV is now). In both, the main seating is facing doorways, but the seating is also not grouped for conversation or interaction. It is seating for seating's sake. The additioln of another chair to create a circle of sorts does a lot to focus the energy in the room rather than looking out (and I'm not a feng shui person -- not even sure if I spelled it correctly).
A family room is a room with a purpose -- to spend time together. People differ on how important a TV is to that room, but no matter how you use it, you want to be focussed on your being together and your activity.
I think something like Karenseb drew up, with a FP centered or in the corner -- either way, is one of your best options. I favor a sectional in your room, but I've lived with one for the past 13 years and am about to get another to replace it.
Our FR is smaller than yours (16x14 or 14x14 if you take the FP into account), with windows and the FP taking up 2 walls, a built-in on the third and no wall on the end (open to kitchen and breakfast room). We'd never had a sectional and had some reservations, but this room needs one. We found the sectional to be very comfortable for everyday and flexible when we have large groups. The old one had a chaise that allowed more seating when needed and we have a sofa table that butterflies open to be a square table for games, puzzles or extra dining space. We could get up to 16 people with that table and our breakfast room table.
I am with you in not liking the marshmallow puffy look, but you can find tailored, traditional sectionals as well as clean lined comtemporary ones. Pottery Barn has their performance and Sunbrella fabrics that are family friendly options if you don't like leather. Leather is great as long as you keep ball point pens and permnent markers off of it (true of most anything). When you watch a movie together, mom, dad and kids are all sitting together -- no one gets stuck sitting by themselves. I like that togetherness in the family room.
Oh, as far as having a table in the cprner, we haven't and managed with end tables, but when we get the new sectional, I plan to put aC-table in the corner to address that issue.
You have just enough more room and fewer obstacles, so you may not need a sectional as much as we did, but I think you find you really like the way they live.
- 10 years agolast modified: 10 years ago
Karen's idea is intriguing. I looked through Houzz for examples of a corner fireplace in an understated living room (a rare bird for Houzz) and found this one.
Before we bought our armoire, we had a large TV stand and old style TV in our corner B with the sofa in front of the window. It didn't make the room appear smaller or crowded. Our LR is 13 1/2' wide.
Gail Barley Interiors · More Info
Gail Barley Interiors · More InfoI also saw this corner bookcase where you could switch the FP and TV in Karen's layout.
Duplex near Harvard Square, Cambridge Massachusetts · More Info User
Original Author10 years agolast modified: 10 years agoKaren – Wow, thank you for taking the time to sketch
that. I like that idea. I was thinking earlier today a sectional
would really fit the space better if I kept the tv toward the front of the room. If I can find one that isn’t bulky and could
use a sofa table behind to make up for the end table we’d be losing that would
be great.Lascatx – Yes, when I’ve been referring to long wall I’ve
been talking about the uninterrupted wall where the tv currently is. Sorry, I didn’t really think about that.The addition of another chair to create a circle of sorts
does a lot to focus the energy in the room rather than looking outI agree, but because of the doorways and the
width of the room, I don’t believe another chair will fit other than around the
walls for those layouts. It looks strangely
in the way and out of place.I’m leaning more toward a sectional. Just seems more family like. Hoping someone will want to sit down on the
end closest to the tv assuming I went with something like Karen drew above.Yes, Sunbrella fabric is something I’ve been
really thinking about in recent months.
I’ve love the next furniture to be lighter in color, but even though we’re
careful I’d prefer something that wears like iron. I do really like cognac colored leather, but
DH is opposed to leather seating. I wish
our current ottoman was a lighter, warmer brown leather.Do you mean you’re going to use a C table where
a corner table would go if you didn’t have a sectional?Mayflowers – Thanks for finding those
photos. Here’s Karen’s dwg. with the tv
on a corner unit. I couldn’t get
everything to line up nice and neat. Pretend
there’s a swivel chair. Where do the dvd
players go?
Here's Karen's dwg. I did.

Tonight I’m leaning towards Karen’s plan or
like the last photo of the tv and fp flipped.
I actually think I prefer the idea of the tv being off to the side vs.
the main focal point when you walk in. It also may be better for overall tv viewing
with a sectional.That tv wall will have a lot of shelves going
on. Hopefully in years to come I’m not constantly posting asking for shelf
accessorizing help! It’ll be fine. I have BOOKS!
(and ducks. I love my Grammys old
wooden ducks)Anyhow, I think the design of that wall could
really make or break a room. I’m not
creative enough to sketch this stuff up from imagination so who would I hire to
do that? Designer?- 10 years ago
I think that sectional layout works with a corner FP or a FP and TV straight on that same wall. We have our TV in the corner. I know it's not preferred, but it would be too high and too small to fit over the FP and between the windows, would have to be small and viewed looking into glaring sun on one wall and would have the glaring sun hitting the screen on the other. Looking smaller wouldn't be my concern -- being locked into something rather permanent in the corner would. Though I do love the corner FPs in certain SW architecture, so I'm not necessarily opposed to the idea.
- 10 years agolast modified: 10 years ago
Just saw your last post -- if you like the idea of the TV off to the side, why not keep the FP centered? Put the TV in the corner, but don't make it part of the built-in. Try something like this stand. You don't seem to need more of a cabinet it you have a wall of cabinets and shelves.
Yes, the C table can go in the corner, standing in front of the sectional or with the table pulled over the seat beside someone or between two people. The open side of the base allows it to slide under and over the seat.
User
Original Author10 years agolast modified: 10 years agoLascatx -
I like that stand. I've never seen one like it.
Found these photos and now I'm back to thinking about the tv where the wing chair is. I'll mess around with drawings more tomorrow.


- 10 years ago
I think that location could work too. If you are going to do a FP and built-ins, I would have ideas but not purchase anything for the TV until the FP is in, just to make sure they work together. I would not attach anything to the built-ins in the corner. And something like that stand would not look anywhere near as massive as the cabinet you have in that photo.
- 10 years agolast modified: 10 years ago
Instead of the TV in the corner, why not just put it on the 8'11" wall? If you did bookcases on both sides of the FP, couldn't you attach a low cabinet along that wall (no angled corner cabinet) and make a nice clean L? If the TV were placed near the doorway end of the cabinet, a chair could go in the corner in front of the built-ins.
I like a built-in better than a TV stand for the same reason I like the sectional--fewer finishes in the room. I think the unit lascatx picked out is more modern and casual than you'd want with your DR and kitchen decor--traditional white cabinets and fireplace makes sense to me.
Is the FP wall an exterior wall?
Maybe I just like the idea of the chair having a cabinet behind it and a long low something spanning the entire 8' wall would work.
User
Original Author10 years agolast modified: 10 years agoLascatx - Good idea about waiting to purchase a tv stand if that's the direction I go.
May - I think I like that idea better than a separate cabinet for the tv on the 8'11" wall. I agree about fewer finishes in the room would be better.
I just was in staring the wall between corners A and B, how would you end the built ins, where the tv would go, to the right of that entrance? Do you know what I'm saying? There's that short corner/wall, then an entrance. Would the built ins just stop right at the right side/edge of the entrance and run straight up?
Yes the fp wall will attach to a breezeway and garage.
Maybe I just like the idea of the chair having a cabinet behind it and a long low something spanning the entire 8' wall would work.
? Do you mean a chair in front of built ins like that last photo I posted? I would want closed storage space along the bottom of the built ins.
- 10 years ago
This doesn't help a bit with the t.v. placement, but it does remind me a lot of your space:
Debra Campbell Design · More Info - 10 years ago
I wouldn't do a bookcase on Wall B. I think that'd give you a library look if you're doing bookcases on the FP wall too. Maybe a 32" - 36" H cabinet the same depth as the bookcases. I like the wall-mount TVs--it just seems a little more modern/upscale than placing it on the counter, but that's just me. Art to the right of the TV, a low-back chair in the corner.
I think the plant solves the problem in corner A too! No bookcases you don't need.
User
Original Author10 years agoLaughable - Thanks for posting that. I like the cozy feel of the room.
May - Wait, I was connecting the built ins to wall B for the tv. You're saying the stand should be the same finish/look of the built ins so it flows, right?
I like the idea of just a plant there too. It definitely needs something.
User
Original Author10 years agolast modified: 10 years agoMayflowers - I really like the feel of that photo. I like the paneling too.
The bookcase would be wider of course and hold the TV.
I'm sorry, which plan are you talking? The original built in/fp ones that I said about the tv on a shelf? There's so many that were talked about I'm having a hard time keeping things straight.
Since PB was mentioned above I was looking at their sectionals and dimensions tonight. I was really hoping basically fill the shape I have now minus 1' off the loveseat so it wouldn't visually extend past the doorway.
This is their Turner Square Arm 3 pc. L. It will go out past the darn entrance. Hopefully a chair in the corner would fit IRL. I'm not into big tv's. Even if we replaced the current one, I wouldn't want one much larger. These both are to scale.


And here it is with a single on the end instead of the full loveseat.


This just looks small! Maybe it would look better and not so stubby IRL. (?!) I was hoping to find something more like this seating layout (not necessarily style or color) that somehow fit the space.

I know there are other manufactures out there. Does it vary much from company to company?
It was helpful for me to see a start to finish.Before

After

living room remodel adding fp and built ins- 10 years agolast modified: 10 years ago
I have the Ethan Allen Bennet sofa, and the Bennet sectional is 92" on the short side. You have 95" minus baseboard, right? It's five cushions plus the corner. My sofa is very comfortable. It has a rolled arm, so I would think you could find a five seat sectional without the rolled arm that would fit the short wall.
I meant that a built-in bookcase or cabinet on Wall B would be wider than the bookcase shown in the photo I posted with the side wall bookcase. I haven't found a photo where the side built-in is attached to the fireplace built-ins, but I did find this corner bookcase.
Living Room · More InfoI like the cozy corner it creates for a chair (ignore the wiindow seat) and solves the issue of decorating the wall behind it. You know how hard it is to decorate behind an angled chair. But, if you attach a cabinet on Wall B, it will throw off the symmetry of the FP bookcases. I hadn't thought of that. Hmmm. I'd really like to make that corner chair look like it belongs there. Maybe it just needs to be pulled forward a little and have an arched reading lamp on the floor behind it? Also, you may want to plan for a larger TV because it's going to be farther away, and you'll want that option when your eyes are older if you do a built-in.
That is an amazing transformation of that home. The layout is exactly like bac717's who has struggled with her LR for a couple of years. Do you remember her? She has a sofa on the long wall and really needs a fireplace and built-ins!
User
Original Author10 years agolast modified: 10 years agoOh my, I just measured my loveseat wall and it's 102"L with trim. When I checked my walls on the plan it's correct, but that yellow line I drew that says 7'11" is wrong for some reason. I'll go over the plan later, make corrections, and mock up more.
I like that sectional. Do you think I should totally stay away from rolled arms? I think the EA one is way less stuff looking than mine. I'm assuming anytime you see a sectional they can order it in the mirrored direction, yes?
So you think a built in cabinet or bookcase on wall B should attach to the fp built in wall? Above you said.
wouldn't do a bookcase on Wall B. I think that'd give you a library look if you're doing bookcases on the FP wall too. Maybe a 32" - 36" H cabinet the same depth as the bookcases.
I was concerned about the balance thing too and if it were more bookcase like how to end it because of wall A and the doorway. I really would love a corner chair and to have it all look like it works and was meant to be. (I'll bet I have those measurements smaller than they should be too on the dwgs.)
I do remember bac717. I vaguely remember her room, but I can picture a few chairs of hers.
I agree if the tv is surrounded by something I'd rather have it larger so we have that option. Never say never! I'm hoping it just doesn't dominate or take attention away from the fp wall.
Going to look for more photos later.
- 10 years ago
I was concerned about the balance thing too and if it were more bookcase like how to end it because of wall A and the doorway.
I'm not sure what you mean by how to end it and what wall A has to do with it. I was confused when you asked that before too. I was kind of seeing cabinets with doors that wrap around to the side wall and end about 12" from the kitchen doorway. The TV sits on the cabinet or mounts on the wall. On the FP wall you'd have bookcases on top of the cabinets. If you have a cabinet maker do this project, the design will evolve as you work with his knowledge of cabinetry.
I don't think you need to avoid rolled arms if it will fit. I need something for my shoulders since the TV is perpendicular to the sofa. I don't really use the coffee table/ottoman unless someone is sharing the sofa with me.
- 10 years agolast modified: 10 years ago
I was also thinking about options without bookcases over your cabinets because, let's face it, no one owns books anymore. The cabinet is taller in that case. That's why I asked if it was an exterior wall--often there are small windows on both sides, but there's no reason you couldn't use art where windows would go.
Ooh, look, sconces! That would be good for your corner chair. Then you only need something on the shelf.
Greenlake Residence Living · More Info
Fabulous City Living · More Info
JIM ARNAL SIGNATURE HOME #1- NE 45TH & SISKIYOU · More Info
Traditional Living Room · More Info User
Original Author10 years agolast modified: 10 years agoOh ok. I just wasn't sure where it would stop on wall B. You're saying no bookcases on B, just tv on wall and cabinets that wrap around to built in wall. Gotcha. For some reason I was picturing everything coming to the trim and wall A and B looking funny.
Here's another pic. I think all dimensions are correct. This is with the EA sectional dimensions (dwg. doesn't officially 'look' like the sofa) I also added the wrap around cabinet with tv above.On wall B, there's 1'10" from trim to the side of the picture frame so I was using that as a guideline for maybe where the cabinet would start/stop. Depending on how far the built ins come out, the section of tv cabinets would be about 5.5' long. Do you think that's proportionate? I know you mentioned leaving room for a larger tv. Looking at the real life pic, making the cabinet length shorter might look odd. You'd then have wasted, weird wall space to the left.
Oh, those pictures are nice too. The windows in the last pic are especially pretty. Hey, hey, hey...I read physical books. I don't see myself reading from an electronic device anytime soon, but again never say never! Sadly books aren't looking real popular for the future.
I really like sconces. Is there a standard size for fireplaces? I need to do more reading up on the subject. I'm guessing you first choose an insert, then mantel, then tile or whatever if you're using it. If I didn't do shelves above I think the fp would need to be pretty wide. For visual reference, the middle section of my e.stand is 4'2".
I mentioned the plan to DH tonight and he seems for it. Of course, I want this all done right-flipping-now.
- 10 years ago
It's looking good. And for the record, we still read books. Lots of them. : )
- 10 years ago
Reading them and owning enough to fill two bookcases are two different stories. ;) You both have kids so they own a lot of books compared to most adults. We have books on topics like gardening, travel, and photography. But we don't buy novels anymore. I love my tablet for reading.
I like the sconces too. The ones in the first photo look too small. Whoever builds your cabinets and fireplace surround will work with drawings and make sure everything balances. I designed the dining room side of my peninsula with cabinets and shelves and kept refining the design with my cabinet maker until we were happy. It was a lot of fun.
User
Original Author10 years agolast modified: 10 years agoThanks!
We only own topic books and kid books. I figured books on the shelf and a few larger items.
Do I need to look for a designer? I wouldn't think all people with that label would be able to figure out all the dimensions/details. I know the carpenter I'd like to build this. He installed all the crown and bb in the house. He's not cheap, but does great work. Of course he wouldn't do any tiling, electrical, etc. and I don't know that he'd necessarily sit down and design it with me. Probably would be easier to hire a general contractor for the work so I don't have to play project coordinator.
- 10 years agolast modified: 10 years ago
The kitchen and bath company I used was a design/build type of company. Everything was done in CAD drawings (I think that's what the 3 dimensional computer drawings are called). It's the same as you'd get for kitchen cabinetry. I drew my idea up on graph paper and he put it into 3D. I was able to look over his shoulder and tweak it. He knew how it would look IRL so I went with his suggestions--size of doors, thickness of shelves, etc.
User
Original Author10 years agoAh ok. So I'll start my search with a design/built cabinet company.
Is there typically an hourly fee or does that vary greatly by company? I always wondered how that worked with kitchen designers.
User
Original Author10 years agolast modified: 10 years agoIf the fireplace wouldn't stick out past the built ins the tv could maybe still go to the left. I am a little concerned about glare on the tv on wall B. I wonder if it's going to be a big deal. I don't really want to add sheers.
Traditional Family-Focused Addition · More Info
Traditional Family-Focused Addition · More InfoI wonder if the people on the far end of the sectional can see the tv. If it were on a swivel... then tv would probably stay pulled out a lot.
- 10 years ago
My peninsula was part of the kitchen price so I don't know how they charge.
Could you put the TV on the bookcase to the right of the fireplace? The other corner could be a reading corner.
User
Original Author10 years agoWould it be hard for the people on the long part of the sectional/by the window to see? Crank their heads?
- 10 years ago
Recently, I had a custom-made entertainment center built in for my family room. I used the same cabinet maker who made the cabinets for my kitchen. I'm still researching seating options to replace my aging couches. My room is smaller than yours, 13' x 15'.
As part of the remodel, I removed a wood-burning fp from a corner of the room. I had planned to replace it with a linear, direct-vent fp under the TV, but omitted the fp. Direct-vent needs no flue or chimney, but it does need to vent to the outside.
Here are some inspiration photos with a linear fp.
Layout below has 2 chairs on the window wall. TV, fp, and matching bookcases on long wall. 2 floating couches. I think the TV is too high, but there is storage space and seating is a comfortable viewing distance from the TV.
Stonewall Ridge | Interior | New Construction · More InfoLayout below has 2 chairs on the window wall, TV on the left, short wall, and 2 floating couches. But that would leave you with one long empty wall.
Home of the Year Award winner · More InfoSectional with fireplace, TV, and one bookcase on long wall
West Vancouver Residence · More Info
Below, the TV and fireplace are on the same wall, but separated. Not much storage in this one.
W House · More InfoI decided to go with a layout similar to the one below - without a fireplace under the TV.
Hillsborough Classic Tudor · More InfoYou may have enough room for something like this layout below. I' don't like seeing the back of a couch when I enter a room - but I think it looks OK if there's a sofa table behind the couch.
Beach House · More Info - 10 years ago
You'd need to start lying on your sofa to watch TV! You'd have two seats on the short end. Any way to float the chair with its back to wall B? You'll have a rug to bring it all together.
User
Original Author10 years agoPlantoremodel - Thank you for posting those photos. I do like the layout with the tv and no fp. I like the layout of the last one too, minus the fancy cut above the tv, and wonder how long that wall is.
May - Well I talked to DH again tonight about tv placement and he thinks on wall B, left on the fp wall, or above the tv are the best options.
If I wrap the cabinets around wall B, because of their depth, I wonder if there would really be enough room for a chair. We'll see!












laughablemoments