New Construction Farmhouse
I would love feedback on my new build plans. It’s a custom design. We are doing a traditional farmhouse design. The house is about a mile off the road on a small farm, so there are two large 4 season rooms to enjoy the views. I know most people would make a larger master closet, but my husband and I don’t like to have many clothes and we will have plenty of storage in the basement. We will also have a separate suite for my aging mother.




Comments (39)
- 2 years ago
Who designed this custom design?
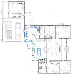
If you are on acreage, why are the bedrooms off of the main living areas and closing in the public areas because of the bedrooms flanking the public rooms? I would never want to live in a house where my bedrooms could be seen from the public rooms.
This is a list I constantly post with anything in bold something you truly need to think about.
The best houses orient the public rooms towards the south for the best passive solar heating and cooling. (What direction does the front of your house face?)
The best houses are L, U, T, H, or I shaped.
The best houses are only one to two rooms deep. And covered lanai, porches, garages, etc count as rooms in this case.
The best houses make sure kitchens have natural light, meaning windows so one doesn't have to have lighting 24/7 to use the kitchen. (And no, dining areas with windows 10' or more from the kitchen will not allow for natural light.)
The best houses make sure all public rooms and bedrooms have windows on at least two walls.
The best houses do not if possible put mechanical rooms, pantries or closets on outside walls
The best houses do not have diagonal interior walls making for odd spaces.
The best houses keep public and private spaces separate.
The best houses do not have you walk through the work zone of the kitchen to bring laundry to the laundry room.
The best houses do not have the mudroom go through any of the work zones of the kitchen.
The best houses do not use the kitchen as a hallway to any other rooms.
The best houses do not put toilets or toilet rooms up against bedroom walls or public areas.
The best houses do not have walk in closets too small to stand inside. (The casita.)
The best houses have separation, such as closets, between bedrooms and between bedrooms and public rooms.
The best houses do not have roofs that are overly large, and dominate the exterior of the house.
The best houses do not have stick on exterior materials only on the front façade.
The best houses have an organizing “spine” so it’s easy to determine how to get from room to room in the house and what makes sense. Meaning they don’t have meandering circulation paths.
- 2 years ago
Who designed this for you? What part of the country are you in? How many people will live in the house?
My first impressions: you don't include any dimensions, but Mom's suite looks pretty tiny, considering that it is not connected to the main house (which implies that she will be spending most of her time alone in her suite).
I don't care for the W/D immediately as you come in from the garage - I would rather have a bench there, for putting on shoes.
Your front door opening directly into a wall is not very inviting.
What is the plan for multiple 4-season rooms? Depending on how many people live in the house (and the second bedroom looks more like a guest room than a child's room), I expect one would rarely get used - or the living room would never get used. In any case, the living and dining rooms are going to be dark.
You can do much, much better. Related Professionals
Ronkonkoma Architects & Building Designers · Lake Butler Design-Build Firms · North Bellport Home Builders · Accokeek Home Builders · Sun Valley Home Builders · Amarillo General Contractors · Bay Shore General Contractors · Country Walk General Contractors · Miami Gardens General Contractors · Mount Vernon General Contractors · Mountain View General Contractors · San Marcos General Contractors · Stoughton General Contractors · Vermillion General Contractors · Avocado Heights General Contractors- 2 years ago
It’s so nice to have views from the four-season rooms. (As all-season rooms, are they really just sitting rooms?) Give some consideration to the views inside the house, too. For example:
Coming up the front steps, visitors have a view of your toilet room.
Coming in the front door, they have a view of a wall. I don’t mind that, there is a window to the left and yiu will have a console, lamp, and art on the wall, and they will be guided to the right toward the living room. Nicer than having the entire house before your eyes the monute the door opens.
From the living areas, you can see into the bedrooms.
When Mom walks into her suite, from the house, she has a view of her bathroom. When she wakes up in the morning, she has a view of the kitchen. (and as she ages, the bathroom will become more difficult to get to and to use, being a U-turn from her bed and the kitchen table. Design her suite for more dignity.)
When Mom comes to the house, she walks into the laundry/mudroom, which has a view of a bathroom. Design with more respect for her.
That bath might be better as a hall-access bath between that bedroom and the mudroom.
Do you need a home office, a place to keep records, pay bills, conduct household or personal business, etc?
Camilla C
Original Author2 years agolast modified: 2 years agoThank you for the responses! To answer some of your questions:
What part of the country are you in? How many people will live in the house?
We are building in Indiana. Two adults with 3 small children. Shortly an aging parent will be joining us.
If you are on acreage, why are the bedrooms off of the main living areas and closing in the public areas because of the bedrooms flanking the public rooms? I would never want to live in a house where my bedrooms could be seen from the public rooms.
Yes, we are on acreage, but we also don't want a 4,000 sq. ft. house so we are trying to keep it simple. What's wrong with being able to see bedroom entrances from the main rooms? This is open concept. Hallways are a waste of sq. footage. The bedroom entry doors we have are also statement pieces with stained glass transoms above the doors.
My first impressions: you don't include any dimensions, but Mom's suite looks pretty tiny, considering that it is not connected to the main house (which implies that she will be spending most of her time alone in her suite).
This casita is based off a studio apartment I lived in for a few years. Yes, it's small, but also has everything she needs and she has been included in designing the house. Do you have design/layout suggestions without adding sq. ft?
I don't care for the W/D immediately as you come in from the garage - I would rather have a bench there, for putting on shoes.
I agree. We will actually be pushing the W/D back a bit from where it is now and putting it in it's own room. There will be a bench where cabinets are currently roughed in to be.
What is the plan for multiple 4-season rooms? Depending on how many people live in the house (and the second bedroom looks more like a guest room than a child's room), I expect one would rarely get used - or the living room would never get used.
The 4-season room off the master is my home office. The 4-season room off the living room is for everything except watching TV. Sitting, playing with the kids (3 small children), and enjoying the wood-burning stove in the winter.
The living and dining rooms are going to be dark.
The kitchen will have a large window above the sink. The living room faces south and will have large floor to vaulted ceiling windows.
Coming up the front steps, visitors have a view of your toilet room.
Yes, as a working farm it will be important to have the bathroom available immediately when coming in from outside. Do you have another suggestion?
From the living areas, you can see into the bedrooms.
This doesn't bother us. The bedroom entry doors are also statement pieces with stained glass transoms above the doors.
When Mom walks into her suite, from the house, she has a view of her bathroom. When she wakes up in the morning, she has a view of the kitchen. (and as she ages, the bathroom will become more difficult to get to and to use, being a U-turn from her bed and the kitchen table. Design her suite for more dignity.)
Yes, when she enters from the back porch, the bathroom is right there. It's better than being able to see into the bathroom from the bed. Do you have a better design suggestion without having to add sq. ft?
When Mom comes to the house, she walks into the laundry/mudroom, which has a view of a bathroom. Design with more respect for her.
Yes, she wants easy access to the W/D so she can do her laundry without having to go through the house. The bathroom placement is important for anyone outside to have quick access to the bathroom.
That bath might be better as a hall-access bath between that bedroom and the mudroom.
There is no hall access to that bathroom. On the other side of the bathroom are the stairs going up to the loft and down to the basement.
Do you need a home office, a place to keep records, pay bills, conduct household or personal business, etc?
Yes, the sunroom off the master is my home office.
- 2 years ago
For coming up the front steps and seeing the toilet room, you said that for a working farm, it is important to have a bathroom immediately available. But one, that one is not immediately available, it is through the front hall, the living room, your bedroom, and the rest of the bathroom. But that door will be used by guests, delivery people, and the kids’ friends and their moms. Although, I suppose you’ll keep the blind drawn all the time. And the kids will keep that door to the mudroom unlocked.
Will the three little ones share the bedroom? Do you all go to bed at the same time? If you stay up watching tv, or having a snack, after they go to bed, will it keep them awake? When we stay at my mother-in-law’s condo, the guest bedroom is off the living room. Whoever is in the bedroom can hear the noises from the living room and kitchen.
I see that square footage is important.
- 2 years ago
I would never buy a house with all of the bedrooms off the open concept area. what if you have a baby thats noise sensitive? do you want to hear your spouse banging around kitchen while you sleep in? do you always want to hear terns music in your livingroom? Or others to hear you from yur bedroom? some sound privacy is worth a little square footage. i have a 1300 sf house and there is still some hallway which i am very greatful for. also stained glass is lovely but i would not want a window open to the main house??? not everyone is going to turn off lights and sleep at same time.
- 2 years ago
Yes, we are on acreage, but we also don't want a 4,000 sq. ft. house so we are trying to keep it simple.
Yes you can keep it simple, have more light inside and still keep it small if you instead consider doing an L, U, T, H or I shaped house. That way all bedrooms and public rooms can have windows on at least 2 walls.
What's wrong with being able to see bedroom entrances from the main rooms?
It means a lack of privacy. Plus it means that if you're in one of the main rooms and someone is trying to sleep, it wil be difficult. Noise travels. When you keep private spaces private you don't have the issue of noise or people being able to see into your sanctuary (the bedroom)
This is open concept. Hallways are a waste of sq. footage.
It's not really open concept because it's a tight layout with very little natural light. Yes you don't want lots of hallways, but some well placed ones are sometimes necessary to create a more liveable plan.
Maybe take a look at old craftsmen bungalows and how they managed to keep everything within a small footprint, keep it pretty open concept, yet still respect everyone's privacy.
The bedroom entry doors we have are also statement pieces with stained glass transoms above the doors.
So what you're saying is that anyone trying to sleep will really have difficulty since glass is poor for keeping noise out. Plus it's only a statement if they manage to look up.
This casita is based off a studio apartment I lived in for a few years. Yes, it's small, but also has everything she needs and she has been included in designing the house.
It has everything except if she needs to use a walker or even a wheelchair in the future. That bathroom will be unmaneuverable. And I hope that's not a tub but you just put that in as a place holder. You might want to read up on how to plan a space for aging in place. This isn't it.
The walk in closet is too small to stand in. Clothes need 2' of space and you need 3' of space for standing. If you're young and mobile you can get away with fudging that a bit. Not so much if you're elderly.
You were young when you lived in the studio apartment with few things. What about your Mom's dignity? Honestly, it's sad you're Mom is going to have to live with her bed right up against her kitchen with no room for her to do anything she might like to do. I assume unlike you as a young person she is not spending most of her days outside of the house?
Who designed this house? Did you work with a professional?
- 2 years ago
Where will you store things like brooms, cleaning supplies, etc? Linens for the casita and kid's bedroom?
How will you accomadate the kids sports equipment, etc as they grow? Little kids do not stay little for long.
- 2 years ago
I really like the size of the house :)
One suggestion for the casita: it needs space for a sofa, or at least a comfy armchair. An aging person won't be comfortable sitting on a bed or on a dining chair all day.
As a family of 5, with three kids that will grow to be teenagers, would you consider designing the secondary living room and the office such that they could be used as bedrooms if needed? - 2 years ago
There is only 2.6 feet between the dining chairs and the kitchen stools!
And there is only 2.6 feet between the dining chairs and the back of the couch! That will only work on paper.
The main bathroom is Jack and Jill ! - 2 years ago
Two kids have to share a small bedroom but the 3rd kid gets a better suite than Grandma. For the record, my whole childhood I shared small bedrooms with a sibling. What made it successful was 1) we didn’t have a say in the matter 😆, and 2) we were 15 months apart so our routine and needs were on the same timeline (same wake and sleep times, shared clothes so less closet space needed).
I think the two of us would have grown resentful of the unfairness of the older sibling in the upstairs suite while we were still crammed in a small, no privacy bedroom.
Did someone already suggest the book The Not So Big House by Susan Susanka? She has interesting ideas for making the most out of spaces. I agree that you don’t need 4000 sqft, but you might benefit from a well-designed little bit more.
Good luck.
- 2 years agolast modified: 2 years ago
The suggestions given here seem to be ideas you have already nixed from your game plan. So, perhaps some information like needs, wants, budget, the kind of flow and circulation you like, if at all, would help this board to not give you what you don’t want, but work with what you do want.
By the way, in the kitchen, the refrigerator will need to move over a bit so that the door can open well past 90°, so that the drawers can pull out.
- 2 years ago
Did someone already suggest the book The Not So Big House by Susan Susanka?
Her name is Sarah Susanka (I've written Susan for her name too many times to remember. LOL) and I second the book. It's excellent and helped when we built our house.
- 2 years ago
I think this has been said but it’s worth repeating that when the kids are teens they will want - and you will want as well - to have some separation from the main living space and their bedrooms. The same goes for little kids trying to go to sleep earlier than their parents. I have a fairly well planned one story small house where the three bedrooms are down a hallway. My daughter who is in the first bedroom before the hallway turns has far more separation than your kids will have. But she still has to regularly ask us to turn down the TV when she’s trying to sleep. Consider scrapping this plan and starting over. It’s too big a decision to barrel forward with. If designing a two story smallish house for your family I would put the kids upstairs with 2 bedrooms and a loft open space, or 3 bedrooms. And one side of the first floor would be the master and mom’s suite, with the other dedicated to the living spaces.
- 2 years ago
Have you ever lived in a house layout like this one?
What is the total square footage of the house? (Your plan numbers are too small to read.)
- 2 years ago
In addition to what Katie Parker said above, if the house isn't built with the right sound insulation, even the person in the bedroom upstairs will hear all the noises in the kitchen.
In my parents first house, built in the late 60s, my bedroom was above the den with the TV. I could hear the TV clearly if it was at a medium level and I would regularly come down and tell them to turn it down! The sound was probably coming through the hvac vents.
- 2 years ago
I know you've probably put a lot of time into this plan and it is hard to listen to all the negative critiques. (Believe me, as an artist, I know negative critiques!) But if you truly listen and rethink your plan, in the long run I believe you'll be happier and have a better designed house. It's better to get it right now, than after you build realize things are wrong and you need to change them.
When we were building, we were already in permitting when we realized the house still wasn't right. We pulled it out of permitting, reoriented the house so the rear faced south, fixed our master suite area so we had more privacy and now 4 years living in the house, are very happy with it. Don't rush this process.
- 2 years ago
You effectively have 2 hallways in this house, one on each side of the living room. There are no physical walls (which does save some inches), but the walkways must be preserved.
It doesn't look like you have consulted an architect. You have very specific needs, and a talented design professional can help you meet all those needs - for now, and as your kids grow and your mother ages - while keeping within your budget (I assume your desire to limit square footage is budget driven).
It looks like you have a basement - will that be finished? I suggest you at least rough in a bathroom, because I see that as the prime kid play space and teen hangout in the future. I would also include an egress window so a bedroom could be added in the future. Space for 2 bedrooms upstairs would be even better - I can't see that little sitting area getting a lot of use. - 2 years agolast modified: 2 years ago
A thought for Mom’s suite: the bedroom suite in my aunts in an independent living apartment is set up like this: First, a reach-in closet, then the bathroom (with a door). It is convenient when she gets ready for the day or for bed. The closet has the same amount of storage as your original closet, and the ”standing space” in front of the clothes is the same. You could also ”flip” this, so that upon entering the door from the house you see a wall with some pretty artwork and maybe a small drop zone, and the closet is on the far left with an opening behind the ”front door”.

In the alternate, i’d have a pocket door between closet and bath. It wouldn’t likely be closed when she’s alone, and if she ever uses a walker the opening will be wider. Of course, if she ever uses a walker, she won’t be able to bring it into the bathroom with her. Well, she can, but then what does she do with it while she is in there? (voice of exoerience here. We put Mom’s walker in the bathtub while she used the other fixtures. Oh, and put a shower, not a tub.)
- 2 years agolast modified: 2 years ago
In the mudroom thread, I suggested moving the front door. Something like this. It gets you a pantry. It also creates an after-the-fact ”organizing spine”. It is the access center for the mudroom, stairs, bedroom, porch on one side, and the kitchen, dining, living room, and deck on the other. A ”virtual” wall-free hallway, if you will. No change in square footage but a good use of space. also also, easy to load and unload between trunk and house without squeezing around the car.

And that got me thinking, what if the garage door moves toward the front of the garage? (the steps are still problematic) Add a window from mudroom to front porch. Cubbies and hooks as you come in, washing machine where the cabinets were. Yes, this one adds some square feet. I suppose the mudroom could be indented at the top to make up for it, if it exceeds your limit.

- 2 years agolast modified: 2 years ago
Is natural light important to you? Is passibe solar design important to you? It appears you have neither in your current plan.
Camilla C
Original Author2 years agobpath- I already have a pantry between the kitchen and mudroom.
I don't mind moving the front entrance, but where it was there was a space for a coat closet (or cubbies or hooks) for coats and shoes (where you put the pantry). If I move it between the kitchen and pantry where will guests put these things? Now, the front door will likely be used hardly at all, but still something I would be wary of.
Yes, I was considering moving the wall in the mudroom to push the washer and dryer back so it's out of the way. While the blueprints show cabinets in the mudroom, there will most likely not be a sink or cabinets, rather lots of benches, cubbies, and hooks.
I don't know if I like the walk-through closet for the casita, but I am currently looking at studio apartment layouts to redesign that space to take all the comments into consideration.- 2 years agolast modified: 2 years ago
With my rough idea, the former pantry is now for guests and etc, because there is a new pantry at the other end of the kitchen. Yes, farther from the door, but you get things from the pantry more often than you go to the store. Also, the front door would actually get used, and be convenient to boot. Just think, when the kids are playing basketball in the driveway, it’s easy to run in for a drink or bathroom, and on nice days you can open the door in addition to the window.
In the casita, I was thinking that there would be a door to the reach-in part of the closet, so she would walk past the closet, not through it, if that makes sense. It is a subtle but meaningful difference. Anyway, my aunt finds it very convenient in her apartment.
- 2 years ago
A couple questions/comments:
- Many people are under the wrong assumption that "small" or "simple" are both mutually exclusive from "well thought out" or "efficient." The size of the rooms and amenities indicates modest desires and a modest budget, however it is a more complicated plan that will be fairly expensive to build in comparison to similar sized designs.
- There are 2 types of custom designs: one that starts from scratch, and might introduce unique individual desires but still generally falls within the same framework of design guidelines practiced and progressed for hundreds of years; or one that explicitly follows the quirks and uniqueness of the individual and completely stands out as being such. One may not be more right than the other, but it is important to understand and be ok with the decision considering your lifespan within the house.
- What defines a 4-season room in a winter (Indiana) climate? Built on a deck, not foundation? HVAC? Non-insulated storm windows with no HVAC? Both 4-season rooms have a 24" high kneewall with removable screens only.
- The Master 4-season screened room doubles as an office, how will that perform on bad weather, winter days, or nightime.
- The back porch is screened, yet is only about 5' deep, not enough for furniture, because it seems to be functioning only as circulation from the Master to the wood stove room. The access from the Living Room is a U-turn through the wood stove room.
- What kind of farm, or farmette, is your site? Even if there is a barn/workshop, the house garage, storage, and utility areas seem small compared to the typical midwestern genre.
- Do you BBQ or ever have outdoor parties? Where would a patio be and how do you get there?
- A midwestern farm is expected to have a deep freezer and some long term food storage. Is the basement location adequate for the life of occupancy, and for the MIL if helping out around the house.
- The comments on having a bathroom directly available upon entering the house has 2 choices: sharing the private ADU bath; or sharing the Bedroom2 bath. Either may be intrusive at typical midwestern farm hours in comparison to when they might be used for non-farm use.
- If an ADU has a complete kitchen (standard size stove, sink, and DW) and it's own large front porch, then it would follow that a defined Living Area would be desired for relaxation other than the bed and for tv placement or guests. If the MIL is essentially in the house proper unless sleeping or cooking, then it may be good to have the pathway be entirely inside instead of going outside. Crossing the basement-sourced HVAC over the garage into the ADU will be very inefficient.
Camilla C
Original Author2 years agoHU-924188966Thank you for coming up with an entirely new option! There is a lot I like about your plan, but a few things I'm struggling with.
Pros:I really like the new layout of the casita!
I also like the separation between the laundry room and mudroom.
Cons:I miss having a pantry in the kitchen.
I like the layout of the downstairs kids room and bathroom but don't like that it is right across from the master. You also loose the bathroom being accessible immediately after coming in from outside. It was originally off the mudroom because when we come inside we often have the take off our boots (manure/mud) before walking anywhere else.
The connected 4-season room to the master was my home office (I work from home) and it was important that it face south out toward the backyard/farm and where the kids would usually be playing.
Camilla C
Original Author2 years agolast modified: 2 years ago3onthetree To answer some of your questions:
What defines a 4-season room in a winter (Indiana) climate? Built on a deck, not foundation? HVAC? Non-insulated storm windows with no HVAC? Both 4-season rooms have a 24" high kneewall with removable screens only.
Our 4-season room will be built on a concrete porch. No HVAC, but separate heat/ac wall unit. Most likely sliding windows with screens.
The Master 4-season screened room doubles as an office, how will that perform on bad weather, winter days, or nightime.
This space will also have a separate heat/ac wall unit. I work from home, so it will be used every weekday.
The back porch is screened, yet is only about 5' deep, not enough for furniture, because it seems to be functioning only as circulation from the Master to the wood stove room. The access from the Living Room is a U-turn through the wood stove room.
I agree this space will covered but not be screened in any longer.
What kind of farm, or farmette, is your site? Even if there is a barn/workshop, the house garage, storage, and utility areas seem small compared to the typical midwestern genre.
There is a workshop on the other side of the driveway and a storage building for the mower and tractor. There is a pretty large basement for storage.
Do you BBQ or ever have outdoor parties? Where would a patio be and how do you get there?
No, we don't typically have people over (husband suffers from severe PTSD) other than our parents every once in a while. We will likely have a fire pit or something out the mudroom door.
A midwestern farm is expected to have a deep freezer and some long term food storage. Is the basement location adequate for the life of occupancy, and for the MIL if helping out around the house.
There is a large (partially finished?) basement for storage and a deep freezer.
The comments on having a bathroom directly available upon entering the house has 2 choices: sharing the private ADU bath; or sharing the Bedroom2 bath. Either may be intrusive at typical midwestern farm hours in comparison to when they might be used for non-farm use.
I agree, it's not ideal, I just don't want a whole other bathroom. The farm is only a family farm (no employees or outsiders).
If an ADU has a complete kitchen (standard size stove, sink, and DW) and it's own large front porch, then it would follow that a defined Living Area would be desired for relaxation other than the bed and for tv placement or guests.
You shouldn't NEED to leave the ADU. HU-924188966 gave me a good layout for the ADU that I think will work better.
- 2 years ago
HU-924188966Thank you for coming up with an entirely new option! There is a lot I like about your plan, but a few things I'm struggling with.
Consider this a new jumping off point to create something better.
Better still would be to employ a person of design talent to help you come up with a better plan that meets your needs and gives you light, etc. There are so many things one has to know to design a house and most of us really don't know what we don't know.
There is an excellent architect who works remotely here. It might behove you to write him and talk to him about your needs and wants.
His name here is architectrunnerguy.You might be pleasently surprised with what he and Nick could do to get you moving in a better direction. And the advantage is, by having a better plan, you may very well wind up saving money because of the inefficiencies of your plan.
- 2 years ago
Also how will your Mom get her laundry from the casita to the mudroom in the middle of winter?
- 2 years agolast modified: 2 years ago
"Also how will your Mom get her laundry from the casita to the mudroom in the middle of winter?"
Mom will be taking advantage of the free pick-up and delivery service.
- 2 years agolast modified: 2 years ago
I second the suggestion to hire an architect. A good one can save you money by giving you the features that you want more economically.
Here's a spin on your original design, basically working on circulation, and privacy for the bedrooms:


Camilla C
Original Author2 years agolast modified: 2 years agoYou all have made me think and thoroughly stressed me out.
I hesitate hiring another architect because I've already spent thousands on what you are all saying are useless plans and now don't know who to trust. Yes, she was an architect not a designer. But then I hesitate to continue working with the one I have.
Other than some small changes, I do really do like this plan.
I like how the bathroom has only one entrance and is accessible from the mudroom. I like how the laundry has a separate room. I like the connection between the kitchen and living room. I like the simple entrance that still has space for coat hooks.
The small sunroom was supposed to be an extension of our bedroom and my home office. I miss them being connected. I really need a pantry in the kitchen. The casita doesn't have a closet. The sunroom living space should be accessible from the living room.
I think the biggest problem I had when designing this house and working with my architect is that I wanted the back of the house (the right side of the plans) to be a huge sunroom-type space that is fully accessible from the backyard and inside rooms - like the attached photo - but broken up into separate spaces. This indoor/outdoor space with huge windows looking over the farm is so important to us but it seems that having it is causing so many issues with layout and natural light. I've been surprised how difficult it is to find something like this because it seems to me anyone on a large plot of land would want the same thing. I guess now I know why it's hard to find.

- 2 years agolast modified: 2 years ago
@Camilla C, I hear you, it is all very stress inducing, indeed. The good news is that this is the best time to revisit the plans, before construction has started. None of our critiques are meant to discourage you. We want the best possible outcome for you!
The small sunroom was supposed to be an extension of our bedroom and my home office. I miss them being connected.
The master bath and bed can be flipped.
I really need a pantry in the kitchen. The casita doesn't have a closet.
The rectangles in the kitchen and casita bedroom are placeholders for a pantry and a closet, respectively.
The sunroom living space should be accessible from the living room.
This can be done without a problem (French doors would be lovely, for instance).
a huge sunroom-type space that is fully accessible from the backyard and inside rooms - like the attached photo - but broken up into separate spaces.
An indoor/outdoor setup makes perfect sense, but on the floor plan designed by your architect, the main living space is separated from the outdoors by the sun-room hallway AND the fireplace. Plus it is flanked by two protruding sides (with the 4-season rooms), with which it shares solid walls.
The result is the complete opposite of an indoor/outdoor connection. It sequesters your living space from sunlight and outdoor views on ALL sides.
This is the kind of view you can expect with your floor plan, but worse - imagine that there is also a sun room in the back:

Your inspiration floor plan has similar issues.Putting folding doors on the main living room's exterior wall, with a (uncovered) deck on the other side, accessible to all 3 South-facing rooms, would help achieve proper indoor/outdoor living. Connecting the main and secondary living rooms with large French doors would help too. And moving the fireplace to an interior wall (the one adjacent to your office, perhaps).

Or forget the folding doors. Have normal windows and cover just a part of the deck (maybe across the secondary living room). The great room is deep so it needs all the light it can get.Or put in a narrow covered porch spanning the entire Southern wall. Narrow enough to let direct sunlight in in the winter, but keep it out in the summer.
I think the biggest problem I had when designing this house and working with my architect is that I wanted the back of the house (the right side of the plans) to be a huge sunroom-type space that is fully accessible from the backyard and inside rooms - like the attached photo...
It sounds like your architect may have given you what you asked for (emulate the inspo photo), not what you actually want (a nice indoor/outdoor setup)... Sadly, this is a recurring theme on this forum :(
- 2 years ago
I know how frustrating this is. If you want to stress more, read my whole saga posted on this forum. Just be sure to have a good glass of wine if you do read it.
I'm assuming your architect is licensed by the state and does mainly residential?
Either way, I still think your best bet might be to get in touch with architectrunnerguy. I think you might be pleasantly surprised. As for the costs you have already laid out? Better to get it right now, than live with a bad plan. The costs of design are small compared to mistakes in the build.
And the issue is sometimes we need a person of design talent to tell us that what we think we want in the way we think we want it, won't work. And a talented person will then say, "but how about we try it like this?" And then show you.
I don't think any of the versions shown here are right so far.













User