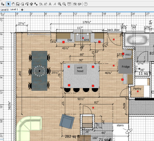
Recessed Lighting Feedback
last year
last modified: last year
Related Stories

WORKING WITH PROSWhat to Know About Installing Recessed Lighting
Find out what can-light installation costs, how long it takes and what types of lights would work for your home
Full Story
LIGHTINGRecessed Lighting 101
Looking to brighten a drab, dim space? Recessed lighting may be your answer. Here's what you need to know
Full Story
LIGHTINGThe Pros and Cons of Recessed Lighting
A lighting designer shares three things recessed lights do well and three things to watch out for
Full Story
LIGHTINGGet Your Home's Recessed Lighting Right
Learn the formula for how much light a room needs plus how to space downlights, use dimmers and more
Full Story
SMALL KITCHENSThe 100-Square-Foot Kitchen: A Dark Space Sees the Light
A new layout and open shelves bring a feeling of spaciousness to a compact New York City apartment kitchen
Full Story
DESIGN DICTIONARYCove Lighting
Tucked away in ceilings or walls, this indirect lighting provides softer illumination for rooms
Full Story
KITCHEN DESIGNIdea of the Week: Two-Arm Lights in the Kitchen
Shake up your kitchen lighting by using a unexpected fixture in a practical way
Full Story
Guide to Undercabinet Lighting
Weigh the pros and cons of undercabinet lighting options and find the best undercabinet lights for you
Full Story0

KITCHEN DESIGNWhat’s Popular for Kitchen Floors, Lighting and Appliances
Homeowners want the look of wood flooring, the 2020 U.S. Houzz Kitchen Trends Study finds
Full Story




millworkman
NancyOriginal Author
Related Professionals
Wasco Lighting · Carlsbad Furniture & Accessories · Kirkland Furniture & Accessories · Springdale Furniture & Accessories · Carlsbad Furniture & Accessories · Gages Lake Furniture & Accessories · Little Chute Furniture & Accessories · North Hollywood Furniture & Accessories · Centreville Decks, Patios & Outdoor Enclosures · Justice Decks, Patios & Outdoor Enclosures · Philadelphia Decks, Patios & Outdoor Enclosures · Shirley Decks, Patios & Outdoor Enclosures · Hammond Kitchen & Bathroom Designers · Pleasant Grove Kitchen & Bathroom Designers · Yorba Linda Kitchen & Bathroom Designerswsea
NancyOriginal Author
chispa