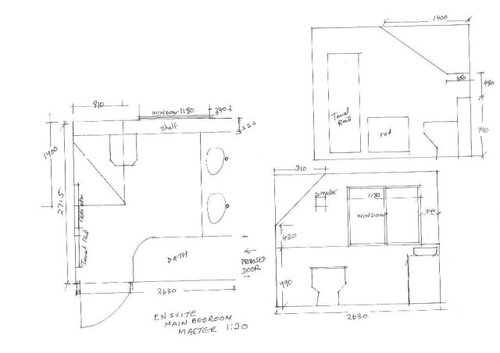
Two shower rooms or one big bathroom?
11 months ago
Related Stories

BATHROOM MAKEOVERSA Too-Big Master Bath Becomes Two Just-Right Bathrooms
A designer uses wood, marble and porcelain to create new spaces inspired by a bathroom at a favorite Nantucket inn
Full Story
BATHROOM MAKEOVERSBathroom of the Week: Warm Transitional Style and a Big Shower
A designer reconfigures a layout to incorporate better flow, calming symmetry and lots of storage
Full Story
BATHROOM MAKEOVERSBathroom of the Week: Modern Organic Style With a Shower Room
Arches, white oak details, limestone flooring and textured surfaces create a soothing new look and feel
Full Story
BATHROOM VANITIESShould You Have One Sink or Two in Your Primary Bathroom?
An architect discusses the pros and cons of double vs. solo sinks and offers advice for both
Full Story
BATHROOM DESIGN5 Bathrooms With Wet Room Areas for a Tub and a Shower
The trending layout style squeezes more function into these bathrooms
Full Story
BATHROOM MAKEOVERSBathroom of the Week: Wet-Room Steam Shower Brings Spa Style
A custom double vanity, a soothing palette and luxe details transform a dated primary bath into a serene retreat
Full Story
BATHROOM MAKEOVERSBathroom of the Week: Natural Materials and a Shower Room
A designer helps her clients update their traditional home to make it feel more like them
Full Story
DECORATING GUIDESRemake a Room With One Big Piece
Take a look at the drama you can create when you play with the scale of your stuff
Full Story
HOUSEPLANTSOne Pot, One Big Shot of the Tropics
Give your rooms exotic flair in a single stroke. Tall Kentia palm fits the tropical bill beautifully
Full StorySponsored
Fairfax County's Specialized, Comprehensive Renovations Firm




mcarroll16
HU-388555225Original Author
Related Professionals
Midvale Kitchen & Bathroom Designers · South Farmingdale Kitchen & Bathroom Designers · Salem General Contractors · De Luz General Contractors · Dothan General Contractors · La Marque General Contractors · Orangevale General Contractors · Statesboro General Contractors · Roselle Kitchen & Bathroom Designers · Encinitas Furniture & Accessories · Great Falls General Contractors · Longview General Contractors · Artondale Bathroom Remodelers · Dallas Window Treatments · Winter Garden Window TreatmentsKendrah
mcarroll16
HU-388555225Original Author
mcarroll16
la_la Girl