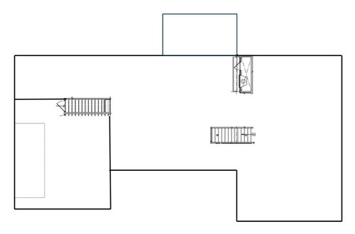
Struggling with 70's ranch floorplan redesign. Help!
last month
last modified: last month
Featured Answer
Sort by:Oldest
Comments (18)
- last month
- last month
Related Professionals
Henderson Kitchen & Bathroom Designers · Sunrise Manor Kitchen & Bathroom Remodelers · Crestline Kitchen & Bathroom Remodelers · Fairland Kitchen & Bathroom Remodelers · Tuckahoe Kitchen & Bathroom Remodelers · Ashtabula General Contractors · Lake Forest Park General Contractors · Mountain View General Contractors · Seal Beach General Contractors · Troutdale General Contractors · Morton Grove Interior Designers & Decorators · Hershey Kitchen & Bathroom Designers · Philadelphia Kitchen & Bathroom Designers · Clarksville General Contractors · Modesto General Contractors- last month
- last month
- last month
- last month
- last monthlast modified: last month
- last month
- last month
- last month
- last month
- 13 days ago
- 12 days ago
- 12 days ago
- 6 days ago
- 5 days ago
- 5 days ago
Related Stories

DECORATING GUIDESHouzz Tour: Apartment Redesign Looks to the ’70s for Bold Inspiration
Punchy colors and graphic patterns take this Edinburgh apartment from shabby to sophisticated
Full Story
ARCHITECTURERanch House Love: Inspiration From 13 Ranch Renovations
Kick-start a ranch remodel with tips based on lovingly renovated homes done up in all kinds of styles
Full Story
BATHROOM MAKEOVERSBathroom of the Week: Warm Coastal Style in 70 Square Feet
A designer helps an empty-nest couple create a streamlined space with a low-curb shower, blue vanity and wood details
Full Story
ARCHITECTUREHouse-Hunting Help: If You Could Pick Your Home Style ...
Love an open layout? Steer clear of Victorians. Hate stairs? Sidle up to a ranch. Whatever home you're looking for, this guide can help
Full Story
HOUZZ TOURSHouzz Tour: 1960s Ranch Redo in Denver
This sibling team balanced their renovation budget by spending where it counts, and turned their Colorado childhood home into a showplace
Full Story
CONTEMPORARY HOMESHouzz Tour: An Updated '70s Home Puts Art on Show
Contemporary artworks and fresh finishes take the spotlight in a North Carolina home
Full Story
ARCHITECTURE5 Ranch Homes With Modern-Day Appeal
See how the classic American ranch is being reinterpreted outside and in for today's design tastes
Full Story
HOUZZ TOURSMy Houzz: Twister Damage Sparks a Whole Ranch Remodel
A Dallas couple transforms their traditional rambler into a bright, family-centered haven after a tornado
Full Story
HOUZZ TOURSHouzz Tour: Minimalism Suits an Arizona Ranch House
Leaving only what wouldn't blow off in a hurricane, an architect designs a modern take on Southwest style
Full Story
REMODELING GUIDESArchitects’ Tips to Help You Plan Perfect Storage
Before you remodel, read this expert advice to be sure you incorporate the storage you need
Full StorySponsored
VA & MD Architectural Design-Build Firm | 6x Best of Houzz Winner





Emily