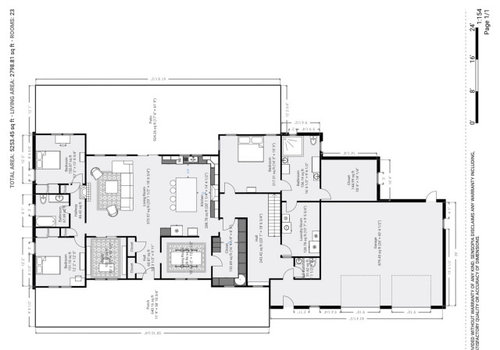
feedback on floor plan
last month
Featured Answer
Sort by:Oldest
Comments (18)
- last month
- last month
Related Professionals
American Fork Architects & Building Designers · Carney Architects & Building Designers · Johnson City Architects & Building Designers · Immokalee Home Builders · Newark Home Builders · Troutdale Home Builders · Hunt Valley Home Builders · Channelview General Contractors · De Luz General Contractors · Dover General Contractors · Elyria General Contractors · Kemp Mill General Contractors · Lighthouse Point General Contractors · Rancho Santa Margarita General Contractors · West Mifflin General Contractors- last month
- last month
- last month
- last month
- 29 days ago
- 29 days agolast modified: 29 days ago
- 29 days agolast modified: 29 days ago
- 29 days agolast modified: 29 days ago
- 29 days ago
- 29 days ago
- 28 days ago
- 28 days ago
- 28 days ago
- 26 days ago
- 26 days ago
Related Stories

REMODELING GUIDESSee What You Can Learn From a Floor Plan
Floor plans are invaluable in designing a home, but they can leave regular homeowners flummoxed. Here's help
Full Story
REMODELING GUIDESHow to Read a Floor Plan
If a floor plan's myriad lines and arcs have you seeing spots, this easy-to-understand guide is right up your alley
Full Story
REMODELING GUIDESLive the High Life With Upside-Down Floor Plans
A couple of Minnesota homes highlight the benefits of reverse floor plans
Full Story
REMODELING GUIDES10 Things to Consider When Creating an Open Floor Plan
A pro offers advice for designing a space that will be comfortable and functional
Full Story
DECORATING GUIDES9 Ways to Define Spaces in an Open Floor Plan
Look to groupings, color, angles and more to keep your open plan from feeling unstructured
Full Story
REMODELING GUIDESThe Open Floor Plan: Creating a Cohesive Space
Connect Your Spaces With a Play of Color, Materials and Subtle Accents
Full Story
DECORATING GUIDESHow to Combine Area Rugs in an Open Floor Plan
Carpets can artfully define spaces and distinguish functions in a wide-open room — if you know how to avoid the dreaded clash
Full Story
REMODELING GUIDESBathroom Remodel Insight: A Houzz Survey Reveals Homeowners’ Plans
Tub or shower? What finish for your fixtures? Find out what bathroom features are popular — and the differences by age group
Full Story
BEDROOMSStyling Your Bedroom: The Corner Bed Floor Plan
Put the bed in the corner for a whole new angle on your furniture arrangement
Full Story
ARCHITECTUREDesign Workshop: How to Separate Space in an Open Floor Plan
Rooms within a room, partial walls, fabric dividers and open shelves create privacy and intimacy while keeping the connection
Full Story
Mark Bischak, Architect