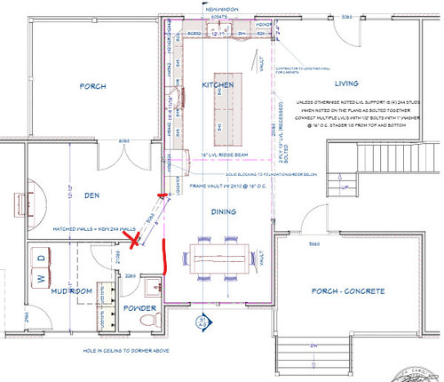
Any suggestions on this kitchen design?
last month
last modified: 25 days ago
Featured Answer
Sort by:Oldest
Comments (20)
Related Professionals
Westbury Interior Designers & Decorators · Hastings Furniture & Accessories · San Juan Capistrano Furniture & Accessories · Arlington General Contractors · Artesia General Contractors · Kentwood General Contractors · Klahanie General Contractors · Marinette General Contractors · Modesto General Contractors · Carson Kitchen & Bathroom Designers · Cuyahoga Falls Kitchen & Bathroom Designers · United States Kitchen & Bathroom Designers · Dana Point Tile and Stone Contractors · Redondo Beach Tile and Stone Contractors · Yorkville Design-Build Firms- last month
- last month
- last month
- last month
- last month
- last month
- 25 days ago
- 25 days agolast modified: 25 days ago
- 25 days ago
- 25 days ago
Related Stories

KITCHEN DESIGNKitchen of the Week: A Designer’s Dream Kitchen Becomes Reality
See what 10 years of professional design planning creates. Hint: smart storage, lots of light and beautiful materials
Full Story
KITCHEN OF THE WEEKKitchen of the Week: A Designer Navigates Her Own Kitchen Remodel
Plans quickly changed during demolition, but the Florida designer loves the result. Here's what she did
Full Story
KITCHEN DESIGN11 Must-Haves in a Designer’s Dream Kitchen
Custom cabinets, a slab backsplash, drawer dishwashers — what’s on your wish list?
Full Story
KITCHEN DESIGNA Designer’s Picks for Kitchen Trends Worth Considering
Fewer upper cabs, cozy seating, ‘smart’ appliances and more — are some of these ideas already on your wish list?
Full Story
KITCHEN DESIGNFresh White Palette Brings Joy to Designer’s Kitchen and Bedroom
In Florida, Krista Watterworth Alterman ditches dark faux-Mediterranean style for bright, glossy whites
Full Story
KITCHEN DESIGNKitchen of the Week: Industrial Design’s Softer Side
Dark gray cabinets and stainless steel mix with warm oak accents in a bright, family-friendly London kitchen
Full Story
KITCHEN CABINETSA Kitchen Designer’s Top 10 Cabinet Solutions
An expert reveals how her favorite kitchen cabinets on Houzz tackle common storage problems
Full Story
KITCHEN DESIGNKitchen Design Fix: How to Fit an Island Into a Small Kitchen
Maximize your cooking prep area and storage even if your kitchen isn't huge with an island sized and styled to fit
Full Story
KITCHEN MAKEOVERSKitchen of the Week: Designer Creates Her Own Dream Kitchen
Creamy paint and marble tones, brass finishes, ceiling beams and natural wood warm this sophisticated space
Full Story
BEFORE AND AFTERSFresh Makeover for a Designer’s Own Kitchen and Master Bath
Donna McMahon creates inviting spaces with contemporary style and smart storage
Full Story













WestCoast Hopeful