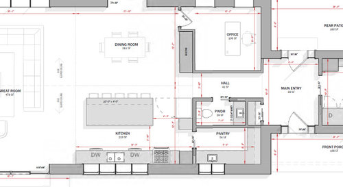
Guidance on Kitchen Layout
2 months ago
Related Stories

WORKING WITH PROSWorking With Pros: When You Just Need a Little Design Guidance
Save money with a design consultation for the big picture or specific details
Full Story
KITCHEN DESIGNKitchen Layouts: A Vote for the Good Old Galley
Less popular now, the galley kitchen is still a great layout for cooking
Full Story
KITCHEN DESIGNDetermine the Right Appliance Layout for Your Kitchen
Kitchen work triangle got you running around in circles? Boiling over about where to put the range? This guide is for you
Full Story
KITCHEN DESIGNKitchen Layouts: Island or a Peninsula?
Attached to one wall, a peninsula is a great option for smaller kitchens
Full Story
KITCHEN DESIGNKitchen Layouts: Ideas for U-Shaped Kitchens
U-shaped kitchens are great for cooks and guests. Is this one for you?
Full Story
KITCHEN DESIGNKitchen of the Week: Barn Wood and a Better Layout in an 1800s Georgian
A detailed renovation creates a rustic and warm Pennsylvania kitchen with personality and great flow
Full Story
KITCHEN LAYOUTSThe Pros and Cons of 3 Popular Kitchen Layouts
U-shaped, L-shaped or galley? Find out which is best for you and why
Full Story
KITCHEN DESIGNKitchen of the Week: More Light, Better Layout for a Canadian Victorian
Stripped to the studs, this Toronto kitchen is now brighter and more functional, with a gorgeous wide-open view
Full Story
KITCHEN OF THE WEEKKitchen of the Week: An Awkward Layout Makes Way for Modern Living
An improved plan and a fresh new look update this family kitchen for daily life and entertaining
Full Story
TASTEMAKERSPro Chefs Dish on Kitchens: Michael Symon Shares His Tastes
What does an Iron Chef go for in kitchen layout, appliances and lighting? Find out here
Full Story


auntthelma
RappArchitecture
Related Professionals
Mount Vernon Interior Designers & Decorators · Portsmouth Architects & Building Designers · Woodbury Furniture & Accessories · Fallbrook Furniture & Accessories · Fountainebleau Furniture & Accessories · Golden Glades Furniture & Accessories · Bowling Green General Contractors · Duncanville General Contractors · El Monte General Contractors · Florham Park General Contractors · Jamestown General Contractors · Rotterdam General Contractors · Selma General Contractors · Wallington General Contractors · Santa Fe Bathroom Remodelersshirlpp
Buehl
Patricia Colwell Consulting
auntthelma
anj_p
Chad ChadOriginal Author
lmckuin
Chad ChadOriginal Author
Chad ChadOriginal Author
WestCoast Hopeful
Chad ChadOriginal Author
Chad ChadOriginal Author
WestCoast Hopeful
3onthetree
RappArchitecture
Meghan W