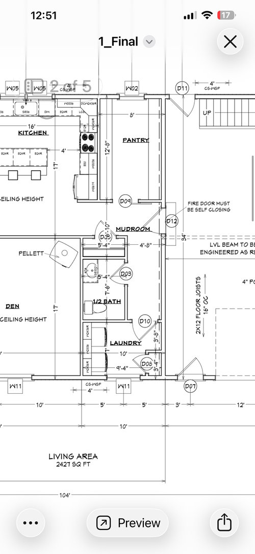
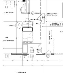
Need Help Switching Laundry and Bathroom Plans And Updating Shower
last month
Featured Answer
Sort by:Oldest
Comments (22)
- last monthlast modified: last month
- last month
Related Professionals
Cottage Grove General Contractors · Exeter General Contractors · Oklahoma City Bathroom Remodelers · Roselle Bathroom Remodelers · Westchester Bathroom Remodelers · Dublin Glass & Shower Door Dealers · Skokie Glass & Shower Door Dealers · Schiller Park Architects & Building Designers · Queen Creek Kitchen & Bathroom Designers · Minneapolis Furniture & Accessories · Wichita Furniture & Accessories · Fountain Furniture & Accessories · Country Club Hills General Contractors · Grand Junction General Contractors · Newington General Contractors- last month
- last month
- last month
- last month
- last month
- last month
- last month
- last month
- last month
- last month
- last month
- last month
- last monthlast modified: last month
- last month
- last month
- last monthlast modified: last month
- last month
- 29 days ago
- 29 days ago
Related Stories

BATHROOM MAKEOVERSBathroom of the Week: Updated Style and Storage for Empty Nesters
A designer helps a couple add personality, a larger shower and better storage in their 1990s en suite
Full Story
BATHROOM MAKEOVERSBathroom of the Week: Bright and Stylish With a Roomy Shower-Tub
A designer helps a Chicago condo owner lighten her dark master bath with an updated layout and a fresh, clean look
Full Story
BATHROOM MAKEOVERSBathroom of the Week: Black, White, Wood and a High-Tech Shower
A design-build pro helps a Minnesota couple update their bathroom with dramatic farmhouse style and spa-like amenities
Full Story
BATHROOM MAKEOVERSBathroom of the Week: Natural Materials and a Shower Room
A designer helps her clients update their traditional home to make it feel more like them
Full Story
BATHROOM DESIGNConvert Your Tub Space to a Shower — the Planning Phase
Step 1 in swapping your tub for a sleek new shower: Get all the remodel details down on paper
Full Story
BATHROOM MAKEOVERSReader Bathroom: DIY Updates for $1,800 in North Carolina
A Raleigh couple create a shower for their kids and guests using budget-conscious DIY ingenuity
Full Story
BATHROOM MAKEOVERSBefore and After: Tub-Shower Combo Gets a Major Update
A mother-daughter bathroom in Toronto now has function and style, thanks to clean design and custom storage
Full Story
BATHROOM DESIGNBathroom of the Week: Light, Airy and Elegant Master Bath Update
A designer and homeowner rethink an awkward layout and create a spa-like retreat with stylish tile and a curbless shower
Full Story
BATHROOM MAKEOVERSBathroom of the Week: Bold Blue Tile and a Walk-In Shower
A designer helps a Texas couple flip their master suite layout for a better view and a bigger, more spirited bathroom
Full Story
BATHROOM MAKEOVERSBathroom of the Week: Marble Shower and a Checkerboard Floor
A designer found on Houzz reconfigures an awkward bathroom, creating a functional floor plan with a luxurious shower
Full Story








Jeffrey R. Grenz, General Contractor