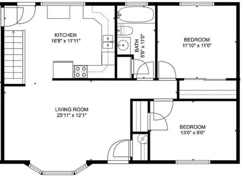
Need help laying out combined living/dining room
last month
Featured Answer
Sort by:Oldest
Comments (12)
- last monthlast modified: last month
Related Professionals
Rome Furniture & Accessories · Leander Carpenters · Palisades Park Cabinets & Cabinetry · South Gate Cabinets & Cabinetry · Vermillion Cabinets & Cabinetry · Ridgefield Park Interior Designers & Decorators · Palmer Architects & Building Designers · Ballenger Creek Kitchen & Bathroom Designers · Panama City Beach General Contractors · Plano General Contractors · Spencer General Contractors · Mansfield Furniture & Accessories · Orcutt Lighting · Medway Flooring Contractors · Panama City Beach Flooring Contractors- last month
- 29 days ago
- 25 days ago
- 25 days agolast modified: 25 days ago
- 25 days ago
- 25 days agolast modified: 25 days ago
- 24 days ago
- 24 days ago
- 23 days ago
- 23 days ago
Related Stories

SMALL HOMESRoom of the Day: Living-Dining Room Redo Helps a Client Begin to Heal
After a tragic loss, a woman sets out on the road to recovery by improving her condo
Full Story
LIVING ROOMSLay Out Your Living Room: Floor Plan Ideas for Rooms Small to Large
Take the guesswork — and backbreaking experimenting — out of furniture arranging with these living room layout concepts
Full Story
ROOM OF THE DAYRoom of the Day: A Living Room Stretches Out and Opens Up
Expanding into the apartment next door gives a family of 5 more room in their New York City home
Full Story
LIVING ROOMSLiving Room Meets Dining Room: The New Way to Eat In
Banquette seating, folding tables and clever seating options can create a comfortable dining room right in your main living space
Full Story
REMODELING GUIDESRoom of the Day: Antiques Help a Dining Room Grow Up
Artfully distressed pieces and elegant colors take a formerly child-focused space into sophisticated territory
Full Story
ROOM OF THE DAYRoom of the Day: Patience Pays Off in a Midcentury Living-Dining Room
Prioritizing lighting and a bookcase, and then taking time to select furnishings, yields a thoughtfully put-together space
Full Story
LIVING ROOMSRoom of the Day: Strategies for Laying Out a Large Space
A designer helps a New York City homeowner make sense of her living room after it doubles in size
Full Story
KIDS’ SPACESWho Says a Dining Room Has to Be a Dining Room?
Chucking the builder’s floor plan, a family reassigns rooms to work better for their needs
Full Story
LIVING ROOMSOpen-Plan Living-Dining Room Blends Old and New
The sunken living area’s groovy corduroy sofa helps sets the tone for this contemporary design in Sydney
Full Story
DECORATING GUIDESLiving Room Features That Never Go Out of Style
These key pieces will help your living room keep its good looks, no matter what's in fashion
Full Story




























Kendrah