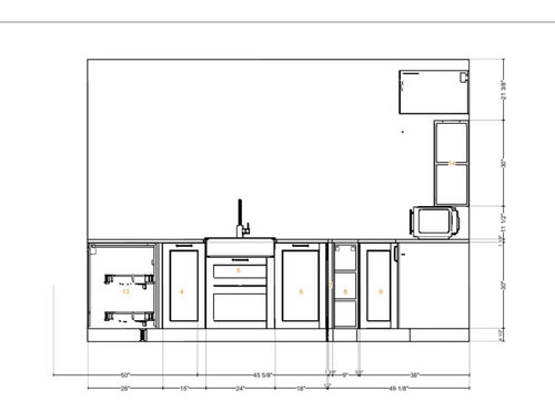
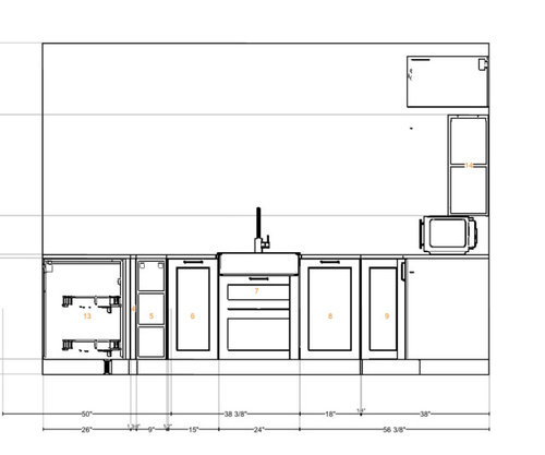
Do I leave the sink where I want it or centered?
8 days ago
Featured Answer
Sort by:Oldest
Comments (7)
Related Professionals
Albany Kitchen & Bathroom Designers · Freehold Kitchen & Bathroom Designers · Palmetto Estates Kitchen & Bathroom Designers · Winton Kitchen & Bathroom Designers · Forest Hill Bathroom Remodelers · Fair Oaks Bathroom Remodelers · Mooresville Bathroom Remodelers · Skokie Bathroom Remodelers · Sweetwater Bathroom Remodelers · Walnut Creek Bathroom Remodelers · Shaker Heights Bathroom Remodelers · North Chicago Bathroom Remodelers · Daly City Cabinets & Cabinetry · Fort Lauderdale Cabinets & Cabinetry · Bellwood Cabinets & Cabinetry- 8 days ago
- 7 days agolast modified: 7 days ago
- 7 days ago
Related Stories

FUN HOUZZEverything I Need to Know About Decorating I Learned from Downton Abbey
Mind your manors with these 10 decorating tips from the PBS series, returning on January 5
Full Story
LIFEYou Said It: ‘I’m Never Leaving’ and More Houzz Quotables
Design advice, inspiration and observations that struck a chord this week
Full Story
LAUNDRY ROOMSWhere Can I Hide My Laundry Area?
It’s a case of now you see it, now you don’t with these 10 clever ways of fitting in a laundry zone
Full Story
DECORATING GUIDESDesign Dilemma: Where to Put the Media Center?
Help a Houzz User Find the Right Place for Watching TV
Full Story
ART10 Homes Where Art Takes Center Stage
Homeowners’ passion for their collections drives the design of these art-filled homes
Full Story
KITCHEN DESIGNWhy Your Kitchen Wants Its Own iPad
Cooking-school gateway, recipe database, foodie networking ... an iPad in the kitchen has uses far beyond being a message center
Full Story
KITCHEN DESIGNWhere Should You Put the Kitchen Sink?
Facing a window or your guests? In a corner or near the dishwasher? Here’s how to find the right location for your sink
Full Story
KITCHEN CABINETSWhy I Combined Open Shelves and Cabinets in My Kitchen Remodel
A designer and her builder husband opt for two styles of storage. She offers advice, how-tos and cost info
Full Story
FEEL-GOOD HOME12 Very Useful Things I've Learned From Designers
These simple ideas can make life at home more efficient and enjoyable
Full Story
BATHROOM MAKEOVERSWhat I Learned From My Master Bathroom Renovation
Houzz writer Becky Harris lived through her own remodel recently. She shares what it was like and gives her top tips
Full Story





s m