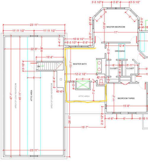
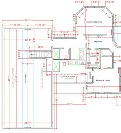
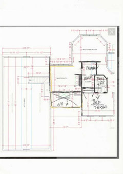
Configuring a bathroom in this space...please help me
last month
last modified: 10 days ago
Related Stories

ROOM OF THE DAYRoom of the Day: An 8-by-5-Foot Bathroom Gains Beauty and Space
Smart design details like niches and frameless glass help visually expand this average-size bathroom while adding character
Full Story
BATHROOM MAKEOVERSBathroom of the Week: Formerly Awkward Space Is Now Inviting
A designer uses a new layout and materials to give a large room a pleasing, spa-like ambiance
Full Story
BATHROOM DESIGNNew This Week: 3 Bathrooms That Feel More Like Living Spaces
Graphic wallpaper, ornate chandeliers and furniture-like pieces help these bathrooms seem less like a sterile space and a lot more like home
Full Story
BATHROOM DESIGN8 Bathroom Space-Savers
These efficient features can help you squeeze more function into your room
Full Story
BATHROOM DESIGNBathroom of the Week: White, Wood and Brass Dress Up a Teen Space
A designer helps a couple give their teen daughter a more refined bathroom with better circulation, storage and style
Full Story
BATHROOM DESIGNBathroom of the Week: Pamper-Me Features and Marble-Like Tile
An Orlando, Florida, couple’s former cramped, dated master bathroom gets an elegant, contemporary update
Full Story
BATHROOM DESIGNDream Spaces: 14 Fabulous Indoor-Outdoor Bathrooms
Disappearing walls put these baths in Mother Nature’s lap, counting tranquil views and fresh air as the best luxuries of all
Full Story
BATHROOM DESIGNBathroom of the Week: More Space and Storage With a Steam Shower
A designer takes down a wall to add square footage and create a roomier bathroom layout with new features and style
Full Story
SMALL SPACESDownsizing Help: Storage Solutions for Small Spaces
Look under, over and inside to find places for everything you need to keep
Full Story
BATHROOM MAKEOVERSBathroom of the Week: Cobalt Vanity Energizes a Luxe Space
A designer mixes marble, a geometric tile pattern and a bold vanity in a primary bathroom for parents of young children
Full Story
JAN MOYER
Patricia Colwell Consulting
Related Professionals
Salt Lake City Interior Designers & Decorators · Jackson Interior Designers & Decorators · Omaha Architects & Building Designers · Clovis Architects & Building Designers · Jackson Kitchen & Bathroom Designers · Carlsbad Kitchen & Bathroom Designers · Odessa Kitchen & Bathroom Designers · Portsmouth Kitchen & Bathroom Designers · Sheboygan Kitchen & Bathroom Designers · Fort Dodge Kitchen & Bathroom Designers · Norfolk Kitchen & Bathroom Designers · Rockford Kitchen & Bathroom Designers · Kalamazoo Bathroom Remodelers · Yakima Bathroom Remodelers · Lagrange Tile and Stone Contractors3onthetree
AzukaOriginal Author
simplynatural
mojavemaria
AzukaOriginal Author
mojavemaria
AzukaOriginal Author
mojavemaria
AzukaOriginal Author
AzukaOriginal Author
katinparadise
AzukaOriginal Author
JAN MOYER
AzukaOriginal Author
AzukaOriginal Author