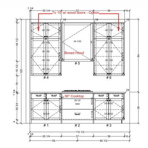
Stressed over Kitchen layout
We are building a new house and this is the kitchen layout we’ve think works. But there are some things I’m not sure is the best placement.
Some background: i do a lot of stirfries and skillet meals. I’m the main cook and cleaner though sometimes my husband dabbles a meal a week. We use the microwave daily but oven only 2-3x a month when i bake.
My problems:
1. The fridge and oven/micro combo are beside each other cos i can’t decide which i ”like” more! And i am worried about them being beside each other but i see many pictures of these 2 together. i want the fridge close to the pantry so i can unload produce and dry goods easily from the grocery run. And trying to follow the principles work triangle. Should i separate them and I’m open to redesigning.
2. I like the sink behind my cooktop so i can prep there, spin around to cook, then spin back around to wash my big skillet in the sink when done. So do i need a prep sink? My husband and the builder say yes. But where would you put it?
3. I’m stressed that the cabinets don’t open towards the cooktop. How am i going to reach my oils and sauces? But the cabinets just look better and symmetrical when the cabinets open in the center. And i don’t have space to divide the cabinets into 3 doors on each side so that i have a pair of cabinets flanking the hood that open away from the hood. Should i totally reconfigure the kitchen?


Comments (38)
- last month
Thoughts:
- Given that you don't use the oven often, I'd bump it all the way to the top of the side cabinet run. Right now it's in the stuff-you-use-constantly spot.
- No reason the fridge and oven can't be next to one another. Are you thinking of hot and cold? They're both highly insulated items.
- Consider getting the fridge out of the corner. A refrigerator door that's against the wall can't "open all the way", which is not the worst thing in the world but makes it more difficult to access things at the back /to remove shelves for cleaning.
- Love the big pantry.
- For a one-butt kitchen, your sink is well placed. Solid no, do not add a prep sink; your kitchen is not all that large, and you don't need to give up the storage for a second sink.
- Open all the cabinets towards the center /towards the cooktop. Function matters most /kitchens are workhorses. Your cabinets are symmetrical /will look symmetrical if they're all pointed towards the center.
- Why is the island so deep? You need 24" for the sink (and I assume a dishwasher), then 15" is about perfect for seating. 4 1/2' just makes it difficult to reach the middle for cleaning.
- Definitely go with drawers instead of traditional cabinetry. Easier to reach things.
- 10' tall cabinets look odd /aren't functional. Those second doors at the top are very expensive. I'd think twice about 10' ceilings.
- Consider a large, single-bowl sink. It's one of the few things upon which this board is united: Makes it easier to clean large pots and baking sheets, minimizes plumbing under the sink, which means more storage.
- Why a 36" cooktop instead of a standard 30"? I'd rather have those 6" of storage.
Serene Ng thanked Mrs Pete Serene Ng
Original Authorlast monthThank you for your comments and validation! i don’t have enough storage so adding a row of 12” deep cabinets in the island that opens where the chairs are.
i’m thinking about a 40/60 sink cos i hand wash some stuff like measuring cups, large pots and put them in the “40” part of the sink to drip dry. Are there folks who do that?Related Professionals
New London Kitchen & Bathroom Designers · Joplin Bathroom Remodelers · Danville Bathroom Remodelers · Crestview Kitchen Remodelers · Southaven Kitchen Remodelers · Fargo Interior Designers & Decorators · Vidalia Kitchen & Bathroom Designers · Minneapolis Kitchen & Bathroom Designers · Topeka Kitchen & Bathroom Designers · Plainfield Kitchen & Bathroom Designers · Vancouver Kitchen & Bathroom Designers · New Braunfels Kitchen Remodelers · Fredericksburg Kitchen Remodelers · Cedar Rapids Kitchen Remodelers · Yuma Custom Countertops- last monthlast modified: last month
Why does your pantry double as a hallway to the patio?
You've made some unusual choices for the space you show, but hard to comments since we can't see how this space relates to the rest of the house.
How far along are you?
Just design phase or has construction already started? The answers/advice you get will be very different depending on the stage you are at. A lot easier to move lines on a paper plan than walls in a house already under construction!
Serene Ng thanked chispa - last monthlast modified: last month
All those base cabinets should be drawers your DW washes almost everything even pots and pans except for copper . So start using it much more. The drawer bases do not hve to swing at all and store pots and and lids so much better than cubboards. The oven and fridge near eachother no big deal if it functions for you. I use my oven alot for many things like soups, stews , chili etc . Put them low and go to work all done when you get home I like it much better than slow cooker that is limited to how much you can do at one time IMO more important to have the fridge near the sink for daily use than to unload groceries once a week .Since you do not use the oven all the time IMO get a range 36" is great with the oven below that frees up space for storage .
Serene Ng thanked Patricia Colwell Consulting - last month
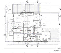
are you suggesting coming in from the outside through a full pane glass door......through the pantry and into the kitchen? might be something better than this as far as day to day traffic flow . can you show the first floor of the property ?
Serene Ng thanked herbflavor Serene Ng
Original Authorlast monthlast modified: last month
This is the main floor. The pantry goes out to the patio so my husband can get stuff to the smoker/grill from the kitchen Instead of walking out through the dining room.I’m getting permits now. Probably 2 months out from breaking ground. The architect says i can change up to ground breaking.
oh, and i am changing the cabinets to drawers under the cooktop!- last month
Why do you want to pivot from sink to stove and back, dripping on the floor? What if they were on the same wall, so that you can just move an arm over the counter?
Serene Ng thanked bpath - last month
Just a quick glance and the thing that stands out is the fridge, get it more towards the perimeter or else it will be a choke point.
Serene Ng thanked s m Serene Ng
Original Authorlast monthlast modified: last month@patricia i do use my microwave every day and that’s above the wall oven. if i change to a range, i lose the drawer space under the cooktop and i love that for my pots and pans.
- last month
We have a similar layout but no pantry and our oven/microwave are swapped with fridge. I love it. Zero issues going from sink to stove. Actually love it very much how easy it is to go from sink to stove and vice versa. We do have all drawers no cabinets. Really make sure your aisles are good. It is so crucial.
Serene Ng thanked WestCoast Hopeful Serene Ng
Original Authorlast monthlast modified: last monthSeems like most responders say to swap the fridge and the wall oven. my fridge will be standard depth as we are keeping our current one. Silly thought but since it sticks out about 4-6” from the counter, it seems to make sense having it at the end of that wall, and the wall oven by the cabinets since the ovens are flushed with the cabinet. so theres a smooth run before it hits the fridge that protrudes. hope i’m explaining it well. I will be adding a 4” clearance between the wall and fridge so the fridge door can open wider.
Serene Ng
Original Authorlast monthlast modified: last monthDo you mean have them recess the wall behind the fridge by 6” to line up the fronts with the counter?
- last month
This new build has a multi hundred thousand dollar budget. You cannot use a standard depth fridge in that location and compromise traffic flow to save a tiny part of your budget. To recess it requires changing the exterior facade. Not inexpensive.
Your cooking method will evolve away from chemically processed seed oils to avocado oil and ev olive oil. Check the YT channel Bobby Parrish if you'd like.
This house should be tightly built with limited air leakage. Stir frying creates lots of byproducts that will require strong exhaust from a hood 6 inches wider than your range plus a makeup air system and energy recovery ventilation system. With a wider hood the uppers on each side can be one door. With a range for your oven wide all drawer cabinets on each side will store pots and pans.
I don't see a main entrance or garage? Single bowl sink means you can dry a pan and put it away. Most kitchen designs keep the sink off the island to keep it clear. This design wastes primary function space for a pantry you would maybe choose for a much larger kitchen if at all. You have a one person kitchen that is cramped because of a pantry you will never use the counters in.
- last monthlast modified: last month
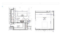
Move the window
Don't keep the old fridge in the main kitchen ....RELOCATE it to the pantry as an extra. No fridge, unless a Sub Zero, has fantastic longevity, Don;t waste it. I assume with a lot of stir fry, you want the fresh produce, and there is never enough beverage storage in any home.
Your primary bed is ridiculous depth, relative to the kitchen
What is the window elevation? You could consider a drawer microwave, belo;w the counter, and gain storage at the oven ....?
Shove that pantry back a bit.
In reality, the kitchen is too small for the rest of the house, almost an afterthought.


- last month
Not a pro but i prefer when the fridge isnt so deep in the work space and sits a bit more on the edge so folks can grab things and not get in my way opening doors, staring and deciding etc - I wonder too about somone in the fridge and then someone coming in/out of the pantry
- last month
I am going to write out my first thoughts. Your range hood should be at the minimum 6" larger than your stove. I have a 12" cabinet which I thought a good size for spices and sauces and then put a larger one beside it. Try not to get hung up on symmetry as that is not always the best route. Also set the base cabinet near a doorway back at least 6" past the trim so on average 9" from the opening since any closer create a pinch point and a good place to bump your hip on. On the oven/fridge wall I would move the window to the left so the oven can go to the far right of the window and out of the main kitchen work area. I would also put the fridge where the oven was to make it easily accessible with good walk around room by placing it in the isle and put a cabinet to the left of the fridge with a countertop as a drop zone when putting groceries away. Do not be pressured to go countertop depth fridge but you may want to consider it later on when you need to replace it. Also place the microwave out of the work area if not used when cooking OR into the work area if you use it while cooking. I personally like a sink off centre to the cook top so you can have someone else helping with preparing without bumping into each other but that is up to you. You will adjust.
Serene Ng thanked Lorraine Leroux Serene Ng
Original Authorlast monthAppreciate all the comments! The pantry is actually my 2nd kitchen. i will put my slowcooker, counter top oven/airfryer, rice cooker, blender, panini press, wafer iron, all on the pantry countertop! So i need a large pantry to keep the unsightly appliances out of sight. It’s a cross between a butlers pantry and a regular pantry, that’s why it’s large. And that’s why the larger island with more storage. the kitchen is small but not sure how to expand it with the existing footprint.
we don’t need a beverage area cos we don’t do soda, beer. Mostly water only. we are a 3 person household, just a teenage daughter who eats like a bird, so no need for 2 fridges.
we do use avocado and olive oils! My husband is a bit of a health nut.
thanks for the heads up about the larger hood!
- last month
Aside from the fact, you won't like the jut of the full depth fridge, and the fact that you DO need a 42" hood over that range"
"we are a 3 person household, just a teenage daughter who eats like a bird, so no need for 2 fridges.
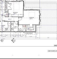
Then why make a guest share a bath with a teenager? Especially gender female: )?
I would abandon that buddy bath concept asap, unless you never ever have a guest.

Serene Ng
Original Authorlast month@JAN MOYER oh i have a son away at college so he’s only back for holidays and the extra bedroom is for him.
- last monthlast modified: last month
How do you get to the kitchen from your car, specifically, how far do you have to carry the groceries?
Serene Ng
Original Authorlast monthFar unfortunately. This is the 2nd floor. The garage is on the 1st floor. we’ve got no choice cos the lot is narrow and hill side. My husband and i do our weekly grocery run together so he will do the heavy lifting.
Serene Ng
Original Authorlast monthhaha! We thought about that and we might have to do that in 20years! For now, its good exercise.
- last monthlast modified: last month
My current kicthen has the sink and dishwasher behind the cooktop, the dishwasher opens into the standing space for cooking which drives me nuts. If this were my kitchen, I would move the window down, have the fridge on the far right, oven on the far left and sink under the window., dishwasher on the sink's right. My last house had a similar set up to that and it was easy for everyone to move around, no one had to enter the prep/cook space to get to the sink or dishwasher and it was never a problem getting stuff to the sink. Add a small prep sink to the far right of the island. Having your main sink in the island adds a lot of visual clutter, especially with an open floor plan, and it breaks up the most used prep space.
- last month
Some comments:
- I agree with others, especially with wok cooking, that the flanking upper cabinets should be maximum 30" wide (if not less to isolate the hood as visual focus), allowing a wider hood than cooktop.
- I agree with others, that the 10'-6" ceiling secondary upper cabinets above the 42" uppers (flanking the cooktop) are not very useful, and, with the ref wall having a soffit at 8'-0", stands out as off-balance.
- Your reasoning of the ref close to Pantry doesn't seem strong to me, as your grocery staging spot will probably be the barstool corner of island (walk up stairs and plop bags down wherever is closest, catch your breath, have a margarita, then make another trip to car).
- The ref feels tucked away from the prep space on the island. Though it can't happen in all Kitchens, I personally appreciate a ref door that can open fully, 135d or more, which means against a wall doesn't allow that (even with a filler). So I was going to suggest swapping the oven and ref for both reasons.
- I was also initially going to suggest putting the oven in the Pantry. But with a microwave/oven cabinet, that would require another MW choice in the Kitchen because of your frequent use of MW.
- I like the window splashing light on the island. However, the Kitchen seems small, lacking cabinets (even considering the Pantry). Prior to you saying you didn't need a beverage center, I did have a passing thought for another wall of cabinets that retains the window. By sliding the stair, another cabinet wall can be added. However, I am not sure how much openess from the Kitchen over the open stair should remain, and it appears there are some kind of niches in the stair wall - if those are windows into the Powder and Closet I am not sure about enclosing the back side of stair. But, thought I'd share the idea anyway.
- The centered Office double doors perplex me anytime I see them. If they are glass lites to align with the windows, that is something. If solid doors however, then they interfere with any kind of office furniture layout, cannot open 180d here, and muddle up the arrival from the stair entry

- In the Master and Bed3, the beds are shown against a window wall. Are those transoms or full height windows?
- last month
Sink in the island is personal. We have almost the same layout and love the sink location and don’t mind the dishwasher being there either because our aisle is wide and the dishwasher can be open and another person can still walk by. Two people can be working in kitchen back to back and sink and stove and still have tons of space between them. It really depends on how you could and use your space too. I love working at the island and chatting with guests or my kids etc and don’t mind the sink being there at all, would prefer it to me facing a wall or window and not in the conversation. I am having trouble seeing your aisle. How wife are they?
- last monthlast modified: last month
With the pocket door leading into the pantry it may be tricky finding room for an easily accessed light switch, if you are using traditional lighting. Will the pocket door from the master bath into the laundry room allow enough space for the plumbing?
@WestCoast Hopeful I agree, it is personal and it depends on the dynamic of the family. We often have one person clean while the other cooks and a young adult at home that always seems to need something from the fridge or to use the sink when the kitchen is at it's busiest but that is not the same for everyone. Also, the first image of the kitchen close up shows the aisles at 46 and 47+/- (does it take into account counter over hang?).
- last month
My kids are the same! One in particular enjoys being in the way during busy times. I believe our aisle Im the sink/stove area is 56” so tons of space.
- last month
Personally, I wouldn't keep my oils next to a hot range as it shortens shelf-life and quality of the oil. I cook several times a day for my family and keep my precious oils two cabinets over from the gas range. In general, I put these items out on the counter before I begin even if I don't end up using them.
Yes, your number 2 comment is spot on. Being able to spin between the sink and the stove is essential. Yes, if you have room, get a prep sink if only to keep others from your space while cooking. Best of luck! - last month
i have a pantry similiar to yours and use it like you described. You might want to add a small prep type sink in there. it makes a great coffee station too.
Serene Ng thanked bacino - last month
i don’t have enough storage so adding a row of 12” deep cabinets in the island that opens where the chairs are.
What do you mean you don't have enough storage? You're planning a large pantry!
i’m thinking about a 40/60 sink cos i hand wash some stuff like measuring cups, large pots and put them in the “40” part of the sink to drip dry. Are there folks who do that?I'm sure people do that, but I'd 100% go with a large single bowl sink.
Why do you want to pivot from sink to stove and back, dripping on the floor?Why would your pots be dripping? I'm not that sloppy.
Just a quick glance and the thing that stands out is the fridge, get it more towards the perimeter or else it will be a choke point.
Agree with the choke point.
Then why make a guest share a bath with a teenager?
Money. Bathrooms are extremely expensive -- zero reason to build an extra for the occasional guest. Many houses on this board are over-bathed.
Serene Ng thanked Mrs Pete - last month
i’m thinking about a 40/60 sink cos i hand wash some stuff like measuring cups, large pots and put them in the “40” part of the sink to drip dry. Are there folks who do that?
There are people who use the 40% portion of their sink to let some items drip dry - I am one of those people. I am FINALLY going to start my kitchen renovation in 2-3 months. I am currently planning on switching to a large single bowl sink - although, there are times that I feel a little "uncomfortable" regarding that decision.
I will have a stainless steel grate that fits the bottom of the single bowl sink - my plan is to use that when needed to drip dry (e.g, crystal glasses + container for my smoothie maker + blade attachment). I HATE having a mat (or whatever) out on the countertop next to the sink for those items.
I think the benefit of sticking with a single bowl sink will be that I put those items away faster + break myself of my habit of hand washing all pots/pans (I learned that from my mom - it's a difficult habit to break). Also, I am hoping that it will break my SO of his habit of putting items in the 40% side of the sink to drip dry - and then leaving them there (until I put them away).
I understand the feeling of "needing" to keep a 60/40 sink. However, I do think I will be happier once I get used to it! - last monthlast modified: last month
Why do you want to pivot from sink to stove and back, dripping on the floor? What if they were on the same wall, so that you can just move an arm over the counter?
I agree with @Mrs Pete - while I have a continuous run of countertop from the sink to the cooktop (u-shaped kitchen) + plenty of countertop space on both sides of the cooktop, I prefer to prep on my island.
There are a few times where I will rinse something in the sink - and just transfer items over to the pan with my hands = a few drops of water will hit my wood floors - however, I have a specific towel (stored in sink cabinet) that I use to quickly wipe up any drips (although, if I have socks on, I typically step on the drips on the way over which takes care of any little drips!) It doesn't happen very often + is easily addressed = no slippery or ruined wood floors.
we don’t need a beverage area cos we don’t do soda, beer. Mostly water only. we are a 3 person household . . . so no need for 2 fridges.
We are a two person household - I only drink water + my SO has a separate fridge for beer/soda. However, I still run out of room in my fridge at times - and will move my current fridge in the garage when it's replaced during my kitchen renovation. Having extra fridge/freezer space comes in handy when needed - and it doesn't cost very much to operate a second refrigerator.
My husband is a bit of a health nut.
^^^This is part of the reason. I need more fridge room because I follow a healthy diet + have health issues that require a few extra things (like a jug of aloe vera juice). My SO uses quite a bit of ultra filtered milk each week + I never use cow's milk = extra space needed. I also started making my own yogurt = more room.
Being a "health nut" seems to typically = more room needed in the refrigerator. Also, while I wouldn't say I "eat like a bird" - I don't eat a lot/often - but need room for fresh fruits/veggies for smoothies/smoothie bowls + healthy meals/snacks (I never eat any processed foods ever).
If you have room for a second refrigerator, I'd think about having one in your pantry.
- You can recess the space behind your fridge - I think that's a great idea. I will be changing to a counter depth fridge (I have my fridge located on the end of cabinet run that allows for use without interference into prep/cook/clean up zones).
- Last comment - the dumbwaiter - if this is your "forever home" - I'd at least plan for adding one later. It's more cost-effective to at least frame the shaft during the initial construction, rather than cutting through floors and ceilings later + running electrical needed.
Serene Ng thanked dani_m08 - last month
As far as sinks go, it is personal preference and understanding your approach to cleaning/drying dishes, etc. I prefer a 50/50 low divide sink and can not stand my current large single bowl sink. I dislike the only drain being the disposal because it is nasty no matter what is done to it and it feels like it breathes germs. I tried using a grate and it trapped more dirt and grime. I always have a smaller basin in the sink for handwashing because there is no way I would fill the large single bowl to wash anything, even oversized items, which is not ideal. I have to rinse out the sink non stop and because the basin is large it takes more water vs. just doing the one side that was used in a 50/50 or 60/40. If the sink had been installed correctly I would have already replaced it but I know it is going to be tricky so I am living with for now but cannot wait to have a sink that functions better for my style of usage.
Serene Ng thanked s m - last month
I am renovating and we’re going to go with either a 70/30 or low divide sink. I like having one small side for the disposal. With four of us and almost all meals at home, we wouldn’t be able to fit large items in the DW. We don’t have room for two DW. Also, wooden cutting boards, sharp knives and most water bottles need to be hand washed, so we do a far bit of handwashing. While handwashing, I like access to the disposal while maintaining sink is full.
Serene Ng thanked Meghan W











rmsaustin