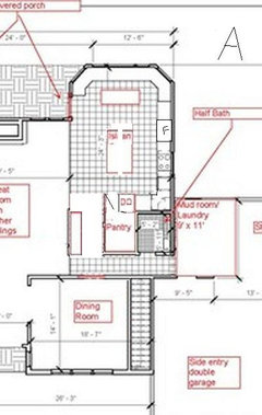
Advice on Kitchen Layout - New build
11 years ago
Related Stories

KITCHEN DESIGNSmart Investments in Kitchen Cabinetry — a Realtor's Advice
Get expert info on what cabinet features are worth the money, for both you and potential buyers of your home
Full Story
DECORATING GUIDES10 Design Tips Learned From the Worst Advice Ever
If these Houzzers’ tales don’t bolster the courage of your design convictions, nothing will
Full Story
Straight-Up Advice for Corner Spaces
Neglected corners in the home waste valuable space. Here's how to put those overlooked spots to good use
Full Story
REMODELING GUIDESContractor Tips: Advice for Laundry Room Design
Thinking ahead when installing or moving a washer and dryer can prevent frustration and damage down the road
Full Story
KITCHEN STORAGEKnife Shopping and Storage: Advice From a Kitchen Pro
Get your kitchen holiday ready by choosing the right knives and storing them safely and efficiently
Full Story
KITCHEN APPLIANCESFind the Right Oven Arrangement for Your Kitchen
Have all the options for ovens, with or without cooktops and drawers, left you steamed? This guide will help you simmer down
Full Story
KITCHEN DESIGNDetermine the Right Appliance Layout for Your Kitchen
Kitchen work triangle got you running around in circles? Boiling over about where to put the range? This guide is for you
Full Story
LIFEGet the Family to Pitch In: A Mom’s Advice on Chores
Foster teamwork and a sense of ownership about housekeeping to lighten your load and even boost togetherness
Full Story
THE ART OF ARCHITECTURESound Advice for Designing a Home Music Studio
How to unleash your inner guitar hero without antagonizing the neighbors
Full Story
TASTEMAKERSBook to Know: Design Advice in Greg Natale’s ‘The Tailored Interior’
The interior designer shares the 9 steps he uses to create cohesive, pleasing rooms
Full Story

SMC0904Original Author
293summer
Related Professionals
Cape Coral Kitchen & Bathroom Designers · Provo Kitchen & Bathroom Designers · Guymon Kitchen & Bathroom Designers · McAlester Kitchen & Bathroom Designers · Muskegon Kitchen & Bathroom Designers · Galveston Kitchen Remodelers · Hope Kitchen Remodelers · Houma Kitchen Remodelers · Jonesboro Kitchen Remodelers · Oneonta Kitchen Remodelers · Elko Custom Countertops · Plattsburgh Custom Countertops · Spartanburg Custom Countertops · Tyler Custom Countertops · Vidalia Custom Countertopslisa_a
SMC0904Original Author
lisa_a
kariwb
SMC0904Original Author