Keep Separate Dining Room or Enlarge Kitchen?
I know -- I keep coming back with more and more kitchen layout questions. Well, I'm still struggling. Here's the issue: Our kitchen is a nearly-square, closed off room (16'X14'). The dining room is right next to the kitchen, and it's pretty narrow (16'X11'). The dining room is open to the entry and living room, which are a half-flight of stairs below (it's a split level built on the side of a hill). We do not have a separate pantry closet, butler's pantry, mud room, or breakfast room, or any of the other fabulous things I've seen around here. I'm pretty sure that we want to open up the kitchen to the dining room. BUT -- should I allow the kitchen cabinetry to spill into the dining room space, turning it into a more casual breakfast-type eating area, or leave it as a more formal dining room space? What would YOU prefer if this was your only eating space?
Additional info: We're a family of 4 (me, DH, our 3 1/2 yr old DD and our 8 mth old DS). We bought the house for the great backyard (it backs to a hill and looks like a private park), and I would like to make the dining-kitchen area an indoor-outdoor space as much as possible. We use the dining room for family dinners every night, but our dinners are not formal affairs. It's hard to be formal with a baby spitting Gerber Turkey Dinner and Split Peas everywhere, but even before the babies, DH and I were never formal people -- our wedding china has been used 3X in 13 years! and our entertaining usually relies on paper plates and buffet style food.
Comments (35)
- 17 years ago
How big is your living room? Thinking of your family now, who you might be in ten years, and possible eventual resale, is there room in it for a formal table that will seat eight? Not that I think you should do it, but is there room for a table area? If there is then you can turn the current dining room into a breakfast room or nook area with impunity, assuming it won't look weird looking in from the LR.
If the answer is no, then you might want to be more careful to keep a dining room feeling. One way to do that is to make the kitchen formal with fine finishes, like the ones that are currently stylish. Go for a high end, great room feeling, even if it's just kitchen/eating. Darker cabinets with simple faces, stain rather than paint, stone counters, etc., increase the formal feeling, though you can achieve this with a cottage look (less formal but still fine finishes), or paint, etc., by being careful balancing your choices.
A high end, formal look doesn't have to be any more expensive overall than simply/cozy. And paper plates go as well in a more formal kitchen as any other :) And it's a lot easier to live casually in a more formal room than to live elegantly in a more casual one.
Another way you can do it is to keep the kitchen cabinets in the kitchen and use contrasting, more furniturelike cabinetry in the dining area, or even freestanding furniture.
To specifically answer your question, I wish I could carve a breakfast room out of my kitchen, but I'd rather have a formal dining room. I'd never consider buying a house without one, though I could like an open plan as above.
- 17 years ago
I would get rid of the formal dinning room in a heart beat, and if I had to choose between buying a house with a formal dinning room, and one with a big kitchen you can eat in, guess which one I would buy.
Related Professionals
Federal Heights Kitchen & Bathroom Designers · La Verne Kitchen & Bathroom Designers · Ojus Kitchen & Bathroom Designers · West Virginia Kitchen & Bathroom Designers · Channahon Kitchen & Bathroom Remodelers · Fort Pierce Kitchen & Bathroom Remodelers · Mooresville Kitchen & Bathroom Remodelers · Eufaula Kitchen & Bathroom Remodelers · Newcastle Cabinets & Cabinetry · Prospect Heights Cabinets & Cabinetry · Tacoma Cabinets & Cabinetry · Tinton Falls Cabinets & Cabinetry · Atascocita Cabinets & Cabinetry · Foster City Tile and Stone Contractors · Scottdale Tile and Stone Contractors- 17 years ago
Sorry no photos yet, but . . .
We just finished a remodel of a small house (9 x 12 galley kitchen + 9 x 12 DR). We compromised by leaving the wall between them - for the sink, DW, and garbage - but hanging glass-fronted cabs from the ceiling. These cabinets open from both sides to allow access to cups, glasses, pitchers. I built up a little 8" backsplash, and there's space between the counter and the upper cabinets so the room's are more open to each other.
In any case, it sounds like your house and your life are pretty casual and that you won't suffer a bit by getting rid of the formal DR.
As to resale, only you know your area and how important a consideration that is. For me, I wouldn't miss a formal DR. Oh, and we have 4 kids.
- 17 years ago
We are also opening up our DR to our kitchen. Like you, our DR opens into the LR which is open to the Foyer and most of the DR is visible from the foyer. You actually have a bigger DR than us (ours is 13'5" x 11'3").
As Plllog has suggested to you, we're making the DR & kitchen into an informal DR/formal kitchen. For the kitchen, we chose cherry cabinets w/stain & glaze in a traditional door (no slab or other "modern" look).
To keep it a somewhat separate, we put in a peninsula where the wall used to be, but with a slightly wider doorway. B/c of ducting in the wall, we have to leave a 2' section of wall on one end (opposite the peninsula). While this was not originally our "plan", it turns out it will help w/the definition of 2 rooms while still opening them up to each other. The other thing our KD is doing is leaving a very shallow "header" b/w the rooms where the old wall was (~1.5"H x ~4.75"D x length of wall-to-wall). She said this will be a "paint break"--if we want to paint the rooms two different colors this "paint break" offers a natural break w/o making it look contrived and unnatural.
As to furniture in the DR, we have two options (we haven't chosen which yet):
(1) Purchase new DR furniture w/either a black finish or try to complement the kitchen cabinetry (picked out the Tuscany set by Canal Dover)
(2) Carry forward the kitchen cabinetry by making a "china cabinet"/"buffet". Install a long base cabinet w/same granite as the kitchen w/glass-doored wall cabinets on either side that go counter to ceiling and, in the middle, wall cabinets that only come down partway--w/crown molding. Most likely we would add furniture feet as well to give it a furniture look. This will give us both a serving buffet as well as a "china cabinet" area. Since our DR is so small, combining the buffet & china cabinet functionality into one will save us space.
HTH!
- 17 years ago
Our kitchen/dining area used to be more open to each other and we separated them more with a hutch-type cabinet with glass on the top that opens to both the eating area and kitchen and "pass through" doors at counter level. We also gained much needed cabinet space this way.
dining room side:
{{!gwi}} {{!gwi}}
kitchen side: just after installation and more recently:
{{!gwi}} {{gwi:1574846}}
Old "open" space, the hutch is now located where the fridge is in this picture.
{{!gwi}}
Our cabinets spill into the eating area. The food pantry is in the eating area. The fridge is at the end of the hutch, in transition space between kitchen/eating area.
{{gwi:1574534}} {{!gwi}}
We plan to convert a room adjoining our eating space into a dining room. There will be no need to insert the word "formal" in front of "dining room" in our house (as you probably can surmise from the old eating area photo.) We'll use it when guests are here but for the rest of the time, the table will be used for projects (I look forward to finally organizing photos and leaving them spread out for days at a time.)
- 17 years ago
We combined theee tiny rooms - a butler's pantry, kitchen and small dining room into one casual space. It finctions very nicely for us. We carried forward the kitchen cabinetry by making a "china cabinet"/"buffet" with a banquette.
Here is a link that might be useful: My kitchen / dining room
- 17 years ago
Your dimensions are similar to ours (except our dining room is bigger than the kitchen), and we are tearing down the wall. We do have another area--the nook of our L-shaped sunroom--that we will be using as our "formal" dining room. Really, that just means we will be moving the furniture we never use to a space we never use in an effort to make the space we do use roomier.
Here's our layout. For reference, the current dividing wall meets the top wall in the drawing halfway between the two windows. The doorway on the left wall opens into the foyer and the doorway on the bottom left opens into the living room. The other door on the bottom right opens to the sunroom.

- 17 years ago
We made a 5' doorway between the dining room and kitchen. Both rooms feel bigger. We kept walls on both sides of this doorway for much needed cabinet and refrigerator space. In the dining room,we added a 12'length of lower cabinets which looks like a buffet (staggered depth of cabinets and added furniture like feet). This buffet has glass front upper cabinets on each end.
I present this as another option: keeping the rooms separate, but, more open to each other. After 3 months of living in this arrangement, we really like it. Before the dining room wasn't open to the kitchen and it had become a giant closet for a number of years.
- 17 years ago
here's a vote for the separate dining room. i know that we do not keep our counters clear and i do not want to look at them any longer than necessary. the dining room is a pleasant retreat and we eat every meal there. sure the formal furniture has a few scratches and there is a kiddy table with plastic chairs in the corner. but it's still my formal dining room in my mind. i can see the china even if i rarely use it (but we actually use it 2-3x per year).
of course this is a personal decision (and possibly a market decision)...for us we had considered changing the dining room-- opening it actually to a family room. but we decided that since it was our favorite room in the house, we didn't want to risk it. interestingly we often get comments on our dining room, how nice it is, how pretty the (dusty) furniture looks, etc. how big it seems. it is not big (12 x 13 i think), but retains its own identity by being separate. only you can answer this question for yourselves..
if you can make it look like zelmar's house, imo, you can have the best of both worlds...that place is gorgeous! kren
- 17 years ago
We had a very similar situation to yours, even with similar dimensions (though ours was essentially a galley kitchen and a large dining room). We opted to steal some space out of the dining room to enlarge the kitchen, but ultimately keep the spaces separate for many of the reasons noted above. Good luck!
- 17 years ago
I am not sure what you mean about having the kitchen cabinets 'spill over' into your dining room. Didn't you plan a large doorway between the two with the island set back 30"? Am I remembering that right? I thought that was a nice compromise between closed off and completely open. Please post your plans again so we can all see your situation and tell us what different options you are considering. Personally, I like a separate dining room. Even with babies spitting peas (and with 8 kids,3-19, we've seen plenty of that over more years than yours will continue to do it -- time flies, even though it may not seem like it to you now), it is possible to dine in a separate area and make meals separate from the work area, even though not technically 'formal.' It's also nice to have the option to be more formal when you'd like to be.
- 17 years ago
I would never consider buying a house w/o a formal dining room, exactly for the reasons provided by Talley sue in NY (i don't agree about the square kitchen though).
So I would keep the FR, especially since you use it (and I salute you!).
i think valuable cabinet and counter is wasted if you have a formal dining room and an enclosed kitchen with eat-in-area. Previous owners of our kitchen used the DR as a playpen for their kids (?!?, for the record the house also has a LR and a FR) and had an eat-in space in the kitchen. Kitchen also lacked a pantry. That resulted in minimal amount of counter and cabinets, and 2 huge emptry walls. we added kitchen cabinets all around the perimeter and added a peninsula, what a difference! My workspace and storage space more than doubled!
sarschlos_remodeler
Original Author17 years agoWow! Thanks for all the comments. This has been very helpful.
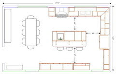
Rhome, I did draw up a plan that would have a large opening with an island set back, but the U-shape was giving me fits about what to do in the corner, and I really prefer the range wall to feel more like a feature wall (without awkward corner cabs). So, I started reconsidering and trying to figure out a better alternative. I love all of the banquets I've seen here, and recently saw a beautiful indoor-outdoor kitchen that used a wall of french doors, which got me thinking about eliminating the cabinets I had on the back wall, doing more of an L with an island, but then I was talking to my moms (mine and my MIL), who both love a kitchen table, which got me thinking again, and being TKO, I started tinkering with the plans again ... You can see where this is going. LOL.
I'll try to draw something up this evening. In the meantime, here is the plan where I last left it.
Here is a link that might be useful: Layout?
- 17 years ago
Maybe you can open the wall, put an island in the kitchen ending where the wall is now, and keep your dining room a dining room. The island will give you more cabinet and counter space. We just did this in our home and even though our kitchen is completely open to the dining room, it is still a separate room. It works really well- and we still have a formal dining room.
- 17 years ago
Our kitchen was about 9x14 plus an adjoining area for a kitchen table that was open to the family room. The dining room is about 10x12 and always felt a bit cramped with a wall between it and the kitchen, and one between it and the hallway.
We tore down the wall between the kitchen and dining room. The old stove was on this wall and it will be a rangetop with double ovens in the corner of the kitchen. By stealing a bit of space from the kitchen isle (it's still 48" wide), and a few inches from the dining room we were able to add a 99" long row of 42" high, 16" deep cabinets in the dining room for storage. Some of these will have glass doors. These somewhat higher cabinets will provide some separation from the kitchen but still maintain a very open feel. We'll have a large 42x34 stainless hood over the rangetop which will also provide some definition of the space.
In addition, we added a bar stool area where we removed the wall between the dining room and hallway/old kitchen eating area. The whole floor plan will be very open between family room, kitchen, dining room and living room, which is slightly sunken, and has two short walls at the ends between it and the dining room.
One of the reasons we opened up into the dining room is so my wife can listen to music while cooking... the living room is essentially my audio room and rarely gets used for anything else since everyone always congregates in the kitchen area anyway.
Now I just need to finish it!
sarschlos_remodeler
Original Author17 years agoTom, do you have any floor plans I could look at? Our range (currently a range top, but I want to ditch the wall ovens) is on the back wall, but I am intrigued by your taller cabs.
- 17 years ago
We have just been through this.
I have ALWAYS preferred a separated, formal dining room - I never in a million years expected to wind up with an open kitchen/dining room space!
But once they cut through the wall (necessary to build the stairs to the attic, which is what prompted the entire project), I immediately felt that we had to open it up as much as possible. It took me until practically the day they started on the kitchen to do it - we had a separated space with a wide doorway as our design until then - but at the 11th hour I suddenly realised how it could be opened up with a peninsula which increaseased much needed storage and counter space, and also allowed the through-light from back door and the two windows (which previously had been separated in each room).
I cannot BEGIN to tell you how happy I am that we are doing it this way. Today, they built the small pantry which will act as a "divider" between the rooms and, while I like it, I (sshhhh) think I liked it even better with NOTHING there, if only for the light.
That said, it would have been impractical to leave it 100% open, so no doubt this was the best way forward with it.
We're still vacillating over what to do on the dining area side of the peninsula; I'm currently considering building a small bookshelf there to make that part feel less "kitchen-y" - as others have done, using furniture and/or different cabinets and/or different kinds of storage etc to break up the space visually a little (while still not separating them completely) seems to work nicely.
One thing this HAS changed is to make me push my kitchen a little more formal than I had expected - pretty much 180 degrees from the more formal dining space I had anticipated!
Anyway, just my 2c. I think we're going to LOVE having it as an open space - with a young family and more casual "entertaining", there's no doubt it's a functional and integrating layout.
- 17 years ago
This is a personal preference opinion - as if asking what perfume one prefers to wear
My op I would echo on the side of the don't loose the formal DR as stated above, restful, away from the mess, would prefer not having people be under foot while I'm cooking - also, from a real estate investment - In my town I think I would be hurt by not having a formal DR when it came time to sell
Other considerations -
Type of home - i.e. I have a 76 yr dutch colonial - I don't think the big open kitchen would serve the original architecture well
- Noise - I think people don't really take into consideration how much noise is created by removing entire interior walls - which are typically replaced by 1/2" sheetrock - a real recipe for lot's of noise. I'd rather have the noisey chaos other places
- In my case the DR is in the front of the house - I just think walking in the front door to the kitchen is awkward -just my opAt the end of the day it is your home, you have to live, eat, sleep there - so you get to decide what is right
good luck deciding - 17 years ago
I'm actually thinking seriously of sacrificing my formal DR to make an office. I have a decent sized L shaped kitchen where the "kitchen" part is just the small part of the L. This leaves a lot of space for a big table and ends up being where we eat for large gatherings anyway. I miss my office from my old house very much, so this is my plan. Now I just have to decide how to separate the DR ("office") from the formal LR. Would love to wall it up completely... but that IS awfully permanent. :)
sarschlos_remodeler
Original Author17 years agocreekylis -- you should check out the trick mnhockeymom did to hide her office space in her kitchen. She used a corner cabinet and out the office behind that. Very clever.
- 17 years ago
Interesting to hear that there are still lots of proponents for formal DR's. Twenty years ago when we built our first house (actually it has to be 23- as DD is 24!), I would have said the same thing- even though in the 12 years we lived in that house, I think we may have used the DR as a DR five or six times! We had a very large kitchen with the eating area open to the FR and a large door to the deck. While my children were small we basically LIVED in that L-shaped kitchen/FR. I think that if you opened up your DR, you would find it a much more family friendly space. I had a small kid's size craft table in the kitchen and many many hours were spent painting, with play dough, what have you. If I had to leave for a few minutes to make a meal, kids were right there. Our large 'dining table' was in the kitchen, and that's where company ate. The smaller table we started out with as a couple resided in the DR and would be used if we just had one couple for company.
Having said that, I am leaving the formal dining room part of our present (smaller) kitchen which we opened up, with stand alone furniture, more formal in taste than the kitchen, though not terribly formal, so for future resale, someone with a dining set could use it (though it's not very big).
If a future buyer really wants it separate then can build walls- build it for what will work best for you- but I vote for opening up the space.
I think pllog stated it really well, keep the finishes in the kitchen a furniture quality finish- not too kitcheny- I think that's why it's working for me.
- 17 years ago
An interesting thread. Our house was built in 1978, and is kind of a bizarre almost squat "t" shape. The front part of the house, walking in the front door, has (had) a formal living room on the left and the formal dining room on the right, with a kitchen and family room (the base of the "t" to the back of the house. For 7 years we lived with the "dining room" (too small for anything bigger than a 6-top) as the office, complete with couch and huge desk. The formal living room was turned into the "train room" (our kids are 8 and 6) and was promptly almost NEVER used except as the world's biggest dumping ground.
So we decided to go whole hog and renovate. We tore out the bathroom and hall closet (which will be relocated, or the bathroom part will). The separation wall between the "living room" (hah! we never lived in there ., . .) is GONE. The old dining room is now a guest room (or will be once the renovation is done and we can move all the junk out of it).
THe family room is separated from the kitchen by a half-wall, and even though it has the fireplace in it, we are very seriously debating making that space the formal dining room. We also have the option of turning the old train room into the dining space. Our plan is to live with it all and see what we like.
This is long-winded, so sorry. I guess my point is that it all depends on what you like, how you WANT to use the space (or might!) Half walls do lots.
My mom told me a trick a while ago that I love. Silverware and linen napkins do tons to formalize an event. It works.
Good luck!
Nica
- 17 years ago
I would definitely want the dining room feel. But I'm with Tally Sue and the rest of the posters who like separate rooms. We eat in our dining room every evening, even though we have seating in the kitchen. It feels more like an event to me, and I know that we linger and chat more when we eat in the dining room than the kitchen.
- 17 years ago
Amen, joann. I found that even guests, when they can see the dirty dishes, feel the need to get up right away and help clean up. I want them to be able to linger at the table or move on to the living room without having the stress of the messy kitchen weighing on the situation. Not only do I feel they shouldn't have to help, but I want to enjoy my time with them NOT doing dishes. I also feel the same about our nightly family dinners. Dishes are a necessity, but I don't have to see them until it's time.
Our new dining room is 16 x 11 and designed to fit our 10 ft table, which can seat 12. I agree that some dining rooms I've seen, which seat only 4-6, seem not worth saving, but the OP's is a nice size for seating few, many or setting a nice buffet. My advice to sarschlos_remodeler is try not to be overly influenced by today, with the age of your kids and the way you do things at this stage. Think of different points down the line, and imagine how you'll want to do things, and what options you might want to leave yourself throughout your lives. Whether the open plan or a more closed one best suits you is something only you can ultimately decide. This is not the first thread on this subject with about an even split on 'sides.' My vote still is for a happy medium...Not too closed while maintaining separate rooms.
sarschlos_remodeler
Original Author17 years agoThanks, rhome! It's hard to forget that there will come a time when the baby gates come down. We've actually been using the pocket door recently to keep the baby in the kitchen while we're cooking so he can't get near the stairs in the DR. OTOH, even my mom (who is usually in the hide the mess camp).
Based on the comments and inspiration from this thread, I have drawn up this new layout that attempts to keep some of the separation while still opening the spaces together. Please let me know what you all think. BTW, the area in the DR where I have placed the beverage bar currently exists (it's just an UGLY and nonfunctional mirrored curio cab set into the load bearing wall). Since it's part of the load bearing wall, I don't want to remove it.
Thanks again for all your help!
Here is a link that might be useful: New layout?
- 17 years ago
Long-time lurker here, but new to posting. I thought I would tell you how we are opening up our kitchen (currently gutted now). We have a 12'x16' Formal Living Room immediately to the left when walking into the foyer. Behind that is a 12.5' x 12' Formal Dining Room. The kitchen (small 10' x 10' plus breakfast nook) is in back, next to the dining room, and the family room is on the other side of the kitchen. I entertain our family of 17 several times a year and I'm not willing to give up the dining room. However, the living room, to me, is a HUGE waste of space. Nobody ever goes in there. In fact, whenever I host a gathering, everybody gathers in my tiny "U" kitchen and I can't move to open the oven, cabinets, etc. It drives me crazy.
My solution: move the DR set into the larger living room, which is open by columns to the foyer, and expand the "U" of my kitchen into the dining room. This allows for a longer peninsula with breakfast bar. On the far wall of the "old" dining room, facing the kitchen, will be a "bar" area and a desk area. I will be able to supervise my girls doing homework, being online, etc. all while I prepare dinner. Plus, it gives our guests an area to socialize while meals are being prepared.
I should also mention, though, that we have a small study with french doors. This room, essentially, will be the LR, and will house the piano, two chairs and a small desk or table. I do think it's important to have some type of private, closed-off room. I recommend reading some books by Sarah Susanka - her theory of using the space more wisely, as opposed to needing more space, was extremely valuable to me.
- 17 years ago
Sorry...I can't like this latest one. It looks pretty crowded to me this way...especially around the table. 18" behind the table won't be enough for seating or to access the buffet, besides feeling shoved together. I wouldn't like the unbalanced effect of having a partial wall on one side and a cabinet on the other (and ending at different spots) as room definition. I don't think you're gaining anything on the open/closed issue...The only gain is the glass doors in the kitchen, which is just a whole different idea than your original, and than your original inspiration kitchen. If the doors are a priority, rather than, perhaps, large windows, I think you'll want to work on this some more.
- 17 years ago
Do you have anywhere near the entry for a coat closet, armoir or hall tree? If you do, you could claim the coat closet for the kitchen.
sarschlos_remodeler
Original Author17 years agoPllog, the area where I have the wine bar in the DR was the original coat closet. The previous owners turned it into a curio cabinet for their crystal collection. That's the closest place to the entry for a closet, but I really don't want a coat closet in my DR. I liked the placement of the coat closet in the layout since it gave me a feature wall for the range and for the sink, and eliminated awkward corner cabs, without sacrificing storage. By placing the sink on that wall instead of the window wall, I am only moving plumbing over a couple of feet from the current peninsula to the wall, instead of going across the room.
rhome, I have the DR table shown too close to the buffet on the layout, but it would really be about 33" between the table and buffet (the current position), which gives us 36" from table to the current dividing wall on the other side (which would be 42" between table and island in the layout). I was trying out a layout with a door because I wanted to try an indoor-outdoor feeling and because as we live in the house longer, I am finding that we really use the kitchen door almost exclusively, even though we have backyard access from the family room, dining room, kitchen and master. In fact, we've blocked off the dining room door from the outside with the bbq.
- 17 years ago
Well, yeah, coats don't go in the DR! Okay, makes sense.
It seems to me that you could get a more open feeling if you put cabinetry all along the buffet wall (including a buffet top) that would take the place of the buffet, curio, the first cabinet (is that the wine bar?) on the DR side of the fridge and the cabinet between the sets of French doors. The wall between the French doors could then have something very shallow, like book shelves, or a single depth cabinet for glasses and vases (the latter is something I'm putting into mine).
Or is there something structural in that niche by the fridge that you have to keep?
sarschlos_remodeler
Original Author17 years agoplllog, are you suggesting no wall at all dividing the DR and kitchen on the side where the doors are? If I do that, the curio cab (we already have the cab -- it's a very cool piece that we plan to keep) could go between the two sets of French doors. Unfortunately, I believe the wall where the fridge, wine bar, sink are located is a load bearing wall. There is electrical, a vent and the thermostat in the part of the wall where I have the wine bar. Where I have the fridge in the layout is the current location of our water heater (yes, it's in the kitchen!). We're planning to replace the water heater with tankless to get it out of the kitchen, but as you can guess, there's a lot going on in that wall.
- 17 years ago
Well, that's a lot of structural :) It would still work if all that stuff is in the wall that backs up to the gallery, to take out the short part that encloses it on the DR side. The wine bar and existing curio could be built into the buffet wall, or the curio could go by the French doors. But what I'm really hearing is that you like your general layout, which is good!
sarschlos_remodeler
Original Author17 years agoUnfortunately, the vent and electrical is in the short part that encloses it on the DR side. I'll ask my DH if he can switch the location of the light switches to a different. I think it's in that wall because there is a pocket door in the wall between the DR and FR. Not sure what to do with the vent -- it's not a blowing vent, so I'm not exactly sure of it's purpose.
I am absolutely not married to a layout yet. Everytime I look at a magazine, I start tweaking it. We're trying to keep costs down by avoiding the KD and having my DH act as the GC (he's currently trying out the stay-at-home dad thing -- we'll see how that goes), so I'm pretty much the designer -- with A LOT of input from all the brilliant folks on this board (although I think we need a structural engineer in order to get our permits okay'd by the county). I've just been looking at some more pictures recently posted here, so I'm off to tweak my design once again!
- 17 years ago
We turned our smallish formal dining room into an office, by adding french doors on both openings. So, now our only eating area is attached to the kitchen. Its a decent size eating area 15X10, with a penninsula seperating the kitchen from the eating area. The living room is adjacent to the eating area (its a big L). I don't miss the dining room at all. For my next house I want one big open area. I know there are downsides to this and its not for everyone, but I like the open arrangement. The downside is either you need to clean as you cook or be OK with having the mess visible. I'm sure there are other ways to deal with the mess too. On the dw noise, we have a LG and I can't even tell its on. Now, the microhood and Bosch convection slide in is a different story, but those are only on when cooking. Given the way we live, an open plan works great. So I am in the minroity here it sounds, I would get rid of the formal dining room.











talley_sue_nyc