Need Help Making Tiny Kitchen More Functional
Hello: long-time reader, first time poster here. I just wanted to say thanks so much to all the people here for offering so much assistance for free. I've learned so much reading and lurking.
I haven't seen a kitchen featured here that is quite as awkwardly configured as mine is. But I figure that someone here might be able to help me create something that is functional within the current footprint (or tell me what I have is pretty much the best that can be done.) Thanks so much for any advice you can give.
I anticipate this renovation process will take a while because I don't have the money to do everything at once. What I do need to do is get some new appliances (a fridge most urgently) and I'd like to buy things that will fit into my future design goals (so, if a counter-depth fridge works best for this layout, I'd rather buy it now even if I'm not immediately going to change my cabinets.)
Now, the input requested on the "how do I ask for layout help:"
Family composition: one adult, one 5-year-old. He likes to "help" in the kitchen now and I'd love for us to cook together in the future, but the kitchen may be too small to comfortably allow that.
Cooking routine: I cook a lot. Much of that is cooking large meals and then warming up leftovers over the course of the week. Probably split evenly between stove top and oven cooking.
Entertaining: very infrequent. 99 percent of the time, kitchen will be used for home cooking.
Separate dining room: I have one and we use it for every meal.
Opening up the kitchen: I don't think that would help flow issues in the kitchen, but I'm open to considering it. I like the fact that I can't see kitchen messes from my living room, however. It helps me pretend they are not there. :)
Can windows and doorways change size/location: For now I'll say no, but that's purely a matter of expense. Perhaps it costs less to move a window than I'm imagining?
Does the sink have to be centered under a window?: I also imagine moving plumbing as being fairly expensive, but if there's a wonderful idea that would involve moving the sink I'm definitely open to hearing it.
Things I can't live without:
I really need to keep a dishwasher. Many of the houses in my neighborhood are built exactly the same as my house (older, post-war housing) and some non-renovated kitchens don't have dishwashers -- I know that would maximize storage space but I wash too much to give that up.
Things I'd love to have:
MORE COUNTER SPACE! This may be a dream. Or possible achieved through changing to induction range and a more functional sink, such as one that has a cutting board?
Some kind of pantry that isn't so deep like the one I have now, and that would allow me to actually close the door. The floor of the pantry is slanted because on the other side are stairs to the basement.
A better hood for ventilation - this is really a necessity.
A fridge with water through the door. I know that this is asking for problems. But my little guy is always asking me to get him water. I'd love to outsource that task. :)
Some smaller, separate oven/microwave (Advantium?) for heating up leftovers/small meals
PICTURES and LAYOUT: see below. I have tried to draw this using IKEA's kitchen planner, but it is beyond me. One thing I did wrong in my layout -- the door to the backyard, on the left, swings IN, not out. Also, I did have that ceiling fan (the only light that was in the kitchen!) removed and replaced with can lighting.




Comments (97)
- 8 years ago
A different idea, but 12" then range then 48" prep, 33" cab to house 30" fridge. small pull out to allow fridge to open completely and house broom, cans, ?.
Clean up on other side of kitchen, takes range and sink off same wall tho :(


- 8 years ago
Last one, I'm procrastinating and NOT cleaning out my gardens...
Here's mama goose_gw's plan with fridge on other side


Related Professionals
Frankfort Kitchen & Bathroom Designers · Schenectady Kitchen & Bathroom Designers · Olympia Heights Kitchen & Bathroom Designers · Albuquerque Kitchen & Bathroom Remodelers · Beaverton Kitchen & Bathroom Remodelers · Fort Pierce Kitchen & Bathroom Remodelers · Linton Hall Kitchen & Bathroom Remodelers · Oklahoma City Kitchen & Bathroom Remodelers · Southampton Kitchen & Bathroom Remodelers · Sweetwater Kitchen & Bathroom Remodelers · Brea Cabinets & Cabinetry · Watauga Cabinets & Cabinetry · White Center Cabinets & Cabinetry · Tabernacle Cabinets & Cabinetry · Brentwood Tile and Stone Contractors- 8 years ago
Hi again --
Just wanted to thumbs-up ideas that put the frig as close to the end of the kitchen as possible, even though it means your son/others will have to tromp through work space.
I grew up in a small galley kitchen that was open-ended, and the frig was always hulking *right there* when you swung into the most frequently used end of the kitchen. When my mom remodeled decades later the frig went a few cabs down and the difference was remarkable -- the area felt much more open. Bonus if you move the frig next to the basement door to gain that expanse of counter. ;)
Also, I re-read and don't think anyone has mentioned adding between-the-studs storage to either of your "ends" there? Whether you do half-height or full-height, that can give you so much space for "extra" (visitor) drinking glasses/mugs or various pantry items.Also-also -- is the lower storage in your lovely DR built-in full? Just wanted to point out the obvious that if it's empty it could be another good spot for larger items.
cs929 thanked House Vixen cs929
Original Author8 years agolast modified: 8 years agoThat built-in does have good storage that is going unused right now. Definitely a good spot for larger items.
I'm really liking CluelessinColorado/benjesbride's idea. (Which by the way would have taken me approx. 100 years to do myself.) I like the idea of open shelving to show off my Fiestaware, but I also have a lot of junk that needs to be behind closed doors, which that design also has.
It's nice to have the confirmation that closing off the pantry as currently configured can work.I also can see that a 36 inch (counterdepth?) fridge is a possibility, which is more than I had dared to dream.
This was exactly the sort of advice that I was hoping for, by the way -- now I know that an 18 inch dishwasher might offer me more options than a 24 inch one does, so I know to put that purchase off until I can make more wholesale changes.
- 8 years ago
What CluelessinColorado pointed out about the corner cabs is why I didn't use Ikea -- although you have got more room to play with than I had. I toyed with the idea of hacking the corners from 2 regular base cabinets (I have a saw and know how to use it LOL!), and also considered ordering from Barker just for the corners and using Ikea for the rest, but in the end I found a cabinetmaker who was very budget friendly to build them for me in an asymmetric design.
In the U shape plan, perhaps make the tall cabinet shallower overall, or just shallower in the top half, or like a hutch with a nook for the microwave, to make the doorway feel more open. Another option: swap the positions of the range and frig.
- 8 years ago
Man, you request a photo, go off to make something for Thanksgiving dinner (Canadian), come back to great ideas.
I was wondering if that wall with the air register could be used and mamagoose as done just that, and yes the air register can become a toe kick one. That's what we did and it is simple to do, especially given that underneath is open.
Nosy question - you have one child, are anymore planned? The answer may change your desire for a smaller DW and fridge.
- 8 years ago
AJMadison has a website with huge appliance selection and excellent search tools. I have never purchased from them, but I use them all the time to figure out what dimensions, etc are available for appliances. So if you want to play around with possible refrigerator sizes, I'd suggest looking there. Please do note that many "counter-depth" refrigerators actually stick out a few inches. So if that's important to you, look at the actual dimensions + any clearance requirements--most refrigerators need a few inches of breathing room for air circulation.
cs929
Original Author8 years agolast modified: 8 years agoI'm one-and-done on the kids front. :) But it's a good question; an 18-inch dishwasher would be unusual here, as far as I can tell. But then, some houses in this neighborhood don't have dishwashers at all and people are still buying them.
- 8 years agolast modified: 8 years ago
I know the stairs are by the back door, but is it possible to make that opening even a bit wider? That would be $ well spent (IMHO) to get even a few inches more. Looking at the other house you posted my guess would be probably not possible.
- 8 years agolast modified: 8 years ago
With cluelessincolorado's plan with the fridge on the back wall, you could open up the kitchen as the neighbors have done. The corner range wastes some space (about 24"x24"), but would be easy to vent. Pots and pans can be kept in the corner susan, and flatware kept above the trash pull-out.

cs929
Original Author8 years agolast modified: 8 years agoHi again. So much to read and absorb. I love it. Just a few last questions?
I am saving some of these IKEA mockups in my kitchen planner account. How do I display the views that some of you are including in this thread? In the planner I see a "floor view," a "3D line view" and a "front 3D view," but nothing seems to produce the same views that have been posted in this thread.
I am trying to work through my feelings about having the sink not centered in that window! The functional reason for moving the sink to the right is obvious. And boy, would I love more room. But something in me is just saying "WRONG!" :-) That window just feels like everything must be centered around it. Promise me it would be okay? :-D
I think more than one person suggested or supported creating a pocket door between the kitchen and the living room, or creating an opening between the kitchen and dining room. What's the thinking behind that? Right now, that wall in the living room is where I have my sofa. I can rearrange the furniture in that room, of course. Just trying to think about what is gained by opening things up that way...?
One of the benefits of living in a neighborhood where there's like 50 of the same house is that I can see how a lot of things have been tried. Here is another house like mine, where the wall b/t the living room and kitchen was opened up very wide (the fridge was tucked where my pantry is, and the stairs have been reconfigured in some fashion.) I don't love the end result here, I think it limits furniture placement. However, I know no one here was suggesting a change quite THIS drastic:

I'm surprised whoever flipped this house was able to remodel and get away with keeping the range flush to the wall. I thought that was against current building codes -- a lot of the houses in my neighborhood have the range set up like that, but they haven't been renovated as this house has.
- 8 years ago
To capture images I use the arrows in the program or on my keyboard to move around the 3d image and then I use what is called on a PC as the snipping tool, but now that I have a Mac I just know it's command/shift/4.
I think it'll totally be okay to have the prep counter centered on the window instead of the sink. I wish there was an easy way for you to try it out. If it wasn't for the brick I'd just suggest you move the window. Maybe getting a bid on doing so will help influence your decision of what to do.
I like kitchens that are separate, but still connected a bit to the living space. Your kitchen seems really closed off and maybe if you have a few guests there's a bottle-neck at the top of the stairs? I think the galley layout will serve you well with or without the pocket door, but as you go through your days you might be mindful of whether a second kitchen entry would be beneficial to you two.
I wouldn't want an opening wider than a most-narrow pocket door. I agree that example is too wide. And a bit weird.
I don't think a range against a wall is against code as long as the wall surfaceis not combustible. The problem with that configuration is that your pot handles have nowhere to go and it's dysfunctional to have no landing space on one side of your range. My kitchen is fairly small and I opted to have just enough space to the right of my stove to hold a cookie sheet, leaving me with a nice wide countertop to the left. I sometimes wish there was more space on the right when both kiddos want to be at the stove with me, but otherwise I'm happy with that choice.
cs929
Original Author8 years agolast modified: 8 years agoI apologize, my question wasn't clear -- what I meant is, within the Ikea kitchen planner itself, what option(s) are you selecting that allows you to see all these different views?
Point taken about the bottleneck. That happens now with just the two of us, especially if I'm also using the back door.- 8 years ago
Oh! I think I snipped some of the views through the print view at the top of the screen (circled in red) and some were snipped in the 3d view by moving around the arrows (both circled at the bottom.)

cs929
Original Author8 years agolast modified: 8 years agoHi all:
Thank you, again, for helping me envision a new design for my kitchen. I've been reading a lot and thinking about how I use the kitchen, and I've come up with a design myself that I hope you can critique.
I'm keeping everything in the same thread because I thought it would be useful to have all the pictures and previous comments together; please let me know if it would be better to start a new thread.
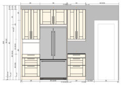
I did this in the Ikea planner - full disclosure, I'm not as good at is as you guys are! A couple of notes: I don't know why it's rendering as drawers, but to the right of the sink is where I've placed a 24-inch dishwasher.


Things I like:
*The counterdepth fridge and "secondary pantry" are over near the kitchen entrance. I envision that 24 inch drawer stack holding chips, pretzels, bread, jelly, plastic cups, cereal bars -- the kind of food and utensils that I access on a day to day basis, not food I have to cook. So my kid and other visitors can just come in, grab some water or some snacks and stay on the edge.
*A smidge more useful counter space
*The 18 inch cabinet to the left of the sink can hold trash and recycling
*There's more upper cabinet storage than I have now, but it's on the "south wall," keeping the window wall more open looking
*The "primary" pantry will have more space for food that needs cooking -- pasta, canned goods, flour, sugar etc.
Things I don't like/that worry me
*I won't be able to open the fridge door all the way, unless I invest in a Liebherr (highly unlikely), get a fridge that has a right hand hinge, or get a fridge that's only 30 inches wide
*Where do I put my dumb brooms? Right now they're just falling all over the place in the open b/c there's no good place for them.
*Does placing the stove on an interior wall introduce complicated ventilation challenges (Or can I just go straight up through the roof?)
*The stove is behind me -- bad ergonomics? Maybe not so bad since nothing in this kitchen is more than 4 steps away from me anyway.
*Separates the fridge from the main pantry
*Moving the stove behind me means either moving a gas line ($$$?) or committing to induction, also $$$ to get the correct amperage on that wall
*Right now, the counter space that is on the right when you enter the kitchen is a dumping ground for mail, groceries and other junk. Now all of that junk will be near a heat source. Will require a change in habits.
*There's no 36-inch drawer stack
*I can't really "feel" what it would be like to enter the kitchen and have a big appliance right in my face. Would it be overpowering?
Thoughts?
- 8 years agolast modified: 8 years ago
I would not start a kitchen remodel knowing you won’t be able to open your fridge ;)
check out this picture with the CUTE pantry. http://www.simplygrove.com/elmira-stove-works/
I also like this photo because the windows are similar to yours. You don't have quite the same width to work with, but a narrow pull out could work.

- 8 years ago
Fridge door opening...that is why there was a slim pantry next to the wall in many of the plans. IKEA cabinets can be hacked to create one...you just have to leave the space in your plans.
- 8 years ago
Why do you prefer the fridge next to the sink rather than the range next to the sink? Most cooking is done between the two.
My range is across the aisle from my sink. It's a bit inefficient and definitely messier than if I had continuous counter between the two. I chose this compromise because I had some constraints in my small house renovation that you don't have. Purely from a functional perspective, I'd prefer to work in a galley that has sink/stove on one side and fridge on the other rather than the fridge/sink together like I have in my galley.
In the space between dishwasher and range in this layout, you could do 24" base-18" trash pullout-24" domsjo instead of the 36" base and 30" sink I drew. 36" base-30" sink with trash and recycling under the sink would be my preference, though, in a kitchen this pressed for storage space.


- 8 years ago
Hi Cs --
Lots of good stuff to think about upthread.
Quick general comment -- investigate how much you need an 18" trash pullout. I think for sure you could get it down to 12" in frameless cabs, maybe even 9".
Obviously it depends on your trash/recycling/compost (?) ratio and how often you take trash out, but in my 2-adult house we use an ~ 8"W, 12-13 gallon "office trashcan" like this one and get 2 days out of it.
[It currently lives below the sink which I personally hate due to cross-path stuff, but yeah, you may not want to waste the space on a pullout.]
cs929
Original Author8 years agolast modified: 8 years agoHi all:
I was thinking of a couple of things when I came up with that layout. Mostly I've been just paying attention to how I cook. Often my kid comes in and wants to "help" me cook, which means dragging his little stool in and setting up right next to the stove, where I have bacon frying or water boiling or something else that might harm him. So I was thinking that having the fridge at the "edge" of the kitchen and the stove set in a little bit might be a good thing. I know he won't be 5 forever, but I guess I'm at a point where I *feel* like he might be 5 forever, ha.
I also looked at houses for sale in my neighborhood via the online listing service. Of those in my price range that have renovated kitchens, none of them have 18 inch dishwashers, but plenty have small sinks. So I figured a small sink wouldn't stand out so much (and to me, the single bowl Domsjo is pretty big.)
Is my heart set on a 36 inch fridge? Honestly, no, I think they look ridiculous in a kitchen this small. Smegs are so cute! But I can't pay that much for an Amana in a pretty skin. Of the kitchens I see in my neighborhood that have been renovated, most of them have managed to squeeze in one of those behemoths (rarely are they counter depth.) Other, nicer options are out of my price range. So my thinking was to work around the "standard" width; at least counter-depth would make it a little less overwhelming. If a buyer in the future wants to have a fridge jutting out into the work space, that's his business.
Re trash pullout: some of this is just my ignorance. Unfortunately I can't get to Ikea a lot to see a lot of the options there. It seemed to me that an 18 inch pullout was the size that a lot of people had to use to be able to fit a 13 gallon trash can, and that's just the size I'm used to.. If there's another way to do that, I'd love to regain that space.
- 8 years ago
I was thinking that maybe you don't need a separate cabinet trash pullout. We put in as big a single sink as we could find to fit a 24" cabinet. Then we made that cabinet a pullout where we house a large garbage can, small step stool, grocery bags and cleaning supplies. It works fabulously well for us.


I should mention that the sink has a drain at the back, so we have lots of room underneath. Purchased sink through amazon.ca (it was from Krause for around $240, I think. It was 3 years ago, though.)
cs929 thanked lisapoi - 8 years ago
@lisapoi -- thank you for sharing that -- potential great solution for OP and others.
[While most of my potential reno is drawer-based, I'd been thinking of undersink doors since they're classic vintage -- but with a 24-25" sink likely for us, I really don't a single drawer sacrifices too much of the look. Other kitchens have 2 sinks, I think mine will have 2 small trashcans....]
- 8 years ago
I have to say that for a small family, a 30" frig is very adequate, unless it is your habit to stockpile lots of items that require refrigeration. For example, currently in mine I have 3 cartons of eggs, 2 yogurt 8-packs, 2 bottles of soda, 2 half-gallons of nut milk, 4 cartons of cottage cheese and sour cream, a large box of salad greens, 2 bags of apples, a bag of sweet potatoes, 2 bags of tomatoes that I just picked, and containers of random things like parm cheese, pickles, dips. And that doesn't include what is in the door shelves or veggie & deli drawers.
Also, may I recommend a 30" sink base with a 28" Blanco Stellar stainless steel sink (the Blanco only because I don't know how roomy the Domsjo sink is). That extra room in the sink has been very much appreciated by me, and still there is room for trash, recycling, compost, detergent tabs, and some random items (flashlight, duster, tape etc) on pull-outs under the sink. I don't worry about having trash under the sink -- nothing is going to crawl out and be able to get into the sink any more than it could from a cabinet right next to the sink.
cs929
Original Author8 years agolast modified: 8 years agoI forgot to mention another reason I was moving things around was to try to figure out a good place for a microwave and possibly a toaster oven. Getting rid of the OTR microwave makes sense for a lot of reasons, but there's not an obvious and convenient alternate location for it.
Anyway, I think I may just be trying to make this kitchen do more than it really can do! Back to the ol' drawing board....
- 8 years ago
Hang in there. FWIW I think you're really close -- it's basically 2 layouts and each has its pros/cons for how you live and cook. Either will be a big improvement over what you have now and make your kitchen a more enjoyable place to be!
If you end up with the frig where you just proposed, I'd really rec that you get it all enclosed floor-to-ceiling with the full-depth cab above etc (you may have this as a must-have already). As CinC's adorable retro example above shows, this makes things look very intentional and streamlined.
[Can you tell we cheaped out and didn't do this back in the day? #regret]
- 8 years ago
I agree. You're super close. This is the typical process of drilling down your final plan.
What about a 24 inch wide pantry cab with open shelf/shelves for your microwave and toaster oven? Here's a drawing with a 30" fridge and a 30" base cab.


36 inch fridge and 24 inch base cab


cs929
Original Author8 years agolast modified: 8 years agoThese are so helpful, benjesbride, thank you very much.
And, I meant to ask you this before -- is there a reason you're not taking the base cabinet on the right of the fridge all the way to the doorway on the right? That's the way that particular base cabinet is installed now. I didn't know if there was a design rationale for leaving space there, or if you were thinking there is doorway molding there that you don't want to cover up. (there's not, it's just a short corridor between the kitchen and dining room.)
- 8 years ago
Sorry about that. I missed that it's not a cased opening between the kitchen and the landing area. Also, in my own kitchen I regretfully crowded a swinging door and I think I'm am overly cautious in other kitchens because of it.
If you're used to having counter to the edge of the opening and never had a problem catching the corner of the counter, you should maximize that space.
This drawing shows a wall next to a 30" opening, but I"m not 100% confident that's what you have...


- 8 years ago
LOL benjesbride! I had just gotten into the 3D drawing of the same plan when my computer froze. I didn’t take it to the door frame either. It’s nice to have a little breathing room around an entrance, especially when that 5 year old starts to gain on you.
cs929
Original Author8 years agolast modified: 8 years agoNo apologies necessary, I certainly am not criticizing the hundreds (thousands?) of dollars worth of free design advice I'm getting here! I just was wondering, because I know in my first attempts at using the kitchen planner I didn't account for filler pieces and made everything too tight. So I wondered if there was something about an end run of cabinets I wasn't considering.
Sadly, whether the cabinets go to the edge or not won't make much of a difference, the passageway is still pretty narrow. I was having all these fantasies these past few weeks of building an addition onto this house -- it would solve so many problems! -- but like I said earlier, if I could make that kind of investment I'd just buy something that's closer to the mark.
- 8 years ago
I am having the ding dang hardest time with the Ikea Planner freezing lately. It's so frustrating.
- 8 years ago
cs - Your house is SO lovely. You don't need an addition. (Smaller yard and darker interiors? No way.)
The changes you're considering may seem insignificant compared to what one would do with unlimited funds, BUT things like 3 feet between sink and range, upper cabinets to the ceiling, external exhaust, all-drawer base cabinets and a pocket door to the living room(?) will be HUGE improvements. HUGE.
cs929
Original Author8 years agolast modified: 8 years agoAw, thank you. If I can resolve the puzzle of the sink wall, I think we'll be good to go! I'd love to have a 36 inch drawer stack, room for large garbage cans, AND a standard dishwasher, but something's gotta give...
- 8 years ago
Well, you can have a 36" drawer stack but your other drawer stack (or pullout if you prefer) will be only 12". Or you could have two 24" drawer stacks, which are a nice size too. My 30" sink base holds two 27 quart trash cans (I use one for recycling) in a 15" pullout -- are those too small for you? I guess what you'd have to give up is having the sink centered on the window.
- 8 years ago
I think that venting-wise, you'd be better off keeping the range in the same vicinity. Exterior wall brick wall!
- 8 years ago
For folks who use Ikea cabinets, the 18" trash/recycling pullout is the best one (IMO) because it holds two of the tall, black waste bins.
- 8 years ago
I'd probably prioritize the storage, put the trash and recycling under the sink and go for an 18" dishwasher.
I imagine an 18" dishwasher works well for a household of two who may not eat all meals at home. As a family of four with three peeps at home all day, a 24" is just right for us.
cs929
Original Author8 years agolast modified: 8 years agoYou guys are up late. :)
Anyway, yeah, it just has to be a gut-check decision for me regarding standard-sized dishwasher vs. storage. An 18 inch dishwasher would be perfectly fine for the two of us...but will some buyer in the distant future be totally turned off by that? And even if so, how much should I care?
On the other hand, having drawers will be so much more FUNCTIONAL than the current set up that maybe it doesn't matter if the drawer stacks aren't so wide. I mean, basically right now I'm dealing with a big jumble - half the time when I open a door, stuff comes falling out -- so avoiding that would be a relief.
But having a 30 inch sink cab would be really nice, too.
Anyway, those are questions I'll just have to sit with for a while. It's really an interesting exercise. I'm certainly paying more attention to my kitchen habits!
- 8 years ago
Hawaii time! Only 8 something here. ;)
Well, I’m really, really late to this thread. I tried to read through best I could. So many great suggestions by everyone.
My measly input for now is regarding resale and what may be practical for you and a growing kiddo.
I’d do a 30” fridge, 36” is too big in your small space. 24” dw, 18 is a deal breaker for some. 30” range and 30” decent hood, even though 36” hood is best.
In my experience, people cannot invision life without those minimum sizes it seems. Ugh!
In my tiny kitchen, I took crl’s suggestion and bought the 24” LG fridge (suggested early in thread). Love it! (I’m planning to move into my tiny house btw crl)
We did allow for a 30” fridge to be added just in case that one dies on me down the road. Mainly because they don’t make a 24” fridge cab without going custom and figured replacing with a 30” fridge would be cheapest.
I am looking forward to seeing what you end up with in your adorable home!
- 8 years agolast modified: 8 years ago
If the sink is undermounted, being offset from the window wouldn't bother me. Especially if it meant a full size dishwasher, a 30 inch sink and a 30 base cab:
(I store pizza pan, jelly roll pan, cookie sheet, cooling rack in my 12" base cabinet.)



- 8 years ago
The advantage of the sink being offset from the window is now you're prepping under the window.
- 8 years ago
Rebunky, I feel like I suggest that refrigerator over and over, but I was so grateful someone here (like a decade ago) mentioned it to me because it was perfect for our space and I never would have found it on my own. I didn't know you were moving into your tiny house! Such a lovely space.
cs929
Original Author8 years agolast modified: 8 years agoI think I like the idea of maintaining a 15 inch landing space to the left of the stove. For one thing, it gives me a convenient place to put my Instant Pot (yes I have WAY too many gadgets!) The other thing it does is keep the prep space mostly under the window.
I'm coming around on the benefits of a 30-inch sink cab. It allows a larger sink, I can put a cutting board on it and use it as prep space if necessary....all good things. And I saw this cool hack where you can make one 15 inch door into a trash pullout, and the other side can be a regular door (or, I guess, another pullout.) I like that!
I think I'm going to start another thread seeing if people might be able to share pictures of their off-center sinks. Seeing this will help me visualize it a bit better.
Hi, Rebunky! I'd love to go to Hawaii some day. It is very hard to find an affordable 30-inch, counter-depth fridge, I'm finding! There's the Fisher Paykel, but I worry about reliability and it's at the tippy-top of my budget. There's 33-inch wide counter depth fridges, but at that point, why not just go to 36 inches, you know? I'm not sure if a contractor can build a recessed space for the fridge because that wall goes into a stairwell, but I won't be sure until I get someone in here to look at it. So, it's just another compromise for me to consider -- overly big counterdepth fridge, or correctly proportioned standard fridge that might jut into work space?
Sorry that I'm using you all as my constant sounding boards! The limitations of a small space can be frustrating but I find this enjoyable to talk about.
- 8 years ago
I echo Palimpsest above, this may be a time when the DW goes between range and sink to get the most prep space.
- 8 years ago
I'm going to put in a plug for urban/less-private kitchens with sinks offset to windows. At least in my case, the peripheral view is actually *better* than looking straight out!
The indirect view is greenery, the direct view is not as cute.
- 8 years ago
My mother just got a 33 inch Kenmore French door, and I can’t believe how much it holds!
- 8 years ago
Regarding a place for your instapot... you might be talking about when its in use, but if you're talking about storage, the bottom drawers of the 5-10-15 stacks are great for small appliances; your instapot might store away nicely in one.
cs929
Original Author8 years agoI was thinking about when it's in use -- but thanks for letting me know that a bottom drawer works well for it. I envision wheeling a cart full of dishes and appliances to Ikea the next time I go out there, so I can try out everything. I can't be the only person to try that!











palimpsest