Help me pick a 36" range that meets all these criteria!

Hi Houzz!
We are looking for a workhorse of a range for our new build. For background, we have 5 young kids, homeschool, and I use my range 3xs per DAY every day for eggs, pancakes, grilled cheese sandwiches, quesadillas, and dinner foods. We don't mind spending more ( around $8k) to get a range that will work as hard as I do, haha.
I am planning to buy a speed oven (small wall oven + microwave in one) as back up when I don't want to use the big 36" oven.
Which 36" range would you suggest for us? It needs to have...
- Excellent reviews from people who have used it for more than 5 years.
- 4 burners plus a built-in griddle in the middle.
- Griddle that is easy to clean.
- All gas.
- Not super high BTUs. We like to simmer things and so I don't want to have a lot of high BTUs.
- Sealed burners, which are easier to clean than open burners. (Right?)
- Not a lot of bells, whistles, and dinging sounds. I'd be happy if it had no computer, no clock, nothing that can break easily, just a really strong traditional stove that will last 20 years.
- Excellent service and easy-to-acquire parts in the U.S. if things do go wrong.
I'm looking at everything... Bluestar, Wolf, Thermador, JennAir, KitchenAid, Bertazzoni, Miele, Kucht, Zline, Hallman/Ilve, etc. What would YOU recommend? Thank you!
Comments (34)
- 5 years ago
Open burners are so much easier to keep clean then sealed, it's not even funny. With my Bluestar open burners, it's a quick wipe with a damp cloth and I'm done. Only induction cleans even easier.
High BTU isn't mutually exclusive with good simmer performance. It's more a question of proper design of the burners. I find the star shaped open burners hard to beat. They don't flare out when you increase power and they don't suffer from a big cool spot in the center.
But if you really want to cook at low temperatures, you should get into the habit of using your oven(s) more frequently. That's how commercial kitchens deal with this situation. Much more even and gentle.
A 36" range requires a 42" hood, that should be at least 24" deep. And it also is likely to require make up air. Consider the cost of these items, as it might blow your budget.
I have cooked on griddles before and I understand their appeal. But none of them are really easy to clean. I would probably pick an overlay griddle instead of a built-in for this very reason. But your priorities could be different.
In your situation, I'd look at either the Bluestar RCS (not sure if that can even do a griddle) or RNB. Both with open burners.
I don't think I would consider the closed burners for the Bluestar. It doesn't play to that brand's strength. Plenty of other so-so closed burners to choose from other brands as well.Barefoot Nurse thanked M - 5 years ago
I would recommend AGAINST a built in griddle - here's why - and as background I have had one for 20+ years and despise it.
- at 12" with "sides" to separate it from the burners - it's too narrow to be useful because you don't want your pancakes up to the edge
- With the little grease catcher thing - it shrinks the usable area even further and I'd never scrape grease into that catch pan thingie anyway
- You can't maneuver around it with a spatula due to the dividers between it and the burners
- It never looks clean
- I've totally given up on "seasoning" it
- It currently holds my salt cellar
I'd recommend a griddle pan that sits atop the burners and allows you to use the whole thing and get your spatula under things that are at the edge.
It's possible that newer ranges have better griddle configurations - but I am not a fan.
I have had a range top from Thermador and have been very happy (ovens also Thermador and are operating fine) but I don't have a range in my config
I've had to replace VERY LITTLE and I was able to find parts to do it myself.Barefoot Nurse thanked just_janni Related Professionals
Augusta General Contractors · Dardenne Prairie General Contractors · Newburgh General Contractors · Waldorf General Contractors · Fresno Kitchen & Bathroom Designers · Southbridge Kitchen & Bathroom Designers · Ogden Kitchen & Bathroom Remodelers · Walnut Creek Kitchen & Bathroom Remodelers · Murray Cabinets & Cabinetry · Radnor Cabinets & Cabinetry · Tooele Cabinets & Cabinetry · King of Prussia Kitchen & Bathroom Designers · Chicago Ridge Kitchen & Bathroom Remodelers · Tuckahoe Kitchen & Bathroom Remodelers · Maywood Cabinets & Cabinetry- 5 years ago
I had a builtin griddle on my Wolf df in last house. Never again. For things that I want to do quickly for kids and grandkids...I want to do it quickly and not wait forever for it to heat. Plus I had the 12” and it wasn’t very big. Not easy to clean.
my younger dd has a KitchenAid range with one of the center griddles that is removable. Honestly I like her griddle better than the one I had.
i have a 36” 6 burner Wolf rangetop in this house with wall ovens. Love my rangetop. Love the wall ovens.
older dd just sold her house with 36” Wolf AG range. Her dh is the cook in their house and he loved his range.Barefoot Nurse thanked ILoveRed - 5 years ago
"Excellent reviews from people who have used it for more than 5 years."
That would exclude all models that have been introduced since 2015 and include models that have been discontinued since 2015.
- 5 years agolast modified: 5 years ago
Just regarding the built-in griddle, as mentioned, they’re a pain to clean, and will always look somewhat grungy. On a 36” range, it will also be tiny. Go check the measurements of those griddles and you will see.
People recommend the adjunct griddle that you can remove when not using and I agree (don’t get a cast iron one though, they weigh a ton). What I have though is a separate electric griddle. That way, I am not taking up valuable burners on my range while still cooking pancakes and eggs. I also take it outside in the summer and plug it in at the patio. Mine is a cheap Black & Decker I got like 10 years ago. It isn’t big enough. If I were doing it again, I’d spend the money on a much bigger one, it would be worth it.
Just so you know, kitchen appliances are made pretty poorly these days. Hang out on this forum and you’ll see complaints at all price points. It’s really a shame, but it’s the way it is. If I were you I think I’d buy whatever is the low cost range and be done. That way when it breaks you won’t feel as bad. Saving money there will also help pay for the expensive hood exhaust.
Barefoot Nurse thanked Shannon_WI - 5 years ago
I would recommend the Monogram. Their cooking appliances are great, they are very well made--heavy duty metal knobs and grates, and their slide-in racks are fantastic! I don't have the range but the 6-burner range top (36") and 30" wall oven. I'm sure the 36" range is the same quality.
As far as BTUs go, all the burners go from a super low simmer to 15,000 BTUs. Very easy to adjust. There is no blue-tooth, no wi-fi, no remote control. (like who needs that in a cooking appliance????)
Here's a link to the AJ Madison site:
Barefoot Nurse thanked Diana Bier Interiors, LLC - 5 years ago
I had 5 kids in 4.5 years and we’ve always homeschooled! Our youngest ones are 18 and moving out soon, so we are about to be empty nesters... anyways, we bought a 60” Viking professional dual fuel range a few years ago and I have loved cooking on it! Mine has the griddle and the grill plus 6 burners and the two 30 electric ovens with fabulous infrared broilers. (I love those things!) For the record, I’d never get an indoor grill again. (I didn’t actually choose it, we got a phenomenal deal on a floor model so it came as is) I use the grill occasionally, it’s great for veggies or hot dogs, but it doesn’t get hot enough for most things and it’s not large enough for our size family... and it’s a total pain to clean! I LOATHE cleaning it! Now, the griddle is a dream! Mine is so easy to clean! (Of course, I don’t mind that well seasoned look either) If I had to do it over again I’d get the griddle in double the size I love it so much! My Viking is graphite grey instead of all stainless steel. I love that too because it’s sooooo much easier to keep lookin clean. I have the matching hood... it’s freaking loud and that doesn’t bother me at all because it MOVES the grease and air. I do a lot of high heat cooking, so that was a requirement of mine. When I do low heat simmering for a long time (like a big pot of chili) I did find that it always comes out better cooked low in the oven as opposed to on the stovetop. In the oven I don’t get hot spots and I can get away with not stirring it for four hours if needed. Anyways, I’ve been really pleased with my beast of a Viking... it’s a basic machine without fancy electronics. My ovens do take awhile to preheat, but I’d rather have that then super fast preheat times and lots of electronics. (And I’m not a fan of gas ovens, I prefer electric, but I’m pretty sure Viking makes all gas ranges) Anyways, people on this forum hate Viking... but I’ve been happy with mine! We are about to put our house on the market (time to downsize!) and we will be building from scratch for our next home... I’m pretty sure I’ve decided to go with a French door Viking electric wall oven (only need a single oven now) and I’m probably going to get a BlueStar range-top because even though the Viking has been great, it’s still not hot enough to truly do wok cooking... and where we are moving to I’ve been told by our future next door neighbor that most of the year it’s too windy to invest much into an outdoor kitchen, so I want to wok cook indoors, so BlueStar seems to be my only ticket. (Hubby has decided that he doesn’t want us to invest in induction, and I’m ok with that now after doing a ton of research) I’d do a BlueStar range... but I don’t want a gas oven... and I absolutely adore my Viking broiler..l
Barefoot Nurse thanked skmom - Barefoot Nurse thanked skmom
- 5 years ago
Just to add a counterpoint, we have a 48" Blue Star RNB with built in griddle and I actually really like the griddle. It's perfect for quesadillas, breakfast foods and to use as a French top if we are just having a bunch of leftovers I want to keep warm in metal dividers. I wish I had 5 kids to feed, we only have 2 and that's the only thing that gives me pause, like if I am only making French toast for 2 people, there's no point in heating it up. When it's not in use, I leave the stainless steel cover on it, and it becomes a good resting spot when cooking on the burners. I love the blue star and researched for 2 years before making the purchase. In hindsight, we didn't really need a 48" although my husband loves the little oven (he just thinks it's brilliant that half-sheet pans fit right in the sliders, whereas I don't see the point of the little oven when there is an amazing convection oven right beside it). But it's sure a workhorse and a beauty. I agree it's easy to clean because any crumbs or spills end up in the drip trays underneath. And one more thing: the simmer burner works great but the regular burners are not amazing for simmering, unless you raise them (turn the inner burner 45 degrees) or stack them, which works great. I tend to start on a main burner and then when something needs to be simmered, I move it onto the simmer burner or into the oven. Good luck with your decision!
- 5 years ago
Queen e, I’m so glad you chimed in because I was really wondering if others liked their BlueStar griddle or not... good to hear your experience. I’ve heard so many people complain about their griddles on Wolf ranges and some others... but I love mine on the Viking. I’ve been wondering if I wanted to invest in a BlueStar 24” griddle range top and the 24” range top burners... that seems like a great combo for me and how I like to cook... but that 24” griddle isn’t cheap. LOL! Good to hear your experience, I might try to push for that when the time comes. :)
- 5 years ago
I LOVE my Hallman griddle! I would not want a range without one. I had a carbon steel one before this, and loved it also.
Barefoot Nurse thanked lucky998877 - 5 years ago
Griddled always look used, if you use them. You have to move up to a 48“ with a 24” one to get a usable one on a range though. And be prepared to put a curtting board or some type of cover on it if you don’t want to see those signs of use.
Barefoot Nurse thanked User - 5 years agolast modified: 5 years ago
OP, search on here for discussions on ranges and griddles. Lot's of good info. Briefly:
- There's a huge difference between a good thermostatic griddle that maintains even heat across its surface and over time (maintained recovery) and any kind of burner top.
- We had a 36" Wolf for about 20 years w/ a 4 semi-open burners and a 12" griddle. The width and sides was not an issue. Others complaining about that must have had much deeper sides.
- The Wolf griddle is the best consumer griddle available.
- Other than the griddle and complaints about poor customer service I think a BS RNB is the best range option currently available for residential use. We have a 48" (4 burners + 24" griddle) in our new kitchen and so far consider it a good choice.
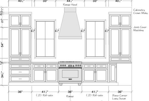
BTW, the hood in your drawing looks too narrow. It s/b at least 42" wide for a 36" range. More: https://www.gardenweb.com/discussions/5161173/hood-faq
Barefoot Nurse
Original Author5 years agoThank you, everyone! So much good info so far.
Opaone, the 36" Wolf with griddle is actually what I've been leaning towards. I know from everyone's comments that I'd probably like a 48" range with 24" griddle better, but we are building downtown in a college town, not in a country home, so 36" will be a pleasant surprise in my neighborhood... whereas a 48" would just look intimidating or out of place.
Yes, a larger hood (42") is in the plans, but my kitchen designer didn't put that in yet.
Also, resale value is always on my mind. I feel like Wolf with its red knobs is so iconic, so recognizable, even to a buyer who knows nothing about appliances. A Wolf range elevates the kitchen, it elevates the whole house. Before I went down this [endless] rabbit trail of research about ranges, I had NO IDEA what Bluestar or Thermador or Cafe or Bertazzoni were. GE and Samsung and KitchenAid could be low end or high end, because I see them in basic kitchens too, so as a buyer I would have no clue if they're any good.
But Wolf? Everyone knows Wolf.
Agree or disagree? How much is this worth?- 5 years ago
I don't like gas and would never include a griddle. Note that you can do a cooktop with a wall oven underneath.
- 5 years ago
I have a 36” wolf dual fuel with griddle. I love it. the burners simmer like a dream, it’s easy to clean and exceeded all expectation. I had my heart set on a 48” but with a family of three, it just didn’t make sense. For what it’s worth, I cook from scratch every breakfast and dinner And sometimes lunch. It took me a while to warm to the griddle as I never had one before but now I love it. Just know it will never look factory clean after the first couple uses and that is fine with me. The cover is a breeze to keep clean.
Barefoot Nurse thanked pennfire - 5 years ago
Personally I would do a BS RNB w/ 4 burners and 12" griddle. We use our griddle fairly constantly; as a griddle, flat-top and burner alternative (make sauces and keep them warm, etc.) and even so determined that the burners on the BS were enough better than the Wolf to make the lessor BS griddle worth it.
- 5 years agolast modified: 5 years ago
I hear you about the brand name recognition of Wolf. But that's gradually changing ... at least in some markets. People start recognizing brands like Bluestar and anybody who has cooked on both brands will tell you that the Bluestar burner is a superior design. It looks a lot like a commercial range. It's a time tested design, and for a good reason.
Come to think of it, I recently had a chance to cook on a commercial Viking range from the 1990s (before Viking sold the naming rights for their residential line, which coincides with that brand going downhill). It was so similar to my Bluestar, I had to check the name plate to make sure.
If you are decided on getting a gas range, and Bluestar fits your budget (including the cost for the necessary venting solution), you really can't go wrong with it.
Also, if you decide to get Wolf after all, do not get a dual fuel model. Wolf has a long standing problem with the enamel coating of their electric ovens. Eating glass shards isn't my idea of fun
- 5 years ago
I have a 36” Wolf DF and would not recommend because of the chipping of the blue enamel in the oven. This is a problem with any Wolf with a blue interior and has been for at least 10 years. There is a lot written on this forum. The all gas does not have the blue interior. We bought Wolf because they had a reputation at the time of standing behind their products. They really aren’t any different than anyone else these days and if you have to have repairs, you have to use their people which is $$$$.
The Wolf burners work well for me because I use big frying pans so the spread on the flame on high is a good thing. The spread is from the burner cap. Wolf has the dual stacked burners (Monogram and others do too) so this makes the flare less than something like 5-STAR which is trying to get a huge range of BTUs from one burner.BS vs Wolf burners might depend on what type of cooking you do and what type of cookware you have. This is an 11“ have copper skillet on Wolf on high. I rarely ever use heat this high though.

Heavy copper or aluminum really distribute the heat well. If you use cast iron or steel pans, which do not distribute heat well, the BS star burner distributes the heat with the star burner.
The top two, Thermador and Wolf are capped
The bottom two are uncapped .
the BS on the right keeps the flame more in one place. As you turn it up any flare stays under the pan. This is good for stir frying. I would consider BS next time.
All regular prostyle burners are big and that is why many have a small pan/simmer burner. My sauce pans are more squat than tall. I use at least a 7” width on the big burners and for anything smaller, I use the small burner.
To compare simmers, most manufacturers have a low and high BTU burner rating. Wolf and Thermador are both very low. BS has never released their BTU rating on the lower end. Thermador clicks on and off to get the low simmer it has. Wolf stays on.
Since you are looking at ranges, another thing to look at is the broiler size.The BS oven also holds a full commercial baking sheet or two half sheets, Wolf does not.
- 5 years agolast modified: 5 years ago
That's a great analysis, wekick, but what is Blue Star's marketing like ;-)
No one looks inside the oven, after all.
Barefoot Nurse, I totally understand the red knob issue. If you need this range to telegraph quality to unsophisticated buyers, Wolf is the way to go. And by unsophisticated buyers, I mean people who use status symbols as proxies for quality. There are more of them out there then there are their opposite.
Barefoot Nurse thanked Zalco/bring back Sophie! Barefoot Nurse
Original Author5 years agoWekick, so helpful and detailed! Thank you!
I’ve got an appointment next week at my local Ferguson showroom to look at Bluestar and Wolf ranges in a lot more detail.
I am only looking at gas, not dual fuel, so the blue enamel isn’t an issue there... except in how Wolf seems to have handled the situation.
Thermador has a lot of mixed reviews on this forum, but the on-off clicking for simmer is a no-go for me.
- 5 years ago
As for a griddle, the big advantage to a built in is that you can turn it on to a set temperature and that is what you will get. With an overlay, you will need to adjust it like you would a pan. I have an overlay and don’t find it hard to do.
Wolf and BS both have steel plates. Wolf is twice the thickness of BlueStar. This allows more even heating but it takes longer to turn up or down.
Wolf uses an infrared element to improve the eveness if heating, but they still warn in the manual that it is uneven. Some people like this though because you have a cooler and warmer zone.

This is the element for BS.

Thermador used an electric element and an aluminum plate so would most likely heat the most evenly of these three because of the aluminum. It is also removable.

As others mentioned, you can buy a plug in griddle and often they are aluminum for this reason.
Advantages to the overlay include flexibility of your burners. if you need all 6 you have them. You also flexibility in where you put the griddle. You might put it across 2 burners in the back.You also have a choice day to day of metals which have different thermodynamic properties. I have an aluminum one that is made by Royal Industries. The 15”x23”, 2 burner size has almost 50% more cooking area than the built no. It is aluminum and comes uncoated which does season eventually or nonstick. I use it for sandwiches mainly but have used it for many other things too. I have used it in the oven too.
http://royalindustriesinc.com/index.php?main_page=index&cPath=4_22_48
There are also also some that are steel. They come in 2 or 4 burner but the 4 burner is very heavy.https://www.dvorsons.com/ChefKing/Griddles.htm
You also have more heat heat available on the add on. The BS and Wolf have 15K BTUs for 2 burners, while the add on uses two 15K BTU burners at a minimun. You can also turn one burner way down with an add on.
There isn’t really a universal best choice on all of this, it depends on your needs.Barefoot Nurse thanked wekick - 5 years ago
wekick..thanks for the links. Is this the griddle you have? i am a just an average cook so would I be better off with the same griddle as you have but in the non-stick version for my 6 burner Wolf rangetop? Thanks.
http://royalindustriesinc.com/index.php?main_page=product_info&cPath=4_22_48&products_id=82Barefoot Nurse thanked ILoveRed - 5 years ago
I am generally not a big fan of non-stick coatings. Properly seasoned bare metal cookware will get perfectly non-stick as well. But admittedly, that takes both initial and ongoing effort. Not a lot effort. But a few seconds of work each time you clean it (i.e. wipe with a thin coating of oil and never store wet).
Also, with non-stick coatings you can get away with poor technique, whereas with metal surfaces you need to pay at least some attention to temperature management. You should always add your ingredients to a hot griddle. If it gets too cold, it won't be non-stick. Takes a while to learn, but will become second nature soon enough.
On the upside, metal surfaces can be used with metal tools and won't get damaged by surface scratches. And they also are more versatile. You can cook high-heat foods (e.g. steak) on a metal surface. But Teflon based coatings need to be carefully handled and should never get too hot. Teflon starts degrading at surprisingly low temperatures. It's perfectly okay for making pancakes, but don't use it to fry meat, hashbrowns, vegetables, ... The damage won't be immediately obvious, but it starts as soon as you overheat the griddle.
As for the choice of metal, cast iron and carbon steel is a little easier to season. Aluminum does accept seasoning, but it takes a little longer to get there. It handles a little differently from iron when cooking and that might sway your decision. I also hear good things about chrome plating, but I haven't used that myself.
The nice thing with overlay griddles is that you can buy more than one. If you find you aren't happy with a particular material, you can always revisit that decision without horribly breaking the bank. A built-in griddle doesn't usually give you that option.Barefoot Nurse thanked M Barefoot Nurse
Original Author5 years agoWow, I dare say you all are selling me on BlueStar... big time!
- 5 years ago
Yes that is the one. I’m just a home cook and I can see having both! They are really pretty inexpensive but vary quite a bit in price store to store. If you have a restaurant supply, they might have them. I have the bare one but was thinking about getting the nonstick too. It takes awhile to get the bare aluminum seasoned and nonstick so the nonstick coating is easier for me for eggs or other starchy or sugary things Some nonstick coatings are more durable than others. I have no idea about this but again the price. I did have a 10” Tramontina Pro skillet that lasted 15 years. This with 4 teenaged boys using it. It dawned on me as I was changing out my 12” every year or two how old the 10” was. I bought a 12” but they probably aren’t the same anymore. . I use wooden, silicon and plastic utensils on anything nonstick or tin lined copper.
This is a good price but Im sure they have shipping.
https://www.jesrestaurantequipment.com/search.asp?keyword=Royal+Industries+15x23+griddle
i do use cast iron or carbon steel for steaks Or other high heat cooking. - 5 years agolast modified: 5 years ago
People on this forum love Bluestar. But there have also been a number of troubling posts about poor quality control from Bluestar, and poor customer service. I'll link threads, but there have been others. Usually the issue is with the oven, but not always. If it were me, I'd get a Bluestar 36" rangetop (not range) and separate wall ovens, perhaps by Bosch. I don't think I'd ever need a 36"-wide oven, but two 30" ovens would be useful. But also, by separating rangetop from the oven, if one breaks, you still have the other.
Thread "Bluestar Disappointment"
https://www.gardenweb.com/discussions/5692107/bluestar-range-gas-leak-issue#n=16
https://www.gardenweb.com/discussions/5948909/help-cleaning-griddle-on-bluestar-range#n=2
- last year
Curious what you ended going with and how you like it? I have similar requirements and it’s a tough choice!
- last year
You might find this helpful: https://bamasotan.us/2020/12/the-kitchen/
And particularly the link to a discussion on griddles.
Barefoot Nurse
Original Authorlast yearI ended up going with the 36” Wolf with the built-in griddle! We’ve been so happy with it.
I love using the griddle for burgers, quesadillas, pancakes, etc. I never need more than 4 burners, so no issues there. I also like keeping the cover on the griddle and keeping a spoon rest on it while I’m cooking. It still looks gorgeous after 2.5 years of hard use.
The oven is pretty hot, and things on the left side of the oven get pretty toasty while the rest of the dish/pan cooks evenly. That’s my only complaint. I could get that adjusted, but I haven’t needed a repairman to come for anything else, so I haven’t addressed it yet.











M