Critique my kitchen design
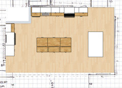
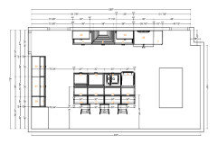
See the photo below for two proposed designs. I'd love your choice (A or B) or some proposed hybrid. What do you love/hate!?
Some details:
- The room in the back right is a pantry/laundry room combo; we're tearing down a wall that currently exists between the pantry and the laundry room. Our intent is to put most fresh items in the cabinets near the refrigerator and use the combo room for big box items and infrequently-used appliances.
- The main choice is between the arch (which will have a door in it) and the hidden pantry door (faux cabinet)
- The colors are irrelevant in the photos. Upper cabinets are all off-white. Under the island is either off-white, gray, or a dark wood tone. (What would you pick?) Floors are a medium wood-like LVP with some nice color variety.
- In A, the microwave is in the island. In B, we have an appliance garage to the left of the refrigerator; the cabinets can be hidden away.
- In A, the island overhang has legs; alternatively, we may just do corbels. In B, the island overhang is cantilevered. We are tall and worry a bit about bumping our legs, but care about the look.
Thanks for any feedback you may have!

Comments (59)
- 3 years ago
Lining work centers up like that is not functional. A person should be able to comfortably work at the cooktop at the same time another person is working at the sink.
Also, I personally hate having an aisle between range and sink and can’t wait to get continuous counter between them. However, it depends how you use your kitchen. It used to not matter to me, but since the start of the pandemic I’ve been cooking 2-3 whole food meals and I’m tired of all the twisting and mess.
Related Professionals
Mount Vernon Interior Designers & Decorators · Euless Architects & Building Designers · North Myrtle Beach Furniture & Accessories · Tampa Furniture & Accessories · Annandale Furniture & Accessories · Jefferson Valley-Yorktown General Contractors · Kentwood General Contractors · Livermore General Contractors · Overlea General Contractors · Springfield General Contractors · Palos Verdes Estates Design-Build Firms · Owosso General Contractors · Dublin Flooring Contractors · Owatonna Flooring Contractors · Holden Bathroom RemodelersHU-665919412
Original Author3 years agoffpalms: Thanks for your vote. A few gripes about B are:
(1) the cabinet should probably stay shut or close automatically to look good; a normal door or a pocket door looks fine open and is thus more pragmatic for moving laundry around
(2) less countertop space might make the kitchen feel smaller
(3) the appliance garage feels small, awkward, or unbalanced to me.HU-665919412
Original Author3 years agokandrewspa: There's about 4' from the island to the cabinets in each direction. The door is arched just for a designer look; there are no other arched openings in the house. Is that weird?
- 3 years ago
I agree on the many downsides having the sink and range back-to-back -- those are the 2 busiest spots in my kitchen! I wouldn't sacrifice daily ease of use to symmetry/alignment
HU-665919412
Original Author3 years agosheloveslayouts: Thanks for your input on the alignment. I hadn't considered putting the sink on the same countertop as the stove. I feel like that'd be too crowded, but maybe not. One nice thing about having the range and the sink over different countertops is the ability to have more purpose-built cabinets (e.g., dishwasher next to the sink, pots and pans near the range, trash can near the sink, etc.). I hear you on the twisting and turning, though.
We recently purchased a new breakfast table so we are set on using that. Counter seating may not be necessary, though, but there's room. Unfortunately, you'd be sitting facing away from the TV.HU-665919412
Original Author3 years agoFor what it's worth, there's often only one person in the kitchen, but that well could change.
HU-665919412
Original Author3 years agoWe could scrap the arch pretty easily in A. I'm mostly focused on ordering the cabinets right now.
- 3 years agolast modified: 3 years ago
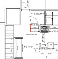
Im kind of hung up on the laundry/pantry space. Theres an awkwardness about it and it seems like a less than optimal use of space. Do you have an as-built drawing so we can see the space as it is now?
- 3 years agolast modified: 3 years ago
Do you have a fully-measured layout of the space (and clearer)? It's much easier to comment and work on layouts if we have a fully-measured layout.
I will say that the aisle should be 48" between the range's oven handle and the counter edge of the island. If you only have 48" cabinet-to-cabinet, then that aisle is probably more like 42" or less.
Here's what we ask for...from the Featured Answer in the "New to Kitchens? Read Me First!" thread:
By "fully-measured", we mean a layout with the widths of each wall/window/door/doorway and the distances between each wall/window/door/doorway labeled. See a sample below. If something cannot be moved or changed, label it precisely on your layout (see post in sample) and tell us why it cannot be moved/changed -- we may have some ideas for you.
Regardless of how you draw it up (by hand, computer, etc.), please be sure all measurements are labeled. (Note: Computer generated layouts often lack key measurements and, sometimes, measure to/from things like the middle of a wall or the middle of a window. Neither are useful. Measure each item and the distances between each item.)

- 3 years agolast modified: 3 years ago
Regarding Pantry + Laundry Room. Don't store food in that pantry since the washer & dryer will add both moisture and heat to the room. (There also shouldn't be a window since windows add light.)
Food storage should be cool, dry, and dark -- the opposite of what you're going to get when you combine a Laundry Room & food storage. Have you taken the wall down yet? If not, I would re-think it. You could put a door b/w the two if you're trying to add access to the Pantry from elsewhere.
Is there access to the Laundry Room from elsewhere? I wouldn't want to have to weave my way through a Kitchen & Nook space with laundry baskets.
Ideally, the Laundry Room should be close to the bedrooms, not the Kitchen. The vast majority of dirty laundry comes from the bedrooms -- and clean laundry goes back to the same rooms.
Edited to add (ETA): Re-looking at the sketch, it looks like there is no other access to the Laundry Room. Is there a Garage entrance there?
- 3 years agolast modified: 3 years ago
If no seating on the island across from the Nook, will there be at least 48" b/w the island counters and the table?
If there is seating on both sides (island & table), then you need more like 60" -- especially if you have the Laundry Room there.
There should be a minimum of 36" b/w the table and walls on the three sides. (48" or more if there's a door on one of those walls, but it doesn't look like there is.)
- 3 years agolast modified: 3 years ago
I have some ideas, but I need a fully-measured layout.
On, and the layout should be of the spaces as-is, not some possible future time.
Do you use the entirety of the Closet off the Bedroom? I wonder if you could move the Laundry Room to that space opening into the Hall. It would be near the Bedroom and easily accessible from the stairs, which I assume go up to additional bedrooms.Or, move the Laundry Room upstairs with the rest of the Bedrooms. However, I think I would prefer it be next to the what appears to be the Master Bedroom on the first floor.
HU-665919412
Original Author3 years agoThe current position of the laundry room has proven to be a big pain. It's currently between the bathroom and the pantry. It's annoying to have to walk past the laundry to get to the pantry while cooking. And this is all on the opposite side of the house from the master bedroom, unfortunately. We evaluated moving it upstairs, but we'd have to *really* shake things up or lose a bedroom. The coat closet near our bedroom is a cool idea, but it's currently really shallow.
I fought the idea of combining the pantry with the laundry for a good while, but I haven't found a much better alternative. You either have to go through an extra room to get to the laundry or you have still have two doors there, which keeps our countertop space limited. I accepted the combo idea once we put in enough cabinets to hold 90% of our pantry items. We'll only store sealed items and things like crockpots back in the combo room. Bread, apples, etc. will go in the cabinets by the fridge.
Let me review the comments about measurements and I'll respond in another post.HU-665919412
Original Author3 years agoBuehl: Thank you for your thoughtful comments. A few quick responses:
- I think we can guarantee a full 48" clear walkway on both sides; I will verify this and cut down on the depth as needed
- There is no counter seating on the nook side; only on the living room side—not enough room
- Related: as planned, we have roughly 111" between the side of the island and the breakfast nook window. The table is 42" wide. That leaves 34.5" on each side of the table. Do you think that's a bit tight? (Sounds so from what you said.) If so, we could shrink the width of the island to 8.5' or 8' instead of 9'.
I don't have a fully-measured layout but will try and put something together if there's time—we have a tight timeline… should have come here sooner!- 3 years ago
I don’t think you will like the sink and range across the aisle from each other. All I can think of is spinning around with a lot of boiling water in my hands. Hazardous.
HU-665919412
Original Author3 years agoShawna: Sink-across-the-aisle is all I've ever known! Would you scoot the range to the left and put the ink in there on the right? Then nothing on the island?
- 3 years agolast modified: 3 years ago
This is a powder room + laundry room solution to consider. On paper it doesn't look like much, but one of my best friends had this type of laundry-through-the-powder-room situation off her garage entrance and it worked very nicely. It had upper cabinets all the way across above the utility sink, folding counter, and machines.
This would give you a full uninterrupted wall in your kitchen...
HU-665919412 thanked sheloveslayouts - 3 years ago
I like sheloveslayouts suggestion to free up your kitchen wall, though I can imagine getting trapped in the laundry room if someone decided to use the powder room. I would be more comfortable if the powder room was behind the laundry. The powder room would feel more private and gain natural light.
- 3 years agolast modified: 3 years ago
Your laundry must be a lot tidier than mine, @ffpalms. Haha.
Really, I spent a ton of time in that house and never experienced that, but I imagine if she was switching laundry when someone needed the powder she would just say, oh - excuse me and return later. There was a pocket door to the laundry, so during parties, she just closed the door to conceal whatever was going on in the laundry room.
HU-665919412 thanked sheloveslayouts HU-665919412
Original Author3 years agosheloveslayouts: I like your idea. We spent a while mulling this concept over a few weeks ago! We also considered a kitchen-side door/cabinet for access when the power room was in use. We liked the idea a lot because it also kind of serves as a mud room (for which we have no room) alternative.
I think we ditched the idea because of the access issues ffpalms described (and if you have a second door, then the pocket door doesn't add too much), but knowing that you and your friend really liked this suggests we might should revisit it.
One other complicating factor is that there's all kinds of plumbing up that wall where you propose the pocket door. I imagine we could reroute it, but it'd add expense. Maybe worth it?
ffpalms: For what it's worth, there's no window back there, so no natural light..- 3 years agolast modified: 3 years ago
You're lucky to have sheloveslayouts and Buehl working on your plan. My only comment: for the amount you are spending, I think you are getting suboptimal work-space counter area. I would forsee two people working on a meal to bump into each other. a lot. No big deal in a compromised kitchen like mine, but for an all new kitchen? Do not recommend. I'd want minimum 3 36+ areas that are not far away. But not a disaster, though. Also, go take a look online at kitchens that do not have the symmetry you are set on. So many awesome kitchens do not. And if that symmetry wish is pushing you out of other solutions, i.e. more counter space, then I'd reconsider. Good luck! My thing is, try not to be rigid. Writers have a saying, "kill your darlings." Sometimes you have to scrap the thing you think you want, because it creates a log jam.
HU-665919412
Original Author3 years agoBC Jones: Excellent advice. I'm trying to hold my opinions loosely and would be open to asymmetric options. 90% of the time, there will probably be only one of us cooking at a time, so our in-person designers said it's probably worth it to get "the look."
The countertops are regrettably small, but I hoped the rectangular island would serve us well in that regard. If we want all that pantry cabinetry, that really eats into other potential countertop space…HU-665919412
Original Author3 years agolast modified: 3 years agosheloveslayouts, Buehl, and others: Okay, I made a fully-measured as-built layout! Thanks for the advice.

- 3 years ago
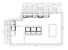
I worked through some alternate ideas for your kitchen. My drawing didn't overlay very well with yours, so I may have goofed on dimensions here. This are just some ideas to consider.
I'm not sure how your designer planned for clearances between the fridge and the back wall cabinets and the corner of the island. I'd check and double check the aisle widths in that area, because it looks like a potential pinch point bottle neck situation on the two plans you posted above.
I'd leave the pantry entrance in place and just walk through the pantry to the laundry room adding a door between the two; walls = storage. I wouldn't be quick to totally remove the wall between.
In the drawing below, the white rectangle represents the breakfast table. I put the minimum aisle width of 32" on the window side and 48" on the island side.
The range is more or less centered between the peak of the vault and the exterior wall. I placed it there for function. When working in the kitchen one (almost) always works "ice-water-stone-fire" so, fridge, sink, worktop, range. Also, it's nice to have the cooktop with the cooked food near the table. The compromise here is that the range is a hike from the fridge, It's recommended the maximum distance between the the two is 5-9 feet and this is maybe closer to 15. But if you work from fridge to sink to range, it's a reasonable compromise.
Unless I'm misunderstanding the drawings, I wouldn't place the fridge all the way to the right in the alcove. I think there might be too much crowding there. In the drawing I tried to place the midline of the fridge in line with the edge of the island.
I tried to center the island on the breakfast nook windows and it seemed to work with generous aisles on the sides. 15" overhang on the family room side to seat three people with ~30" of counter each. A prep sink in the island is optional because there's already a sink (water-stone-fire) on the back wall.
Oh! There is ~60" between the fridge wall and the island. This is intentional because I imagine it to be a congested area. I'd put the microwave over on that wall as well. Keep in mind you need counter top landing space within 48" of the fridge and the microwave, so you need counter in the niche.
I appreciate that people use their kitchens differently than I do. Placing the fireplace, sink, and range on axis might be top priority for you, I just wanted to offer a rough, alternative concept.


HU-665919412 thanked sheloveslayouts HU-665919412
Original Author3 years agolast modified: 3 years agosheloveslayouts: Wow, you've outdone yourself! Thank you for taking so much time to help me out. It's an entirely fresh concept I hadn't considered.
I love the way you described "ice-water-stone-fire" (then table). It makes a lot of sense and you've lined things up like an assembly line. There's also lots of great usable countertop space, though our large coffee machine and toaster oven will probably take up some of it.
I am interested to hear your thoughts/experiences having the sink and stove next to each other rather than opposite to each other. Others have commented the same on this thread, but for the average single kitchen user, I'd think a rotation and a couple of steps beats walking more steps down the island. It seems the majority of kitchen designs I've found have it across from the stove unless there is a nice window to look out of. I think it'd be nice to have at least one element on the island for watching TV or socializing while cooking or doing dishes. I think it might also afford us more purpose-built lower cabinet storage: cutting board, dishwasher, and trash cabinets near the sink; pots, pans, trays, and spices near the stove—there may or may not be enough room if they're side-by-side? Let me know what you think!
I'm a little confused about your refrigerator comment. In design A, it is in the center of the alcove. This is our front-runner, but I am a little concerned that we'll have to go around the island every time we need something from the fridge. In design B, the fridge is on the right-hand side of the alcove, which more closely mirrors your idea of putting the fridge center line along the edge of the island. Another reason for scooting the fridge over would be to create countertop space.
The island looks to be about 3–4' deep, right? We liked the idea of being able to store things on both sides with two rows of cabinets, but it would open things up to only have one row. We could even potentially have bar stools on both sides (e.g., to watch TV over the fireplace from the island). Without a sink, I suppose that counter space doesn't need to be easily-accessible (e.g., 48"). Is it 60" on both the fridge side and the range side?
I agree, I am worried about having the fridge so far from the range.
As for tearing down the pantry wall, I hear you. I'm still not entirely comfortable with our decision, but we discussed it for hours on end. We decided having to go through a second door (especially for laundry) would be too much of a pain. If it's a pocket door, then we can leave it open, but that kind of defeats the point. Maybe we could revisit walling off the pantry (or call it "kitchen storage"), since our plan is to use it rarely now. What's your opinion on having the majority of pantry storage out in the kitchen cabinets (as we have on the big cabinet wall)? We figured this would be even more convenient and do almost everything a walk-in pantry can do. We could be wrong. Walk-in pantry is definitely a good selling point for most and I really liked the idea of hiding it behind a cabinet door, but we haven't gotten all of the pieces to fit together that way.
Lining things up would be great, but is not critical. I also like the idea of a nice range hood on that range wall.
Finally, excellent observation regarding the pinch point. You are spot on. When we reviewed the design in our space, we realized that we were missing a foot somewhere. I'll include an updated revision, which shrinks the island from 9' to 8.5', moves the island (but not the sink) off-center, and adds a foot to the coffee bar.
Thank you again for your time and effort to help a stranger.
- 3 years agolast modified: 3 years ago
If I miss responding to any of your questions or if I just don't make sense, don't hesitate to ask again.
Range and sink across an aisle.... I haven't had continuous counter since 2005 - back when I didn't cook and hadn't taken up kitchen layouts as a weird hobby. Then I had five feet of aisle between sink and range in a corridor kitchen, which was terrible. Then about 7 years ago against my better judgement I thought a sink 42" across an aisle from a range would be better. Nope. Even with a drafting error that gave me 38" aisles it's no good. When you have continuous counter between sink and range you just shuffle a couple steps between the two workcenters or you just reach to the left or right. Easy peasy. But. Before we had an extreme lifestyle change during the pandemic I didn't cook enough to care. Now that I cook 2-3 meals every day I'm looking forward to rearranging things.
The fridge area... I think I mis-remembered your fridge position in the original drawings. it was basically just more concern about that pinch point entering the kitchen fromthe dining room and garage hall.

The island... The island I drew is 42" deep. You have room for a deeper island. Something to be mindful of when planning the island is the dimensional limits of the countertop product you want. I don't know anything about slabs/stone, but there are a lot of posts about sizing a seam placement so it's something to keep in mind. Also, I'd probably put a prep sink in the island in the layout I posted above; some people like the uninterrupted surface, and some people want the sink - personal preference.Pantry... I might just do a cased opening between the laundry and the pantry, but it really isn't a big deal either way. The bigger issue with that space is that if you choose to keep the existing door to the laundry room and block the existing door to the pantry, you're losing 36-42" of linear worktop in the kitchen proper. That compromise isn't worth it to me, but it might be for you. Also, I really wouldn't do anything clever or cute with the door from the breakfast nook into that space. If anything, I might recess the door back a couple feet to mirror the architecture of the hall to the garage on the other side of the kitchen
What are the dimensions of the coffee machine and the toaster oven? Is the toaster oven like a brevill that can go in a tall cabinet?
- 3 years ago
I don't seem to be able to pull up good dimensions on the space... so sorry if this idea doesn't work at all based on the dimensions you have to work with, but I'm wondering if you could possibly rotate the island so the sink and fridge are back-to-back (not close/tight, of course). Just a thought!
- 3 years ago
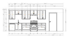
I felt like trying out a layout that placed the fridge near the breakfast nook and centered the range hood on the vault so the area by the stairs can be dedicated to snacks and drinks; the coffee machine, toaster oven, maybe is undercounter fridge if that's your fam's jam.
The island is approximately 58" deep and x 112" wide. Note that the dishwasher is on the fridge side of the sink.
The compromise is that the traffic pattern between the dining room/garage/powder room and the fridge/breakfast table/laundry room bisects the primary prep space, the path between sink and range. I'm using the ikea planner which has limited options, so your 36" range is represented by 36" cooktop.


- 3 years ago
Why did you decide to take the sink to the island zone? And will you use the island as a table? Or will there be cabinets for storage? Do you plan to use the dishwasher? Here it could just be placed in the island zone.
- 3 years agolast modified: 3 years ago
Nice house!
Echoing others' comments:
1) I'd try to contain the kitchen within a space where no one who doesn't belong there gets in there. The corridor between the stairs and the kitchen is high traffic. People doing laundry will get in the way too.
2) The entrances to pantry and laundry are eating too much into the kitchen.
3) Scale. This is a big house. The kitchen looks small in comparison, with little counter space. Do you really need a breakfast nook? If not, I'd put in a larger island with seating.
4) +1 for not storing food in a humid and hot laundry room.
@sheloveslayouts's latest kitchen layout makes sense.
Some visuals:



- 3 years agolast modified: 3 years ago
@HU-665919412 I really like @User's idea of the pantry-only access inside the kitchen. If you haven't already, I think it would be worthwhile getting an estimate for moving the laundry room access through the powder room. It may not be worth the cost, but at least you can make an informed decision.
HU-665919412
Original Author3 years agolast modified: 3 years agoThanks for another round of input. We've circled back with our KD and incorporated a few things.
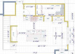
C.
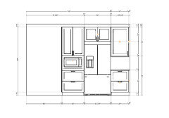
This is our current front-runner because we feel all of the counter space makes the room feel bigger. The kitchen does feel a bit small for the house, so this may help (as @User suggested). The arch is toned down a bit and we could even square it off to look like the other hallway, as suggested. It's mostly just a placeholder for now. A variant of this could be to swap the breakfast nook countertop and the doorway to gain more linear counter space, but I thought this might help with symmetry, place the doorway at an aisle, and add another logical element to the space. The biggest downside of this design for me is that no floor-to-ceiling pantry cabinets means a combined pantry/laundry is even more of a non-option (since fresh/opened items would go there).

D.Lots of pantry space here which makes the laundry/pantry combo room more feasible, but given all of the feedback, I'm thinking we need at a bare minimum a half-wall, likely with a pocket door. As @sheloveslayouts designed, it'd be nice to have the fridge's center line along the edge of the island, so we don't have to go around the corner to get to it.

E.This is basically @sheloveslayouts' most recent idea. (Thanks!) The sink is still lined up with the range hood and fireplace, but maybe we should center that between the range and the fridge. I don't love having the fridge on display on that wall, but this keeps the working triangle pretty tight and having the fridge and pantry cabinets near the breakfast table would be nice. It also opens up space in the left–right dimension since we can go counter-depth 24"/25" rather than the 30"–36" depth with the fridge there (even the handles on a counter-depth fridge would stick out) In this case, the arch is as far right as it can go and I think the staircase alcove is just countertop.

In all of these cases, the sink is off-center in the island because of another relatively-minor measurement issue somewhere on my graph paper. Essentially, the countertop needs to be 7' if we want to center the sink. This graphic might be a bit better than what I've been using:
I'm trying to figure out how you got so much space in the aisles, @sheloveslayouts. I haven't figured out the exact measurements, but it looks to be well over 48". I know this is what you're going for given the business of the space, but we are having trouble fitting everything in, I think. I'm also a bit hesitant to go much wider than 48" if we have the sink on the island.@sheloveslayouts I've been trying to imagine prepping along a line as you have in our original proposal. It sure seems nice; I just haven't found a visual iteration I love yet.
So many variables, this is a bit overwhelming! I know I'm not addressing everything well, so apologies for that. We're definitely reading all of the feedback and trying to incorporate it in a way that suits us.
HU-665919412
Original Author3 years ago@User Very well put. We're sold on cutting down to only one door, but the rest involves a lot of tradeoffs, which I'll comment on in a second. Regarding your comment about counter space and the breakfast nook: We just purchased a new breakfast table (poor order of operations, I know) and we actually have tall windows in that space (the rendering is wrong), so we don't want to change things up over there.
It'd be really nice to have mud room (especially by the laundry). I love the idea of having only pantry access from the kitchen. I do not like the idea of having to go through the laundry to get to the bathroom. That's our only guest bathroom on the main floor and would be suboptimal for guests to have to go through the laundry room.
It looks like there may be a hidden cabinet door in some of your graphics: is that intentional? I would consider maintaining three separate rooms with a hidden cabinet passage to the laundry room, but that doesn't solve the traffic problem and it seems kind of weird to go through a kitchen cabinet to get to the laundry room.
That leaves going through the bathroom to get to the laundry. Still an option, but then people can end up getting stuck. I will ask how much it would cost to move things around in that wall. I'd imagine a half wall there is still useful for pipes, but a pocket door or fully tearing it down would be a bit tough. We'll see.
We also gave very serious consideration to moving the laundry to our master closet. It's really big and is separated from our bedroom by the master bathroom, but it'd be an added expense and would prefer keeping the master closet really big.
Right now, I'm leaning toward a half wall between the pantry and the laundry, perhaps with a pocket door to allow for fully closing it off. It doesn't solve the traffic issue and just a half wall doesn't really solve the smell/heat issue, but I'm running out of ideas.HU-665919412
Original Author3 years ago@sheloveslayouts Oh, I noticed in your 3D rendering that there are no walls on either side of the stairwell alcove. I'm not sure if that was intentional or not, but I hadn't considered opening that up. That might be a nice look, at least on the garage side, especially if we have countertops there.
- 3 years ago
Yes - the thought of removing that wall was part of my concern about how traffic moves through that pinch point. Without a wall it'a bit more open.
I had been noodling on other ideas for that alcove. The stair looks like it could be a special architectural feature, but in my mind's eye it seems like placing a fridge there really doesn't make the most of it.
I considered drawing a bench there with a bistro table and then extending the island into the nook and putting stools around the window end. However, I know that the breakfast table is priority.
Something like this was the thought. Cute, but not necesarily functional in your space.
- 3 years ago
I just read your question up thread about aisles. I may have made an error. I tried my best guess on the distance from nook windows to stair wall using two of your drawings upthread; the 22' 11 1/2" inch distance from windows to first stair plus 27" depth in the area wrapped by the stair. That might be where my error lies?
- 3 years agolast modified: 3 years ago
I don't think it matters where the sink is as long as the clear floor space to open DW doesn't conflict with the clear floor space to open the range. Consider where you want to store your dishes, glasses, flatware and the most convenient place for to unload your dishwasher from.
The archways on one side of your kitchen make me twitch whenever I see them. Haha. HU-665919412
Original Author3 years ago@sheloveslayouts The alcove has C-shaped floor-to-ceiling sheetrock around it currently. What you showed would be cute, but we'd have to refinish the stairs and I'm afraid we're going to need the counter space or cabinets. Very clever idea and you may find a way to make it work!
As for the archways, you proposed a normal framed door or a normal rectangular (short) hallway, right? Any ideas here are great. I think we just liked the idea of breaking up the cabinets and sheetrock with something architectural. Perhaps some unique door with frosted glass and a recessed light up top.HU-665919412
Original Author3 years agolast modified: 3 years agoI just measured from the breakfast nook wall:
180" to the fireplace centerline (just by sight)
295" to the staircase alcove
- 3 years ago
In my opinion... I'd want the pantry door to disappear, to fade into the backdrop of the space. Let the range hood be the star of the show on that wall without any eye catching competition. Also, I like the idea of balancing the garage hall. But. If zhuzhing up the pantry door brings you joy you should absolutely do it.
- 3 years ago
There's another thing I forgot to mention... I think you're used to seeing the side of the fridge from the dining room hall? Something to consider are the sight lines through that hall to the kitchen and if you'd like the kitchen-back-wall-action visible or if you'd like to extend the hallway a bit so most of the view is a wall. (red line below)

- 3 years ago
HU-665919412, it's just the third picture from my first post that has a hidden door, to the pantry ;)
It's all about compromises, isn't it?
Dropping one door from the kitchen makes sense. A combined pantry and laundry could work but it would be worth looking into how to keep the air dry and cooler. Here's an idea:
If you're open to moving the kitchen wall forward a bit, and depending on the location of your existing toilet, this could be an option:
If you're open to having your laundry by the stairs:
I hear you about symmetry. Putting the fridge by the pantry door could help achieve that.HU-665919412 thanked User HU-665919412
Original Author3 years ago@User I loved your ideas (The new hallways was genius!) so I ran them by my contractor. Unfortunately, the kitchen wall is structural. Same with either side of the staircase alcove (@sheloveslayouts). Given the desire for one door and no other place to put the laundry, I think we're going to go with the first image you shared, where storage is cabinets. Basically our option D posted above. We've got a lot of pressure to order the cabinets tomorrow and can make certain tweaks for a while after that.
So many compromises. Maybe my next house will be built from scratch, but I can't imagine the amount of decisions to agonize over in that case. Some constraints are good—they inspire creativity.HU-665919412
Original Author3 years agolast modified: 3 years ago@sheloveslayouts I'm mostly indifferent on the wall you pointed out. To maximize counter space, we'll probably leave it open (since that counter space will be mirrored on the other side of the range. We may also fudge on the center line by 6" to gain 6" (x2) more counter space near the range. I don't think it will be noticeable.
I think you're right about letting the hood be the star of the show and letting the door fade into the background. Fortunately, we have time to visualize a few more options after we order cabinets.
Oh and +1 for the use of "zhuzhing." :-)- 3 years ago
HU-665919412, excellent, I hope you will love your new kitchen :) Let us know how it goes!
It is indeed agonizing to have to make a ton of decisions. As sheloveslayout said, it does give confidence to have considered all options.
Best of luck!HU-665919412 thanked User











sheloveslayouts