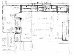
Something is off with my kitchen- opinions needed!
last year
Featured Answer
Sort by:Oldest
Comments (16)
- last year
- last yearlast modified: last year
Related Professionals
Suamico Design-Build Firms · East Ridge Home Builders · Frisco Home Builders · Westmont Home Builders · Bay Shore General Contractors · Geneva General Contractors · Pepper Pike General Contractors · Reisterstown General Contractors · Rossmoor General Contractors · Fernway Interior Designers & Decorators · Dayton Architects & Building Designers · Savannah Furniture & Accessories · North Bellmore Furniture & Accessories · Tabernacle General Contractors · Kentwood Cabinets & Cabinetry- last year
- last year
- last year
- last yearlast modified: last year
- last year
- last year
- last year
- last year
- last year
- last yearlast modified: last year
- last year
- last yearlast modified: last year
- last year
Related Stories

KITCHEN STORAGENew This Week: 3 Kitchens That Pull Off Neat Storage Tricks
These spaces feature components that conceal, hide and tuck away to save space and reduce visual clutter
Full Story
KITCHEN DESIGNNew This Week: 3 Modern Kitchens With Something Special
Looking to make your kitchen feel unique? Look to these spaces for inspiration for tile, style and more
Full Story
KITCHEN DESIGNHave Your Open Kitchen and Close It Off Too
Get the best of both worlds with a kitchen that can hide or be in plain sight, thanks to doors, curtains and savvy design
Full Story
REMODELING GUIDES5 Trade-Offs to Consider When Remodeling Your Kitchen
A kitchen designer asks big-picture questions to help you decide where to invest and where to compromise in your remodel
Full Story
MOST POPULARHow Much Room Do You Need for a Kitchen Island?
Installing an island can enhance your kitchen in many ways, and with good planning, even smaller kitchens can benefit
Full Story
INSIDE HOUZZBaby Boomers Address Aging Needs in Kitchen Remodels
Their choices include open-plan designs and robust lighting systems, the 2019 U.S. Houzz Kitchen Trends Study finds
Full Story
KITCHEN DESIGNKitchen of the Week: Taking Over a Hallway to Add Needed Space
A renovated kitchen’s functional new design is light, bright and full of industrial elements the homeowners love
Full Story
BEFORE AND AFTERSKitchen of the Week: Bungalow Kitchen’s Historic Charm Preserved
A new design adds function and modern conveniences and fits right in with the home’s period style
Full Story
WORKING WITH PROSEverything You Need to Know About Working With a Kitchen Designer
Enlisting an experienced pro can take your kitchen project to the next level. Here’s how to make the most of it
Full Story
DECORATING GUIDESRoom Doctor: 10 Things to Try When Your Room Needs a Little Something
Get a fresh perspective with these tips for improving your room’s design and decor
Full Story











BeverlyFLADeziner