Advice please on proposed master bath reno floor plan?
I would love some advice on some floor plan changes we're considering for our master bathroom renovation. We would like to save on costs and not move the general locations of the vanity, shower, and toilet.
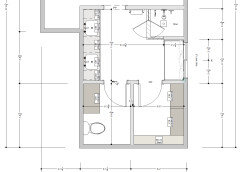
My main question, is can I move the angled wall with door that leads to our toilet room? Will it leave enough room to walk in, turn around and close the door comfortably? The room only contains a toilet (with elongated bowl). We would build a new straight wall on level with the other wall, with the same 24" door it has now. The room would be roughly 37.75" x 63.25", but some of that 63.25 might be taken up by the width of the wall.
We currently don't have a door between our bedroom and the main bathroom area. Who thought this was a good idea?? Every morning I wake my husband while getting ready for my day. We would like to add a door here, but are struggling a bit with how to orient it. Our master bedroom is not large, and if the door opens that direction, I think it will be too close to our bed on one side and wall mounted TV on the other.
We are removing and not replacing the 80's style platform tub since we never used it. I would like to use this space for a bench to sit on for putting on socks and lotion, and possibly a storage cabinet on the closet wall for additional storage. I think if we add a door to our bedroom, the shower opening will need to go here too.
I know the closet being through the bathroom isn't ideal, but I don't dislike it enough to pay to change it. 😁
Would love some feedback or ideas! Thank you!

Comments (32)
- 10 months agolast modified: 10 months ago
You're not in the shower 24/7 so having the door to the shower behind the entrance door isn't an issue IMO.
You won't like 24" doorways if you are ever injured and need a walker or wheelchair to get around.
I would make the shower as large as possible and add a seat.
A round bench/ottoman that can move around the room might be better used. It would certainly be more attractive.
The corner of the vanity and the entrance to the toilet room requires special consideration for clearance.

You can see that this shower is behind the entrance door
Depending on how much glass versus tile/wall you want this shower size with a seat is quite comfortable.

Dawn Roth thanked BeverlyFLADeziner - 10 months ago
Getting into your WC looks really tight with the vanity there. And I would worry about the door opening in like that. Elvis isn't the only person to have had a medical emergency in that location, and the door would make it very hard for someone to get to you. Move the closet door so the WC can have a pocket? But that vanity still makes it too tight.
Dawn Roth thanked G W Related Professionals
Brownsville Kitchen & Bathroom Designers · Four Corners Kitchen & Bathroom Designers · Lakewood Glass & Shower Door Dealers · Palisades Park Cabinets & Cabinetry · Gadsden Window Treatments · Belle Glade Interior Designers & Decorators · Five Corners Architects & Building Designers · Palos Verdes Estates Architects & Building Designers · Mundelein Furniture & Accessories · Clive Furniture & Accessories · De Luz General Contractors · McPherson General Contractors · Owosso General Contractors · Valle Vista General Contractors · Welleby Park General Contractors- 10 months agolast modified: 10 months ago
MY first question is can you move the toilet they are often very expensive or not possiblre.I hate toilet rooms they take up space for no reason No one should be using the toilet while someone else is in the bathroom. I need to see the floor plan for both the bedroom and bathroom . IMO this is juge bathroom bigger than needed with the firstt thing to go is the closet it is never a good idea to access a closet through a bathroom. Show us the whole floor plan of the 2 spaces , so cllue as to how much you awilling to spand and info about the toilet .I clean my bathrooms every day so bigger is not better in my opinion but well layed out and good storage are both a must. Post the new floor plan here in a comment in jpeg format DO NOT start another post or this thread will be lost for us to go find.
Dawn Roth thanked Patricia Colwell Consulting - 10 months agolast modified: 10 months ago
Go shower ahopping. There are doorless models and models with double doors. Look at corner showers too.
Or, consider a curtain instead.
Put a barrier of some kind in the toilet room where you would like to put the new wall. See how it feels.
Even better, consider removing the wall and not replacing it.Dawn Roth thanked auntthelma - 10 months agolast modified: 10 months ago
We currently don't have a door between our bedroom and the main bathroom area. Who thought this was a good idea??
I'm going to take a stab in the dark and guess your house was built in the 80s? Decades ago we rented a house with no door between the master and the bath, and it was from that era. I think people realized in a hurry it was a mistake.
I know the closet being through the bathroom isn't ideal, but I don't dislike it enough to pay to change it. 😁
That's a neutral thing and doesn't deserve the censure it receives on this board.
You're not in the shower 24/7 so having the door to the shower behind the entrance door isn't an issue IMO.
Agree, but I have an important question: Where are your towel bars going? You absolutely want to be able to reach them from inside the shower -- and consider that glass doors can block your reach. These little details will affect you each and every day. Remember that shower curtains are a choice too, and they won't block your reach -- easier to keep clean too.
You won't like 24" doorways if you are ever injured and need a walker or wheelchair to get around.
Yeah, I have that size door in my bathroom, and it's not ideal. In a perfect world, this is the time to make that change.
While we're thinking about aging /special needs, you should absolutely add grab bars inside /just outside your shower now while you're building -- if you add them later, you'll disturb the waterproofing behind your tiles, and then it's Hello, Mold!
Consider that grab bars "eat into" your space and make your shower feel smaller -- it'd be smart to go a bit bigger to account for grab bars.
I would make the shower as large as possible and add a seat.Agree with some modifications: When you build a large shower, be sure your hand-held shower can reach the far corners for cleaning. And instead of a seat, consider a teak bench, which can be moved to suit your purposes over the years -- or can be easily removed and replaced with a sturdy hospital shower chair, should the need arise.
As for the size -- I understand the window is limiting you. If this window isn't on the front of the house, I'd consider removing it /replacing it with glass blocks. You'll still get light, but it'll be waterproof and private. Glass blocks have come a long way since the 80s -- they come in designs and colors now.
I hate toilet rooms they take up space for no reason No one should be using the toilet while someone else is in the bathroom.Totally agree. In a perfect world -- one in which moving the toilet stack costs about a dollar -- I'd expand the closet across the back of the space + go with a single sink (flanked by a good set of drawers on each side) and place the toilet at the end of the vanity /kinda where the angle is now. More practical /inviting than a narrow, dark closet -- easier to keep clean and sink-adjacent.
We were talking about aging needs -- consider that many (most?) elderly people need supplies of some sort stored AT the toilet. My grandparents did, and now my parents do. If you expect to be old in this house, consider that now -- by placing the toilet next to the vanity or allotting space to bring in a small chest of some sort.
Sorry, but that's a lot of money to get not much is good!!!
Agree. While I 100% understand that renovations are hard because you have to deal with existing limitations, but the original plan -- as proposed -- just isn't particularly good. Remember that plans on paper are free, and don't move forward until your hard-earned money is going to get you something that's both lovely + a real improvement in function.Jan's plan is much better, especially on the left-hand side. I like that she's added a small closet -- I have a 24" bathroom closet, and it's wonderful -- I have a hamper in the lower half and have shelves above for towels, etc.
ask how much vanity you need....would 60" or 48" be enough with a single sink?
I agree that a single sink makes more sense. I've been married 35 years this summer, and we've never once clashed over a single sink. Storage trumps duplication every time.
Be SURE you get drawers at the vanity -- so often homeowners don't think this through, and their contractor pops in a cheap vanity with just open cabinet space, which isn't particularly useful for keeping your small things handy, and the result is clutter on top of the vanity.
Dawn Roth thanked Mrs Pete Dawn Roth
Original Author10 months agolast modified: 10 months agoWow, thank you so much everyone! I really appreciate all the ideas!
I'll try to address all the questions and then will get a full floor plan including our bedroom uploaded once my husband gets up (so I can measure).
Budget:We are just coming through a water damage and mold remediation demolition in quite a few areas of our home, so our budget is on the slender side. (We've had to rebuild many areas, and insurance only covers some of it.) We have enough budget to make some moderate changes that will be high impact, but we can't scrap the whole space and redo everything.
Toilet:It would be difficult to move the toilet very much, and would probably require opening walls and ceilings below that we just rebuilt. My husband and I do get ready for our day or bedtime at the same time fairly often, and since the closet is in here, we'll need to come through. Privacy for the toilet is very important to my husband, and I can't imagine him agreeing to no door. We could maybe change the orientation though, and change the shape of the closet. Our master bath is currently down to the studs and the toilet is removed, which makes it hard to mock up how the space would feel with the smaller area. I definitely hear the concerns about the size of the space and accessibility, and I don't want to make a short-sighted choice.
Shower:Given our experience with mold, we have strong feelings about the shower. We only want solid surfaces in there, so that limits size options. We have already purchased a solid surface white center drain 42" x 42" pan, and are planning to put in Swanstone white metro subway panels for the two walls, shower pan to ceiling. We won't be adding niches or built-in benches because those areas are very prone to leaks. I know we can use underlayment systems like Schluter to make tile showers safer, but like I said... strong feelings. (We'll still have an underlayment system.) We'll add grab bars and maybe a small free standing stool. We've been planning to add a frameless glass enclosure. I'm not super keen on the shower curtain idea, it seems like they are easy to splash out of and my teens will sometimes use this shower.
Vanity:The only thing my husband requested in this reno is for the vanity to have two sinks. I question how necessary that is, but it's the only thing he's asked for, we've discussed both points of view thoroughly, and I'm flexible on this. We could possibly go with a smaller vanity, if we're getting enough storage added elsewhere and we move that wall. If we don't move that wall, I feel like we're pretty locked in to the size of the vanity, and maybe only custom will work? I have a strong preference for drawers, and have been looking at vanities that have a lot of them, but have mostly looked at prefab. I couldn't find any RTA that had drawers under the sink. I found a couple prefab vanities that are available with no top, so I could get the top cut to fit the space of the alcove. I'm worried about the cost of a custom vanity.
Closet:We could probably give up some closet space. We've both pared down a lot as a result of our move out and back in process for the remediation. The biggest items in our closet are our luggage, and we could maybe find another location for them. We do have a linen closet in our main hallway.
ETA: Though we could pare down our closet, I should mention that we are hanger people, meaning we hang almost everything and share a small dresser for under things and socks.
Bedroom:Our bedroom isn't super large. We have a king bed, dresser, cedar chest (family heirloom), and two pieces of exercise equipment (bike and elliptical). I'd love to get the exercise equipment out, but honestly, there's not really a good place to put them in our moderate sized house. I don't want them in our family room, and the only other spot would be our home office where my husband and I work every day. They do get used sometimes during the day, but they aren't super loud so it could be worth considering.
ETA: Our bedroom faces north with one window, so the window in the bathroom is important for light. We've already added privacy glass to the windows, which works great and we can have the window shades open even when we're dressing.
I'll try to get the full floor plan uploaded soon.
Thank you again everyone!- 10 months ago
We are just coming through a water damage and mold remediation
Ouch. Sorry this is the reason for your reno.
My husband and I do get ready for our day or bedtime at the same time fairly often,
Think through what this actually necessitates. The closet being IN the bathroom does complicate this, but duplicate sinks aren't really helpful, as little of your getting-ready time actually requires water.
I don't want to make a short-sighted choice.
Definitely, nor do you want to go with "what everyone else does" just because it's what you see in magazines and online. The big point is, think through how you'll use the space and how to make it efficient.
We won't be adding niches
Disagree. We've never had any problem with ours, and without them your bottles, etc. will be sitting on the floor.
We'll add grab bars
Yes, add them while the shower's being built.
The only thing my husband requested in this reno is for the vanity to have two sinks.
You also said he insists upon a toilet in a clost. These are both space-hogs and create more cleaning on a week-to-week basis.
if we're getting enough storage added elsewhere and we move that wall.
Nope, nope, drawers AT the sink are necessary. If you don't have them, you'll end up with clutter on the countertop.
I couldn't find any RTA that had drawers under the sink.
Yeah, that's common, but this is worth the effort /extra cost.
- 10 months ago
Thembs up for swanstone. We renovated seven bathrooms over several years. For those in which we used pan and walls, we used swanstone. No grout! Beautiful. Easy to clean.
Dawn Roth thanked auntthelma Dawn Roth
Original Author10 months agolast modified: 10 months agoHere's my bedroom & bathroom floor plan as it stands today. I hope I got the important measurements. This isn't my best skill area. 😅
ETA: We can definitely change the doors to 30" wide, I think that's a great idea.
ETA: I forgot to label the length of the left hand wall in the water closet from the back to the angle, where we are considering moving the door. That's 63.25" from the back to the angle. I think the wall behind the toilet is thicker than normal due to duct work back there, so it doesn't add up exactly as compared to the size of the closet. The space on the opposite side of the closet and WC wall is open vaulted space above our living room, so not available to build out through it.
- 10 months agolast modified: 10 months ago
Your toilet area is only 37" wide with a 24" (!!!!) door. That's SO TINY. I guarantee you'll regret it ... if not now, then later, when there could be physical limitations/you need help/in a wheelchair/etc.
Also, you want shower niches. You really do.
I would also recommend looking at microcement/microconcrete for floor and shower walls. Like swanstone, no grout and easy to keep clean.
Dawn Roth thanked BPMBA - 10 months ago
Hey, she's currently got a toilet room with the exact dimensions she has posted and it works for her!!!
I see the value of a closed WC when two people are sharing a bath. Keep that concept. Dawn Roth
Original Author10 months agoJust talked with my husband about moving the toilet, and unfortunately he is pretty against the idea due to the expense. Maybe reorienting it would be a small enough change to not break the bank? Not sure.
The width of the WC (approx 38") has worked okay for us, however we are fully mobile at this point, and I'm aware that can change at any time. I'm definitely sold on the idea of widening the doorway to 30". If the toilet stays in its current location and orientation, would widening the WC help at all with shortening the length to remove the angle wall? Just to give some maneuvering room and move the door away from the vanity a bit?
I really like @JAN MOYER's layout with the small linen closet, but could that be adjusted to add a door, even if that meant we had open shelving for the linens (vs the closet door)? (So the wall would extend to the closet wall with a door there, enclosing the linen shelving and toilet?) Or maybe a pocket door, though they are not our favorite.
I think I'd get him to give in on the two sinks before giving up the door on the WC. 😁
Another idea is choosing a shorter length vanity, though I'd be sad to lose some of that storage. One of the vanities I've been looking at offers a 66" length, which would leave more space available to enter the WC.
This is the 72" version of the vanity I've been looking at. Next smaller is 66".
This is another, but the next smaller size is 60", which is too small.
Would it be "bad" to plan to have no door on our closet? Considering we would now have a door between the bedroom and main bathroom, it seems less necessary and would make accessing the racks behind the door easier... especially if we were to shrink it.- 10 months agolast modified: 10 months ago
I DO understand what you are trying to do.
You are trying to cobble together the lowest cost solution. I understand that. BUT.
The primary bath you REALLY want costs more. I would not have run out for a shower pan 42 x 42.....before you even had a concrete layout.
As to mold? That's a function of VENTILATION! A really good fan!
I have a bath with no window, small, and there is ZERO mold.
You can have a vanity made to your wants, for not a lot more than trying to grab a TWO finished sides .....not needed for about the same money.
The toilet? You really need to be in there together for that "event"?
The feet and inches don't lie. Yes the linen closet had a door.
There's a ton of storage in here....and a great SHOWER.
You can make a pocket door to the potty.!!
But a good bath, is going to take more $$$ WITH some adjustments not yet even investigated.
(Correct my door swing below ito the potty closet, sorry!! ) Swing IN and toward window wall.
No matter what? It's still the closet and toilet you need to address, or your clearances to move about, will be awful.
You deserve a better shower than 42 x 42 especially if you want a bench
You put a fan in the toilet closet and a fan inside the shower.
Back of the entrance door is great for robes. towels on HOOKS.
You don't need a storage bench? That's another place for towel bars.
Shower door, hinged to a wall? Swings both IN and OUT
DECIDE a vanity length you need.
Just remember toilet code is a clear two feet in front of it, and a bit more is better. SHELVES IN THE POTTY CLOSET? FINE, fit the toilet first based on discussion with a contractor.
Some of his need for a POTTY door? You do not have a door at the BEDROOM ENTRY!!! It's zero privacy to anything!

Dawn Roth thanked JAN MOYER Dawn Roth
Original Author10 months agoThank you everyone for your suggestions and advice!
Our original plan was to just rebuild the layout as-is with the exception of the tub we never used. We bought the shower pan to get the placement to move the pipes so we could close up my daughter's ceiling so we could move back home. If this had been a planned-for reno, we definitely would have had everything laid out ahead of time in detail.
I was given the suggestion to remove the angled wall & replace it with the straight wall and that seemed doable within our budget & timeframe, so I thought I'd see if others thought it was workable. Seems questionable how well it would work, but could possibly do with some tweaking.
Honestly, I'm okay with compromises at this point. It doesn't need to be perfect, just a bit better than it was before would be nice. 🤷♀️ We've been through a lot and it's cost a boat load; there's not a lot left over for perfect. We've already rebuilt 2 bathrooms, 2 bedrooms, a laundry room, and we're not done yet.
Anyway, I appreciate the help on this crazy journey my family has found ourselves on. 💜- 10 months ago
We get it. But you should investigate the better. Studs and drywall are not expensive. The vanity is in the same locale but for length and drain, and ....whatever. Design and resource fatigue is certainly real.
- 10 months agolast modified: 10 months ago
The original plan for my house was a primary bathroom without a door - I was like, "Why in the world wouldn't there be a door between the bedroom and the bathroom???!! I had them add double doors before we approved the plans. FYI - I think this was a 90s thing - my house was built in 1996.
I have a WC in my primary bathroom also. When I renovated my bathroom, I didn't even consider getting rid of the WC. If at some point in the future, the doorway needs to be wider to the WC, it wouldn't be that big of deal to remove the walls - while keeping a partial wall between the toilet area and the vanity (it would look exactly how Jan has drawn in her layout).
My vanity alcove is 82.75" wide. I had a custom vanity made to fit the alcove (it has all drawers also!). It was not really more expensive that putting together separate pieces in order to fill the space. The vanity is a good size for two sinks + has lots of counter space while getting ready. The plumber did move the sink connections a bit - but it was pretty simple and wasn't expensive.
My shower is 42" x 48" (so, not much larger than yours) - it feels plenty large enough. I could have made it larger if I had decided to not have a tub in the bathroom - but a tub is expected in my area.
My closet (8' x 18') is also accessed through the bathroom. I never knew how many people had strong feelings about not accessing the closet through the bathroom until I started reading houzz posts a few years ago. There wasn't any way to really change that if I had wanted to. However, I've never had any issues with this set up + it allowed my ex husband to get completely ready without re-entering the primary bedroom (he had to get up and ready earlier than I did). I did change the door to to the closet into a pocket door in order to widen the shower a bit.
Dawn Roth thanked dani_m08 - 10 months ago
A real life toilet solution. Added a first floor master suite for “aging in place”. The bath created in an old small adjacent bedroom. The toilet room in the old closet. Space to work with 66” deep, 39” wide. I find plenty of room. Have a “rail road’ style shelf above toilet for towel storage. The door a real problem with swings etc. Solution: two 16 “ doors that swing inward. Not block bath window outside toilet room. Not as much a safety hazard because doors only 16” deep providing some clearance to reach in and help someone. No locks on either door. After knee operation successfully used walker by turning around and leaving walker outside the doorway. It could fit if need be. Successful because had a grab bar near the toilet to hold onto. Doors can also be removed. Please Install grab bars NOW by toilet, entrance to shower, across back of shower horizontally as can be used for wash cloths etc. Can get pretty ones not hospital looking. Never know when need, teenagers can break a leg. Install a combo shower head with a hand held unit. Good for aging or washing children or pets. Shower doorscan have towel rod for easy access and/or hooks back of door. Mine behind the bathroom door. A moveable bench much more practical to suit now or future needs in shower.I love how bath looks and more important functions.
Dawn Roth thanked husterd - 10 months ago
Key points about toilet room doors:
- Standard size:Most residential bathroom doors have a clear opening of around 32 inches wide.
- ADA considerations:For accessibility, a wider door opening of 34 inches or more is recommended.
- Inward swing:Generally, the door should swing inwards to provide privacy and prevent accidental collisions.
- Outward swing situations:In tight spaces, an outward opening door might be necessary, but careful consideration should be given to potential safety issues.
Dawn Roth thanked BeverlyFLADeziner - 10 months ago
The measurements don't seem to add up - on the one side there is 89.75+75.5 = 165.5", on the other side there is 52+47+6.25+72.5 = 177.75" . There is 12" difference. I'm not critizing, it just makes it harder to come up with an idea.
- 10 months ago
: ) With walls, I got 167/168 ish.......So I went with it. Hardly matters, she is committed to less than perfection.
- Dawn Roth thanked Rabbitt Design
Dawn Roth
Original Author10 months ago@Madden, Slick & Bontempo, Inc You are correct! My floor plan was inaccurate, my apologies. I'll update that. I didn't show that the WC has a thicker wall at the back to hold some ducts, and it's about 12". It's not obvious when you look at it, and I missed it.
@JAN MOYER I showed my husband your ideas and he seems up for the idea of moving the closet wall over to make the WC area larger to accommodate a 30" door & make a larger vanity area. We'll need to check on the cost of turning the toilet, before committing to that, but we're making progress, so thank you for your detailed plans!Dawn Roth
Original Author10 months ago@Rabbitt Design It's so pretty! Is that a built in vanity-type cabinet in the WC? Your closet is amazing! I'm not sure if my husband and I could get by with one wall of hang rods, though. 😂 Thank you for sharing that!
Dawn Roth
Original Author10 months agoThis is where we are in our discussions right now... still a work in progress.
I originally neglected to show the bump-out in the WC for the duct-work, so I've included it on this plan. Apologies for the slightly-off measurements
- 10 months agolast modified: 10 months ago
Dawn that was jans sketch, I would probably jog for the water closet.
I would also prefer more drawer bases over the linen tower but thats just me. You could put a tower in the water closet.
Slide the door over, you need a place for your towel rack and def shower door facing into the room plan south

Dawn Roth
Original Author10 months ago@Rabbitt Design OMG, I didn't realize it was a rendering, haha! I thought you were showing me a similar bathroom that Jan had designed also. That's some pretty impressive software!
Thank you for the suggestions! Do you mean face the shower door toward the vanity, or the closet? Our floor plans have different orientations. :)- 10 months agolast modified: 10 months ago
Hey..........I was running late and there was Sharpie! Whaddaya want? I had to leave lol
I don't need grids, I have a scale ruler : ) Just a step up though low tech. I've blown plenty of houses to bits with it!



















JAN MOYER