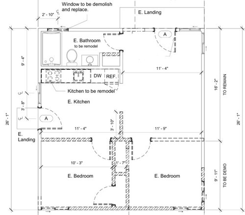
Please help w/ ideas to improve kitchen layout for increased storage.
last month
last modified: last month
Featured Answer
Sort by:Oldest
Comments (13)
- last month
Related Professionals
Bloomington Kitchen & Bathroom Designers · Kettering Kitchen & Bathroom Remodelers · Stoughton Cabinets & Cabinetry · Tinton Falls Cabinets & Cabinetry · Watauga Cabinets & Cabinetry · Clute Kitchen & Bathroom Designers · Moraga Kitchen & Bathroom Designers · Tempe Kitchen & Bathroom Remodelers · Aspen Hill Design-Build Firms · Saint Augustine Kitchen & Bathroom Remodelers · Van Wert Interior Designers & Decorators · Artesia General Contractors · Clarksville General Contractors · Foothill Ranch General Contractors · Kemp Mill General Contractors- last month
- last monthlast modified: last month
- last month
- last month
- last monthlast modified: last month
- last month
- last month
- last month
- last monthlast modified: last month
- last month
- last month
Related Stories

KITCHEN DESIGN12 Clever Kitchen Cabinet Storage Ideas
Find creative solutions to maximize storage, improve function and get organized
Full Story
KITCHEN STORAGE11 Smart Storage Ideas for an Uncluttered Kitchen
These clever organizers help calm your kitchen so you can focus on the real business: dinner!
Full Story
KITCHEN DESIGNKitchen of the Week: White and Blue With Smart Storage Ideas
A designer helps an empty-nest couple create a new kitchen with modern farmhouse style and creative cabinet solutions
Full Story
KITCHEN MAKEOVERSBefore and After: 4 Kitchens With Improved Storage and Style
With their savvy cabinetry and dashing good looks, these kitchens offer plenty of inspiration
Full Story
BEFORE AND AFTERSKitchen of the Week: Improved Storage With Timeless Style
Efficient cabinetry, blue-gray tones and an enlarged footprint lighten the look and feel of a formerly cramped space
Full Story
KITCHEN STORAGE10 Stylish Kitchens With Terrific Storage Ideas
See the inserts, pullouts and shelving styles that keep these cooking spaces beautifully organized
Full Story
MOST POPULARThe 15 Most Popular Kitchen Storage Ideas on Houzz
Solve common kitchen dilemmas in style with custom and ready-made organizers, drawers, shelves and more
Full Story
KITCHEN MAKEOVERSKitchen of the Week: Inviting Green Cabinets and Improved Storage
A designer updates a California couple’s aging kitchen with bright color, hardworking cabinets and more natural light
Full Story
KITCHEN STORAGE13 Popular Kitchen Storage Ideas and What They Cost
Corner drawers, appliance garages, platter storage and in-counter knife slots are a few details you may not want to leave out
Full Story
KITCHEN DESIGNThe Most Popular Kitchen Storage Ideas of 2015
Maximizing every inch, keeping necessities close at hand and finding room for technology top Houzzer favorites
Full StorySponsored
DC Area's High-End Custom Landscape Design Build Firm
















dan1888