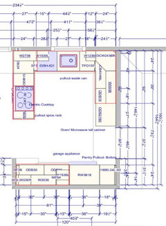
Double wall oven or separate microwave+single wall oven
last year
last modified: last year
Featured Answer
Sort by:Oldest
Comments (13)
Related Professionals
Newington Kitchen & Bathroom Designers · Town 'n' Country Kitchen & Bathroom Designers · Monroe General Contractors · Mountain View General Contractors · Baileys Crossroads General Contractors · Ferry Pass Architects & Building Designers · Woodlawn Kitchen & Bathroom Designers · Woodbury Furniture & Accessories · Pooler General Contractors · Keene General Contractors · Tabernacle General Contractors · Kendale Lakes Kitchen & Bathroom Remodelers · Sun Valley Kitchen & Bathroom Remodelers · Upper Saint Clair Kitchen & Bathroom Remodelers · Billings Cabinets & Cabinetry- last yearlast modified: last year
- last yearlast modified: last year
- last year
- last year
- last year
- last year
Related Stories

KITCHEN DESIGNA Single-Wall Kitchen May Be the Single Best Choice
Are your kitchen walls just getting in the way? See how these one-wall kitchens boost efficiency, share light and look amazing
Full Story
KITCHEN LAYOUTSHow to Make the Most of a Single-Wall Kitchen
Learn 10 ways to work with this space-saving, budget-savvy and sociable kitchen layout
Full Story
KITCHEN DESIGNSingle-Wall Galley Kitchens Catch the 'I'
I-shape kitchen layouts take a streamlined, flexible approach and can be easy on the wallet too
Full Story
KITCHEN LAYOUTSWays to Fall in Love With a One-Wall Kitchen
You can get more living space — without losing functionality — by grouping your appliances and cabinets on a single wall
Full Story
KITCHEN APPLIANCESFind the Right Oven Arrangement for Your Kitchen
Have all the options for ovens, with or without cooktops and drawers, left you steamed? This guide will help you simmer down
Full Story
KITCHEN DESIGNWhy a Designer Kept Her Kitchen Walls
Closed kitchens help hide messes (and smells) and create a zone for ‘me time.’ Do you like your kitchen open or closed?
Full Story
KITCHEN DESIGNKitchen of the Week: A Wall Comes Down and This Kitchen Opens Up
A bump-out and a reconfigured layout create room for a large island, a walk-in pantry and a sun-filled breakfast area
Full Story
HOUSEKEEPINGHow to Clean Your Range and Oven
Experts serve up advice on caring for these kitchen appliances, which work extra hard during the holidays
Full Story
KITCHEN STORAGENew This Week: 3 Kitchens With Hardworking Storage Walls
Push storage components to the wall to free up space for a large island with a big work surface
Full Story
KITCHEN MAKEOVERSKitchen of the Week: Bye-Bye, Wall — Hello, Great Outdoors
Removing a wall and relocating a laundry and powder room enlarge this cramped space and improve access to the backyard
Full Story








Patricia Colwell Consulting