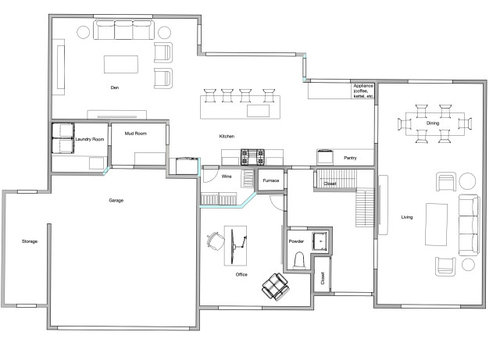
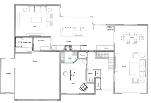
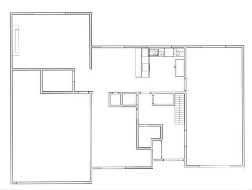
Floorplan tradeoffs in kitchen and office area for wine storage
11 months ago
last modified: 11 months ago
Related Stories

KITCHEN STORAGEHow to Organize Your Specialty Kitchen Storage Areas
Make working in your kitchen easier with these tips for storing pots and pans, spices, cleaning supplies and more
Full Story
KITCHEN STORAGEHidden Storage Opportunities in Your Kitchen
Look around for often-missed places to put wine, cookbooks, brooms and more
Full Story
KITCHEN DESIGNThe Most Popular Kitchen Storage Ideas of 2015
Maximizing every inch, keeping necessities close at hand and finding room for technology top Houzzer favorites
Full Story
KITCHEN STORAGE13 Popular Kitchen Storage Ideas and What They Cost
Corner drawers, appliance garages, platter storage and in-counter knife slots are a few details you may not want to leave out
Full Story
KITCHEN MAKEOVERSA Chef’s Kitchen Renovation in Wine Country
A team of design professionals helps transform a Sonoma County recipe tester’s family den into her dream kitchen
Full Story
KITCHEN DESIGNKnow the 3 Zones of Kitchen Storage
Organize storage space around your kitchen’s main activities for easier cooking and flow
Full Story
REMODELING GUIDES5 Trade-Offs to Consider When Remodeling Your Kitchen
A kitchen designer asks big-picture questions to help you decide where to invest and where to compromise in your remodel
Full Story
MOST POPULARThe 15 Most Popular Kitchen Storage Ideas on Houzz
Solve common kitchen dilemmas in style with custom and ready-made organizers, drawers, shelves and more
Full Story
KITCHEN DESIGN6 Elements of an Effective Kitchen Office
Create a successful mini workspace with these features in mind
Full Story
KITCHEN OF THE WEEKKitchen of the Week: Storage, Style and Efficiency in San Francisco
A growing family gets a kitchen they can work, eat and relax better in — and that’s easier on the eyes
Full Story


herbflavor
Patricia Colwell Consulting
Related Professionals
Fountain Hills Interior Designers & Decorators · Morganton Architects & Building Designers · Riverside Architects & Building Designers · Mill Valley Furniture & Accessories · Bel Air General Contractors · Poquoson General Contractors · Reisterstown General Contractors · Rolla General Contractors · Hillsboro Kitchen & Bathroom Designers · Oneida Kitchen & Bathroom Designers · Covington Kitchen & Bathroom Designers · Ogden Bathroom Remodelers · Thonotosassa Bathroom Remodelers · Cave Spring Bathroom Remodelers · Effingham Cabinets & CabinetrymonsieursmithOriginal Author
monsieursmithOriginal Author