Updated: Simplified Future Kitchen Floor Plans- what would you do?
***PHOTOS ADDED in comments.***
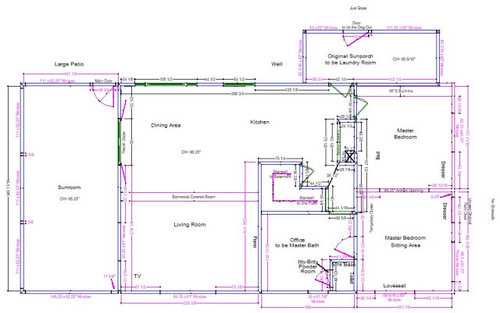
**EDIT: Requested entire 1st Floor Plan and DIMS have been added in pink! (Seems like overkill, but I think I provided everything one could want, other than physical photos which I can provide.)**
It was suggested my original post that I had too much info and perhaps that is why I wasn't getting a lot of feedback. It also had what I thought was a good design. (See "Future Kitchen Floor Plans- what would you do?" for that post.) Now I'd like to see what you would do if the kitchen space was empty- just walls and dimensions.
Family of 5 (but 2 adult children are out of the house)
Wants:
-Island (I currently have one w/o recommended clearances and love it)
-No stovetop on island
-Regular range instead of wall ovens
-Regular size refrigerator
-No microwave drawer
Restrictions:
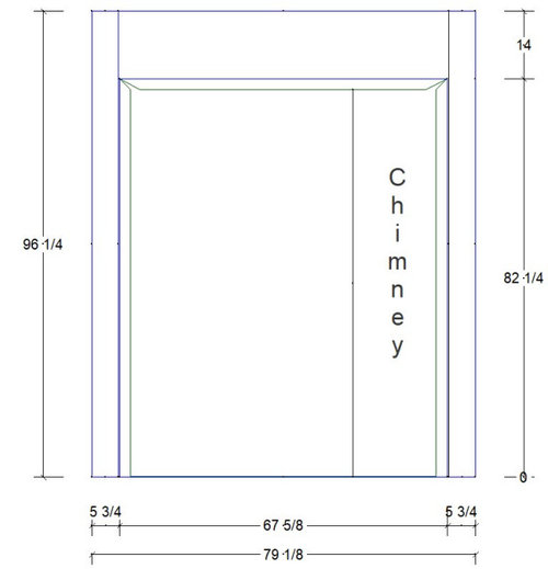
-Chimney in existing pantry is too costly to remove from 3 levels and roof (marked w/ X)
- Not interested in knocking down walls, moving stairwells, or swapping rooms.










Comments (53)
Nova
Original Authorlast month@PPF. and @rebunky Thank you for your ideas. I do not have a floor plan of my entire 1st floor to post. If we never do anything to any other room, our house is functional and comfortable and we'd be very happy. They are just ideas. In my case, I don't understand why the details of all the other rooms matter for setting up cabinets and appliances in the kitchen. We absolutely do not want to knock down walls, move stairways, and reconfigure the downstairs. The kitchen and rest of the 1st floor are the shape we are using. The room projects would be completed years apart if money is available. Pretend the kitchen is all I plan on doing. :)
Requested details: We enter the house through the large sunroom from our driveway and patio. The door on the original sun porch is only used to let the dog outside and is not near the driveway. There is teeny tiny "water closet" in the office, that is why we hope to eventually make the whole office a master bath shared with the whole 1st floor. The office has a doorway to our bedroom as well, but this really shouldn't affect my kitchen arrangement.- last month
"I don't understand why the details of all the other rooms matter for setting up cabinets and appliances in the kitchen. We absolutely do not want to knock down walls, move stairways, and reconfigure the downstairs. The kitchen and rest of the 1st floor are the shape we are using. The room projects would be completed years apart if money is.................
_____________________________________________We enter the house through the large sunroom from our driveway and patio. The door on the original sun porch is only used to let the dog outside and is not near the driveway. There is teeny tiny "water closet" in the office, that is why we hope to eventually make the whole office a master bath shared with the whole 1st floor. The office has a doorway to our bedroom as well, but this really shouldn't affect my kitchen arrangement.
You create the floor plan of the entire first floor as it exists. With a tape measure.You don't know what affects what........!!
And there is or is not an "eventually"?
We don't "pretend" much here.
"
Related Professionals
Four Corners Kitchen & Bathroom Designers · Queen Creek Kitchen & Bathroom Designers · Channahon Kitchen & Bathroom Remodelers · Caledonia Interior Designers & Decorators · Mililani Town General Contractors · Williamstown General Contractors · Seattle Architects & Building Designers · Commerce City Kitchen & Bathroom Designers · Lenexa Kitchen & Bathroom Designers · Lake Zurich Furniture & Accessories · Vail Furniture & Accessories · Montclair General Contractors · Statesboro General Contractors · Wallington General Contractors · Salinas Kitchen & Bathroom Remodelers- last month
The proposed plan just wasn't very good. And saying you're in the industry doesn't limit feedback, it is the lack of information and the boxing in of how people can answer. Creativity might involve things you didn't think of, if you are willing to listen something may come out of it.
One thing to understand is how important flow and circulation of the house is to cabinet/appliance placement, aisle widths, and visual perspective coming into or being within the space.
You have the main backhouse entry (and future Laundry, maybe more pantry storage) and Master Bedroom door needing access through a tight 38" hidden corner nook walking past the refrigerator. Then constricted past the basement stair bumpout and a pinch point corner at the dishwasher. Add to that an unknown amount of circulation from the basement and 2nd floor stairs coming through the same route, assumedly (stair/doors not shown). And then converting the Office/Powder Room to be part of the Master, will that doorway remain.
Maybe the Master door should move. Maybe the backhouse door should move. Maybe the Pantry should be reworked into the Sunroom with the future Laundry addition. Maybe the Kitchen should be a galley layout. Maybe the Kitchen moves to Sunroom. These could result in a better kitchen layout and overall function of the house. Who knows, but getting creativity and solutions to spark in one's head needs a better visualization of everything about the house and future opportunities will be seen from that.
I think you are expecting certain answers, and you didn't get those, so I am sitting this one out.
- last month
3onthetree,Thank you for explaining everything to Nova in such a nice way regarding what we need to see and how to get the best help. All of your ”Maybe” questions were spot on. Those are things I wondered about too.
Nova, please come back and let us help if you are still up for feedback. I can see such potential! But if you feel you are all good on your own, best wishes!Nova thanked rebunky - last month
Why we need to see a layout of the entire floor the Kitchen is on...
The sketch of the entire floor lets us see how the Kitchen relates to the rest of the home. It doesn't have to be to-scale, but it should accurately show how the rooms relate to each other and should include all interior & exterior doors. In addition, it will help us see how traffic flows in, around, and through the Kitchen. Label the front entry and family entry. The family entry is usually a garage or side entry, but it might not be. It's helpful to know which door you use to bring in groceries.
-----------Taken from the Featured Answer of the "New to Kitchens? Read Me First!" thread (which has quite a bit more info).
Nova thanked Buehl - last monthlast modified: last month
I looked at the original post. And. The original plan was just bad, and you've drug your feet and resisted getting free help all the way. No professional is going to spend time dragging out the pertinent information. They will just move on. You obviously need a PAID Kitchen Designer in your home to do the full layout of the home, since you won't furnish it, and you aren't really open to ideas to make this better. People sometimes pay a lot more attention and value paid input more than free. It makes them more invested, instead of just casual tourists.
Nova
Original Authorlast month@3onthetree @McDonald Enterprises thank you for the explanations. :) I wasn't saying I'm in the field to suggest anything about not wanting advice. I just gave that tidbit to let everyone know I do have some background knowledge for understanding more than the average customer and how it was I got the detailed drawing. The design I provided is nearly identical to the kitchen that exists now. I just changed some cabinet styles and moved the stove and ovens. The pantry bump out and narrow doorways exist now and feel comfortable, but I am all for moving the pantry! We are not going to afford changing walls, moving stairways, and swapping rooms like taking from the large sunroom. I only wondered IF anyone saw an obvious different arrangement in the existing kitchen space, other than what I had drawn. It is a near copy of what I am living with now. I wasn't meaning to sound difficult or close-minded at all, but trying to explain why things are where they are at the moment and how it does or does not bother me functionally. I am seriously very thankful for all points. I would love to see anything anyone comes up with.
I do plan on taking quick measurements of the rest of the first floor and probably some pics. Here are 2 views of my Master Bedroom which I happen to have in my phone already. This shows why we should not move doorways. Again, this is a 1918 farmhouse and the Master is the original dining room and the sitting area is the original living room. We absolutely love our Master suite. Eventually, the Master Bath will be through that door by the blue loveseat. Right now it is the office with the tiniest closet converted to a bathroom from a few owners ago. The door from the kitchen is the doorway on the right of the bed. Behind the camera in the first pic is floor to ceiling built-ins that we use as closets.

- last month
You are in there, we are not. It's a fabulous free site of advice and ideas, when you are willing to do all the homework assignments, as nobody has a week to pick apart and cobble together threads, separate drawings, the someday, the used to be, It might be if resources allow and....?
We truly do appreciate your tenacity!!
and ask,, ^^again.......
Where is all "the beef": )
Nova thanked JAN MOYER - last monthlast modified: last month
HU-NoName says Too Long/Didn’t Read. Then asks, “Where’s the beef?”
I think what they are trying to say is that you have given a lot of information, but we are missing the main ”ingredient” which is a sketch of the main floor plan with measurements labeled for walls, doorways including trim, windows including trim, etc…
This thread explains what we need to see. https://www.houzz.com/discussions/5500789/faq-how-do-i-ask-for-layout-help-what-information-should-i-include
I also think having an open mind is helpful. You never know what these talented folks can come up with if they have what they need. Hope you come back!
Nova thanked rebunky - last month
I just wanted to say that I love your master bedroom and sitting room. So beautiful! I see why you love it.
It is hard to imagine it was the original dining and living room. Do you have any old photos of the original farmhouse with those rooms? That would be very cool to see.
Yes, you need a master bathroom to go with such a great master suite. It makes sense for it to be taken from the existing tiny powder room located in the office that is already connected by a door to the bedroom.
However, as I said before, it would be best if you didn’t need to share it with every person who needs to use the bathroom on the main floor.
Stuff like that should be planned for now, before you set the kitchen in stone.
Then, no matter how many years down the road, you can achieve the overall goal for the main floor with the kitchen flowing perfectly. Planning now for all that stuff is why we are encouraging you to show the whole floor and discuss your future plans.
The kitchen design might be your focus right now. But, doesn’t it make sense to design it with everything else in mind for the future?
Nova thanked rebunky - last monthlast modified: last month
What others are saying is that you should be looking at the entire picture now. It doesn't mean doing it all now, but it does mean you will have a full, cohesive plan that can then be implemented in phases over time.
Trying to make changes piecemeal can backfire in the end by eliminating possibilities that might have given you better options, having to rework something you've already done (and paid for), etc.
Once you have your overall plan, then decide how to proceed. The Kitchen might be the first thing tackled, but it might not be. Or it might be tackled in conjunction with other main things. For example:
If changing all the floors, do that in conjunction with the Kitchen since in most cases the flooring should be done and then the cabinets since the cabinets sit on the floor (the exception would be a floating floor).
I'm not saying that's what you're going to do, I'm just giving you an example of two things that should really be done in conjunction with each other, not piecemeal.
- last month
Nova - I assume that this weekend you will be able to add a scaled drawing of the entire first floor of your home. If you use an inexpensive laser "tape" measure, it makes the job a lot easier.
If you weren't thinking about changing other parts of your home (rooms/layouts) in the future, what you've provided in your original post would work for people to help you come up with a few possible layouts for your new kitchen (I think it provides dimensions for every wall/window/door/doorway/etc.)
People are trying to save you from issues later when you move forward with your other projects. Knowing what your future plans will be will make completing those projects much easier in the future because you will already have an overall plan for the entire first floor. Also, it will save you $$ because all of the future issues have already been taken into consideration when you renovated your kitchen.
Post your drawing + add a bunch of photos showing your first level.
I can't wait to see what potential layouts/advice/suggestions people provide once you finish your "homework" and post everything! - last month
Like Dani, I look forward to seeing the potential layout suggestions.
And yes, please add photos of the existing kitchen and other surrounding spaces if you can. It helps so much!
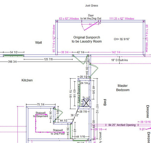
Please show the size of the original sunporch. I was just curious if the kitchen could be bumped back into that space at all.
- last month
Get rid of the pantry in the drawing and just post the darn measurements of the kichen space and why the need to have a master bath right next to the kitchen at all. I need a lot more info as to the whole house . What is a rgular fridge for instance?
Nova
Original Authorlast month@Patricia Colwell Consulting a regular fridge means not a Subzero or other giant fridge. I plan to have a regular 37 x 72" opening to slide a fridge in. :)
- last monthlast modified: last month
"Regular fridge" is ambiguous. Most refrigerators are one of the following.
Standard-depth (what most people would consider "regular"): freestanding; approx 36" deep; most are 30" or 36" wide and several inches of the refrigerator box/carcass stick out past the surrounding counters, cabs, etc. [Generally the least expensive for their size]
Counter-depth: freestanding; approx 31" deep (when including doors & handles); most are 36" wide. Note that the "counter-depth" designation only applies to the refrigerator carcass/box, not the doors or handles - doors must extend out past all surrounding items (counters, cabinets, walls, etc.) to open fully.
Built-in: installed permanently into the opening; similar to counter-depth, the doors stick out, but they're only a few inches, not 6" or more.
Fully integrated: installed permanently into a cabinet; sit flush with the surrounding cabinets so not even the doors, etc., stick out past the cabinets. [Most expensive refrigerators for their size]
Other options are refrigerator drawers, under counter wine/beverage refrigerators, etc.
I suspect you mean either a counter-depth or standard-depth.
Examples installed:
Standard-depth

Counter-depth

Built-in

Fully Integrated:
Nova thanked Buehl - last monthlast modified: last month
Note that sometimes standard-depth refrigerators can be recessed into the wall behind it to make it appear counter-depth. However, the doors must still stick out past all surrounding items (counters, cabinets, walls, etc.) to fully open.
If the refrigerator is against a wall deeper than the refrigerator box, you will likely need 12" or so filler or a 12"W cabinet b/w the wall and the refrigerator.
Nova thanked Buehl Nova
Original Authorlast month@Buehl Thank you. Recessing is a possibility to get a deeper fridge, which I do like, since I was figuring counter-depth is the best I can get. I was referring to the fact that some fridges like Subzero are humungous all around like 84" H and wider than the standard 36". :)
- last month
I asked to see the old sunporch for that very reason. I wondered if the fridge (and possibly more of the top wall) could recess into that space to gain the much needed aisle width. Does the sunporch span over to the first window to the left?
Nova
Original Authorlast monthlast modified: last month**UPDATE: Requested entire 1st Floor Plan and DIMS have been added in pink today!**
- last monthlast modified: last month
Good job on adding all the measurements of the whole floor plan! Now the Pros and others can have something to work with.
Photos of the existing kitchen, dining, living room, and sunroom would be great to see how everything flows around the furniture. Exterior photos help too. Give us the works! I am sure it is as lovely as your master suite. I love old homes, they have so much charactor!
Questions:
You said that your sitting room/master bedroom was the original living room/dining. So, is that the front view of the home from the street or driveway?
Where was the orginal kitchen? Photos of the original 1906 farmhouse would be cool to see if you have any.
Can we see a photo of the front of the house?
Which side is North, South, East, West?
Where do you park your vehicle?
Do you have a garage or carport and where is it?
What door do you use to bring in groceries?
Where do guests park and enter the home?
Do you have outdoor seating on the large patio. BBQ?
Is the big sunroom insulated with HVAC?
You said there is a second dining table for 6 in the sunroom. Do you only open the sunroom French doors up for parties?
Sorry for so many questions, but I am trying to understand how the home will flow after all the future plans are complete.
Nova thanked rebunky Nova
Original Authorlast monthlast modified: last month@rebunky thank you for asking...
- The original front door which is behind my dresser in Master Bedroom Sitting Area faces the road. We are in the country on a hobby farm. Our house is on a hill and the driveway is a horseshoe around the entire house to and from that same road. The driveway touches our large patio on 2 sides. Our other 2 doors face the East and the Master faces the road to the South. So the Sunroom faces the North but we see sunrises and sunsets from it, and the Office faces the West and our big beautiful barn.
-The original kitchen was exactly where it is now but it was smaller because the 1918 portion only went from the Master Bedroom Suite to that corner of the kitchen and living room. The old backdoor used to come in to the basement stairwell. I don't own pics and have not see any, other than the old kitchen. The 1984 addition is on all 3 levels including the walkout basement. The owners that put the addition on live down the road. They are the farmers that own several properties around us and raised their 3 kids in this house.
- We bring our groceries in through the Sunroom door and that is the door all our guests come in. I have a mirrored antique hutch in the Sunroom that we use for our coats and gloves. If we have a party, I bring out a tall stand with hooks.
-There is no garage yet. We park our vehicles on the top of the hill across the driveway from our large cement patio. It's all gravel. Guests park along the long driveway. The patio has a grill, large metal table w/ chairs and other patio furniture. Some day we will add a 2-car detached garage w/ garden shed storage across the driveway, because we have a huge garden and fruit trees across the driveway from the Original Sunporch. Attaching a garage would mean cutting down the largest, most beautiful tree on our property and rerouting our whole driveway which requires digging into the hill and building a retaining wall. Our septic runs under the lawn on the South and West sides of the house. The cons outweigh the pros. In very bad winter weather or predicted hail, we currently park our vehicles in the huge shop further away from the house.
-The Sunroom has HVAC and is super comfy all year in WI. We leave the doors wide open all the time, except for the rare instance our daughter wants more of a sound barrier for homework. We considered removing them. There is a regular 6-person oval table in the Dining Area as well as straight out those French doors in the Sunroom and we use both whenever.
I will try to get some pictures soon.
Nova
Original Authorlast month@rebunky I do love your creativity. You have a good idea and if we didn't have such beautiful views from the large living room window, I would highly consider it. I'd have to shrink the living room window a lot to put cabinets under it since it is only 24 3/8" above the floor and then move all the plumbing and gas lines. I have no idea what I would use the current kitchen space for. Once I get a chance to take pictures and post them here it'll help you see how beautifully the whole downstairs layout flows. I know the walkways are narrow, but it really does not feel tight as we move around. Believe it or not, I have the kitchen floor plans and 3D renderings from 1984. I do not have the whole addition's plans. An actual kitchen design company created it and had the European-style laminate cabinets shipped from Germany. Previous owners removed the upper cabinets that were above our peninsula to open it up more, which I like. I just wish they were paintable cabinets with regular hardware because I would totally repaint them, update the hardware, change the flooring, and be happy.
Here are the other views of our bedroom showing the built-ins and the front door with my dresser in front. It's crazy how the wood nearly matches on the door and the dresser.

- last month
I would love to see more of the living spaces. Sounds gorgeous.
I missed that the living room window was lower to the floor. Oh well, I tried!
Those built in cabinets are great. The dresser matches the wood on the door so well that you could insert a mirror between the door trim and it would look like it was a connected part of the dresser.
I wish we could have been able to get you more aisle space around the island. But, maybe by the time you are ready to do the kitchen in a year or two, you might change your mind??? 😉🥰
Best wishes!
Nova
Original Authorlast month@rebunky I took 20 pictures. Is that overkill?! 😂 Not sure if people want that many but I took them of various angles to show flow and views of what is outside the exterior doors.
Nova
Original Authorlast month@dani_m08, @JAN MOYER, @Buehl, @Patricia Colwell Consulting, @3onthetree, @McDonald Enterprises Last week, I added the full 1st floor plan with DIMS as requested. I took a bunch of photos yesterday if anyone wants/needs to see them.
- last month
Sure, I would love to see the existing kitchen, dining, living, and sunroom! You never know if it will spark an idea that you might consider..
Although, I must say, I am not sure what more anyone can do for you, since you are unwilling to switch rooms, change windows/doorways, or lose the island. Let us know if you change your mind.
The changes you plan on, especially getting the cooktop off the island, are definitely improvements. I just think you could do so much better!
If nothing else, I would lose the extra shallow cabinets on the backside of the island to gain a few more inches in front of the range and in the walkway behind the island.
Keep us posted!
Nova thanked rebunky - last monthlast modified: last month
I know you've said that you're used to/comfortable with narrow aisle widths and a less than ideal layout. But, is that b/c you're gotten used to them so feel comfortable with "what you know"?
My Humans are Adaptable & Resistant to Change write-up:
Human beings are very adaptable. We can adapt to anything - good or bad! We adapt so well that we tell ourselves it's fine the way it is and we often no longer "see" the issues we've adapted to. But, what if it could be better? If you ask just about anyone here who took our advice and changed their layout to make it better, they will tell you they never realized it could be so much better and wondered how they had lived with the issues for so long! (The answer is back to the adaptability of human beings!)
Human beings are resistant to change. Even when something can be made better, we resist change. We like (or are comfortable with) what we know and we have a hard time seeing other ways to do things - even if they would be so much better! And, as I mentioned before, we've adapted to what we have - both the good and the bad.
If you're going to spend the $$$ to renovate, don't create a "make do" Kitchen or simply repeat the issues/inefficiencies of previous Kitchen(s) you've had (or even just seen). Why not at least try for something better?
- last month
Is there a wall b/w the Dining Rom and Kitchen? Or is it a peninsula with a pony wall?

- last month
This is what I have so far. Is it correct? I used the measurements from your more recent edits.

- last month
Buehl,
Nice to see you back!
I am pretty sure Nova said it is going to be a pony wall underneath the peninsula‘s seating overhang. IIRC, she mentioned something about adding red weathered barn wood (?) that she had already to the wall.
I totally agree with you about how we can adapt to things that are not ideal, like tight kitchen aisles for example. 😉
I hope you can come up with a better layout for her!
- last monthlast modified: last month
@rebunky...I'm not quite back yet, but getting there! I've been really busy with work b/c my contract at NASA has been terminated as of 10/31 (I work on weather & climate spacecraft and am not directly involved with Moon/Mars efforts, so we're no longer wanted by the current Administration). Closing out tasks and transitioning any leftover work is taking up most of my time. I hope to be able to spend more time here starting next month. I really like designing Kitchens and have missed it!
That's why I've mostly been telling people to provide more info and not necessarily working on layouts. I've been leaving the layouts up to you and the others who are good at it!
(BTW...I sent you a message a couple of days ago.)
Thanks for the info regarding the pony wall - although unless they're absolutely necessary, I consider pony walls a waste of space! - last monthlast modified: last month
I didn’t see your message. I will look now.
Well, bad news about your job, but good news for the Kitchen Forum! You have been missed!
Eta: I just looked in my inbox, but I don’t see a new message from you. ☹️
- last monthlast modified: last month
I just saw this on your earlier thread:
"It will be a few years before we can take this project on but planning is key!"
Does this mean nothing will be done for a few years yet, including the Kitchen? If so, great job planning ahead - we wish others would do the same! You will have time to plan everything out -
- Determine exactly what you want do do with the entire house
- Look at the tasks involved in your plans and determine which should be done first or in conjunction with other tasks to minimize re-work and not waste money
- Develop a timeline (based on previous bullet) and be able to allocate approx funds as they become available
- last month
From the earlier thread:
"I found this conversation and it gives me some reassurance in what I was thinking and have noticed in my current narrow walkways pre-remodel... My walkways are drawn bigger than this."
What you don't know is what is surrounding that Kitchen, how many people are working in the Kitchen at the same time, etc. Is it a "dead end" Kitchen with no thru-traffic? Is it a one-person household?
I would not want to be relegated to having my butt up against the island, I would rather have space b/w my butt and the island - especially a hot oven! I also would not want my only option for accessing an oven be from the side. Putting in/taking out a large/heavy roast or turkey will not be easy from the side.
While this may not be the case of the poster, many people rationalize (rightly or wrongly) to get what they want instead of what's actually better. We see that all the time when people insist on cramming an island into a space that cannot support it - especially one that also has seating.
(See Sophia S's response in that thread as well.)
Nova thanked Buehl Nova
Original Author24 days agolast modified: 24 days ago@rebunky Yes that is my sweet girl Cookie. She is a Barred Rock. I discovered my chicken obsession when buying 2 chicks during Covid and because of wanting more than 4, we moved to the country early last summer. <3
Also, I did think about those shallow cabinets on the back of the island you mentioned. If I skipped those wouldn't my island be awkwardly skinny? Is 28" D enough for a functional island?Nova
Original Author24 days agoWalking in the door we use the most and showing what's outside that door. Our house is on a hill. We have a large shop/garage at the bottom of the hill that you can see out the windows. We can park there in large snow storms or hail.



Nova
Original Author24 days agoView walking in to the main living areas from Sun Room. Our Sun Room is used year round.

Yes, there is a pony wall in that peninsula. I was planning on reusing that pony wall and making it a two-level peninsula to move seating to the peninsula instead of the island, while hiding some of the kitchen clutter.



Nova
Original Author24 days agolast modified: 24 days agoI found the original kitchen plans from 1984! Here is the cover sheet:

That's the Master Bedroom (original Dining Room) beyond the Pantry:

Door to Original Sun Porch (home of future laundry room) and where we let the dog out:
Door to Den and tiny Powder Room (home of future Master Bath):
Stairways across from Family collage wall (kitchen to the right and den to the left):
Nova
Original Author24 days agoThe Original Sun Porch (aka: organizer and junk plop-all since moving in, but we will tackle that soon!):



Nova
Original Author24 days agolast modified: 24 days agoDen (currently hubby's never-set-up-yet mess of an office and another to-do job of ours):
That white door leads to the Sitting Area of our "Master Suite" (original Living Room).

And the tiniest Powder Room within the Den:
Not only did they fit cabinets, but that mirror is a medicine cabinet. The last homeowners didn't even realize that in the 1.5 years they lived here!
Nova
Original Author24 days agoMaster Bedroom "Suite" which is already posted way above:
Doorway to Kitchen is to the right of the bed.
Doorway to Den (future bathroom) is to the right:
Original Front Door facing the country road is behind my dresser:
- 23 days ago
Thanks for the pictures. What a cute old farmhouse. Cute dog! Love the fenced garden out the back porch. I had RIR named ”Cookie”. 😍
Wowee, that is one tiny powder room! Love the turquoise walls though. I love the old red faded barn wood on the back of the peninsula and that big beam too!
I’m going to be busy for the next few days. Hopefully Buehl will be able to respond, but she has been busy too. I look forward to seeing what she comes up with for you!











rebunky