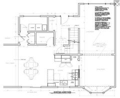
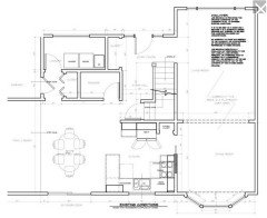
Which kitchen layout should we choose? OR suggest a new one?
20 days ago
last modified: 13 days ago
Related Stories

KITCHEN DESIGN12 Great Kitchen Styles — Which One’s for You?
Sometimes you can be surprised by the kitchen style that really calls to you. The proof is in the pictures
Full Story
KITCHEN DESIGNKitchen Layouts: Ideas for U-Shaped Kitchens
U-shaped kitchens are great for cooks and guests. Is this one for you?
Full Story
KITCHEN LAYOUTSThe Pros and Cons of 3 Popular Kitchen Layouts
U-shaped, L-shaped or galley? Find out which is best for you and why
Full Story
KITCHEN DESIGNOpen vs. Closed Kitchens — Which Style Works Best for You?
Get the kitchen layout that's right for you with this advice from 3 experts
Full Story
INSIDE HOUZZData Watch: Top Layouts and Styles in Kitchen Renovations
Find out which kitchen style bumped traditional out of the top 3, with new data from Houzz
Full Story
KITCHEN DESIGNKitchen Layouts: Island or a Peninsula?
Attached to one wall, a peninsula is a great option for smaller kitchens
Full Story
KITCHEN LAYOUTSWays to Fall in Love With a One-Wall Kitchen
You can get more living space — without losing functionality — by grouping your appliances and cabinets on a single wall
Full Story
INSIDE HOUZZA New Survey Suggests How Much a Kitchen Remodel Might Cost You
It’s a good starting point, but the true cost will depend on regional and other factors
Full Story
KITCHEN ISLANDSWhich Is for You — Kitchen Table or Island?
Learn about size, storage, lighting and other details to choose the right table for your kitchen and your lifestyle
Full Story
INSIDE HOUZZPopular Layouts for Remodeled Kitchens Now
The L-shape kitchen reigns and open-plan layouts are still popular, the 2020 U.S. Houzz Kitchen Trends Study finds
Full Story
JenniferOriginal Author
WestCoast Hopeful
Related Professionals
Five Corners Architects & Building Designers · Four Corners Architects & Building Designers · Portland Kitchen & Bathroom Designers · Marietta Furniture & Accessories · Santa Barbara Furniture & Accessories · Fargo General Contractors · Geneva General Contractors · Wright General Contractors · College Park Kitchen & Bathroom Designers · Owasso Kitchen & Bathroom Designers · Southampton Kitchen & Bathroom Designers · Southbridge Kitchen & Bathroom Designers · Glen Allen Kitchen & Bathroom Remodelers · Pinellas Park Kitchen & Bathroom Remodelers · Palos Verdes Estates Cabinets & CabinetryToronto Veterinarian
dan1888
PPF.
dan1888
PPF.
la_la Girl
Toronto Veterinarian
elluviga
HU-402831377
JAN MOYER
Lorraine Leroux
Patricia Colwell Consulting
JAN MOYER
herbflavor
dan1888
JenniferOriginal Author