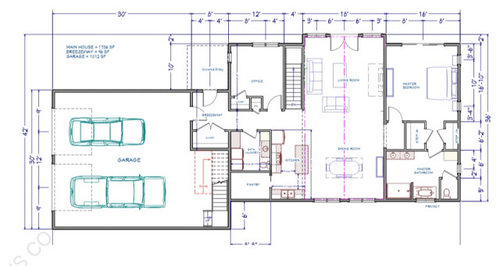
New construction plans: is my kitchen big enough?
last month
Featured Answer
Sort by:Oldest
Comments (47)
- last month
- last month
Related Professionals
Garden Acres Interior Designers & Decorators · Baton Rouge Architects & Building Designers · Fayetteville Architects & Building Designers · Philadelphia Kitchen & Bathroom Designers · Piedmont Kitchen & Bathroom Designers · Queen Creek Kitchen & Bathroom Designers · Springdale Furniture & Accessories · Toledo Furniture & Accessories · Newington General Contractors · Uniondale General Contractors · Waterville General Contractors · Winton General Contractors · Magna Kitchen & Bathroom Designers · Weston Bathroom Remodelers · Lockport Cabinets & Cabinetry- last month
- last month
- last monthlast modified: last month
- last monthlast modified: last month
- last month
- last month
- last month
- last month
- last month
- last month
- last month
- last month
- last month
- last month
- last month
- last month
- last month
- last month
- last month
- last month
- last month
- last month
- last month
- last month
- last month
- last month
- last monthlast modified: last month
- last month
- last month
- last month
- last month
- last month
- last month
- last month
- last month
- last month
- last month
- last monthlast modified: last month
- last month
- last month
- last month
- last month
- 12 days agolast modified: 7 days ago
- 12 days ago
Related Stories

KITCHEN WORKBOOKNew Ways to Plan Your Kitchen’s Work Zones
The classic work triangle of range, fridge and sink is the best layout for kitchens, right? Not necessarily
Full Story
KITCHEN DESIGNOdd Walls Make Way for a U-Shaped Kitchen With a Big Island
American oak and glints of copper warm up the white cabinetry and open plan of this renovated English kitchen
Full Story
KITCHEN DESIGNHow to Plan a Quintessentially English Country Kitchen
If you love the laid-back nature of the English country kitchen, here’s how to get the look
Full Story
KITCHEN DESIGNKitchen of the Week: Open-Plan Room Perfect for Entertaining
Soft matte finishes and a practical design were key to creating this bright and functional open-plan kitchen
Full Story
KITCHEN DESIGNBack-to-School Action Plan: The Kitchen
Organize your meals with these steps to make sure your kids eat well at home and at school
Full Story
KITCHEN MAKEOVERSKitchen of the Week: Big Family Gatherings at the Lake
A designer renovates a house to accommodate large groups on a family property
Full Story
REMODELING GUIDES6 Tricky Questions to Ask When Planning Your New Kitchen
Addressing these details will ensure a smoother project with personalized style
Full Story
MOST POPULARTrend Watch: 13 Kitchen Looks Expected to Be Big in 2015
3 designers share their thoughts on what looks, finishes and design elements will be on trend in the year ahead
Full Story
KITCHEN DESIGN9 Questions to Ask When Planning a Kitchen Pantry
Avoid blunders and get the storage space and layout you need by asking these questions before you begin
Full Story
KITCHEN DESIGNRemodeling Your Kitchen in Stages: Planning and Design
When doing a remodel in phases, being overprepared is key
Full Story





la_la Girl