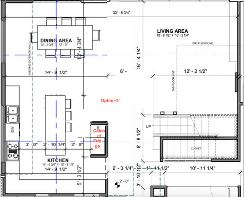
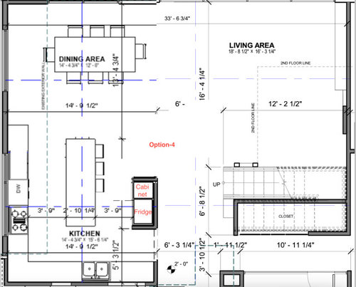
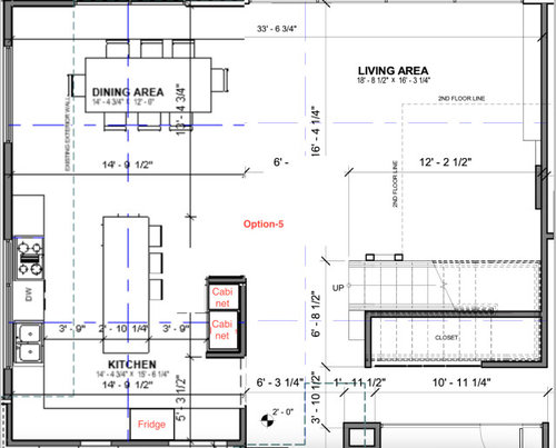
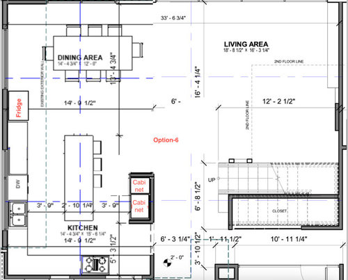
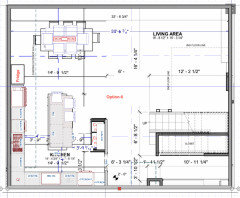
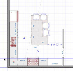
Design Help Needed-Small Kitchen, Island Dreams, Daily Cooking Reality
22 days ago
last modified: 22 days ago
Featured Answer
Sort by:Oldest
Comments (12)
Related Professionals
Westminster Architects & Building Designers · Roselle Kitchen & Bathroom Designers · St. Louis Furniture & Accessories · Davidson General Contractors · Dover General Contractors · Leominster General Contractors · Watertown General Contractors · Wilmington Island Bathroom Remodelers · St. Louis Kitchen & Bathroom Designers · Glen Allen Bathroom Remodelers · South Park Township Bathroom Remodelers · Vienna Bathroom Remodelers · Sharonville Bathroom Remodelers · Ridgefield Interior Designers & Decorators · Glenn Dale General Contractors- 21 days ago
- 12 days ago
- 12 days ago
Related Stories

KITCHEN DESIGNKitchen of the Week: A Designer’s Dream Kitchen Becomes Reality
See what 10 years of professional design planning creates. Hint: smart storage, lots of light and beautiful materials
Full Story
KITCHEN DESIGNKitchen Design Fix: How to Fit an Island Into a Small Kitchen
Maximize your cooking prep area and storage even if your kitchen isn't huge with an island sized and styled to fit
Full Story
KITCHEN MAKEOVERSKitchen of the Week: Baker’s Dream Kitchen With Two Islands
A kitchen-family room makeover adds happy' aqua cabinetry and a dedicated baking space to a Massachusetts farmhouse
Full Story
KITCHEN DESIGN11 Must-Haves in a Designer’s Dream Kitchen
Custom cabinets, a slab backsplash, drawer dishwashers — what’s on your wish list?
Full Story
KITCHEN DESIGNKitchen of the Week: A Cooking Maven's Small Kitchen
A food blogger shows that an amazing meal can be whipped up in any size kitchen with the right tools, storage and attitude
Full Story
KITCHEN MAKEOVERSKitchen of the Week: Designer Creates Her Own Dream Kitchen
Creamy paint and marble tones, brass finishes, ceiling beams and natural wood warm this sophisticated space
Full Story
MOST POPULARHow Much Room Do You Need for a Kitchen Island?
Installing an island can enhance your kitchen in many ways, and with good planning, even smaller kitchens can benefit
Full Story
KITCHEN DESIGNKitchen Recipes: Factory Cart Inspires a Dream Cooking Space
These homeowners' kitchen was almost nonexistent, so they whipped it up from scratch. See what they cook there and get the recipe too
Full Story
KITCHEN ISLANDSKitchen of the Week: A Family’s Big-Island Dreams Come True
A large island transforms a kitchen into the hub it was meant to be
Full Story
KITCHEN ISLANDSPlan Your Kitchen Island Seating to Suit Your Family’s Needs
In the debate over how to make this feature more functional, consider more than one side
Full StorySponsored
Fairfax County's Specialized, Comprehensive Renovations Firm










bpath