Big Active Kitchen Remodel
Edited to Add: Budget is around $100k, I don’t think we have the budget to he rearranging the whole house and with young kids I just dont see that being livable. We bought this house BECAUSE it had a huge kitchen space to work with.
We have a large kitchen that needs a gut remodel. We won't be moving any walls but we also can't get rid of the beam across the center of the space. We have had several designs done but I am not sure any of them are exactly right yet, I also need ideas for having the beam look a little more intentional in the design. Also trying to avoid a werid franken-kitchen as the result of trying to combine too many design ideas...
We cook regularly often with 2 people in the cooking zone at a time. We have young kids and a growing family so we are putting in 2 fridges and we already have 2 sinks so planning on keeping that. Practical/functional is likely king in almost all regards but looks nice would be great too. We host the large gatherings for the holidays and plan on hosting youth groups like 4-H/scouts in the space as well. We have a whole dining room that shares a wall with the kitchen so while we do want seatings at the island we don't need anything table height.
The kitchen is the main throughfare from outside to the rest of the house as we primarily enter from the garage - through kitchen - to living space. This is the route along the "bottom" in the first few diagrams. There are already standard base cabinets there so we are used to going around them but not crazy about anything sticking out further than standard base cabinets. We do use this as a primary serving area during large gatherings as it offers good circulation to the dining room.
Looking for thoughts and advice on the layouts we are considering - if you did something similar as far as appliance arrangement - did you love it? Hate it? Do you see any potential conflicts with placements, etc.
I am not sure what else to include so if things come up I will try to add details as needed.
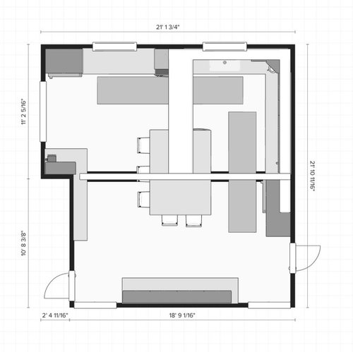
This is my best approximation of the open space (chance of being off an inch here or there), squares are sq ft.
Edited to Add Information from Comments:
#1 "Find a Single Designer" - everyone around here that "does" kitchens or cabinets has their own designer. I have hired an independent designer for a bathroom project in the past and it was more or less a complete waste of money I am not real gungho on repeating the experience. Additionally the one dedicated "designer" (vs cabinet store designer - since its clear some people don't consider them designers?) here is the one that keeps trying to put a random seating area in my kitchen and open shelves despite me asking for neither - this is more or less my overall experience with "designers".
#2 General floorplan for first floor- A few measurements are off and realized I missed the coat closet in the front hall, but the general layout is correct. Unlabeled room between dining and hall is a 1/2 bath. Kitchen is the back of the house. There is a small entry way with coat closet before coming in the kitchen its not awesome that it is also the laundry and the hallway to the office but it works ok enough.

#3 Windows - the window on the left top wall we can pretty much do whatever as long as it stays within the confines of the current opening. The other window likely isn't going anywhere because we don't have the budget to monkey around with headers in load bearing walls.
#4 Yes this the extra section of the kitchen is from an addition from before we purchased the house.
#5 There is no room in the garage for a fridge - it is a 2 car garage in the northeast it houses cars. We already have 2 fridge/freezers and use both a lot (plus a mini fridge) so felt another would add function - I am not sure how having multiple fridges automatically equals waste? We do not have the budget for column fridges unfortunately current plan is a Top Freezer Single Door model for its simplicity ease of repair and ease of replacement.
#6 Yes a second dishwasher would be awesome but I am having a hard enough time finding where to put 1.
#7 I felt that pictures of the current kitchen would be kind of distracting - it really isn't working that well for us but I will include them at the end. Its more or less overflowing with stuff and in no way does the current setup meet code.
No one asked but I thought it might be helpful - Current Cabinets (we need at least this amount if not more everything is overflowing):
Uppers:
(2) 42" x 12" x 30" (fixed shelves)
(1) 30" x 12" x 30" (fixed shelves)
(1) 18" x 12" x 30" (fixed shelves)
(1) 30" x 12" x 18" (microwave shelf below)
(1) Corner Cabinet 17" opening, 12" at sides, 24" deep on diagonal
Lower Cabinets:
(1) Corner base
(1) 9" Tray cabinet
(2) 36" base
(1) 33" sink base
(3) 24" base (drawer/cabinet combo)
(2) 21" base
(2) 15" base
(1) 18" base
Tall/Pantry
(2) 18" x 82" x 24" Pantry Cabinets
(2) Billy Bookcases (31" x 12" x 80")
(1) 1/2 billy bookcase (16" x 12" x 80")
Then there are obviously holes for the dishwasher, fridge, and oven.

Next are 2 designs we are refining but nothing is set in stone.
Option A Sink to the Left

Option B Sink to the right

Design ideas we have gotten from various designers:
Design 1: Feels like lots of dead space in the middle of the kitchen. Floating cabinets by the stove look weird to me. Missing second fridge

Design 2:
Has more things wrong then right. I don't think we want the stove on the side wall, has lots of tall cabinets interupting counter runs, Fridge sticks out into main walkway (and interupts a counter run).

Design 3:
Has interesting ideas (and the advantage of having some of the feedback from prior designs we didn't like). Still feels like a LOT of dead space between island and buffet. HATE the different size floating cabinets around the hood I think this will look super werid. Missing second fridge

Design 4:
Has dishwasher in island - interesting idea but feels impractical to have water dripping across the walkway all the time. Like the idea of the rectangle island going the longer way in the room in theory (hence its reflection in the options above). Loved the coffee station idea on the bump in part.

Design 5:
The 2 fridges next to each other put them pretty far from the sink and the stove and the coffee corner - not crazy about that. The designer loves the idea of a seating area in the kitchen but I am all about storage/cabinets am I crazy?

As requested by commentors here are some current pictures of the kitchen. The gas stove with no ventilation is a MUST FIX in the new design - I also want to get rid of all the random makeshift furniture we have had to add to make the space work.
Comments (171)
- last month
Seriously, who comes in the garage entry? Anybody coming in that way should expect to see the 'backstairs' version of the house.
- last monthlast modified: last month
I have never really felt the need to have a table height space in the kitchen.
This is great. Somewhere along the line I assumed you were looking for a table in here too to seat kids around for girl scouts, and that you were disappointed that this huge space wasn't fitting in as much as you'd hoped. Glad that is not the case.
Furniture and sofa "slide all over the place and mark up the hardwoods".
Yep, you have to put pads or grips underneath your furniture so they don't gouge the floors or slide everywhere. I just assumed everyone always had pads or grips on furniture legs. I guess I have lived my whole life with nothing but hardwood floors and thought everyone does that automatically! No matter your floor surface, unless carpet, any furniture is going to slide on a hard surface.
As for putting the coffee area on the buffet - I would really prefer not to have all that stuff out in a jumble on the buffet and be the first thing everyone sees when they come inWhat's the jumble? Isn't it a coffee maker and grinder that would sit on the "buffet" counter top? Can't your coffee mugs and all other manner of coffee accountroments go in the cabinet above the buffet countertop? And, aren't you and your family members the only ones who walk in to the kitchen through the garage? Wouldn't you anticipate that it look like a kitchen?
no low microwave - put it above the ovenIf you put it above your oven then how will you have an exterior vented hood? Yes, you can exterior vent a microwave with built in vent but they have truly wimpy draw and won't do what an actual hood will.
ARE from local kitchen stores. But then you have to basically be your own GC/project manager - you dont have anyone to run the whole job and make sure things like the tile, counters, hardware, etc all work for the space and with each other - so there are pros and cons to working with a collection of independent contractors vs a full remodeling service.The third option, and what many people do is use an independent kitchen designer and a GC. Given what the "designers" at these full remodeling services have suggested by way of designs above, I'd be afraid of their skill level and how well they would be able to make the tile, counters, hardware work for the space and with each other.
I concur it is a nightmare to have to manage a collection of independent contractor while working your two jobs as a mom and running your business. But, you can certainly still have a GC who over sees the remodel of plans that were created by an independent designer.
An independent designer may have GCs they like and have worked with and who could fit you in faster. They may end up saving you money because they are not profiting off of your cabinet purchases but simply giving you recommendations based on their knowledge in the field.
Lastly, I'm kind of dying to know what two adults and two kids under four fill two full fridges with! Related Professionals
Durango Kitchen Remodelers · Sarnia Kitchen Remodelers · Shreveport Bathroom Remodelers · Enfield Bathroom Remodelers · College Station Interior Designers & Decorators · Hudson Interior Designers & Decorators · Salem Interior Designers & Decorators · DeRidder Architects & Building Designers · Charlottesville Architects & Building Designers · Ashland Kitchen & Bathroom Designers · Superior Kitchen & Bathroom Designers · Clarksdale Kitchen & Bathroom Designers · Lawrence Kitchen & Bathroom Designers · Keene Kitchen & Bathroom Designers · Sebring Custom Countertops- last month
I think she meant the microwave over a wall oven and a separate cooktop with a hood. You do have enough room to build pantries where I had the tall cabinet pantries. That may save some money. It would also give you a lot of flexibility in the shelving set up.


A lot of the microwaves today have locking systems so I wouldn't be too concerned about it in a lower cabinet. You could also put it in an upper to the left of the ref - then it is a little hidden.
Just for comparison - I priced this plan out with the closet instead of pantry cabinets and in Kraftmaid Vantage ot would be about $48-$50K and there is 126 sq ft of counter so another $12 - $14k. Now add your labor and appliances.
Good luck to you!
- last monthlast modified: last month
Nice Debbie! That was kind of you! I’m still trying to find a way for Rachel to leave her window/door locations alone - for budget and to keep maximum light. And if she is set on not changing the functions of the adjoining spaces then maybe this would work? I’m team table in the kitchen because I just see it as very functional for a family and larger groups.

- last month
@Debbi Washburn - Your plan just keeps getting better with its cost effectiveness. Way to go and thanks for clarity about the microwave.
- last month
You can even roll a keffir cooler on to the floor of the pantry in Debbi's last rendition.
- last month
Not a pro, but have you looked at IKEA cabinets? (Sorry if they have already been suggested.). They might save you some money, and they are good quality.
- last monthlast modified: last month
Pantry is better as office,,,,,"anyone coming in would see the mess we're trying to hide" were it to be a pantry
It's an "asap rush plan" because appliances are failing ( but these are not luxury, are standard sizes that can be accommodated: Dishwasher, 24" fridge 36" and are both on fail or one and they are best at counter depth especially as there is another ..........
"can't have a drawer micro........" as little kids push the buttons. I guess the tap on the hand and NO word bit the dust.
Again........
" I would really prefer not to have all that stuff out in a jumble on the buffet and be the first thing everyone sees when they come in "
Forgive me.
The entire issue is one of clarity . What must be out and at hand, and what can be hidden. What will be cleaned up and stowed, what will remain OUT because we know we won't put it away. We need it out, but we don't want anyone to see it.
Some Debbi Washburn kind words.....
"You do have enough room to build pantries where I had the tall cabinet pantries. That may save some money. It would also give you a lot of flexibility in the shelving set up. "
Curious....Shelving set up for what , and 100% agree would save money. Will it save the look of the kitchen?
A Floor to ceiling wall of contained storage, DELETES counter top for "at hand: appliances, Admittedly noted above as not likely to be stowed. They will then go where? Onto the island ? We've stated a that a dining table is " not necessary." So they will end up on any flat, horizontal surface, and it will render it difficult to not be seen and more difficult to sit for a meal at any size island..
Pantry.........Whether or not, matters not.
"We totally see where this is coming from we in fact used that space as a walk in pantry before I needed a first floor office. However, we still feel like this is the best place for my office and if it were to be open to the mud area - it makes some sense but then everyone coming in would see right into the pantry area with all the appliances out which doesn't really accomplish the goal of keeping them less in your face/hiding some of the mess."
You can not plan a kitchen minus clarity of use. what MUST be out, what can and will be stowed. A good plan requires honesty, versus a pipe dream that will not ever happen.
Should you attempt that pipe dream? You will have new appliances, better cabinets, new counter tops and flooring of some sort, and essentially the kitchen as you now have, Just a newer mess, versus an older mess.
Everyone in this thread can beat me with a sharp stick. You are still "nowhere".: )
Coffee maker
coffee grinder
blender
Hot water kettle
Toaster oven
water bottles
kefir cooler
sous vide/
vacuum sealer
Bananas
Paper towels
Food stuff.....( rice, beans, kid snacks and bulk are descent to basement)
( list any and all I have omitted
Kids home school stuff.
Keys/ mail.
Someday 4H and 6 - 8 kids baking in the kitchen, ( kids now age 2 and 4 )
Wise Washburn words below
"A very smart designer once said " you may design your new space to solve all of your problems, but you can't design a change to habits" .
Mine...."I've met no leopard whose spots have been altered to stripes resembling a zebra>"
I'll stand back : )
- last monthlast modified: last month
^^^^
Woah...............................................!!!!! Maybe not the best advertising.
- last month
I presumed that the sous vide, blender, vacuum sealer, toaster, and other counter top appliances would live on the buffet. But that I was confused that you don't want to see anything like that when you walk in from the garage. So now I'm not sure where it would go.
I presume you have in your mind Rachel more info than we know and we are just missing a few pieces.
Yes, have you priced out Ikea? I know the price is not as stellar if you are not DIY assembling it, but they are really quality cabinets that last forever. Not sure how their quality would compare to Fabuwood and the other company you were quoted. - last month
Haven't installed counters in decades. Is $100/sq ft high or a reasonable price?
- last month
"I presumed that the sous vide, blender, vacuum sealer, toaster, and other counter top appliances would live on the buffet. But that I was confused that you don't want to see anything like that when you walk in from the garage. So now I'm not sure where it would go. "
You left out the coffee grinder, and the blender.
- last month
This is the perfect example of " ask 100 designers, get 100 different answers" . Some follow the "rules" - letter by letter, maybe every other rule, use as a guideline, only use a certain few or throw caution to the wind!
We don't live in your home and we don't have hands in your pockets. We are here for insight, ideas , suggestions ( strong, urgent and outside the box ). You need to find which things are going to work best for you.
I did a quick cabinet comparison to what you posted earlier - it might help sort out the extra storage you are getting. Hope it helps!
Rachael Southworth thanked Debbi Washburn - last month
Next time I need a kitchen designed (hope it isn't for a very, very long time) I'm hiring you @Debbi Washburn. You are fantastic.
- last monthlast modified: last month
"I did a quick cabinet comparison to what you posted earlier - it might help sort out the extra storage you are getting. Hope it helps!"
Extremely kind calculation of sq feet! : ) . Incredibly valuable if it will actually s.t.o.r.e what is planned to be stored.
What did Julia Child store? What was within easy reach. We'd guess the sixties afforded fewer gadget appliances, and she had no children, just DH , Paul. Quite an unfitted look.


@ Debbie W is right about "ask 100 and get 100 answers". This is the thread with no possible "Yes, do this!! " answer, no real consensus. Some suggestions will contain all that a poster would not want on view, some will forgive any amount of counter clutter. Clutter will make a few ( I am one ) incredibly nervous- others will be accepting of an extremely "active" appearance, as their own kitchen may be just as well used/busy....At the end of two weeks, there is little agreement as to what works best , beyond the Debbie.W interpretations- for getting things out of sight.
I would only ask in a sort of "kitchen couples therapy session sit down"..............
Clarify the method/s that will work. Only the op duo !! can answer with 100% honesty. If opening a deep drawer to access and then return to a given spot any item,, or even a simple door and same process shall equal bother, ........you should assess that reality/ outcome..
Storage demands money, whether a little or a lot. If OPEN roll out shelves beneath a counter top are the more logical easy access and return? Then you don't pay for a soft close 36" drawer that will be "too much trouble".
If an entire days worth of breakfast, lunch, and dinner appliances need to remain out and at hand, even a wall of inexpensive framing/ Home depot doors, for pantry "appliance" storage will fail - you can only store that which is clean. A hidden walk in pantry, for kefir/.sous vide/ dripping meat, yogurt creation, a sink... and out of sight of kitchen AND the most used garage entry ? Means letting go of current office.
Does that equal full circle to no? Maybe summon Julia C. Even the amount of light required is unclear - a battle between "blinding light" that must be/IS covered and the rotation of SAD appliance in compensation.
For my money? Replace asap , the failing dishwasher, the failing fridge, Start de junking and paring to what is 100% necessary in every area of that house, It would be a necessary task to even survive the remodel chaos. Save yet more money, and put the skids on all, until more clarity is forthcoming. Maybe it's simple "barn /slide"doors on a coffee /breakfast/grind/toast/tea. thing set up........maybe it is just rollout shelves. Perhaps it means a bump out and heated office beyond the garage.. Stay tuned.............................? : )
- last month
@Kendrah Thank you for that compliment! I am not as fancy or refined as many of the designers on here. Most of my experiences are making the most out of tight budgets and tight spaces. It is rare that I get to do huge kitchens with 10 ft ceilings and such. I have to take people's fantasy pinterest pictures and translate to a 12 x 12 kitchen taking a wall down to see the dining room!
I love Jan's comments - as usual!
To the OP - all the best to you. Don't stress - you will sort this and make it your own.
Rachael Southworth
Original Authorlast monthNot sure it changes anything but for those curious - current theory is put the coffee stuff on the station by the sliding door and the other daily appliances on the counter run from the fridges to the sink wall - which keeps them out of immediate sight when coming in.
I’m certain there are nicer solutions to the cooler and I have to think about it a bit but I will likely find something that fits in a cabinet.
I have tried multiple times to get rid of paper towels as a general rule unsuccessfully so if anyone has any brillant ideas on that open to hearing them. Where do all you super neat folks keep your ”cherry juice (or worse) just got spilled everywhere need to grab something quick” cleanup cloths? Those would be great to find a handy but put away home in the new space.
We don’t have an ikea so no i havent priced them out especially given that I would not be at all confident in my measurements to the extent of being able to order cabinets that fit. CNC from what I’ve read is considered a great quality for the money brand - is IKEA really considered better?- last month
Why try to hide that water filter? It's a kitchen. You use that special filter system. Put it on a counter that is convenient for when you use it most - ie for cooking? for coffee? for water bottles? Get a cool little stand for it and put it right next to the coffee bar - out of the way but close by.
We sold CNC for a while and had problems ( pre covid ). Did not care for how things were handled so we stopped selling them. I have no experience with IKEA but heard great things about them.
I would settle on a design first, then comparison shop the brands.
- last monthlast modified: last month
It's possible my brain is on malfunction , but I ask with all sincerity and no malice at all.

This, below..."current theory is put the coffee stuff on the station by the sliding door and the other daily appliances on the counter run from the fridges to the sink wall - which keeps them out of immediate sight when coming in."
I must ask....please make a list of what must be out. What will NEVER make it to storage, and do not lie.
Aside from pots, pans skillets and their lids. cookie trays , knives, cooking utensils dinnerware and flatwear , microwave containers, paper plates. and the ugly water bottles..what can realistically hide......other than food , oils and seasonings??
What are we "storing? vs what sits on a counter all the time. A room has FOUR corners and whether something is "on view on entry," or once inside? Matters little in your scenario.
Take a day,,,,make list, and pretend you are setting up shop in the new kitchen.
Paper TOWELS " Don't kid yourself, : ) They will be out and should be out. Do the other........together as a couple and make a list and agree to it.
No to the blue cooler, Please. Go back to the pictures, and no I am not begging a fancy pants" kitchen. I am begging one minus chaos.
Rachael Southworth
Original Authorlast month@Debbi Washburn sorry I should probably have clarified - the water filter is likely to be retired in the new space - we have had it for ages but we recently put in a whole house filter so I don’t think its actually accomplishing much other than as water storage. Its too tall to fit under standard uppers so there aren’t many places it would fit on the counters anyway (other than in front of the window). 🤷♀️
What are your favorite cabinet brands?Rachael Southworth
Original Authorlast monthIs this a reasonable ranking of cabinet quality? someone above says fabuwood is crap but this has it as an A in both quality and value (happems to have the same for CNC)?
- last month
If you have the budget , I like Plain and Fancy, Woodmode/Brookhaven, Omega/Dynasty. Semi custom - I like Medallion ( I have had them for 23 years ), Kraftmaid, Shiloh. A step below them - I sell a lot of Fabuwood, I also like American Woodmark. With these basic lines - you need to know what you are getting. Don't expect Cadillac when you are paying Ford.
This is another category you will get massive amounts of opinions.
- last monthlast modified: last month
See YouTube video review:
Spent 30 minutes on a layout for this..NOT polished. . conversation starter?




- last month
@Rabbitt Design - I'm curious how you would make these tweaks: OP wants TWO fill sized fridges in this kitchen. Seating for SIX at the island. And wants a full run of uppers and lowers to be used as a buffet so no end pantries along the "south" wall of the room (adjacent to the dining room and across from the window wall).
Also curious if there was a specific reason for the raised bar on the island. I have not seen those designed for a good decade. - last month
Rachel, I'm so confused. So you want to place all of your countertop appliances on the very usalbe counter space from the sink to fridge and leave the long buffet counter run totally empty, just for visual declutter?
I geniunely appreciate the desire to declutter, but I suspect that buffet is going to become a major dumping ground if you don't have a dedicated use for it. Also, you purchased a home with a big workhorse of a kitchen, there is nothing wrong with it looking like an active workspace.
Look at the rest of your home. It is a place where kids have a bagillion belongings, your family crashes out in the living room, your office is jam packed. You are a real family who likes to experience life. Your countertop appliances are part of living that life. Embrace it the way you embrace the full activity in the rest of you home. Go for it! - last monthlast modified: last month
Yay to the beautiful raised bar on the island. @Rabbitt Design 🙌🙌🙌🙌
It seems to be a felony on this board- but still desirable for some folks.
I’m not a huge island fan, for the most part - unless they are located in the Caribbean. But imo a raised bar on a kitchen island is the way to go. And I do think this is a matter of personal preference. - last monthlast modified: last month
Just skimmed a bit of OP’s post and I am thinking some of these details might have factored into @Rabbitt’s island design:

- last month
Major league Rabbitt talent : ) especially in 30 minutes!
I'd 100% agree with the single window, I posted that above as the gain in flexibility far outweighs cost. . I agree as to Full height at entry points. but either step back to 15" ( more than enough for food stuff, and most appliances.
You don't need more than a 36" cooker. ....
and I'd get the dw to left of the sink, and out of path from range to sink, a small issue
Anything is possible with money, and that kitchen far exceeds a 100k budget and even 150K and I doubt he had time to digest the entirety of a few weeks of comments.
That is just one reason for in this particular scenario? Replace the failing appliances leaking water , or not cooling...and step back for a bit. . But he gave you a gorgeous 200k kitchen!
- last monthlast modified: last month
@Kendrah Hi-Lo because if I am being perfectly honest, OP has kids, has clutter, and is tied to the outside. It's hard to snack and eat on a messy island, the hi-lo gives some division as well as some outlets since I heard a bit about all of the appliances being used...I tend to blank out a lot of the design worlds trends..if something seems practical I am still going to do it :) Also for Kendra, In the YouTube video I say that I wouldn't want the pantries on that south wall either...totally agree w/you and OP
@freedomplace1 - I wish I put a hi-lo in my moms home, she is the messy cook...when I visit, we eat in the dining room looking at a MESS from the kitchen, haha.
To the OP. Seating for 6 at the island...buy a different home :) (Meant as a jest, sort-of, please dont take offense) Or save your pennies and add an addition.
Could we slam 6 in there, sure...I wouldn't. It seems like you also want room to cook. You could tighten the lane to the ext wall to add some end seating..but it just gets real tight with kids running around with basketballs n toys n such. Islands aren't for formal meals, they are for grab and go...I've never been to a home that had 6 people sitting at an island at once.
@JAN MOYER Thank you as always, I am alwyas more likely to do some work if you are in the thread, haha no lie..it usually means to me that the thread is worth looking at.
You were right about the comments...I ran them through chatgpt and got a 150 word breakdown..things were definately missed
- last month
I see the point of a hi-lo in an open concept if you want to hide the mess. But then again, if I want to hide a mess in an open concept, I'd build a wall and close the kitchen :) I think hi-lo's are a real PITA because things fall off the ledge and it breaks up the workspace.
- last month
@Rabbitt Designt has THE absolute best software of any architect on this $$$$!!!
If you can imagine it, he can bring it to life..right below his tool box are those of @ Debbie Washburn.
I love to ask this question of clients for any room in the house- but especially when we get to the I must have issues and not ALL of what I must have can be contained, or contained attractively:
"When you rent a condo for a few months, such as Florida for the migration snowbirds, and you finally tire of traffic, reservations, dinner at the early bird hour to avoid the traffic, or just want to stay in and COOK? Do you starve, ? Don't you now and then wonder how you made a great meal with so little stuff in that condo kitchen?
I'm of the belief that it is very wise to thoroughly purge a kitchen well before you even begin planning it. You'd be amazed what hides in there, especially those seasoning and canned good dates, beat up skillets you haven't touched.. that kind of thing. The bundt cake pan you haven't used since you can't remember lol
- last month
^^^
I think Kendrah isn't seeing the island correctly? That plenty of "dining" surface, no the dated /dreaded 12" overhang and bar stools from 1999
As to where to eat? She already stated she "doesn't require" table height in the kitchen.and has a big dining room with TWO entry point to the kitchen.
She has to ask,,,,,what day to day reality of three meals, a work from home Mom,,,,shall demand and be honest about the need.
Rachael Southworth
Original Authorlast month@Rabbitt Design the video is super cool and the design definitely has me thinking! Several designs have tried to out the stove on that wall and i just couldn’t picture it not being a dark cramped cave (it’s REALLY dark over there right now because there are no lights other than the ones over the pennisula) because all the designs were putting oantry cabinets on the end there.
Its an interesting point about the split island but I don’t see that working with young kids the bar height is just way too high for them to use and they are the primary users of the pennisula seating at the moment - but I will ponder further.
The kitchen is already over 400 sq ft - there is basically no more property to expand into and I could never see that as being worth the cost - I thought the 6 stools fit pretty well in Debbie’s design - are you saying those ones on the end are likely to stick out too much in the traffic lane? When we host even when the dining room is set up people like to cogregate in the kitchen if anything is happening in there so we have had people sitting on the bench in the 3 stools we have and standing too - so if there were more chairs I imagine they would have used them - but you are probably right that 90% of the time we wouldn’t use 6 at once.
The beam looks so nice in your design but its only about 82” off the floor (basically standard doorway height) if I remember correctly and its about 19” wide in the actual kitchen so i would love inspirations on how to intentionally incorporate it in the design but painting it ceiling color seems to help it blend more so love that idea!
I’m also curious why no cabinets on the one wall with the slider that bumps in - I’ve been calling it the left wall with your oven wall being the top wall.
Definitely a conversation starter!Rachael Southworth
Original Authorlast month@JAN MOYER No iI don’t stave when I cook in other kitchens but I also brought my pressure cooker and sous vide on vacation when knew we would be cooking a lot.
I like having the equipment that makes cooking easier and more enjoyable to me. Do I have tons of pans I rarely use? Yup but I like knowing I have a bundt pan if and when I need one. I think this may be a to eat their own thing.
Yes some purging will be necessary and it’s in progress but I don’t see it significantly changing my thoughts on the design.- last monthlast modified: last month
Wise Washburn words below
"A very smart designer once said " you may design your new space to solve all of your problems, but you can't design a change to habits" .
"OP.........: )
"No iI don’t starve when I cook in other kitchens but I also brought my pressure cooker and sous vide on vacation when knew we would be cooking a lot."
The comfort/familiarity of home while on a vacation? ! Okay..........but.
A pressure cooker taken on vacation along with a sous vide? Is a comfort I don't understand., or I need a new definition for"vacation".. Seems akin to insisting on towering spike heels on the cobblestone streets of Florence, Italy.
If vacation was 6 months in a rental mountain lodge? I'd gift the owners of the lodge a pressure cooker and a sous vide, via Amazon/delivered, and then ask whether to leave or toss when I left..
I think you see my point, or just read those Washburn words, yet again.
What in the pics below can "go"? Basically nothing...
What can be hidden and retrieved when necessary, and stowed when not in use as we use it every day, all day. Not much.

Reality is just below.
The slider has to go, as two Kitchen Pro's have told you. After that is anyone and everyone's guess. Because the habits are not going to change, nor the stuff. This is called a roadblockIt's me seeing .......reality .
- last month
SIde note on the island - you can make an overhang whatever size you need. You MUST plan for the proper support of the stone. A 12" overhang will not allow a full chair to be pushed in ( the seats on those are roughly 15 -18" deep. That is why folks prefer a deeper overhang. This is also why designers are very pushy about proper walkways - that way you aren't tripping over the chair legs.
- last monthlast modified: last month
- Your existing kitchen is dark for a number of reasons. I don't know your location or the orientation of the house but a new bigger window at the sink will bring in some ambient light and then better lighting may help with the rest. A BIG reason why most of us designers won't design a kitchen without seeing the floor plan for the entire house including the lot and orientation is because we may be able to find things you didnt othersiwe think of.
- The hi-lo was specifically because of the mess I see in your home. I have the luxury of sitting comfortably at my desk without risk of getting bopped on the head so I will tell you what was on my mind and what Jan is dancing around...This house is MESSY and CLUTTERED. I know nothing about you and your family, if you were my client I would take the time to get to know you, but at a snapshot...The hi-lo would make those rug-rats sit with intention and might even slow them down for a second. Also it create a barrier which will force you out of space and into cleaning. Frankly, I dont want you to have a big island countertop for you to accumulate more things on
- Regarding an addition, again I dont know where you live, but if it costs ~$300/sf to build and homes in your area sell for ~$400/sf, adding 100 sq ft costs about $30k but can add roughly $40k in value…that ~$10k difference becomes equity in your home. How strong that play is depends on your HELOC or line of credit rate…if you’re borrowing at a low rate, you’re essentially using cheaper money to create higher-value equity etc. etc.
- That’s not actually your beam…it is a beam that has been furred out to match the soffit depth as a design choice(A bad one), which is why it reads so heavy. The real structural beam is likely under ~8" wide, and I could confirm that with the second floor plan. Unless its hiding duct work..
- I left that wall alone because you dont need cabinets there. You have plenty of cabinet box volume in what I provided. Use it for art, or for a tasteful piece of furniture. This kitchen has plenty of kitchen storage, you'll be surprised at what a bunch of 3 drawer bases and pullouts can provide.
- This really should be number 1. Getting a new kitchen will not solve a very big Core problem which is organization and clutter. Jan was saying this in a polite way. There are indications all over this kitchen that a new kitchen will just end up functioning just like the old. You dont need 5 million water bottles. A bottle or basket on a top shelf of a cabinet that can only be reached from a countertop means its not being used, throw away whatever is in there. You DONT need it. Your display cabinet is taped shut, and nothing in there looks beautiful... throw that entire thing on a dolly and haul it off. You only need 3-4 good cooking knives, get rid of whatever else is hanging on your backsplash. Home depot buckets do not belong in kitchens. Do things that force you to make decisions based on the intention of being organized. Buy slender and beautiful oil containers and refill them as needed.(Might even help you cook with less oil) Get rid of the industrial rubber mat, build habits that circumvent the need for that mat(Stop throwing food on the floor??)..ditch your sous vide and invest in a steam oven instead(spoken from a sous vide user). ..OR a range that has an integrated Sous vide.
- Start practicing now.
- First, second and third, practice Mise en place
- Fourth, CAYG. as you are cooking, starting washing your tools and cleaning surfaces
- Watch Marie Kondo practice what she preaches. Create systems for yourself. Organize based on those systems. Re-think your approach. Fix broken things as you go...permanently. remove things you dont need(Put them in a bin and store them in the garage and if you dont miss them in 6 months throw them out.)
- Remove everything from that kitchen that isnt kitchen related
- Get rid of the backsplash racks and place your chopping blocks there instead
- Get someone to reverse the hinge side on both of the doors on the wall cabinet over your peninsula, it will make that cabinet infinitely more useful despite being odd.
- Change your knobs to pulls and use them for hanging dish rags
I'm saying all of this for one very important reason, someone in this house is continuously suffering from cognitive and attentional load, as well as environmental stress and its interfering with executive function. This room is stressful...and you're not alone, I myself practice alot of what I am preaching here.
All this meant with love, dont bop me
I switched some things around, much bigger pantry, 36" cooktop, combo steam oven, smaller sinks, bigger window etc


- last monthlast modified: last month
^^^
Perfectly stated @ Rabbitt Design, zero bops should be forthcoming as NO BOP is deserved when truth has been offered up with the solutions politely stated.
Beautiful rendering yet again,
This statement below will go in the annals of Houzz dilemma .history:
"Jan was saying this in a polite way. There are indications all over this kitchen and she was dancing around .............."
History made. I am now recovering from the fall off the desk chair. : )

- last month
@Rabbitt Design - Where is the second full fridge, space for two sous vide machines, and multiple other appliances, a storage box for exploding keiffer?
I do think the OP has been honest about using a boatload of appliances and devices, and is being very realistic about the fact that her husband doesn't put things away and she wants to place items in areas where he uses them.
I would never want this much clutter in my kitchen, but she is at least honest about how she lives.
Regarding the beam, I too asked about it being furred out to match the rest of the bulky ceiling features and the OP replied:
"Yes the beam is pretty large - its about 19" wide and I think the clearance is like 82" or something, yes we have looked inside unfortunately it can't get any smaller it is full of the steel beam supporting the house as well as ducting and plumbing."
Also, she intends to home school and lead a lot of activities 4H, Girl Scouts, plus they use a kitchen like homesteaders. - last monthlast modified: last month
^^All stated Kendrah above is just fine!!! as long as you accept the fact that the 100k ( realistically need 50K more, even with budget cabinetry) will essentially be the same mess., without broken cabinets and appliances. Active isn't the right word.........I know many "active" kitchens, This is way beyond active. There can be no hide; it simply won't happen. .Sorry in advance. The less polite version. Bop me, Mark. : ) or whomever.
Basically it's saying... Gee, I look FAT!, so I think I'll have a quart of ice cream and a dozen cookies! , but I'll change the packaging!"?
- last month
I totally agree that this finished kitchen is not going to be a tidy place, they they will have to either increase the budget and/or get very cheap cabinets, and/or build less expensive pantry space. It will be a trade off they have to figure out.
I was surprised by later on in the thread that the OP had a desire to "hide" countertop appliances and not have them visible. I don't think that is realistic nor even sensible given the kinds of activity that happen in this space and the husband's unwillingness to put things away.
Yes, active kitchens can be very tidy. This is going to be a very active kitchen that is not going to be tidy, yet there can be a place for everything, and the chaos can likely be more optimally controlled than it is now. I think @Debbi Washburn 's design did that.
I too fell off my chair that the suggestion that you politely dance around anything. Your candor is your trademark @JAN MOYER ! - last month
@Kendrah I did not read through this entire thread, so I am coming at this late, thank you for catching me up on a few things.
- Second Full Fridge - seems as if it affirms my feeling on this project, that the need for a second fridge is because the first fridge is being treated as a disorganized catch-all. Homesteaders...put a big freezer in the garage.
- That steam oven, when learned and used properly, is going to take the place of the sous vide and pressure cookers. If they can afford it, I would push for the range with integrated sous vide so there is one sous vide and one steam oven, and that leaves two regular ovens.
- Steel? That’s great news. Steel is typically sized smaller than commodity lumber, so it seems they were tucking in the ducting for that exhaust hood, which is getting moved anyway. Joists run perpendicular to the beam, and there are already drain lines and vents on the outside kitchen wall, so the plumbing can turn a corner. This confirms to me that we can size the box-out down considerably. Would be helpful to see a second story floor plan to confirm.
There is plenty of room to maneuver in larger capacity fridge and freezer on this elevation:

There is plenty of room on this elevation to hide all manner of things:

Island could be re-arranged after doing a census on prep station inventory etc.
Plenty of storage and room here. A lot of different ways to set this elevation up.
and plenty of long term storage on the back and sides of the island

and last but not least:

- last month
The place for "everything" to 90% is on the counters. This is a very CIRCULAR thread.....
- last monthlast modified: last month
Having followed this thread, @Rabbitt Design is almost saying what many may be thinking- no ,matter how this kitchen is redone the OP will still have a space that does not function in the way that they wish. There is no magic answer to so much clutter and *seeming* disinterest in assessing issues that should be addressed to have a more peaceful environment. Consider saving the money and take your kids on vacations or for enrichment activities.
- last month
Hire a kitchen organizer:
Get the space under control, before spending 100K plus on a remodel. And if you do get it under control- you will likely not need to spend 100K on a remodel.
Rachael Southworth
Original Authorlast month@freedomplace1 no matter what the kitchen is in desparate need of a remodel. The floors are straight up dangerous (we suspect they may be wall tile and they are not installed correctly), the cabinets are on their last legs and the appliances are too. Organization will not fox any of that.
@Kendrah @Rabbitt Design we do have a fridge and chest freezers in the basement (we buy whole animals at different times throughout the year). We were kind of seeing the 2nd upstairs fridge as a replacement for the basement one but are reconsidering if we really need 2 upstairs.
@Rabbitt Design I will look at a steam oven but I suspect that I am not ready to make the leap on something complex like that built in (also not planning an ice maker in our fridge for the same reason)- I favor dumb but reliable in my built in equipment - I suspect I can buy a LOT of sous vides for the premium of a steam oven especially if it were to break down.
The cabinets are taped shut because they are all full of glass and the cabinet locks broke and my youngest immediately chucked glasses on the floor shattering them absolutely everywhere - we don’t need the fancy glassware or vases that often so its not a big deal to just take the tape off - which is what we do. I’ve already specified with every contractor no glass front cabinets. Cabinets are for storage.
General question for folks - if I collected wine or fine china or fill in the blank with fancier ”acceptable collectible” would your solution be get rid of my wine collection? Or would you propose ways to make it part of the space?
Do I use my Smoking Gun more than a couple times a year? No, but why is the answer throw it away? So what I’m supposed to buy a new one every time I want to use one? Do I need 2 pressure cookers most of the time, nope! But it’s great to have when I do and what harm is it doing stowed away most of the time?
I enjoy my kitchen tools and keep them in the kitchen which seems logical to me.- last month
If you collected wine or fine china, we'd expect that you'd want to display that in a nice functional manner. Open shelves or a built in china cupboard or wine rack, and the folks offering suggestions here would have taken those wishes into account.
And with regards to 2 pressure cookers - have as many as your heart desires but when they are not in use, it would make sense to have proper storage for them, out of the way of your regular workflow in the kitchen. In my experience, if things have a home, then you are more likely to put them away when you're done using them. If they don't have a home or it is too much trouble to find a spot for them, then they end up as clutter on the counter and pretty soon you're taking a hot pan of cookies etc out of the oven and there is no space to lay it down safely. With small children around - it is that type of thing that can lead to accidents.
If you do have fancy drinkware (that your child hasn't broken) then you'll want to ensure that those items are stored above floor level. That could be in some of the pantry cupboards that have been suggested. If they include wine glasses then the shelves can be customized so that some of the glasses could hang from their stems. If the need for that type of storage exists, then please specify it with your kitchen designer.Specify if you want some tray and cutting board storage as well. Small things like that make a kitchen really functional and a good designer will be able to provide you with storage items and pullouts that you would never dream of on your own - the possibilities are endless and amazing.
Folks here are trying to help and have offered some wonderful solutions and ideas and taken the time for floor plans etc. It seems at every turn you've found a reason why the suggestions won't work and further seem to have taken offence to the suggestion that your home has a lot of excess stuff around that needs good storage.
Please try to open your mind to the ideas and solutions being offered instead of coming up with reasons why none suit you.
Engage a kitchen designer that you trust and list out all of the items you require and your wish list items. Be realistic with your budget and start making decisions, since you state that your kitchen has some dangerous issues at this time, and failing appliances. Once you've finalized a floor plan, there are still a huge amount of decisions to be made for cabinets, style and colour, counter choices, pulls and handles, appliances, sinks and faucets, floor tile, paint...possibly new windows and doors. Unless you know what you want it takes quite a bit of time to source all those items and find what you want. It can turn into decision overload if you can't make a decision and move on to the next thing. You seem to be at that point with your planning. Finalize and make decisions so you can move onto choosing finishes. Otherwise your project will never make it to the starting line.
Change starts with you for this project. If you are unable or unwilling to make changes, then it is unlikely that your project will be successful. And this is a big budget to make mistakes with.











Debbi Washburn