Before and After: 19 Dramatic Bathroom Makeovers
See what's possible with these examples of bathroom remodels that wow
Maybe it’s that 1980s soaking tub with the giant surround, or maybe you’re prepping for resale, or perhaps an overhead flood is to blame. Maybe it’s just time for a change. Whatever the motivation behind them, bathroom renovations are one of the projects homeowners put the most effort and investment into. Here are 19 of the most dramatic before-and-after bathroom stories from Houzz, from budget-friendly to luxe.
Related: How Much Does a Bathroom Remodel Cost?
Related: How Much Does a Bathroom Remodel Cost?
After: Interior designer Karen Goodman had resale in mind, as she was redoing the house to flip. But it was important to her to preserve and restore the original 1902 feel. She found a claw-foot tub at the Habitat for Humanity ReStore and painted it green, added a wall-hung sink and used subway tile befitting the home’s turn-of-the-century aesthetic. A unique shower curtain adds color and personality, while the classic fixtures have widespread appeal.
Great tip: Goodman shared her philosophy about painting the original wood with Houzz contributor Annie Thornton. “If it’s painted, it’s getting painted. If it’s wood, it’s staying wood,” she said. “It wasn’t my place to decide what should be wood and what shouldn’t be in a place I don’t plan to call home.”
Shower curtain: Danica Studio; tub paint: Moss Green Rust-Oleum spray paint; claw-foot tub: Habitat for Humanity ReStore
See the rest of this bathroom makeover
Great tip: Goodman shared her philosophy about painting the original wood with Houzz contributor Annie Thornton. “If it’s painted, it’s getting painted. If it’s wood, it’s staying wood,” she said. “It wasn’t my place to decide what should be wood and what shouldn’t be in a place I don’t plan to call home.”
Shower curtain: Danica Studio; tub paint: Moss Green Rust-Oleum spray paint; claw-foot tub: Habitat for Humanity ReStore
See the rest of this bathroom makeover
2. Dilapidated 1970s Bathroom Gets Inspiration From a Dilapidated Mansion
Before: The state of the bathroom in this 1912 Colonial-style home in New Jersey was sending the whole family up to the third floor to use the facilities because they couldn’t stand the cracked tiles, 12-inch-high tub, awkward layout and dated colors in the main bath. While walking through a once-grand old house during an estate sale and seeing its fabulous colors and tile patterns, homeowner Jody Suden had a clear vision for the bathroom makeover in her own home.
Before: The state of the bathroom in this 1912 Colonial-style home in New Jersey was sending the whole family up to the third floor to use the facilities because they couldn’t stand the cracked tiles, 12-inch-high tub, awkward layout and dated colors in the main bath. While walking through a once-grand old house during an estate sale and seeing its fabulous colors and tile patterns, homeowner Jody Suden had a clear vision for the bathroom makeover in her own home.
After: Interior designer Tracey Stephens worked closely with Suden to help her achieve her vision, using classic fixtures and completing lots of complicated tile drawings to get the details just right. The tiles are based on historical patterns and colors and were handmade in Arkansas by American Restoration Tile.
The overall style suits the home’s age and style, mixing mint green, white and black with vintage apothecary style.
Great tip: Even if you have a strong idea of what you want your room to look like, hiring a designer is key — you just have to find one who gets it. Suden told me she couldn’t have done it without Stephens, who told me she considered herself the “midwife” helping Suden achieve her vision.
See the rest of this bathroom makeover
The overall style suits the home’s age and style, mixing mint green, white and black with vintage apothecary style.
Great tip: Even if you have a strong idea of what you want your room to look like, hiring a designer is key — you just have to find one who gets it. Suden told me she couldn’t have done it without Stephens, who told me she considered herself the “midwife” helping Suden achieve her vision.
See the rest of this bathroom makeover
3. The Bathroom Where 2 Doctors Take Deep Soaks After Long Days
Before: This Cincinnati bathroom was dark, dated and awkwardly laid out. Because of a lack of smart storage, the countertop had become a magnet for clutter.
Before: This Cincinnati bathroom was dark, dated and awkwardly laid out. Because of a lack of smart storage, the countertop had become a magnet for clutter.
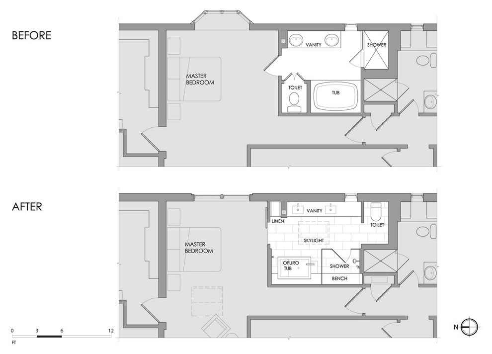
After: Architect Ryan Duebber stole about 16 inches in length for the bathroom from the master bedroom, then moved the toilet to the back of the room. This allowed space for a spacious shower and a Japanese soaking tub.
The sapele wood at the back of the room draws the eye and makes the room look deeper, while a new skylight, lots of reflective white, clear glass, a floating vanity and a strategic lighting scheme bathe the room in light. (For example, check out the glow on the floor provided by the LED tape lights underneath the vanity.) In addition, there’s a place to store everything so the counters can stay clean, maintaining the minimalist look the homeowners love.
Great tip: Having a specific place for everything you use in the bathroom will keep the clutter at bay. Give it a lot of thought early on in the design process. Where will your hairdryer go? Which products do you use every day in front of the mirror? Are you a toothbrush-out or a toothbrush-put-away kind of person?
See the rest of this bathroom makeover
Great tip: Having a specific place for everything you use in the bathroom will keep the clutter at bay. Give it a lot of thought early on in the design process. Where will your hairdryer go? Which products do you use every day in front of the mirror? Are you a toothbrush-out or a toothbrush-put-away kind of person?
See the rest of this bathroom makeover
After: Taking over an unused terrace space gave architect Holly Hulburd plenty of room to work in a new bathtub, a generous separate shower stall and a long vanity complete with dressing table. The room is a study in lines and scale, from the way the tub surround extends into a shower bench to the careful use of different sizes of rectangular tiles.
Great tip: When using strong lines, lining things up is important. In order to have the tiles meet the ceiling and floor without any cuts, Hulburd dropped the ceiling a little to make the geometry work.
See the rest of this bathroom makeover
Great tip: When using strong lines, lining things up is important. In order to have the tiles meet the ceiling and floor without any cuts, Hulburd dropped the ceiling a little to make the geometry work.
See the rest of this bathroom makeover
5. The Bathroom That Makes the Most of Burgundy Floor Tiles
Before: For the 2012 D.C. Design house, Christopher Patrick decided to embrace the existing tile and plumbing configuration in order to stick to a budget.
Before: For the 2012 D.C. Design house, Christopher Patrick decided to embrace the existing tile and plumbing configuration in order to stick to a budget.
After: He chose a neoclassic wallpaper that complemented the burgundy tones in the floor, and added a more modern vanity to blend old and new.
Setting the sink and mirror asymmetrically on the right side of the vanity left ample room on the counter.
Great tip: Don’t get stuck in a bathroom design rut. Patrick had an “antibathroom” attitude, styling the room more like a living room or den and adding open shelves instead of a typical medicine cabinet.
See the rest of this bathroom makeover
Setting the sink and mirror asymmetrically on the right side of the vanity left ample room on the counter.
Great tip: Don’t get stuck in a bathroom design rut. Patrick had an “antibathroom” attitude, styling the room more like a living room or den and adding open shelves instead of a typical medicine cabinet.
See the rest of this bathroom makeover
6. Adding Laundry Makes Way for a Guest Room in a Toronto Pied-à-Terre
Before: The converted loft in this 1905 eyeglass factory offered a decent-sized laundry room that didn’t get much use, but it didn’t have an extra bedroom. By integrating the laundry into the bathroom, there’s now room for guest bunks in the former utility room.
Before: The converted loft in this 1905 eyeglass factory offered a decent-sized laundry room that didn’t get much use, but it didn’t have an extra bedroom. By integrating the laundry into the bathroom, there’s now room for guest bunks in the former utility room.
After: This shows the opposite wall from the one in the “before” photo; to see the complete makeover, click over to the story. Architect and designer Gillian Lazanik removed a linen closet and planned a layout that made the most of the space. This included room for a stackable washer-dryer and a new walk-in shower stall with a clear glass divider that opens up the room.
Great tip: This one also concerns an atypical medicine cabinet. Lazanik had experience in marketing and advertising. Using what she knew about printing, she had artwork printed on vinyl and wrapped the cabinet in it. The cabinet is completely camouflaged as a painting when its doors are closed.
See the rest of this bathroom makeover
See the rest of this bathroom makeover
7. Mixing Old and New in Big Easy Fashion
Before: In this vintage Metairie, Louisiana, home, a bedroom with a tiled floor was converted into the master bathroom. The construction was part of remodeling a two-family condo back into a single-family home. Here you can see the original barge boards, a building material common to the region back in the day. They boards were repurposed from Mississippi River barges.
Before: In this vintage Metairie, Louisiana, home, a bedroom with a tiled floor was converted into the master bathroom. The construction was part of remodeling a two-family condo back into a single-family home. Here you can see the original barge boards, a building material common to the region back in the day. They boards were repurposed from Mississippi River barges.
After: The homeowners and Machi Medrzycki of construction company MLM approached the project as a combination of old and new. He kept the inoperable fireplace, barge boards, and doors and transoms to honor the home’s age. A claw-foot tub and made-to-look-vintage vanities add to the feel.
See the rest of this bathroom makeover
See the rest of this bathroom makeover
Great tip: Embrace a home’s history but don’t be burdened by it. Keeping the fireplace, barge boards and even the marks from the fire all ground the home in the past, but it’s also OK to move on.
As is common on Houzz, this project had mixed reviews, with some people loving the contrast of the modern shower and unorthodox bathtub placement while others felt something was “off.” As a fan of Big Easy style, my analysis is that a lot of what makes this region’s style unique is juxtaposition, flavor and character that you don’t see anywhere else in the country. This wonderful blend fits the bill.
As is common on Houzz, this project had mixed reviews, with some people loving the contrast of the modern shower and unorthodox bathtub placement while others felt something was “off.” As a fan of Big Easy style, my analysis is that a lot of what makes this region’s style unique is juxtaposition, flavor and character that you don’t see anywhere else in the country. This wonderful blend fits the bill.
8. Reclaiming Old Hollywood Glamour
Before: There’s no doubt about it, the bathroom in actress Renée Felice Smith’s Los Angeles bungalow had great Old Hollywood style. But a knee-busting layout, elbow-knocking small shower stall and damage meant an extensive renovation was needed. You’ll be glad to know that designer Laura Schwartz-Muller of Four Point Design + Construction was able to salvage pieces like the tub for use in other parts of the house.
Before: There’s no doubt about it, the bathroom in actress Renée Felice Smith’s Los Angeles bungalow had great Old Hollywood style. But a knee-busting layout, elbow-knocking small shower stall and damage meant an extensive renovation was needed. You’ll be glad to know that designer Laura Schwartz-Muller of Four Point Design + Construction was able to salvage pieces like the tub for use in other parts of the house.
After: Smith loved the idea of keeping some nods to the former bathroom while incorporating a more convenient tub-shower combo. She also loves flea market finds and reclaimed wood. Schwartz worked with her to blend these and more contemporary elements.
Though the vintage-looking faucets and fixtures are new, the lighting and accessories came from sources such as consignment and thrift shops, the Melrose Trading Post, a stoop sale in Brooklyn, Liz’s Antique Hardware in Los Angeles and Etsy. The final look embraces the 1920s while bringing it up to date.
Great tip: When opting for a marble floor, a smaller tile and a honed finish will mitigate the material’s slipperiness.
See the rest of this bathroom makeover
Though the vintage-looking faucets and fixtures are new, the lighting and accessories came from sources such as consignment and thrift shops, the Melrose Trading Post, a stoop sale in Brooklyn, Liz’s Antique Hardware in Los Angeles and Etsy. The final look embraces the 1920s while bringing it up to date.
Great tip: When opting for a marble floor, a smaller tile and a honed finish will mitigate the material’s slipperiness.
See the rest of this bathroom makeover
9. Victorian With Many Modern Twists
Before: These homeowners were tired of trying to shower in a claw-foot tub without splashing water everywhere or falling over. They were also craving a more modern style for the bathroom in their Victorian-era home.
Before: These homeowners were tired of trying to shower in a claw-foot tub without splashing water everywhere or falling over. They were also craving a more modern style for the bathroom in their Victorian-era home.
After: Eliza Hart of Hart Wright Architects used an adjacent water closet and a linen closet to reconfigure the space in a way that allowed for a shower stall as well as a claw-foot tub.
For the decor, she used elements that would have been common during Victorian times: marble, hexagonal tiles and walnut, but she used them in more modern shapes and patterns. The clients also opted for a wallpaper that resembles a damask but upon closer inspection is composed of cowboys and oil wells.
See the rest of this bathroom makeover
For the decor, she used elements that would have been common during Victorian times: marble, hexagonal tiles and walnut, but she used them in more modern shapes and patterns. The clients also opted for a wallpaper that resembles a damask but upon closer inspection is composed of cowboys and oil wells.
See the rest of this bathroom makeover
Great tip: Don’t be afraid to personalize your bathroom. These homeowners wanted wall-mounted shelves so they could enjoy some of their favorite objects and artwork in the bathroom.
10. Binoculars Win the Most Valuable Tool Award During This Makeover
Before: Homeowners Obbie and Connie Atkinson did the bulk of the work converting this canning porch into an inviting farmhouse-style bathroom themselves, spending only about $3,500. They saved in all kinds of inspiring ways. For example, Connie spied the perfect 1930s sink she’d been scouting online across a river, thanks to her handy binoculars. Obbie fetched it, hauling it across the river and a field to get it to the car.
Before: Homeowners Obbie and Connie Atkinson did the bulk of the work converting this canning porch into an inviting farmhouse-style bathroom themselves, spending only about $3,500. They saved in all kinds of inspiring ways. For example, Connie spied the perfect 1930s sink she’d been scouting online across a river, thanks to her handy binoculars. Obbie fetched it, hauling it across the river and a field to get it to the car.
After: Other great finds give the bathroom wonderful character, inspired by the communal bath in Yosemite National Park’s Wawona Hotel. With lots of elbow grease, a claw-foot tub that had been sitting in the couple’s chicken house for seven years became a wonderful place to bathe the grandkids. They reclaimed the vanity’s legs from an antique dining table and topped it with an Ikea counter they painted. The door (not seen here) was a yard sale find.
Great tip: If you’re doing a lot of DIY work in a bathroom, it’s important to know when to call in a pro. The Atkinsons knew when to hand tasks over to experts, such as electricians and plumbers.
See the rest of this bathroom makeover
Great tip: If you’re doing a lot of DIY work in a bathroom, it’s important to know when to call in a pro. The Atkinsons knew when to hand tasks over to experts, such as electricians and plumbers.
See the rest of this bathroom makeover
After: Interior designer Kristina Crestin looked to a man with throwback gentlemanly style for inspiration: Neal Caffrey, the character played by Matt Bomer on the USA Network’s White Collar. Crisp baseboards, classic subway tile and just-right hardware are inspired by bespoke tailored menswear.
Great tip: Think beyond the usual bathroom textures. The floor tiles Crestin chose add contrast, grounding the room in a texture that recalls well-worn leather armchairs in a men’s club.
See the rest of this bathroom makeover
Great tip: Think beyond the usual bathroom textures. The floor tiles Crestin chose add contrast, grounding the room in a texture that recalls well-worn leather armchairs in a men’s club.
See the rest of this bathroom makeover
12. Mom and Daughter Decide to Give Up the Bathtub
Before: This bathroom had become dangerous. Electrical problems and loud clanking noises had a mother and her 9-year-old daughter wondering when disaster would strike.
Before: This bathroom had become dangerous. Electrical problems and loud clanking noises had a mother and her 9-year-old daughter wondering when disaster would strike.
After: Because the family preferred showers to baths, it decided to get rid of the tub to fit in a roomy shower. The clear Starphire glass shower door makes the room look bigger and makes the most of the light streaming in from the window.
In order to stick to a tight budget, builder Bill Fry found a remnant piece of Caesarstone for the counters and used inexpensive tile around most of the bathroom. The pricier recycled-glass accent tiles were used sparingly but pack a strong design punch.
Great tip: Customize standard tiles. Here, the black squares that came with the floor tile were punched out and replaced with recycled-glass tiles from the accent tile.
See the rest of this bathroom makeover
In order to stick to a tight budget, builder Bill Fry found a remnant piece of Caesarstone for the counters and used inexpensive tile around most of the bathroom. The pricier recycled-glass accent tiles were used sparingly but pack a strong design punch.
Great tip: Customize standard tiles. Here, the black squares that came with the floor tile were punched out and replaced with recycled-glass tiles from the accent tile.
See the rest of this bathroom makeover
After: Anderson was drawn to the wet-room designs he had experienced living in Japan, and designer Michelle Fee of Change Your Bathroom was able to make the most of the space with a reconfiguration that placed a free-standing tub-shower combination at the far end of the room. A stacked-stone wall gives the bathroom a strong focal point, while pebbled tile feels wonderful underfoot and provides good traction.
Other improvements included replacing French doors with shoji screens and adding a large floating vanity with lots of storage, undercabinet lighting and a ceiling speaker that can be controlled by smartphone.
See the rest of this bathroom makeover
Other improvements included replacing French doors with shoji screens and adding a large floating vanity with lots of storage, undercabinet lighting and a ceiling speaker that can be controlled by smartphone.
See the rest of this bathroom makeover
Great tip: Think about night light. The undercabinet lighting in this bathroom is motion-controlled and turns on during late-night visits.
14. The After-the-Flood, Art Deco-Inspired Makeover
Before: After an overflowing toilet upstairs caused a flooding disaster, homeowner Liz Weingart had to dry out her New York City bathroom and start from scratch. Acting as her own designer, she spent months planning every inch and sourcing the right pieces.
Before: After an overflowing toilet upstairs caused a flooding disaster, homeowner Liz Weingart had to dry out her New York City bathroom and start from scratch. Acting as her own designer, she spent months planning every inch and sourcing the right pieces.
After: Because of co-op rules, all of the plumbing had to remain where it was. And because Weingart had lived with the old bathroom for so long, she knew what worked for her. She chose a non-standard vanity just 21 inches wide, knowing anything bigger would crowd the toilet too much. (Speaking of toilets, she took her tissue box with her to showrooms to make sure it wouldn’t slide off a curved top.)
The decor was inspired by her love of the Art Deco hotels in Miami’s South Beach. She added photos of some of her favorites and chose light gray for the walls and tile and silvery finishes for the hardware, faucets and other accessories to create a Deco-inspired feel. The result is a fresh bathroom that now feels bigger than its 5-by-7-foot footprint.
Great tip: Hire a designer. While Weingart did a fantastic job herself, she admitted that the choices were overwhelming sometimes and that the process could have gone a lot faster had she hired someone.
See the rest of this bathroom makeover
The decor was inspired by her love of the Art Deco hotels in Miami’s South Beach. She added photos of some of her favorites and chose light gray for the walls and tile and silvery finishes for the hardware, faucets and other accessories to create a Deco-inspired feel. The result is a fresh bathroom that now feels bigger than its 5-by-7-foot footprint.
Great tip: Hire a designer. While Weingart did a fantastic job herself, she admitted that the choices were overwhelming sometimes and that the process could have gone a lot faster had she hired someone.
See the rest of this bathroom makeover
After: Interior designer Alisa Hofmann had her work cut out for her. Because the bathroom couldn’t be expanded, she couldn’t meet the Americans With Disabilities Act’s standard of three feet of clearance in every direction. Instead, she worked with the homeowner to make sure his wheelchair had enough room to access the sink and shower comfortably.
Other new universal-design moves included getting rid of the tub-shower combo for a curbless shower with bi-fold doors; new secure grab bars; a fold-down shower seat (giving the option of taking a wheelchair shower); a sink at a comfortable height with room for a wheelchair beneath it; a tilted mirror; pullout drawers in the vanity that are easier to access than doors; and a toilet that doubles as a bidet with an easy-to-access control panel.
Great tip: A tile in a smaller pattern means better traction, because of the increased amount of grout.
See the rest of this bathroom makeover
Other new universal-design moves included getting rid of the tub-shower combo for a curbless shower with bi-fold doors; new secure grab bars; a fold-down shower seat (giving the option of taking a wheelchair shower); a sink at a comfortable height with room for a wheelchair beneath it; a tilted mirror; pullout drawers in the vanity that are easier to access than doors; and a toilet that doubles as a bidet with an easy-to-access control panel.
Great tip: A tile in a smaller pattern means better traction, because of the increased amount of grout.
See the rest of this bathroom makeover
After: Architect Ryan Duebber created a much more relaxing area with a free-standing tub atop a Brazilian massaranduba wood platform that lets the homeowners catch the view out the window while they soak. A new TV setup is much safer, and river rocks at the edge between the platform and the limestone floor add unexpected texture.
See the rest of this bathroom makeover
See the rest of this bathroom makeover
Great tip: You can have a Jack and Jill setup without having two sinks. Duebber gave his clients the function of two sinks with the minimalist aesthetic they preferred by having one long trough custom-fabricated in concrete and adding two faucets.
17. When the Toilet Starts Sinking, a Resourceful Couple Roll Up Their Sleeves
Before: Painted-over tile, purple vinyl floors and plenty of plumbing problems and rot plagued this bathroom in a Washington, D.C., row house.
Megan Adams and her husband (along with professionals when they needed them) gutted the bathroom and fixed it up with a vintage look that suited their historic home, for about $10,000.
Before: Painted-over tile, purple vinyl floors and plenty of plumbing problems and rot plagued this bathroom in a Washington, D.C., row house.
Megan Adams and her husband (along with professionals when they needed them) gutted the bathroom and fixed it up with a vintage look that suited their historic home, for about $10,000.
After: Knocking down the half wall and adding a tub-shower combo, wall niches and a salvaged wall-mounted sink made the most of the 40-square-foot space. Combining that with hexagonal floor tile, classic subway wall tile and traditional lighting and accessories kept the period look of the home and kept the couple within budget.
Great tip: Gray grout is a lot easier than white to keep clean-looking.
See the rest of this bathroom makeover
Great tip: Gray grout is a lot easier than white to keep clean-looking.
See the rest of this bathroom makeover
18. Contemporary Design Brings Geometry, Light and Moments of Zen to an ’80s Master Bath
Before: This Orange County, California, bathroom was stuck in the 1980s, with a cramped layout and a lack of light.
Before: This Orange County, California, bathroom was stuck in the 1980s, with a cramped layout and a lack of light.
After: Designer Susan Thiel replaced the old vinyl windows with a grid of nine rectangular openings that let in the light. She took down the wall that separated the toilet to create one open space. A unique patterned-concrete wall adds a set of rectangles in a different way, while a free-standing tub sits atop a bed of river rocks.
On the opposite side of the room, a transom window over the door lets in natural light from the bedroom, while a sliding frosted-glass door marks the entrance to a walk-in closet.
Great tip: Sometimes faking it a bit is the way to go. These floors are porcelain made to look like Calacatta marble. It’s more durable than marble, less slippery and less likely to stain.
See the rest of this bathroom makeover
Great tip: Sometimes faking it a bit is the way to go. These floors are porcelain made to look like Calacatta marble. It’s more durable than marble, less slippery and less likely to stain.
See the rest of this bathroom makeover
19. Homeowners and Their Builder Create a New and Improved Version of the Original
Before: These clients loved their Philadelphia bathroom’s vintage charms, but its state of disrepair forced a renovation. The bathroom had been patched together for as long as possible, but damage from a leak upstairs meant the homeowners could no longer put off gutting. Working with Matt Capitolo, owner of Whitefield & Co., a design-build firm, they created a bathroom in keeping with the Colonial style of their 1920s home.
Before: These clients loved their Philadelphia bathroom’s vintage charms, but its state of disrepair forced a renovation. The bathroom had been patched together for as long as possible, but damage from a leak upstairs meant the homeowners could no longer put off gutting. Working with Matt Capitolo, owner of Whitefield & Co., a design-build firm, they created a bathroom in keeping with the Colonial style of their 1920s home.
After: Capitolo was able to reconfigure the floor plan to fit in a shower with a wall at one end, instead of just the leaky shower curtain they’d had before. With classic subway and hex tiles, a pedestal sink, a vintage-inspired medicine cabinet and original light fixtures, the bathroom is a lovely, freshened-up version of itself.
Great tip: If a radiator is clunking up your bathroom floor plan, consider replacing it with radiant-heat flooring.
See the rest of this bathroom makeover
Have you redesigned your bathroom this year? Please show us your own before-and-after photos in the Comments.
More: Find bathroom designers near you
Great tip: If a radiator is clunking up your bathroom floor plan, consider replacing it with radiant-heat flooring.
See the rest of this bathroom makeover
Have you redesigned your bathroom this year? Please show us your own before-and-after photos in the Comments.
More: Find bathroom designers near you


















































Before: In this Massachusetts bungalow, over 100 years old, the 1960s bathroom renovation wasn’t offering much help to real estate agents.