Software
Houzz Logo Print
bikewalkbarb

Kitchen remodel: What to move where in odd angled space

4 years ago

Calling on all the design geniuses I see posting here!


We moved in knowing we'd have to remodel this kitchen/eating space. Household of 2 and this is the last house we’ll buy. We're designing for ourselves for the long run, not for resale, and expect to be here another 2-3 decades. This means we’re thinking about long-term accessibility; although neither of us needs universal design at this point we don’t want to design in a way that makes it extra costly to make those changes in future if needed.


It's a relatively big space (~15x15), poorly utilized. I cook and bake from scratch, preserve/can foods, and we enjoy cooking together occasionally. We don’t need a big entertainment space--if/when the world returns to that kind of scenario it’s so rare for us that we’re not designing for that.


At this point I want to do the planning to get the bones of the space right. I’m collecting ideas for finishes and will get to that later.


Biggest issues:

- The odd angles in 3 corners leave a lot of wasted space and create conflicts between the oven door/adjacent drawers and the stove hood/adjacent cupboards. The one that’s the back side of the front hall closet also leaves a very funny unusable angle space inside the closet good only for leaning an umbrella.

- No landing zone by the fridge and pantry, which are right next to each other. They’re by the entry into the house from the garage, which is where all groceries come in. This also puts the coffee station (in its logical spot by the sink) a long way from the half-and-half; it’s the little things that get to you after a while and we’re both working from home and consuming coffee all day.

- The pantry is tall, dark, and deep. My last pantry was a lighted walk-in and I loved it. I don't need a walk-in but this one pretends to have more usable space than it actually provides.

- Long counter between sink and stove looks like great workspace but actually means a lot of walking back and forth during meal prep.

- Silly cupboard over fridge is impossible to reach--a waste of space.

- "Window" spaces into living room and hallway have sills our cat jumps onto. From there he can launch onto the dining table and he's leaving claw marks on the wall texturing. We also prefer a more open floor plan and this broken plan feels really pointless and crowds the table in the eating space. These windows need to go away.

- Lower cupboard under sink is rotted out and I want drawers instead of cupboards below anyway. Consider all cupboards expendable.


We’ve left the adjacent front hall closet and laundry room without doors and the laundry room has no shelving for now to have maximum flexibility for the remodel. The laundry room has its own conflict between the dryer door and the door into the garage. That’s a lower priority but needs to be fixed at some point and perhaps gets worked into the kitchen solution.


Additional things I want to end up with:

- Extra-deep 30” counters

- An appliance garage or space inside the pantry with outlets or some other good way of having easy access to frequently used small appliances without having them sitting out on the counters (even with the deeper counters--I hate the clutter)

- Some open shelves or doing away with some of the upper cabinets; it feels very closed in and my last kitchen had some open shelving that I made great use of


Potential changes I’ve thought about in rough order of simplest to most complex below. What would maximize functionality without doing things that won’t really create much gain?


Option 1: Move stove around to its right to the north wall at a reasonable distance from the sink so I have workspace on both sides of the stove and get rid of The Clash of the Cupboards. Create landing zone counter next to laundry room door and shift fridge into current pantry space. Create pantry shelving in laundry room to replace lost pantry space. Replace lower cupboards with drawers and generally make better use of potential storage space in the kitchen proper. Cut those interior wall windows down to the floor to open up to living room/hallway and eliminate the kitty's play spaces. Maybe put a Murphy door on the laundry room for additional pantry space. Drawbacks: Stove and dishwasher right next to each other seems kind of weird.


Option 2, bigger changes: Use part of the front closet space to eliminate that pointless angle wall; put the fridge over there so it's closer to the sink and coffee station. Could close the existing door opening from the hallway, shift that to where the current "wall window" is, for more space to work with although the front hall is kind of narrow and this would exacerbate that. I thought about moving the dishwasher to the right of the sink (we’re both right-handed); that likely means shifting the sink left a bit and that would center it under the window, which is aesthetically nice but non-essential. Fridge will be replaced by one with freezer on bottom so conflicts between dishwasher door and fridge door wouldn’t occur that often, but still need to be considered. Move the stove and cut the wall windows to the floor as described above. Create the landing zone countertop entering from laundry room. Do a better job with the pantry space to create a baking/storage zone from pantry to stovetop/oven, potentially an appliance garage inside or next to the pantry. (Not opposed to having separate cooktop and oven but I’ve never had that, don’t know that I gain enough to be worth the added cost.)


Option 3, even more structural changes: All of the above plus eliminate the angle where the stove currently is completely by going into the garage (it’s okay to take that space) if that really makes it easier to create the necessary storage and workspace, but we’d have to build the supporting floor because the garage is down a couple of steps. Take out more of the walls into the living room on either side of the current window opening if possible. I don’t know if that’s a bearing wall but it’s likely. If so, I’d create functional bookshelf walls with appropriate reinforcing to make better use of the space since I have a big cookbook collection to house. Or really go for it, take the entire front closet and just work from the front door in to create a nicer entry while we're at it and move closet function to laundry room, but that's probably beyond our budget to rework that much.


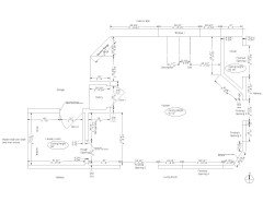
The no-furniture pix are from the real estate listing. Rendering is my husband's scale drawing. I wish I could include his mutterings about the odd angles and difficulty of measuring this space.










Thanks for any and all ideas!

Comments (21)

  • 4 years ago
    last modified: 4 years ago

    I like the idea of using the front closet and moving the DW to the right of the sink. The current closet space would give you a nice storage area for dishes, Do you have another dining area? An island with a prep sink would be convenient, since there wouldn't be much space between the sink and range, if the range is moved to the North wall.

    A side-loading pantry to the left of the fridge would give you storage where everything could be seen at once--probably about the same amount of sf you have now with the deep pantry. 15-18" depth should allow for housing of smaller appliances.

    If using 30" deep counters, upper cabinets can also be deeper, to increase storage space. I included two options for a MW--in an upper to the right of the fridge, or 30" drawer across from the fridge. I wouldn't bother changing the angle in the garage, or the small angle in the hall, since neither will make that much difference (unless you really want a corner susan). I can't read the measurements, so drawings might not be exactly to scale.

    If that's the only dining area, you could gain some space between the sink and range by moving the sink to the right:


    NKBA guidelines

    New to Kitchens? Read me first.

    Discussions--Extra-deep counters

    Barb Chamberlain thanked mama goose_gw zn6OH
  • 4 years ago

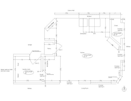
    Thanks so much for the rework idea (and I'll try to get a layout with bigger type--yes it's tiny). This includes the only available eating space, which is one of the reasons I want to open up more to the living room so we have some breathing room around the table.


    Thanks for mentioning the microwave positioning. It's currently on the counter in the scrap of space between pantry and stove. Not ideal, but out of the way and leaves more counterspace free in the long space between stove and sink. My last house had it built in above the cooktop and that was fine. It gets a fair amount of daily use but I don't want to look at it if I don't have to; I'd rather open a door or drawer if it isn't built in.


  • 4 years ago


    New upload of the current floor plan with bigger numbers on the measurements. I've now read the Ice Water Stone Fire post https://www.houzz.com/discussions/2699918/looking-for-layout-help-memorize-this-first and that has me really looking at that move of the fridge over to the right of the sink, cutting into the front closet to get the space to do it.

  • 4 years ago

    Looking at your photos, I see a very large footprint available for some creating zoning of your new remodel. This immediately reminded me of one particular brand I ran across during research for my own kitchen, Pedini. This is an Italian brand with showrooms worldwide. What made the connection in my mind is that Pedini is particularly known for creative work with peninsulas and islands in the middle of large, boxy spaces like yours. Even if you aren't in the market for Pedini, I think you would find inspiration by doing a Google image, Pinterest, or other online search for examples of Pedini's designs. Their home websites are not really as picturesque as you'll find by doing a straight image search via Google or another browser. They do a lot of work with peninsulas extending through the middle of a kitchen and also some freeform island shapes. Note that you can also often buy discounted Pedini cabinetry from showroom displays on Ebay. Here is one example of a freeform central island from Pedini:


    Barb Chamberlain thanked Aglitter
  • 4 years ago

    I am right handed and prefer the dishwasher on the left for some reason. If you are looking for the least amount of $$--the kitchen looks really big. Is it possible to have a stovetop island with a downdraft fan? Then you could do a stacking oven/microwave and would get rid of the overhead fan hood problem. I would swap the closet and the refrigerator as suggested earlier, but the way the closet is built I am wondering if it is supporting something?


    Barb Chamberlain thanked heidi perov
  • 4 years ago

    Does the wall behind the range exist as an angled wall in the ?garage?. Cause it looks like one of those things somebody thought would be cool - so they just walled across the corner. Then they did the hall closet wall too - for no reason. But I am suspicious of the wee little wall that has the book shelves. There might be something in it.

    Barb Chamberlain thanked bmorepanic
  • 4 years ago

    I think the refrigerator to the right of the sink ( with a cab or DW in between) is a good idea and then you could move your range to the garage wall and vent it out through the garage. That would give you a lot of space to work in, between the sink and stove.

    Barb Chamberlain thanked Karenseb
  • 4 years ago

    @bmorepanic, yes, the wall is angled in the garage. This builder appears to have looooved angles. There are 3 angled walls in the kitchen. They serve no particular purpose although the one in the hallway (outside corner of the kitchen, so to speak) at least creates a bit more openness coming out of the front hallway into the living space.


    On the other side of the wall between kitchen and living room there's a very high ceiling with an angle down to the outside wall. I suspect you're right that the "little" angled wall (that one that's in the living room wall) has a structural role.


    @Karenseb, the funny thing is that there's already too much counter space between sink and stove so moving the stove around against the garage wall would add to one of the problems. In terms of efficiency I walk back and forth, back and forth, for little things that wouldn't require much movement if the counter weren't so long. I do want the counter space for things like rolling out dough and doing big prep but in a different spot. Just squeezing a garlic clove into a pot and then disposing of the skin in the compost bucket at the sink requires a "hike". My last kitchen had a usable but smaller amount of counter space between cooktop and sink, then more counter and a peninsula that gave me all the space I needed for baking tasks, cookie racks etc. Better distribution of the elements, less wasted motion. It didn't quite match the Ice Water Stone Fire lineup in that link I shared above but it worked well enough.


    Thank you both for commenting with ideas. It all helps me clarify and refine the possibilities.

  • 4 years ago
    last modified: 4 years ago

    A large workstation sink is disruptive of the sequence you've read about in older posts, if you are interested in researching that. You have room for one, and it is a completely new way of working. I mentioned Pedini because they have some unique workflow ideas for larger box-shaped kitchens. Please take a minute to do an image search because I cannot possibly copy all the different layouts individually to this thread. The thought processes for kitchen design are always morphing, and large workstation sinks are one of the emerging ones. Here is a great intro video to give you an idea of the possibilities: https://youtu.be/zQlVWCCXT7U

    Barb Chamberlain thanked Aglitter
  • 4 years ago

    @heidi perov I read somewhere on this site the idea that if you're right-handed it makes sense to have the dishwasher on the left because you hold the dish in your left hand if you're doing anything with a sponge or scrubber and if the dishwasher is already open you'd just set the item straight into it. This only works to some extent--if I need to pull out the top rack, for example, I'd still have to involve my right hand. But it does feel reasonable, so I'm less concerned about moving the dishwasher than I was. The reason I'd still do it is so I don't end up with the oven and dishwasher really close together once I rotate the stove to the north wall.

  • 4 years ago
    last modified: 4 years ago

    Remember, if you get a workstation sink you will likely have a wide sink to accommodate the number of accessories you select, and whether or not you have two faucets and which side your drain is on will play a role in how easy it is to get your dishes into the dishwasher without dripping, depending on which side your dishwasher is placed relative to the features I listed above. Default drain side is the right, but you can usually specify the side, especially if it is a custom workstation sink.

  • 4 years ago

    If you don't rinse your dishes before you put them into the dishwasher, then you don't need to put it close to the sink. Pre-rinsing is a water waster and many manufacturers recommend that you don't. https://www.homeserve.com/en-us/blog/home-improvement/should-you-prerinse-dishes/

  • 4 years ago

    It is helpful to know your dishwasher's capacity and how you will use it ahead of a remodel if you don't plan to pre-rinse. My own dishwasher leaves stuck food behind occasionally without hand pre-rinsing, but I also don't run it after every meal. It takes a couple of days for me to fill it up enough to run. I turn my faucet off between rinsing of each item to conserve as much water as possible.

  • 4 years ago

    You asked me today on someone else’s thread if I had pic of kitchen. I’ve included a few. To the left, not in photo, is another run of cabs that included a wine bar and coffee bar, separated by full height wine fridge and pantry cab.

    Barb Chamberlain thanked Susan Murin
  • 4 years ago

    Thanks @Susan Murin--what a gorgeous kitchen!


  • 4 years ago

    @partim @Aglitter Thanks for the thoughts on dishwasher use. We've been up close with what comes out of a dishwasher filter if you don't rinse off at least the big chunks and we're both pre-rinsers as a result. It's pretty awful.


    We're careful water users generally, compost the food scraps, do other things to minimize our footprint. And I really can't imagine having a dishwasher that *isn't* in proximity to the sink. Even if you don't rinse everything you rinse at least some things, and the combo of "fill the dishwasher, handwash the rest so you're done with the dishes" means the two are associated as the scullery/clean-up space.

  • 4 years ago

    I love that guests can access the wine bar, coffee bar, and fridge without getting into my work triangle. Though my kitchen is large it is beautifully functional in that the work triangle is very compact and the storage is very intuitive- someone can cook in here for first time and easily find everything. The appliance cab is the deeper one that extends down to the counter. Most of my little appliances are in there and plugged in (toaster, juicer, blender)…I just fold the door back and pull them forward for use and they don’t clutter my counters. Outlets are under cabs except in coffee bar area, where they are in the backsplash but hidden by the 2 coffee machines. A lot of thought went into this kitchen, which is first one I ever did from scratch. Only regret is not making my prep sink bigger. Good luck with your project!

  • 4 years ago

    I've always thought most prep sinks I have seen were painfully small.

  • 4 years ago

    Agreed @Aglitter--they often seem to look like a tiny bar sink good only for filling a glass or coffeepot, not actually prepping. That size has its uses but it isn't a prep zone.

  • 2 years ago

    Barbara, I just saw your question about by 30 inch deep countertop. The house is still not done, so I can't provide feedback. Sorry. Hope your remodel was a success!