First draft back from architectural designer! What are your thoughts?
A few weeks ago my partner & I posted a plan we were going to bring to our consult with an architectural designer. You can take a look there to see our parameters, but I'll post here that the lot is on a 75x200 suburban parcel with the road on the north side and back yard at the south.
We were advised to ditch the doodle and approach it more as a conversation in order to avoid boxing our designer in creatively. It was an overwhelming process, but we've got our first draft back and it works out in a way we hadn't thought of.
We're excited to proceed to round two with our tweaks and updates, some of which are listed below, and some more of which we hope to receive from the wealth of knowledge on these forums.

A few changes we'd make off the bat:
- Kitchen: (They did say they just do rough space designations for kitchens.) Put the sink/DW/waste bins in the island and centre the range along the wall. We love the long stretch of countertop by the fridge for a coffee station!
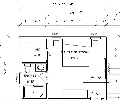
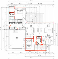
- Master bedroom: A double vanity in the ensuite was on the "nice to have" list, but we'd prefer to have that space in the bedroom itself for a dresser & TV opposite the bed. They included the following sketch of an alternative, sacrificing ensuite space for a small WIC. I'd want to scoot the WIC door up a bit to allow for 12" shelving along the bottom wall. I can't tell how big the shower in their drawing is, but ideally we could tuck a high storage cabinet next to a 36x48" shower?

- Mudroom: Rearranged so that the boots & coats are on the left and laundry area is on the right, so that one can go do laundry without trekking through any mud/snow. They again provided an alternative based on our discussion, but we'd forego the physical wall & door separating the spaces and ideally move things around to allow for exterior exit to the left side yard and get a sink back by the laundry.

Other thoughts:
- Their measurements are from the exterior of the walls while I'm used to thinking of them as interior, so I'm doing the best math I can but please point out any spots where the space seems too tight! Especially traffic paths (though obviously furniture plays a role here).
- Our ideal was approx. 1500 sq ft. This is 1570 sq ft, but looking at the space I don't see anywhere to cut back.
- Our ideal was 3 bedrooms. This is 2 bedrooms + an office, which is how we'd actually be using the rooms, but would resale value concerns warrant the extra square footage a closet would entail?
- We don't love that there's no closet by the front door, but I think if we delete the trapezoid of dead(?) space by the guest bathtub we could fit a standing coat rack there, which would be sufficient for our needs.
- The sliding door you see at the end of the entry hall is because we mentioned some sort of vestibule to prevent pet escapes. Not sure it's really practical in this application since the pets could very well be in the guest bedroom or office, so that will likely get scrapped.
- Full-height basement will be unfinished at build time, but we'll make a separate thread for our future ideas!
We'd love to hear any feedback from the fine folks here at Houzz. Thanks in advance :)
Comments (58)
- 3 years ago
Laundry is better on an exterior wall for venting your dryer. It might be challenging to vent it though the garage wall. I also don't know if I'd prefer to walk through the laundry room every time I come into the house.
The "extra" space by the bath near the entry is probably required for plumbing.
I agree that the reach-in closet in the MB is better than the walk-in you want. Same with the bathroom layout, except two sinks should be one so you can have more storage. And at least the original plan has what looks to be a linen closet. You can get a built-in closet system for that reach-in that includes drawers so no dresser is needed. Biggest question there is if you really need a TV. If so you can get one on an articulating arm.
Where will you store cleaning supplies/mop/broom etc?
Regarding kitchen layout - 7' is not really big enough for a sink+dishwasher+work space (2' DW + 3' cabinet for sink only leaves you with 1'). 8' is really the minimum there for function. Also confirm with your designer what aisle widths and clearances they are using - kitchen should be 4' min but looks tighter.
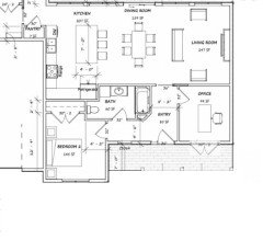
I would consider redoing the office/bedroom/entry layout. It's awkward to access a bedroom through a foyer. You have a lot of hallway that could be used as living space instead. For example, make the entry to the bedroom, office & bath off the kitchen/dining and move your entry all the way to the right. Walls will need to move for that to happen but square footage shouldn't need to adjust.
Calculating interior dimensions is relatively simple. Exterior walls are generally 6.5". Interior walls are generally 4.5". Measurements are from outside of exterior wall to middle of interior wall, so subtract 6.5+4.5/2=8.75".
- 3 years agolast modified: 3 years ago
I believe someone else had mentioned about hope architects never put in full size furniture. I would STRONGLY urge you to have a bit of a craft project. Cut out the rooms on graph paper. cut out furniture sizes and try to arrange them . This will let you know where your problem areas will be. It is easy to say looking at this plan that these sizes are good and everything looks nice, but it may not be "real" . I would also encourage you to compare the room sizes to what you or your friends may have so you can " see" the space before it is built.
I do agree with the mention of the laundry/ mudroom size. I would take dimension off of that , slide the staircase down and take that room for the master. Even a foot would make a big difference.
You might be able to get some storage out of the far end of the stair case depending on where the head room ends. That is a great place to do mudroom cubbies or even tuck the washer dryer underneath.
Related Professionals
Manassas Home Builders · Bell General Contractors · Burlington General Contractors · Fargo General Contractors · Hutchinson General Contractors · Mobile General Contractors · Cusseta Interior Designers & Decorators · Washington Interior Designers & Decorators · Palos Verdes Estates Architects & Building Designers · Palmetto Estates Kitchen & Bathroom Designers · Saint Charles Kitchen & Bathroom Designers · Midland Furniture & Accessories · Jacksonville General Contractors · River Edge General Contractors · Riverside General Contractorscomelyhomely
Original Author3 years ago@3onthetree On our specific street it's mostly older ranches, I would guess 3BE/1BA. There are a couple of split-levels with detached garages, maybe 4BE/2BA with one of each being on the lower level. In the surrounding neighbourhood there are a couple streets from the '80s/'90s with the same mix of ranches & split-levels, and then a lottt of current development. Based on a quick scan of real estate listings, it seems the new builds are mostly semi-detached 3BE/2BAs and 2+1BE/2BAs, with the +1 bedroom being in the basement (which is what our designer suggested before I countered with a main-floor den/office space). These are around our same square footage. Then there are larger ~2400sq ft homes with 3+1BE/2+1BA.
Our designer provided the following along with flat elevation drawings of all four sides, would those be helpful to share here? My partner & I talked about reducing the "peaks" over the front entry to just the one larger one, coming out a bit further to incorporate the bump-out of the guest room. The simpler the better in my books! We may also wish to extend the gable of the master bedroom to cover a small part of the back deck that we may opt to screen in down the road.
comelyhomely
Original Author3 years agolast modified: 3 years ago@la_la Girl The design team seemed bemused by how strongly I felt about the mud/laundry room haha. We get a lot of rain & snow and perhaps I've acquired enough outerwear & footwear to count as an additional person... It would also house a broom closet and pet supplies, litter boxes etc.
I think I'd also love a double vanity in the ensuite, so we will play around with the ensuite/closet configurations as per my reply to Debbi above :)
And @Debbi Washburn I hadn't considered the space within the staircase once headroom's no longer needed, love that idea. We want to be clever about storage given the small overall footprint!comelyhomely
Original Author3 years agoThank you for the suggested reconfiguring of the entryway, @anj_p! We're also a bit put off by having the second bedroom accessed through the entry, even if it is "just a guest room". We'll sketch out some ideas before going back to our design team, but welcome any mockups from the crowd!
- 3 years ago
Here is a sample of many conceptual changes I would suggest. It is a concept for the mudroom. Sorry for the sketch quality, I am traveling and paper towel is the only thing I have to sketch on at the moment.

comelyhomely
Original Author3 years ago@Patrick A No, when we spoke with a surveyor they asked us to call back once we have the finished plan and they'll situate it at that time. I've drawn up a (very) rough outline of the lot over the satellite view on google maps. We'd have it set back at approximately the same distance as the house next to us. Zoning requires 19.7' for the front yard and 6' for each side yard.

- 3 years ago
Have you considered extending the front porch to allow access to it from the office? What about another window on the right side of the office.

- 3 years ago
Your house is the same size as ours, but we are a 2, 2 1/2 on two floors. Your living area is small. Have you considered removing the seating at the island? Your table is right there, and you would gain several feet in your living room.
- 3 years ago
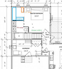
I had a couple of thoughts. If you can push the shower over the stair well then you can get the bathroom with approx a 7 ft vanity and have a walk in closet that would have more hanging space than the one proposed. you would also then be able to do a dresser and a tv on top.
Something like this:

Then you can keep the larger mudroom / laundry room.
I also had a though based on what others were saying about the front hall and guest room. You can reconfigure how the bathroom is and possibly add a small front hall closet. Something like this ( it is NOT to scale at all ) :

5 ft wide for an entry foyer isn't bad if you do the glass french door like judianna proposed.
I am on your side about the front roof line. I think simpler is better.Good luck!!
comelyhomely thanked Debbi Washburn comelyhomely
Original Author3 years agolast modified: 3 years ago@Mark Bischak, Architect Appreciate you taking the time! We'd love to hear your other thoughts as well.
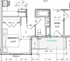
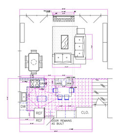
For the mud/laundry room, we're hoping to not have to pass through the entry on our way to and from the laundry area, which is why we preferred having the door from the garage in the centre.What do you think of this layout? We've added an exterior door to the side yard and put a coat closet across from a bench/locker. In the laundry area we have a big sink, stacked washer/dryer, and broom closet. Across from that is a narrow countertop drop zone where we could put a recycling station underneath (our city separates cans/paper/plastic).

comelyhomely
Original Author3 years ago@Debbi Washburn!! I love your solutions for the ensuite/WIC and entryway. Really appreciate the mockups, so helpful. I'm with you & @elcieg on having as much light as possible at the front door to make it feel as spacious as possible.
Can't wait to play around with these.- 3 years ago
Master bedroom: A double vanity in the ensuite was on the "nice to have" list, but we'd prefer to have that space in the bedroom itself for a dresser & TV opposite the bed.
The vanity in your architect's drawing can't support duplicate sinks ... or, can't support duplicate sinks and give you any storage at all. You definitely want a couple drawers at the sink.
The smaller bathroom you've drawn has the same problem -- no drawer storage.
Mudroom: Rearranged so that the boots & coats are on the left and laundry area is on the right, so that one can go do laundry without trekking through any mud/snow.
You want to keep your washer/ dryer on the exterior wall. That's cheaper and more fire safe.
Our ideal was approx. 1500 sq ft. This is 1570 sq ft, but looking at the space I don't see anywhere to cut back.
Honestly, I don't see where 1570 square feet is going. Yeah, your master bath is spacious. But your other areas aren't oversized, and you don't have a lot of hallway space. Does that 1570 include the garage?
Our ideal was 3 bedrooms. This is 2 bedrooms + an office, which is how we'd actually be using the rooms, but would resale value concerns warrant the extra square footage a closet would entail?
I'd like to see a closet added to the office. That would allow you to use it /sell it as a 3-bedroom in the future, if you needed to do so.
We don't love that there's no closet by the front door
Agree, but you do have a nice coat closet in the mudroom, and that's more important.
Personally , a walk in closet is a waste of space unless it really is huge.
Disagree.
I would not want to make my master bath so much smaller for not a very big gain.
Agree.
We are considering extending the depth of the kitchen/dining/living room from 15'2" to 18". That's the size of my sister's living room, so we've been able to experience it in real life.
That's a good idea. Put your space where you spend all your waking time. And the dining room /living room spaces aren't expensive. It's bathrooms and kitchens that cost.
The bedroom does not have a door to the patio,
I would like an exterior door from the bedroom. 1) It's a fire safety thing. 2) It'd be so easy to let the dog in /out early /late.
Definitely not a pro but seems like a lot of space for laundry/mudroom for 2 people
A mudroom is definitely a nice thing to have, but -- yeah -- for two people, it is a splurge.
The entry feels small and tight...what if you change the access to the office with double French doors?
Agree -- guests will enter and then squeeze through a small hallway to reach "the real living space". What if you did away with the wall / have guests enter the office space?
Giving away a lot of space to for garage and mudroom
True.
Have you considered removing the seating at the island? Your table is right there, and you would gain several feet in your living room.
A good idea.
comelyhomely thanked Mrs Pete - 3 years ago
We live in Maine, so I completely understand designing everything around the mud/laundry room. Stacking washer and dryer…my daughter is 5’2” and she needs a step stool for her Samsung units, so be aware.
For recycling, in kitchen we have a pull out with two bins, trash/not trash…and then we do the sorting in the garage into the actual city bins. - 3 years ago
For the mud room, I would think about it another way. Do you want to have to walk by the washer and dryer every time you come home from the garage? I think Mark's layout is much more usable.
comelyhomely
Original Author3 years agoEnsuite vanity: Ikea seems to fit a lot of storage into this 56" double vanity - Is that a rarity? I didn't extend my shopping beyond Ikea when I renovated my current teeny-tiny bathroom haha.

Square footage: The 1570 sq ft does not include the garage (495 sq ft). They did note that this is calculated from exterior wall measurements, which from what I can tell may not be the same method used in all regions.
"Office" closet: Would you add this by reducing the interior of the 10x10 room or by extending out somewhere?
Entry: We did specifically ask that guests not be "tunnelled" down a long narrow hall to the living space. I wouldn't think a 5x10 entry would create that "runway" feel though, especially if we go for glass doors to the office. We'll have to plot this out in 3D to get a better sense of it. Could you please clarify what you meant by "What if you did away with the wall / have guests enter the office space?" Do you mean having one enormous foyer that incorporates a desk?
Island seating: The designers drew up a 4' deep island, but we'd probably only go for a 10-12" overhang, so it'd be more like 3'. I know that only shaves off a foot of space, but in our circle it's very common to have folks sat at the island when visiting so that'd be tough to give up!comelyhomely
Original Author3 years agolast modified: 3 years ago@fissfiss We're north-east of Bangor over in Atlantic Canada, you get it! My partner and I are both fairly tall (5'10" and 6'2"), so stacked laundry units seemed like a good solution to us. There will be a broom closet nearby so a folding step-stool could be tucked away for any shorties that may purchase down the road :P
I feel like I'm spending so much time analyzing the sorting situation lol. Our city does waste & compost in addition to recycling, so we currently have those two in the kitchen and the recycling/cans in our adjacent porch. They've only provided big bins for waste & compost, so the recycling bags get tossed in the basement between monthly collections. Not ideal! I'm hoping in our new place we can build a little outdoor enclosure for the carts & bags so that they're out of sight but right there for pickup day.
comelyhomely
Original Author3 years ago@T T (sorry I can't get the tag to work!) - @anj_p also mentioned not wanting to pass through the laundry area on the way to/from the garage. Maybe I've spent too much time looking at beautiful mud/laundry combos on Pinterest, but I honestly don't see an issue here. We'd have the machines surrounded by cabinetry like this, so I guest we could add a tuck-away door if necessary?

Our current laundry setup is in an unfinished basement with less than 6' of headspace, so the thought of seeing a beautiful bright laundry room every day actually sounds dreamy haha!- 3 years ago
The main concepts of my sketch is to efficiently lay the items in the space out in a parallel arrangement, and to minimize the circulation space one would have to walk to get from the garage to the kitchen. The door to the exterior just adds to the circulation space. Perhaps the man door in the garage could be located closer to the mudroom to serve the same purpose. Only the people that fully understand the functions performed in the mudroom can determine where the door(s) should be located.

comelyhomely thanked Mark Bischak, Architect - 3 years ago
I always read a plan starting from the front door. For this plan I was unable to get beyond the front foyer which feels like the kind of left over space you would expect to find at a back door mudroom.
The 3D model is embarrassingly amateurish; what kind of software doesn't allow the exterior grade to be shown? Start with a simple massing model and add features as the design progresses.
- 3 years agolast modified: 3 years ago
As someone who walks through their laundry room all day long, I would give serious consideration to Mark's recommendation. It's one thing I would definitely change in our home. Also, I would consider windows on the side of the house in the office (along with the French doors previously recommended) and maybe even your living area depending on your overall design for that room. The more windows and the more natural light, the better.
Edited to add:
Mark's laundry room design seems it might allow for one full side to be floor to ceiling cabinetry, drawers for storage, particularly winter items, while the other side could replicate your inspiration photo. Thoughts -- a) is a bench necessary, would you really use it to sit down to change boots/shoes or would other storage cabinetry be more beneficial; b) could the recycling bins be placed just out the door to the garage near the stairs?
- 3 years ago
A master bedroom suite concept for your contemplation. Exact dimensions would have to be worked out:
comelyhomely thanked Mark Bischak, Architect - 3 years ago
For full sized cars/trucks the garage interior width should be 2 ft larger and the garage door width should be 16 ft instead of 12 ft.
- 3 years ago
"I know that only shaves off a foot of space, but in our circle it's very common to have folks sat at the island when visiting so that'd be tough to give up!"
How big are their houses? It's tempting to try to incorporate features of a bigger house in a smaller house. People post plans with big master suites with large walk-in closets, but the actual living area is compromised.
A better 3-D view will show you how much actual space your living and dining areas have. Especially in a cold climate, there are months you will all be inside. comelyhomely
Original Author3 years ago@res2architect You mean for two full-sizes vehicles, right?
We requested a "1.5-car" garage. We want space for our SUV with doors open, two bicycles, the associated gear, and maybe a little snowblower. Based on my research I'd allocated an 18' interior width. and they bumped it up a bit.
If we only need another 2' to make it a 2-car garage we'll consider it though, since that does make it more appealing for resale.- 3 years ago
My initial thought was there was a lot of hallway / walking around space for a relatively small house. You've got the entry foyer, the mud room, the MB foyer, the BR#2 hallway and the less obvious ones: passageway through the laundry, rear "hallway" across the living / dining rooms and kitchen, plus the space needed for a kitchen island.
You could tack on the stairs as more space dedicated to walking (and the plan isn't utilizing any of this double space for storage or anything). - 3 years agolast modified: 3 years ago
1500sf (taking your word for it as didn't do the math) without the garage is a lot of footprint to fit a 2BR+den/2BA. Your room sizes are just making it onto radar, and the Living seems small (approx Master 13-10x13-8, Guest 11x10-10, Office 9-4x10-2, Living 12-4x14-6). So I am trying to figure out where all the available space has been wasted, at least considering face value for 1500sf.
There are a lot of inefficiencies. However, a challenging-to-do reduction of the huge Mudroom or odd Foyer hall does not put the extra square footage into places you would really want it, like the Living or Master Ensuite, so quick fixes would not really solve that. I probably would have conceived the plan completely differently to allow more opportunity for an efficient plan in 1500sf. I would have gone a more linear route for the deep lot, started with a 24' wide 2 car garage, the Office and Guest flipped, and the stair in a completely different location to take advantage of circulation efficiency (and get rid of the strange basement circulation).
comelyhomely
Original Author3 years ago@rsc2a Do these passageways not serve purposes though?
- Entry foyer allows a much nicer "feel" than walking directly into a living room
- Mudroom is chock full of storage and will the primary entry/chore hub for the homeowners
- We specifically asked that the MB not open directly into the kitchen/dining/living. That turn down a short hall allows for privacy/separation of public vs private space
- Walking space around the kitchen island and dining/living furniture is just an essential, is it not?
It is tough to find a balance between maximizing every square foot while also ensuring the space feels airy rather than jam-packed. We do agree that the hall to the guest room is odd and would love ideas for clever ways to "double up" on space!- 3 years ago
I live in a very small house so to me this seems like it is well used. There is not a ton of hallway space. The mudroom and laundry may be bigger than what others want, but it seems very important for you, so leave it. The idea of the french doors for the office that someone had mentioned is great! That will make the front foyer feel bigger ( make them pocket doors and leave them open - even better ) .
If you do the math across the main room, there is enough space for everything to fit and not be too jammed together.

Good luck !
comelyhomely thanked Debbi Washburn comelyhomely
Original Author3 years ago@3onthetree I am trying to figure out where all the available space has been wasted.
You've certainly got us wondering too! I've tallied up the square footage indicated on the plan and it only totals 1328. There is nothing indicated for the stairway or closets in the bedrooms & mudroom, but I can't imagine that adding up to our missing 242 sq ft from the 1570 stated. Thanks for prompting that closer look, we're going to seek clarification on this.
In our meeting, the design team did suggest a very narrow/linear plan at first, but we feel quite strongly about a) optimizing the southern exposure by having all public rooms + master face the back yard and b) not having an enormous "snout" garage with a little house tucked in behind it. This plan did that and still allowed for 10' of side yard on either side, rather than the tight-feeling 6' minimum. Perhaps something's gotta give though. Given these confusing calculations, it seems like we can certainly try to stretch the public rooms further toward the back yard at the very least.comelyhomely
Original Author3 years agoI really appreciate the encouragement, @Debbi Washburn! Our current 1940s cape cod is about 1100 sq ft and we just feel like we need a *slightly* bigger space. We don't want to go beyond our needs just to keep up with the Jones', but we also don't want to realize we're still cramped only after the drywall's been laid.
My parent's house is about 2200sq ft and my sister's new build is about 1300 sq ft, so I think this weekend we'll pay some visits and get a better sense of what could work for different rooms.- 3 years ago
Thats the best way to do it. Write down all the room dimensions and bring your tape measure.
- 3 years agolast modified: 3 years ago
2 thoughts: again the garage is large...looked it up and you can get 2 cars in a 360 sq ft space. So is there a way to salvage the overage?
Bedroom 2 and bathroom:
You don't need that closet if you make a different arrangement for the bed and flank the bed with closets

Then, could the bathroom start where the closet is? It would eliminate the bulge of the tub, giving more room in the hall. - 3 years ago
Don't skimp on the mudroom. It's not just a mudroom, after all. It'll probably be the second hardest-working room in the house and when properly laid out, it's something that will be worth its weight in...uh...drywall? A room like this is essential to making a smaller house really work.
(And of course, there is nothing untoward about seeing laundry appliances--even if you weren't planning on making them pretty!)comelyhomely thanked Fori - 3 years ago
From experience, it is not the view of the machines that would be a problem, it is having to step over the pile of dirty laundry awaiting it’s time in the machine. As long as the machine is not in your traffic pattern, you will be fine,
- 3 years ago
Many washers and dryers now a days are design to look like you can climb in and travel back to the year 1776.
- 3 years ago
The un-dimensioned living room width (up and down in the photo) is 17'-9" at the inside of the walls/half wall at kitchen. The left-right dimension is 24'-8". Believe me, 17'-9" is not luxurious or oversized; it is just about right for this house. We ditched the sofa and loveseat and bought a sectional in a similar configuration, and we basically bought the only one which would fit. This was a reno, not a new build, so we were limited to the locations of the walls as shown. I had already removed two walls to make the eat-in kitchen with 'island' containing garbage and drawers.
comelyhomely thanked Ilove MyLife comelyhomely
Original Author3 years ago@Fori - This is the way we think of it as well! Drop-zone for day-to-day coats & shoes, storage for all four seasons of outerwear/footwear/accessories, laundry area, a place to set groceries while we take off said coats & shoes, a place to snip flower arrangements so I don't wind up with stems flung all over the kitchen lol, the list goes on!
@fissfiss - That's a great point I hadn't considered! We keep our laundry hamper in the bedroom and sort colours there before taking one load at a time to the laundry room & back, so for our use case there wouldn't be piles hanging around in plain view. Appreciate that others do it differently though.
@Ilove MyLife Thank you for sharing your real-world experience, that's very helpful! We have convinced ourselves to push the south wall of the "great room" back to 17-6 deep (inside), basically lining it up with the south wall of the mudroom.comelyhomely
Original Author3 years agoHauling out the measuring tape at our visit with my parents today was an incredibly helpful exercise! They said when they were building their home they brought a measuring tape wherever they went for like a year haha.
Their great room is approximately 21' x 29' (inside), and by extending to the entryway we were able to map out the 33-6 width of our prospective great room and play around with a couple different depths. We think the 17-6 depth achieved by lining up the south wall of the great room with the south wall of the mudroom will work perfectly.
We were also able to reference their 6' x 8' bathroom, which is roughly we're working with for our ensuite (5-9 x 7-9), and their 9' x 13' guest room, which confirmed that the south wall of our master bedroom needs to be extended out to 15'.comelyhomely
Original Author3 years agoHere's a rough outline of the changes we're planning to request at this time. There will still be some shifting of doors & windows needed of course, and the measurements here are imprecise.
Huge thanks to all who shared their critiques & suggestions so far! Feedback is always welcome.
- 3 years ago
Don't forget that valuable space over the staircase. That could still have the potential to be your shower and then you can add those inches into a bigger vanity or bigger closet.
Looks like you have made great progress!
comelyhomely
Original Author3 years agoYes @Mark Bischak, Architect the stairs are to a full-height basement, there's a 90-degree turn for the bottom few steps. It'll be unfinished to begin with, but we'll definitely be back with a new thread once it's time to tackle that area to plot out plumbing rough-ins etc.
Thanks for the reminder to ask our team about the required headspace in the stairwell @Debbi Washburn!- 3 years ago
wow the layout looks great! It feels like the house is bigger bc of the flow
and yay for a coat closet by the frontdoor for guests - i was so happy when a reno enabled me to add onecomelyhomely thanked la_la Girl - 3 years ago
In the U.S., modern basements are considered and used as living space. 2 car garages are the norm for suburbia, at minimum protecting both cars from hail down south and snow up north.
Your stairway causes a very long and indirect path to a usable basement living area. Add to that length of skinny path the mechanical area should be under the Kitchen to minimize forced air duct sizes, so you have to walk all the way to under the Dining Room.
Your garage is 20' wide, which is a frustratingly common tract home width. You could fit a 16' door as is. Or bump out as already suggested by 2' for better width and a 2 car.
Just a couple huge items to consider that you may regret later.
comelyhomely thanked 3onthetree comelyhomely
Original Author3 years agolast modified: 3 years agoThanks @3onthetree, we've created a separate thread for the basement plans! https://www.houzz.com/discussions/6286799/very-first-thoughts-on-basement-new-build
As mentioned, we're considering a 2ft expansion of the garage to create a 2-car rather than the "1.5-car" we requested. We just need to consider
a) Whether we'd take those 2ft from the inside (kitchen/guest room), or outside. If taken from the outside, our side yards would go from 10ft each to 9ft each. That seems ok, but it's important to us that the side yards remain wide enough to allow machinery though to the back yard if needed.
b) Whether the increased resale value would be worth the increased cost. If we expand outward, it'd also widen the 27ft span of rooms south of the garage, which would be a nice-but-not-necessary thing for space and a bad thing for budget. I suppose we could just have a jog along the east wall to avoid that though.
- 3 years ago
Looking at your revised mudroom, I'd suggest moving the garage entrance to the left side of the garage so that you pass by the bench and the closet on the way into the house. This would help ensure that people actually remove shoes and hang up coats (my husbeast is "away impaired" so I'm very aware of tiny impediments to desired behaviours). It would also improve laundry day by allowing the bench to be a convenient resting spot for loading and unloading laundry baskets without touching your toes.
I'd also consider whether the side door would be better on the garage side (i.e. off the garage landing) than at the end of the mud room.comelyhomely thanked Jennifer K











elcieg