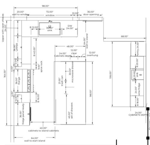
Rate my floor plan
4 months ago
last modified: 3 months ago
Related Stories

REMODELING GUIDESRenovation Ideas: Playing With a Colonial’s Floor Plan
Make small changes or go for a total redo to make your colonial work better for the way you live
Full Story
ARCHITECTUREDesign Workshop: How to Separate Space in an Open Floor Plan
Rooms within a room, partial walls, fabric dividers and open shelves create privacy and intimacy while keeping the connection
Full Story
REMODELING GUIDESLive the High Life With Upside-Down Floor Plans
A couple of Minnesota homes highlight the benefits of reverse floor plans
Full Story
DECORATING GUIDESHow to Create Quiet in Your Open Floor Plan
When the noise level rises, these architectural details and design tricks will help soften the racket
Full Story
DECORATING GUIDES9 Ways to Define Spaces in an Open Floor Plan
Look to groupings, color, angles and more to keep your open plan from feeling unstructured
Full Story
BATHROOM MAKEOVERSRoom of the Day: Bathroom Embraces an Unusual Floor Plan
This long and narrow master bathroom accentuates the positives
Full Story
BEDROOMSStyling Your Bedroom: The Corner Bed Floor Plan
Put the bed in the corner for a whole new angle on your furniture arrangement
Full Story
DECORATING GUIDESHow to Use Color With an Open Floor Plan
Large, open spaces can be tricky when it comes to painting walls and trim and adding accessories. These strategies can help
Full Story
BEFORE AND AFTERSKitchen of the Week: Saving What Works in a Wide-Open Floor Plan
A superstar room shows what a difference a few key changes can make
Full Story
REMODELING GUIDESHow to Read a Floor Plan
If a floor plan's myriad lines and arcs have you seeing spots, this easy-to-understand guide is right up your alley
Full Story


Jen L
Hannah AltieriOriginal Author
Related Professionals
Leominster General Contractors · South Windsor General Contractors · Springfield Kitchen & Bathroom Designers · North Myrtle Beach Furniture & Accessories · Bartlesville General Contractors · Coos Bay General Contractors · Franklin General Contractors · Reisterstown General Contractors · Saint Andrews General Contractors · San Carlos Park General Contractors · Toledo General Contractors · Walker General Contractors · Martinsburg Kitchen & Bathroom Designers · Holden Kitchen & Bathroom Remodelers · Lisle Kitchen & Bathroom RemodelersPatricia Colwell Consulting
Buehl
la_la Girl
3onthetree
Hannah AltieriOriginal Author
Debbi Washburn
res2architect
Monique
WestCoast Hopeful
jinwpg