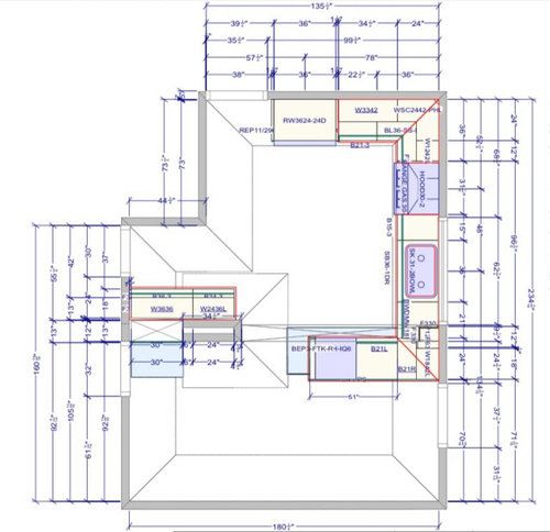
Kitchen cabinet layout, what would you change?
last month
Featured Answer
Sort by:Oldest
Comments (20)
Related Professionals
Hybla Valley Kitchen & Bathroom Designers · Plymouth Kitchen & Bathroom Designers · Middle Island Interior Designers & Decorators · Little Egg Harbor Twp General Contractors · Phenix City General Contractors · Rowland Heights General Contractors · Tabernacle General Contractors · Washington Furniture & Accessories · Nixa Furniture & Accessories · Flint General Contractors · Fort Pierce General Contractors · Rohnert Park General Contractors · Kettering Kitchen & Bathroom Remodelers · Sun Valley Kitchen & Bathroom Remodelers · Newcastle Cabinets & Cabinetry- last monthlast modified: last month
- last month
- last monthAP thanked Celery. Visualization, Rendering images
- last month
- last month
- last month
- last monthlast modified: last month
- last month
- last monthlast modified: last month
- last monthlast modified: last month
- last month
- last month
- last month
- last monthlast modified: last month
Related Stories

KITCHEN DESIGNWhite Kitchen Cabinets and an Open Layout
A designer helps a couple create an updated condo kitchen that takes advantage of the unit’s sunny top-floor location
Full Story
KITCHEN MAKEOVERSKitchen of the Week: Zoned Layout and 4 Cabinet Finishes
A designer collaborates closely with the homeowners to create a kitchen with two islands for cooking and entertaining
Full Story
INSIDE HOUZZTop Kitchen and Cabinet Styles in Kitchen Remodels
Transitional is the No. 1 kitchen style and Shaker leads for cabinets, the 2019 U.S. Houzz Kitchen Trends Study finds
Full Story
KITCHEN DESIGNKitchen Layouts: Ideas for U-Shaped Kitchens
U-shaped kitchens are great for cooks and guests. Is this one for you?
Full Story
KITCHEN MAKEOVERSBefore and After: Glass-Front Cabinets Set This Kitchen’s Style
Beautiful cabinetry, mullioned windows and richly refinished floors refresh the kitchen in an 1879 Pennsylvania home
Full Story
KITCHEN DESIGNBleached White Oak Cabinets Star in This Two-Tone Kitchen
The cabinets and a new layout transform a once-dark New Jersey kitchen into a light and bright space
Full Story
HOUZZ PRODUCT NEWS10 Kitchen Trends to Watch in Layouts, Features and More
See the colors, materials and floor plan changes homeowners are embracing in the 2023 U.S. Houzz Kitchen Trends Study
Full Story
DATA WATCH10 Kitchen Trends to Watch in Layouts, Features and More
See the colors, materials and floor plan changes homeowners are embracing in the 2023 U.S. Houzz Kitchen Trends Study
Full Story
KITCHEN MAKEOVERSKitchen of the Week: Deep Green Cabinets Star in 136 Square Feet
Two designers update a Kentucky kitchen with bold cabinets and a more user-friendly layout fit for entertaining
Full Story
KITCHEN MAKEOVERSKitchen of the Week: Warm and Cheerful Style With Pink Cabinets
A design-build pro opens up a tight layout, adds more storage and creates a happy look full of colorful personality
Full Story













eam44