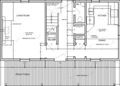
Where to find house plans like this?
last month
Featured Answer
Sort by:Oldest
Comments (7)
- last month
Related Professionals
Keansburg Architects & Building Designers · Lexington Architects & Building Designers · Syracuse Architects & Building Designers · Boise Design-Build Firms · Delano Home Builders · Prichard Home Builders · Bon Air General Contractors · Broadview Heights General Contractors · Jeffersonville General Contractors · Phenix City General Contractors · Rock Island General Contractors · Rosemead General Contractors · Signal Hill General Contractors · Stillwater General Contractors · Wheaton General Contractors
Related Stories

KITCHEN DESIGNHouse Planning: How to Set Up Your Kitchen
Where to Put All Those Pots, Plates, Silverware, Utensils, Casseroles...
Full Story
UNIVERSAL DESIGNWhat to Look for in a House if You Plan to Age in Place
Look for details like these when designing or shopping for your forever home
Full Story
HOUZZ TV FAVORITESHouzz TV: See What It’s Like to Live in a Glass House
Tour a couple’s midcentury modern Illinois home, where floor-to-ceiling views of nature are all around
Full Story
CURB APPEALClues to Finding the Right Color for Your House
Waffling over the rainbow of color options for your home's face? This advice from an architect can help
Full Story
REMODELING GUIDESHouse Planning: How to Choose Tile
Glass, Ceramic, Porcelain...? Three Basic Questions Will Help You Make the Right Pick
Full Story
LIFEHouzz Call: What Makes Your House Feel Like Home?
Sometimes just one thing gives you that warm and fuzzy feeling. Let us know what it is for you
Full Story
COLORWhere to Find Home Color Inspiration
Look for paint color ideas in things you already love: a piece of art, a cozy café, a vintage plate — even a memory
Full Story
MOVINGHouse Hunting: Find Your Just-Right Size Home
Learn the reasons to go bigger or smaller and how to decide how much space you’ll really need in your next home
Full Story
REMODELING GUIDESWhere Do I Start When Renovating My House?
Eager to get going on a project but not sure where to begin? Read this practical guide to getting started
Full Story
ARCHITECTURELook Beyond the House to Find a Home
See how clever homeowners have put down stakes in a lighthouse, train depot, church, bourbon distillery, barn and missile silo
Full Story
BeverlyFLADeziner