Watersound
ELEGANT OCEANSIDE VILLA
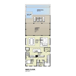
A perfect vacation home this plan packs everything imaginable into a small footprint. The lower level entrance accessed from the drive or garage welcomes you into the foyer equipped with elevator and ample storage. A second floor houses the everyday living area complete with kitchen, additional guest suite or office, and dining. The favorite part of this floor is the expansive glass which leads you out under a covered porch to the pool and sun deck. The third floor is for sleeping. Two additional bedrooms with shared bath are next to the laundry and mechanical closet. A master suite occupies the water facing view complete with soaking tub, his and her vanities, walk-in closet, and private balcony. The optional bonus room in the attic can be anything imaginable including exercise, kids retreat, bunk room, or studio.
A perfect vacation home this plan packs everything imaginable into a small footprint. The lower level entrance accessed from the drive or garage welcomes you into the foyer equipped with elevator and ample storage. A second floor houses the everyday living area complete with kitchen, additional guest suite or office, and dining. The favorite part of this floor is the expansive glass which leads you out under a covered porch to the pool and sun deck. The third floor is for sleeping. Two additional bedrooms with shared bath are next to the laundry and mechanical closet. A master suite occupies the water facing view complete with soaking tub, his and her vanities, walk-in closet, and private balcony. The optional bonus room in the attic can be anything imaginable including exercise, kids retreat, bunk room, or studio.