Kingstown Kitchen
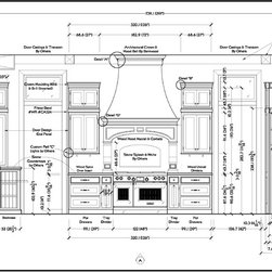
Symmetry, harmony, purity -- how to infuse these classical design elements into an asymmetrical, modern floor plan? This whole-house renovation opened the kitchen to adjoining family room for easy living. However, the combined space was ever-so-skewed. The architectural ceiling beams followed their own logic. The bay window was cattywampus. And while the homeowners desired a full complement of appliances for serious entertaining -- they preferred these to disappear into the white painted woodwork.
Solution: Add strength to strength. Make each wall of the room a handsome focal point -- visually balanced & bold. The curves of the bell-shaped range hood anchor the west wall -- echoed by the soft geometry of the island and circular window seating. The genteel south wall is devoted to cleanup and china display with small appliances tucked away into cubby garages. The north wall works hard, minimizing steps to integrated refrigeration and walk-in pantry larder. Every square inch of this coastal kitchen is utilized for cooking convenience & comfort. Friends are always welcome. Pour yourself a cup of coffee and stay awhile....
Solution: Add strength to strength. Make each wall of the room a handsome focal point -- visually balanced & bold. The curves of the bell-shaped range hood anchor the west wall -- echoed by the soft geometry of the island and circular window seating. The genteel south wall is devoted to cleanup and china display with small appliances tucked away into cubby garages. The north wall works hard, minimizing steps to integrated refrigeration and walk-in pantry larder. Every square inch of this coastal kitchen is utilized for cooking convenience & comfort. Friends are always welcome. Pour yourself a cup of coffee and stay awhile....
Project Year: 2011
Project Cost: $150,001 - $200,000
Country: United States
Zip Code: 34102