V1901
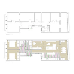
La intervención en esta vivienda estuvo condicionada desde un principio por las nuevas necesidades funcionales de la pareja propietaria y la falta de prestaciones del espacio de origen para cubrirlas. Por un lado, los propietarios, con los que ya habíamos trabajado para reformar su primera vivienda “Flatmate”, querían que ésta fuese su vivienda de largo recorrido ya que pretendía ampliar la familia a corto plazo. Por otro lado, la vivienda apenas contaba con un baño, no disponía de cocina ni de espacios servidores o de almacenaje, tan necesarios para sus planes futuros. Además, estaba compartimentada en exceso, sin espacios jerarquizados que permitiesen usos comunes para su vida familiar.
Abordamos el proyecto con una redistribución total para poder encajar dos habitaciones dobles, un estudio-habitación de invitados, una gran zona común con cocina abierta y dos baños completos. El proyecto crea dos zonas diferenciadas. Una zona de noche articulada por un distribuidor que contiene un armario-trastero y da acceso a las dos habitaciones y a los dos baños. Y una zona de día común, con estar, comedor y cocina, a la que se le puede anexionar el estudio, utilizado puntualmente como habitación de invitados. La ubicación de diversos espacios de almacenaje también ha sido clave para el planteamiento del nuevo esquema funcional.
Al tratarse de una vivienda pasante que cuenta con dos fachadas, la elección de la orientación de la zona común, a calle o al interior de manzana, abrió un debate sobre la forma de vida de la pareja y sus preferencias. Tradicionalmente, las viviendas de l’Eixample situaban la zona común orientada hacia la fachada que daba a calle, por ser considerada más noble, y se ubicaban los dormitorios en la fachada interior a la que se le otorgaba un carácter más íntimo con una doble fachada formada por muro portante y galería vidriada o balcón. A veces, también se daba la situación de tener una zona común situada en cada una de las fachadas para ser utilizadas una en verano y otra en invierno. En el caso de este proyecto se decidió que la zona común se ubicara dando al interior de manzana, cuya fachada era mucho más abierta y soleada, porque se pretendía utilizar más horas durante el día. Las soluciones técnicas para mejorar el aislamiento y las características de una buena carpintería exterior permitieron integrar la galería original con el resto del espacio común, albergando una amplia mesa para 6-8 comensales. También se han ubicado en esta zona los aparatos destinados al lavado ropa y limpieza, integradas en armarios hechos a medida.
La elección de materiales viene dada por la conservación de algunos de los elementos originales que se encontraban en buen estado, poniendo en valor los elementos característicos de la vivienda. De este modo, se han recuperado las carpinterías interiores de madera y los forjados de bovedillas cerámicas y vigas también de madera. Estos elementos se han complementado con nuevos pavimentos de madera y cerámica, así como con nuevas carpinterías metálicas exteriores de color cobre.
La elección de acabados permite mantener la materialidad del edificio original y, a su vez, dotar a la vivienda de un óptimo confort termo-acústico y funcional. De este modo la pareja propietaria puede desarrollar su vida contemporánea día a día y poner un ojo en el futuro y a la ampliación de su núcleo familiar.
Abordamos el proyecto con una redistribución total para poder encajar dos habitaciones dobles, un estudio-habitación de invitados, una gran zona común con cocina abierta y dos baños completos. El proyecto crea dos zonas diferenciadas. Una zona de noche articulada por un distribuidor que contiene un armario-trastero y da acceso a las dos habitaciones y a los dos baños. Y una zona de día común, con estar, comedor y cocina, a la que se le puede anexionar el estudio, utilizado puntualmente como habitación de invitados. La ubicación de diversos espacios de almacenaje también ha sido clave para el planteamiento del nuevo esquema funcional.
Al tratarse de una vivienda pasante que cuenta con dos fachadas, la elección de la orientación de la zona común, a calle o al interior de manzana, abrió un debate sobre la forma de vida de la pareja y sus preferencias. Tradicionalmente, las viviendas de l’Eixample situaban la zona común orientada hacia la fachada que daba a calle, por ser considerada más noble, y se ubicaban los dormitorios en la fachada interior a la que se le otorgaba un carácter más íntimo con una doble fachada formada por muro portante y galería vidriada o balcón. A veces, también se daba la situación de tener una zona común situada en cada una de las fachadas para ser utilizadas una en verano y otra en invierno. En el caso de este proyecto se decidió que la zona común se ubicara dando al interior de manzana, cuya fachada era mucho más abierta y soleada, porque se pretendía utilizar más horas durante el día. Las soluciones técnicas para mejorar el aislamiento y las características de una buena carpintería exterior permitieron integrar la galería original con el resto del espacio común, albergando una amplia mesa para 6-8 comensales. También se han ubicado en esta zona los aparatos destinados al lavado ropa y limpieza, integradas en armarios hechos a medida.
La elección de materiales viene dada por la conservación de algunos de los elementos originales que se encontraban en buen estado, poniendo en valor los elementos característicos de la vivienda. De este modo, se han recuperado las carpinterías interiores de madera y los forjados de bovedillas cerámicas y vigas también de madera. Estos elementos se han complementado con nuevos pavimentos de madera y cerámica, así como con nuevas carpinterías metálicas exteriores de color cobre.
La elección de acabados permite mantener la materialidad del edificio original y, a su vez, dotar a la vivienda de un óptimo confort termo-acústico y funcional. De este modo la pareja propietaria puede desarrollar su vida contemporánea día a día y poner un ojo en el futuro y a la ampliación de su núcleo familiar.
Project Year: 2020
Country: Spain