ZAMNESS
Hacía un año largo que estábamos intentando cambiarnos de despacho y después de visitar varios locales y pisos transformables de pronto se nos presentó la oportunidad de hacer un proyecto de oficina compartida con un cliente de confianza. Apareció ante nosotros un nuevo reto: plantear el proyecto de interiorismo, pedir presupuestos de ejecución, realizar la obra y nuestro traslado en 3 meses, un calendario bastante ajustado para la ciudad de Barcelona.
El edificio en el que se ubica el local tiene una configuración muy habitual de los años 70’s en el barrio de Poble Nou; grandes locales con fachada completamente vidriada que alojan talleres y espacios de almacenaje, bien equipados con ascensores y montacargas, y un carácter industrial que nos recuerda el pasado productivo de un barrio en continua renovación. Así que nos encontramos con un espacio totalmente diáfano y vacío de 300 m2 con estructura de pilares y jácenas descolgadas de hormigón armado.
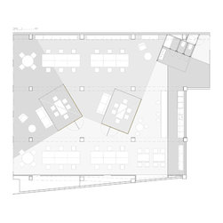
Esta estructura conformaba tres crujías que encajaban claramente con el programa funcional requerido: una oficina ubicada en cada extremo y los espacios comunes de reunión, descanso y office en la zona central.
Desde el principio observamos la fuerza de la ortogonalidad, manifiesta en su estructura reticular y en la modulación de la fachada. Además esta rigidez evidenciaba que una de las crujías era más estrecha que las otras dos, lo cual dificultaba la organización de dos espacios similares para cada oficina. Ante estos condicionantes la intervención fue clara; con la construcción de tres volúmenes ligeros, dos salas de reuniones y una caja de baños, definimos el conjunto jerarquizando el vacío existente y diferenciando nuestra intervención de la envolvente.
Planteamos el uso de la diagonal para contrastar con la envolvente original y poder conformar espacios que discurrieran más allá de los límites del pórtico. De esta manera establecimos una relación entre los tres volúmenes con dos diagonales que cruzan todo el espacio, convirtiendo los espacios intermedios en zonas de descanso o de office delante de la barra de bar. Potenciamos esta idea utilizando tres tonalidades de pavimentos grises que van de más oscuro en el ámbito de la fachada a más claro en la zona de entrada, siguiendo criterios de incidencia lumínica.
Estos volúmenes los planteamos inicialmente como cajas de planta rectangular y cubierta a una sola agua, la estructura mínima para una sala de reuniones. Pero los fuimos transformando en piezas asimétricas mediante la elevación de la diagonal de la cubierta, aumentando la capacidad del volumen hasta los límites definidos por el techo y las jácenas descolgadas del local.
Dispusimos las zonas de servicio cerca de la entrada y elevamos el conjunto respecto al nivel del pavimento original para poder recoger y conducir todas las instalaciones de saneamiento hacia el único bajante existente en uno de los dos extremos del local.
Apostamos por resolver las cajas y las mesas de trabajo con el mismo material. Para ello escogimos paneles aglomerados de virutas de color prensadas, ya que son resistentes, hidrófugos y disponibles en gran formato. El resto de mobiliario es modular estándar, adaptado a las medidas del lugar.
Ante el reto del “espacio en blanco”, establecimos en Zamness unas diagonales que diluyen la limitación de cada área igual que en nuestro día a día intentamos diluir los límites entre trabajo, descanso y ocio.
El edificio en el que se ubica el local tiene una configuración muy habitual de los años 70’s en el barrio de Poble Nou; grandes locales con fachada completamente vidriada que alojan talleres y espacios de almacenaje, bien equipados con ascensores y montacargas, y un carácter industrial que nos recuerda el pasado productivo de un barrio en continua renovación. Así que nos encontramos con un espacio totalmente diáfano y vacío de 300 m2 con estructura de pilares y jácenas descolgadas de hormigón armado.
Esta estructura conformaba tres crujías que encajaban claramente con el programa funcional requerido: una oficina ubicada en cada extremo y los espacios comunes de reunión, descanso y office en la zona central.
Desde el principio observamos la fuerza de la ortogonalidad, manifiesta en su estructura reticular y en la modulación de la fachada. Además esta rigidez evidenciaba que una de las crujías era más estrecha que las otras dos, lo cual dificultaba la organización de dos espacios similares para cada oficina. Ante estos condicionantes la intervención fue clara; con la construcción de tres volúmenes ligeros, dos salas de reuniones y una caja de baños, definimos el conjunto jerarquizando el vacío existente y diferenciando nuestra intervención de la envolvente.
Planteamos el uso de la diagonal para contrastar con la envolvente original y poder conformar espacios que discurrieran más allá de los límites del pórtico. De esta manera establecimos una relación entre los tres volúmenes con dos diagonales que cruzan todo el espacio, convirtiendo los espacios intermedios en zonas de descanso o de office delante de la barra de bar. Potenciamos esta idea utilizando tres tonalidades de pavimentos grises que van de más oscuro en el ámbito de la fachada a más claro en la zona de entrada, siguiendo criterios de incidencia lumínica.
Estos volúmenes los planteamos inicialmente como cajas de planta rectangular y cubierta a una sola agua, la estructura mínima para una sala de reuniones. Pero los fuimos transformando en piezas asimétricas mediante la elevación de la diagonal de la cubierta, aumentando la capacidad del volumen hasta los límites definidos por el techo y las jácenas descolgadas del local.
Dispusimos las zonas de servicio cerca de la entrada y elevamos el conjunto respecto al nivel del pavimento original para poder recoger y conducir todas las instalaciones de saneamiento hacia el único bajante existente en uno de los dos extremos del local.
Apostamos por resolver las cajas y las mesas de trabajo con el mismo material. Para ello escogimos paneles aglomerados de virutas de color prensadas, ya que son resistentes, hidrófugos y disponibles en gran formato. El resto de mobiliario es modular estándar, adaptado a las medidas del lugar.
Ante el reto del “espacio en blanco”, establecimos en Zamness unas diagonales que diluyen la limitación de cada área igual que en nuestro día a día intentamos diluir los límites entre trabajo, descanso y ocio.
Project Year: 2015
Country: Spain