Cassie Cowley

Student - AEC & Design
Cassie Cowley

Employees First

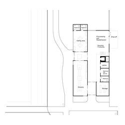
This bodega is a shopping center, recycling and compost collection center, and an employee-centered business. The programmatic diagrams emphasize a separation of public spaces (where customers are allowed to go) and private (employee-only) spaces, with the employee circulation as the connective tissue. The wax concept model shows the concept of employee circulation, or flow, being the primary force in the design. The employee spaces in the building are larger than the public spaces and even have a mezzanine level that is not accessible to the public. The primary employee circulation serves as a central spine for the building. The cash registers are located at a window between the public space and employee space.
Project Year: 2020