Bathroom of the Week: Minimalist and a Little Eclectic
With a few smart layout tweaks, a designer found on Houzz takes a primary bath from jammed-in to open and airy
This retired couple in Castle Rock, Colorado, enjoy a lot of outdoor activities, including skiing and horseback riding. They knew they wanted a primary bathroom that would feel relaxing at the end of their rigorous days. They also knew they needed professional design help, so they looked to Houzz and liked what they saw in the work of interior designer Bonnie Bagley Catlin. After an initial consultation, they hired her. “These clients are pretty minimalistic but also like a bit of eclectic style,” Bagley Catlin says.
After: The homeowners took a few weeks to mull over the options and ultimately decided to go for the more dramatic changes. Bagley Catlin moved the toilet room door to face the bathtub. Getting it off the vanity wall made space for two large linen cabinet towers with hampers.
The second important move was removing the original bathtub and its large surround. This made room for a larger shower stall and gave the room a much airier and updated feel.
For the backsplash tile, Bagley Catlin suggested a soft floral pattern. “This has gray and some subtle green tones in it,” she says.
Backsplash tile: Morris & Co. Pure Net Cloud Grey, The Tile Shop
Hire a cabinet professional
The second important move was removing the original bathtub and its large surround. This made room for a larger shower stall and gave the room a much airier and updated feel.
For the backsplash tile, Bagley Catlin suggested a soft floral pattern. “This has gray and some subtle green tones in it,” she says.
Backsplash tile: Morris & Co. Pure Net Cloud Grey, The Tile Shop
Hire a cabinet professional
This rendering of the space helped Bagley Catlin show her clients what the vanity area would look like.
“My clients were really happy to gain the extra storage space, and the symmetry is really nice,” Bagley Catlin says. The towers frame the vanity and the backsplash tile in a pleasing way.
Cabinetry: Bertch Cabinet
Shop for a bathroom mirror
“My clients were really happy to gain the extra storage space, and the symmetry is really nice,” Bagley Catlin says. The towers frame the vanity and the backsplash tile in a pleasing way.
Cabinetry: Bertch Cabinet
Shop for a bathroom mirror
Before: The bathroom was quite exposed to the bedroom because of the open area over the fireplace.
After: The designer used three sconces to flank the mirrors. “Placing lighting to the sides of mirrors provides the best light on your face. Overhead light casts shadows,” she says.
Whereas the plumbing fixtures are polished nickel, the sconces, hardware and mirrors are matte black. “I’m not a fan of having everything match,” Bagley Catlin says. “I love to mix metals. It’s richer, deeper and more interesting — without the black, this whole wall would have read more flat.”
While the remodel didn’t add a door between the bedroom and bathroom, Bagley Catlin made the two spaces less open to each other by extending the height of the fireplace surround.
As for the color palette, the designer knew that using a lot of white wouldn’t be a good choice for this room. “There is so much wonderful light coming in from the windows that using a lot of white would have washed things out,” she says. “I knew we needed to add some color.”
The fireplace surround is a natural slate tile in a calming gray that plays off the paint color on the vanity. The flooring is 12-by-24-inch porcelain tiles that have a marble look. Bagley Catlin layered a soft runner with a vintage look in front of the vanity to add more color and depth to the room.
Rug: Adrian in Terra Cotta/Multi, Loloi
Whereas the plumbing fixtures are polished nickel, the sconces, hardware and mirrors are matte black. “I’m not a fan of having everything match,” Bagley Catlin says. “I love to mix metals. It’s richer, deeper and more interesting — without the black, this whole wall would have read more flat.”
While the remodel didn’t add a door between the bedroom and bathroom, Bagley Catlin made the two spaces less open to each other by extending the height of the fireplace surround.
As for the color palette, the designer knew that using a lot of white wouldn’t be a good choice for this room. “There is so much wonderful light coming in from the windows that using a lot of white would have washed things out,” she says. “I knew we needed to add some color.”
The fireplace surround is a natural slate tile in a calming gray that plays off the paint color on the vanity. The flooring is 12-by-24-inch porcelain tiles that have a marble look. Bagley Catlin layered a soft runner with a vintage look in front of the vanity to add more color and depth to the room.
Rug: Adrian in Terra Cotta/Multi, Loloi
Before: Here’s the original bathtub. Its large surround took up a lot of space. The small mobile over the tub hints at the eclectic touches these homeowners enjoy.
After: By removing the surround, Bagley Catlin was able to relocate the toilet room door to the wall across from the bathtub. The new sculptural tub suits the couple’s minimalist style.
Browse white freestanding bathtubs
Browse white freestanding bathtubs
This is the view from the toilet room to the bathtub. Perhaps the only design element Bagley Catlin took from the existing bathroom was extending tiled wainscoting up to the windowsills.
“Topping off the wainscoting is a small detail that can make a big difference, and it’s one of those details clients often haven’t thought about,” she says. “I always show them a metal Schluter product versus marble, and almost always they either don’t care at all or feel very strongly one way or the other. In this case, my clients strongly preferred the marble.”
“Topping off the wainscoting is a small detail that can make a big difference, and it’s one of those details clients often haven’t thought about,” she says. “I always show them a metal Schluter product versus marble, and almost always they either don’t care at all or feel very strongly one way or the other. In this case, my clients strongly preferred the marble.”
Before: The bathtub surround squeezed the shower stall to 46 by 46 inches. And a built-in shower bench took up valuable space in the stall.
After: Now the shower stall is a spacious 63½ by 52 inches. The homeowners learned from their previous shower that they had no interest in a built-in bench. “All they wanted in that department was a small teak shower stool,” Bagley Catlin says.
Check out our beginner’s guide to get started on your home project
Check out our beginner’s guide to get started on your home project
The shower stall brings the biggest dose of color into the room. The tiles are 2-by-10-inch subway tiles, composed in an offset vertical pattern. This makes the blue-green porcelain tiles resemble water.
“We weren’t able to buy shelf pieces for the niche that matched the tile, so we used marble,” Bagley Catlin says. She repeated the use of marble on the shower floor, which is composed of 2-inch hexagonal tiles.
Shower tile: Look Avio, The Tile Shop
“We weren’t able to buy shelf pieces for the niche that matched the tile, so we used marble,” Bagley Catlin says. She repeated the use of marble on the shower floor, which is composed of 2-inch hexagonal tiles.
Shower tile: Look Avio, The Tile Shop
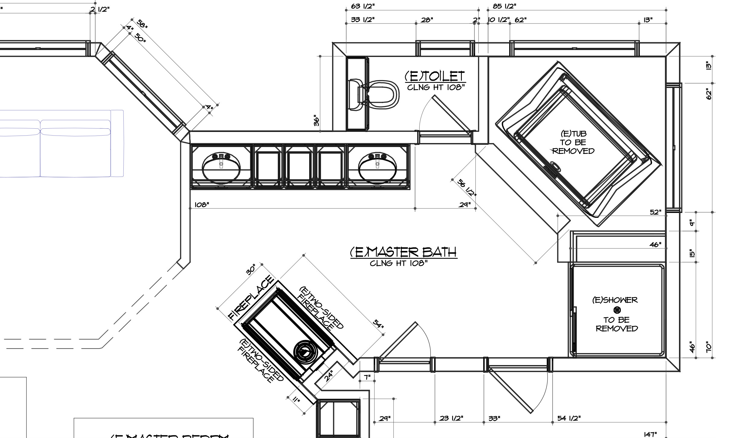
Before: At about 180 square feet, the bathroom was spacious, but the tub (top right) took up a lot of space. Also check out the toilet room door, seen to the right of the vanity.
After: By relocating the toilet room door (top center), Bagley Catlin was able to make room for the two cabinet towers.
More on Houzz
Read more bathroom stories
Browse bathroom photos
Find a bathroom designer
Shop for your bathroom
More on Houzz
Read more bathroom stories
Browse bathroom photos
Find a bathroom designer
Shop for your bathroom
















Bathroom at a Glance
Who lives here: A retired couple
Location: Castle Rock, Colorado
Size: 180 square feet (17 square meters)
Designer: Bonnie Bagley Catlin of Signature Designs Kitchen | Bath | Interiors
Contractor: All About Bathrooms
Before: The bathroom was spacious but the finishes were dated. Just past the vanity was a door to the toilet room. A two-sided fireplace on an angle faced into both the bathroom and the bedroom.
“After our initial consultation, I presented two different designs to my clients,” Bagley Catlin says. “The first was simply changing the finishes and getting rid of a large tub and surround in the corner. The second involved removing the toilet room door to make room for the additional storage my clients wanted.” The difference in price was about 10% of the total budget.
Find an interior designer on Houzz