Elegant High-Tech Master Bath Designed for a Wheelchair User
Wide-open spaces, durable porcelain tile and integrated gadgetry help a disabled woman feel independent again
After an accident left Mary Kay Michelis in a wheelchair full time and forced her to retire from her work as an ophthalmologist surgeon, her master bathroom became entirely unusable — for 10 years. Her electric wheelchair wouldn’t fit through the door frame. An awkward built-in corner tub was a no-go. And the small, curbed shower wasn’t even up for discussion.
So Michelis and her wife, Sharon Dame, mostly ignored the space, opting for a guest bathroom elsewhere in the home that was easier for Michelis and her licensed caregiver to use. For a while, though, Michelis was staying mostly in an assisted long-term care facility. Recently, as her health improved and she was transitioning back to living at home, she and Dame decided it was finally time to overhaul the master bathroom and make it functional.
They enlisted the help of designer Heather Poulliot to take the bathroom down to the studs, create an open floor plan with a large, curbless shower, lots of grab bars and automated features that allow Michelis to do everything she needs to with minimum, independent effort.
So Michelis and her wife, Sharon Dame, mostly ignored the space, opting for a guest bathroom elsewhere in the home that was easier for Michelis and her licensed caregiver to use. For a while, though, Michelis was staying mostly in an assisted long-term care facility. Recently, as her health improved and she was transitioning back to living at home, she and Dame decided it was finally time to overhaul the master bathroom and make it functional.
They enlisted the help of designer Heather Poulliot to take the bathroom down to the studs, create an open floor plan with a large, curbless shower, lots of grab bars and automated features that allow Michelis to do everything she needs to with minimum, independent effort.
After: Poulliot removed all the internal walls, including those that had formed a water closet, and widened the door frame. She created an open floor plan with enough room for Michelis to do a full rotation in her wheelchair, and she added a half wall next to the toilet and shower for privacy as well as a way to anchor grab bars.
She covered the main floor and walls in 12-by-24-inch matte porcelain tile that looks like marble but is much lower-maintenance. “It doesn’t matter what kind of issues happen now, everything is waterproof and super user-friendly,” Poulliot says.
Dame saw the bubble tile in a showroom and knew it would make the perfect accent. Poulliot ran it in a strip around the room and mirror.
Shop for bathroom vanities
She covered the main floor and walls in 12-by-24-inch matte porcelain tile that looks like marble but is much lower-maintenance. “It doesn’t matter what kind of issues happen now, everything is waterproof and super user-friendly,” Poulliot says.
Dame saw the bubble tile in a showroom and knew it would make the perfect accent. Poulliot ran it in a strip around the room and mirror.
Shop for bathroom vanities
The vanity is a custom design in white lacquer with a hand-painted gray glaze. Angled removable panels below the sinks hide plumbing and prevent any risk of Michelis burning her legs on the pipes.
Dame says that when the cut-glass pineapple lights above the mirror are on at night, reflecting throughout the bathroom, it “looks like you’re underneath water. It’s so pretty.”
Dame says that when the cut-glass pineapple lights above the mirror are on at night, reflecting throughout the bathroom, it “looks like you’re underneath water. It’s so pretty.”
Poulliot and the homeowners decided to keep the vanity free of knobs and pulls to prevent any snags. “The electric wheelchair is powerful,” Dame says. “It could rip a drawer out and break it. So it was easier not to have hardware on there.”
The drawers close automatically with a little push. The faucets are controlled by motion sensors.
Poulliot used what’s called a laminated half bullnose edge for the quartz countertops on the vanity and half walls to create a softer profile in case of any bumps.
The ornately framed accent mirror was repurposed from the previous bathroom.
The drawers close automatically with a little push. The faucets are controlled by motion sensors.
Poulliot used what’s called a laminated half bullnose edge for the quartz countertops on the vanity and half walls to create a softer profile in case of any bumps.
The ornately framed accent mirror was repurposed from the previous bathroom.
Before: Because the couple hadn’t been using the bathroom in its previous state, they decided to use some of its floor space to store a pair of ostrich statues.
After: With the tub gone, Poulliot created an extra-large, curbless shower essentially in the same space as the previous shower. It’s big enough for Dame to assist Michelis into her shower chair if needed.
“The most wonderful thing is the shower,” Dame says. “Everything else is very fun and cool but the shower is to die for.”
Michelis wanted something bolder to contrast with the lighter-colored bubble accent tile, so she selected the black-and-white bubble inset tile in the shower.
Inset bubble tile: Tile Generation
“The most wonderful thing is the shower,” Dame says. “Everything else is very fun and cool but the shower is to die for.”
Michelis wanted something bolder to contrast with the lighter-colored bubble accent tile, so she selected the black-and-white bubble inset tile in the shower.
Inset bubble tile: Tile Generation
The shower floor is the same porcelain tile used elsewhere in the bathroom, but cut to 2-by-2-inch squares for better traction. “More grout on the floor always makes it a little less slippery,” Poulliot says.
Plenty of grab bars enable Michelis to transfer herself to her shower chair. The digital control panel on the left allows the couple to set the exact temperature of the water from an app on their phones.
Similarly, they can put the radiant-heat floors on a timer so they wake up to a warm bathroom. A heated towel rack outside the shower warms towels. Michelis gets cold easily, so “we wanted to make sure she wasn’t freezing when she got out,” Poulliot says.
“It’s a comfy, warm experience,” Dame says.
Shower: U, Moen
Similarly, they can put the radiant-heat floors on a timer so they wake up to a warm bathroom. A heated towel rack outside the shower warms towels. Michelis gets cold easily, so “we wanted to make sure she wasn’t freezing when she got out,” Poulliot says.
“It’s a comfy, warm experience,” Dame says.
Shower: U, Moen
Poulliot wanted a little more design for the grab bars so they wouldn’t look like they belonged in a hospital. She found versions with more traditional lines to them. “We wanted to make them more like jewelry rather than something that just needed to be there,” she says.
The high-tech toilet by Toto features a heated seat, a lid that automatically opens when you approach and a digital panel that controls things like the bidet functions. There’s even a drying fan. “We call it Mr. Toto,” Dame jokes. “We are really enjoying it.”
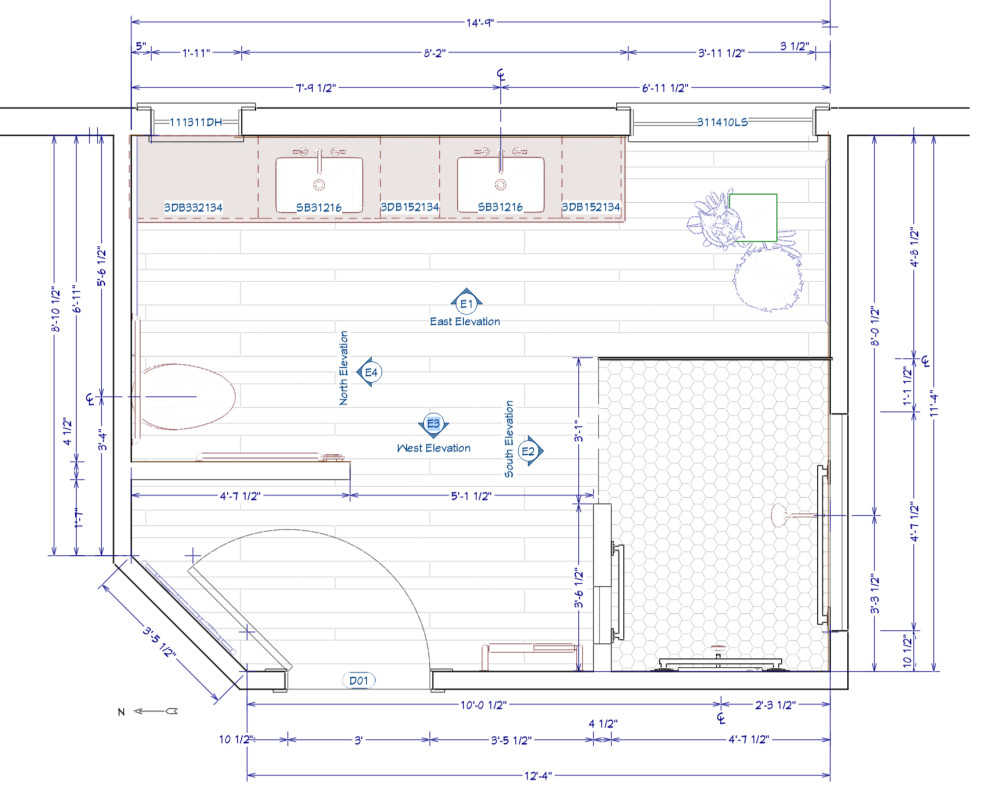
This floor plan shows the layout of Michelis and Dame’s new master bathroom. The entry door is on the bottom left, the shower on the bottom right and the vanity at top.
“I don’t worry if [she] wants to use the bathroom now without any assistance,” Dame says. “She can transfer because of the grab bars out of her chair. That makes her very happy.”
More on Houzz
See more Bathrooms of the Week
Get more bathroom design ideas
Find a bathroom remodeler near you
Shop for bathroom products and materials
“I don’t worry if [she] wants to use the bathroom now without any assistance,” Dame says. “She can transfer because of the grab bars out of her chair. That makes her very happy.”
More on Houzz
See more Bathrooms of the Week
Get more bathroom design ideas
Find a bathroom remodeler near you
Shop for bathroom products and materials














Bathroom at a Glance
Who lives here: Sharon Dame, a retiree who worked in private industry, and her wife, Mary Kay Michelis, a retired ophthalmologist surgeon
Location: Palmdale, California
Size: 165 square feet (15 square meters); 15 by 11 feet
Designer: Heather Poulliot of Lenton Co.
Before: The awkwardly placed corner bathtub was unusable by Michelis, and it wasted a lot of square footage.
Find a bathroom designer in your area